

<!DOCTYPE html>
<html lang="ru-UZ">
<head>
    
   <!-- Global site tag (gtag.js) - Google Analytics -->
   <script async src="https://www.googletagmanager.com/gtag/js?id=UA-2682682-1"></script>
   <script>
      window.dataLayer = window.dataLayer || [];
      function gtag() { dataLayer.push(arguments); }
      gtag('js', new Date());
      gtag('config', 'UA-2682682-1');
   </script>

    <title>&nbsp;185-сон 26.10.2022.&nbsp;ШНҚ 2.07.02-22 «Қурилиш объектларини ногиронлиги бўлган шахслар ҳамда кексалар эҳтиёжини инобатга олган ҳолда лойиҳалаштириш» шаҳарсозлик нормалари ва қоидаларини тасдиқлаш тўғрисида</title>
    
<meta charset="utf-8" />
<meta name="viewport" content="width=device-width, initial-scale=1">
<meta name="google" content="notranslate">
<meta http-equiv="x-ua-compatible" content="ie=edge">
    <link href="/bundle/css2?v=NDIKJDoPuwZPy1MfOJpzXNiwBDUzdtQHywcNyEx0mjI1" rel="stylesheet"/>

    <script src="/bundle/js2?v=TYDc0n5cWRYNF8rf6nCuzSQBVlRXZ0BA8QWlo5AxYqQ1"></script>

    <link href="/bundle/css_actform?v=E2H5feooh50MK4BN8LKb-BQOM3rTyLoFxEQduTgJFcU1" rel="stylesheet"/>

    
    <script type="text/javascript" src="https://www.google.com/recaptcha/api.js?onload=onloadCallback&render=explicit" async defer></script>
    
    <style>
        .lx_revive_adserver.lx_adv_doc {
            margin-left: auto;
            margin-right: auto;
            z-index: 998;
        }

        #lx_gte {
            line-height: 1;
            background-color: #0064A9;
            border: solid 4px #0064A9;
            border-radius: 4px;
            padding: 2px 4px 0;
            margin: 0 0 0 4px;
        }

            #lx_gte img {
                max-width: 19px;
            }

            #lx_gte #google_translate_element {
                margin-bottom: 4px;
            }

            #lx_gte .lx_ot {
                font-size: 12px;
                color: #fff;
                text-align: center;
            }

            #lx_gte .goog-te-gadget-simple {
                width: 100%;
                padding: 2px 1px 2.5px 1px !important;
            }

                #lx_gte .goog-te-gadget-simple > span {
                    display: inline-block;
                }

                    #lx_gte .goog-te-gadget-simple > span > a {
                        display: inline-block;
                        margin: 0;
                    }

                        #lx_gte .goog-te-gadget-simple > span > a > span {
                            display: none;
                        }

                            #lx_gte .goog-te-gadget-simple > span > a > span:first-of-type {
                                display: inline;
                            }

                #lx_gte .goog-te-gadget-simple:hover {
                    color: #fff;
                    background-color: #0064A9;
                }

                    #lx_gte .goog-te-gadget-simple:hover a {
                        color: #fff;
                        background-color: #0064A9;
                        text-decoration: none;
                    }

        .toc_show {
            display: block !important;
        }

            .toc_show .fas {
                display: none !important;
            }

        .toc_hide {
            display: none !important;
        }

        .show_context {
            background-color: #FFFF00;
            color: inherit;
        }

        .act_warning {
            color: red;
        }

        .lx_date_ddm {
            padding: 0 !important;
            width: 170px !important;
            max-height: 70vh !important;
            overflow-y: auto !important;
        }

            .lx_date_ddm > div {
                padding: 5px 20px !important;
                margin-bottom: 0 !important;
            }

        .lx_date_selected {
            cursor: default;
            color: gray;
        }

        .lx_date_link:hover {
            cursor: pointer;
            background: #0064a9;
            color: #fff;
        }

        .docContentHeader__item-link .icon {
            height: 25px;
            fill: #0064a9;
        }

            .docContentHeader__item-link .icon.sm {
                height: 17px;
            }

        .docContentHeader__item-link:hover .icon {
            fill: #fff;
        }

        .lx_text_on_other_lang {
            margin: 12px 0 8px 0;
            padding: 8px 16px;
            color: black;
            background-color: #fef1e1;
            font-style: italic;
        }

        #lxPlayButton {
            display: none;
            position: absolute;
            background-color: #007bff;
            color: white;
            border: none;
            border-radius: 5px;
            cursor: pointer;
            font-size: 18px;
            width: 32px;
            height: 32px;
            margin: 0;
            padding: 0;
            z-index: 1000;
        }

            #lxPlayButton:focus {
                outline: none;
            }

        #divCont a.lx_next_ver {
            margin: 4px 0px;
            padding: 4px 16px;
            color: #ffffff;
            background-color: #0064a9;
            border-radius: 16px;
            display: inline-block;
            text-align: center;
            text-indent: initial;
        }

            #divCont a.lx_next_ver:hover {
                color: #ffffff;
            }

        @media (max-width:720px) {
            #divCont a.lx_next_ver {
                display: block;
            }
        }
    </style>

    
    <style>
        /*#divCont > div {
            overflow-x: auto;
            max-width: calc(100vw - 42px);
            padding-right: 30px;
        }*/

        /* .TABLE_STD, .BY_DEFAULT {
            overflow-y: auto;
            max-height: 80vh;
        }*/
    </style>
    
</head>
<body class="sidebar-show">
    
    <div class="wrapper">
        
        <div id="lx_adv_doc" class="lx_revive_adserver lx_adv_doc">
            

<script type='text/javascript'><!--//<![CDATA[
    var m3_u = (location.protocol == 'https:' ? 'https://rk.adolatmarkazi.uz/www/delivery/ajs.php' : 'http://rk.adolatmarkazi.uz/www/delivery/ajs.php');
    var m3_r = Math.floor(Math.random() * 99999999999);
    if (!document.MAX_used) document.MAX_used = ',';
    document.write("<scr" + "ipt type='text/javascript' src='" + m3_u);
    document.write("?zoneid=6");
    document.write('&amp;cb=' + m3_r);
    if (document.MAX_used != ',') document.write("&amp;exclude=" + document.MAX_used);
    document.write(document.charset ? '&amp;charset=' + document.charset : (document.characterSet ? '&amp;charset=' + document.characterSet : ''));
    document.write("&amp;loc=" + escape(window.location));
    if (document.referrer) document.write("&amp;referer=" + escape(document.referrer));
    if (document.context) document.write("&context=" + escape(document.context));
    document.write("'><\/scr" + "ipt>");
    //]]>--></script>

        </div>
        
        <header id="doc_header" class="header">
            <div class="header__top">
                <div class="container">
                    <div id="lx_lact_num_top">
                        
                            <span>Ҳужжат кучини йўқотган&nbsp;27.01.2025</span>
                        
                        26.10.2022 йилдаги 185-сон
                    </div>
                    <div class="header__top-right">
                        <div class="header__icons">
                            
                            <div class="header__icon">
                                <a target="_blank" href="https://t.me/lexuzofficial"><i class="fab fa-telegram-plane"></i></a>
                            </div>
                            <div class="header__icon">
                                <a target="_blank" href="https://www.facebook.com/minjustuz"><i class="fab fa-facebook-f"></i></a>
                            </div>
                            <div class="header__icon">
                                <a target="_blank" href="https://www.instagram.com/adliyanews/"><i class="fab fa-instagram-square"></i></a>
                            </div>
                            <div class="header__icon">
                                <a target="_blank" href="https://www.youtube.com/c/adliya"><i class="fab fa-youtube"></i></a>
                            </div>
                            
                        </div>
                    </div>
                </div>
            </div>
            <div class="header__bottom">
                <div class="container">
                    <div class="header__bottom-left w-100 skiptranslate">
                        <a class="header__logo" href="/">
                            <img src="/assets/img/lex_uz.svg">
                        </a>
                        <div class="docBody__content ml-4 docBody_top-nav">
                            <div class="docContentHeader">
                                <div class="docContentHeader__item docContentHeader__item-mobile-left docContentHeader__item--action">
                                    
                                    <div class="docContentHeader__item-link lx_border_left" id="docContent__sideBar-show" title="Показать содержание">
                                        <i class="fas fa-bars"></i>
                                    </div>
                                    <div class="docContentHeader__item-link" onclick="addToFavorite()" title="Добавить в избранное">
                                        <i class="far fa-star"></i>
                                    </div>
                                    
                                    <div class="dropdown docContentHeader__item-link-dropdown">
                                        <div class="docContentHeader__item-link" id="dropdownMenuButton_t" title="Дополнительные модули" data-toggle="dropdown" aria-haspopup="true" aria-expanded="false">
                                            <i class="fas fa-tags"></i>
                                        </div>
                                        <div class="dropdown-menu" aria-labelledby="dropdownMenuButton_t" id="t_dropdown_check">
                                            <div class="dropdown-menu__item">
                                                <div class="custom-control custom-checkbox stopProp">
                                                    <input class="custom-control-input" id="t_checkAll" type="checkbox" onclick="clickAllChk('t_checkAll', this,'t','b')">
                                                    <label class="custom-control-label" for="t_checkAll"></label>
                                                </div>
                                                Все
                                            </div>
                                            <div class="dropdown-menu__item">
                                                <div class="custom-control custom-checkbox stopProp">
                                                    <input class="custom-control-input" id="t_3935" type="checkbox" onclick="hideItem(this)" checked="checked">
                                                    <label class="custom-control-label" for="t_3935"></label>
                                                </div>
                                                Ссылка на последующую редакцию
                                            </div>
                                            <div class="dropdown-menu__item">
                                                <div class="custom-control custom-checkbox stopProp">
                                                    <input class="custom-control-input" id="t_3934" type="checkbox" onclick="hideItem(this)" checked="checked">
                                                    <label class="custom-control-label" for="t_3934"></label>
                                                </div>
                                                Ссылка на предыдущую редакцию
                                            </div>
                                            <div class="dropdown-menu__item">
                                                <div class="custom-control custom-checkbox stopProp">
                                                    <input class="custom-control-input" id="t_5987" type="checkbox" onclick="hideItem(this)">
                                                    <label class="custom-control-label" for="t_5987"></label>
                                                </div>
                                                Индексация по ОКОЗ
                                            </div>
                                            <div class="dropdown-menu__item">
                                                <div class="custom-control custom-checkbox stopProp">
                                                    <input class="custom-control-input" id="t_5988" type="checkbox" onclick="hideItem(this)">
                                                    <label class="custom-control-label" for="t_5988"></label>
                                                </div>
                                                Индексация по ТСЗ
                                            </div>
                                            <div class="dropdown-menu__item">
                                                <div class="custom-control custom-checkbox stopProp">
                                                    <input class="custom-control-input" id="t_1104" type="checkbox" onclick="hideItem(this)" checked="checked">
                                                    <label class="custom-control-label" for="t_1104"></label>
                                                </div>
                                                Источники изменений
                                            </div>
                                            <div class="dropdown-menu__item">
                                                <div class="custom-control custom-checkbox stopProp">
                                                    <input class="custom-control-input" id="t_1089" type="checkbox" onclick="hideItem(this)" checked="checked">
                                                    <label class="custom-control-label" for="t_1089"></label>
                                                </div>
                                                Источники опубликования
                                            </div>
                                        </div>
                                    </div>
                                    <div class="docContentHeader__item-link" id="t_btn_lex_comment" onclick="toggleLexComments()" title="LexUZ шарҳи">
                                        <i class="fas fa-file-signature"></i>
                                    </div>
                                    
                                    <div class="dropdown docContentHeader__item-link-dropdown" title="Варианты">
                                        <div class="docContentHeader__item-link" id="dd3" data-toggle="dropdown" aria-haspopup="true" aria-expanded="false">
                                            <i class="fas fa-calendar" style="font-weight: 400;"></i>
                                        </div>
                                        <div class="dropdown-menu lx_date_ddm" aria-labelledby="dd3" id="lx_var_t" title="">
                                            
                                                    <div class="dropdown-menu__item lx_date_selected stopProp">27.01.2025</div>
                                                
                                                    <div class="dropdown-menu__item lx_date_link" onclick="lxOpenUrl('/ru/docs/6311402?ONDATE=12.12.2022')">12.12.2022</div>
                                                
                                        </div>
                                    </div>
                                    
                                    <div class="dropdown docContentHeader__item-link-dropdown" title="Сравнение вариантов">
                                        <div class="docContentHeader__item-link" id="dd4" data-toggle="dropdown" aria-haspopup="true" aria-expanded="false">
                                            <svg class="icon">
                                                <use xlink:href="/assets/img/sprite2.svg#compare"></use></svg>
                                        </div>
                                        <div class="dropdown-menu lx_date_ddm" aria-labelledby="dd4" title="">
                                            <div class="dropdown-menu__item lx_date_link" onclick="lxOpenUrl('/ru/docs/6311402?ONDATE2=27.01.2025&action=compare')">27.01.2025</div>
<div class="dropdown-menu__item lx_date_link" onclick="lxOpenUrl('/ru/docs/6311402?ONDATE2=12.12.2022&action=compare')">12.12.2022</div>
                                        </div>
                                    </div>
                                    
                                    <div class="docContentHeader__item-link" onclick="downloadDoc()" title="Сохранить в MS Word">
                                        <svg class="icon">
                                            <use xlink:href="/assets/img/sprite2.svg#word"></use></svg>
                                    </div>
                                    
                                    <div class="docContentHeader__item-link lx_border_right" onclick="window.print()" title="Версия для печати">
                                        <i class="fas fa-print"></i>
                                    </div>
                                    
                                </div>
                                <div class="docContentHeader__item docContentHeader__item-mobile-right skiptranslate">
                                    <div class="dropdown">
                                        <div class="docContentHeader__item-link lx_border_both mr-1" data-toggle="dropdown">
                                            <i class="fas fa-eye"></i>
                                        </div>
                                        <div class="dropdown-menu drop_menu">
                                            <h6 class="show_size">Вид</h6>
                                            <div class="row" style="margin-right: 1.3rem; margin-left: 0rem;">
                                                <div class="col-4">
                                                    <button class="btnA btn__left" onclick="toggleTheme('light');">A</button>
                                                </div>
                                                <div class="col-4">
                                                    <button class="btnA btn__cebter" onclick="toggleTheme('grey');">A</button>
                                                </div>
                                                <div class="col-4">
                                                    <button class="btnA btn__reght" onclick="toggleTheme('dark');">A</button>
                                                </div>
                                            </div>
                                        </div>
                                    </div>
                                    <div class="docContentHeader__item-link lx_border_left" onclick="openUrl('/ru/docs/6311404')" title="На русском">Рус</div><div class="docContentHeader__item-link active" title="Ўзбекча">Ўзб</div><div class="docContentHeader__item-link" onclick="openUrl('/ru/docs/-6311402')" title="O'zbekcha">O’zb</div><div class="docContentHeader__item-link-language lx_border_right" onclick="openTwoLang(1)" title="На двух языках">Ўзб|Рус</div>
                                    
                                    <div id="lx_gte">
                                        <div id="google_translate_element"></div>
                                        <div class="lx_ot skiptranslate">ONLINE TRANSLATE</div>
                                    </div>
                                    
                                </div>
                            </div>
                        </div>
                    </div>
                </div>
            </div>
        </header>
        
        <div id="docBody__sidebar" class="docBody__sidebar">
            <div class="docBody__sidebar-em">
                <div class="docNavbar">
                    <div class="docBody__search input-group">
                        <input id="search-criteria" class="form-control" type="text" placeholder="Поиск">
                        <div class="input-group-append">
                            <button class="btn" type="button" onclick="clearSearch();" title="Очистить поиск"><i class="fas fa-times"></i></button>
                        </div>
                    </div>
                    
                    <div class="lx_revive_adserver">
                        

<script type='text/javascript'><!--//<![CDATA[
    var m3_u = (location.protocol == 'https:' ? 'https://rk.adolatmarkazi.uz/www/delivery/ajs.php' : 'http://rk.adolatmarkazi.uz/www/delivery/ajs.php');
    var m3_r = Math.floor(Math.random() * 99999999999);
    if (!document.MAX_used) document.MAX_used = ',';
    document.write("<scr" + "ipt type='text/javascript' src='" + m3_u);
    document.write("?zoneid=7");
    document.write('&amp;cb=' + m3_r);
    if (document.MAX_used != ',') document.write("&amp;exclude=" + document.MAX_used);
    document.write(document.charset ? '&amp;charset=' + document.charset : (document.characterSet ? '&amp;charset=' + document.characterSet : ''));
    document.write("&amp;loc=" + escape(window.location));
    if (document.referrer) document.write("&amp;referer=" + escape(document.referrer));
    if (document.context) document.write("&context=" + escape(document.context));
    document.write("'><\/scr" + "ipt>");
    //]]>--></script>

                    </div>
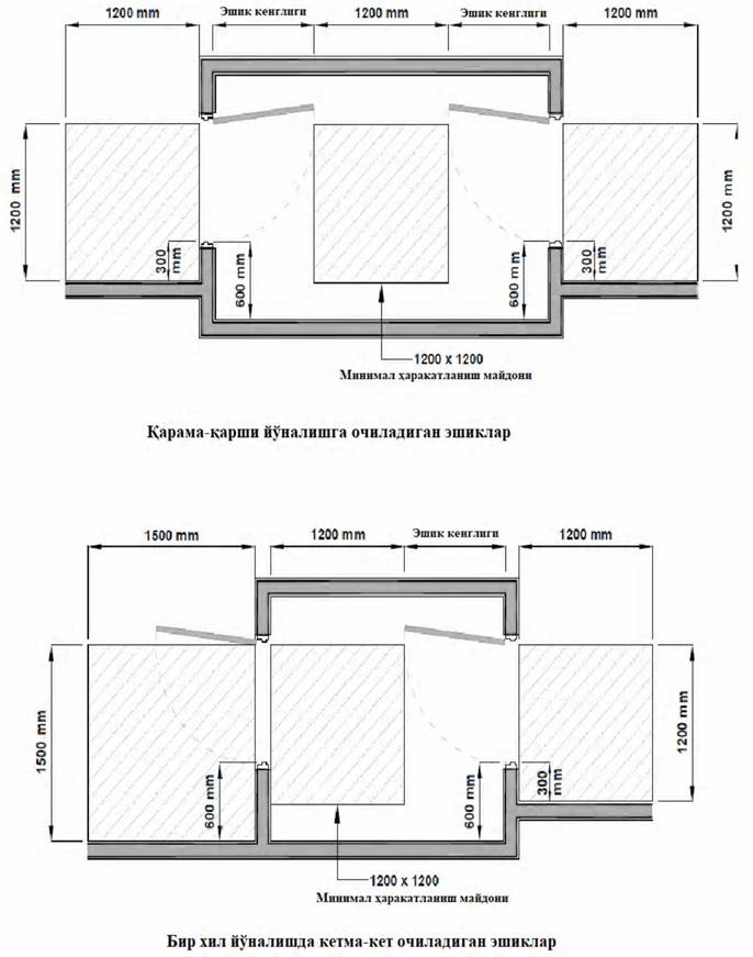
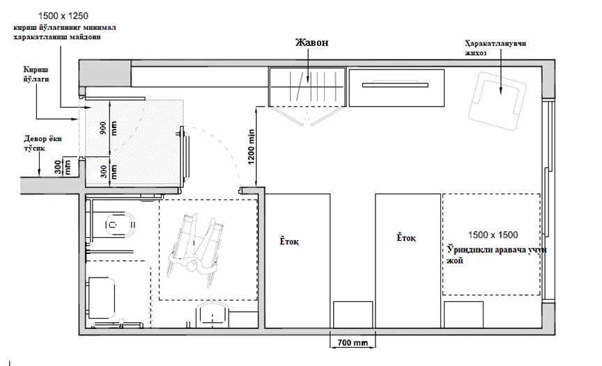
                    <div id="dvToc" style="margin: 5px;"><div class="docNavbar__item"><div class="docNavbar__item-link search-toggle" data-toggle="collapse" href="#collapse6311429" role="button" aria-expanded="false" aria-controls="collapse6311429"><div class="docNavbar__item-link-title"><a class="stopProp search-text" href="javascript:scrollText('6311429');">ШНҚ 2.07.02-22 «Қурилиш объектларини ногиронлиги бўлган шахслар ҳамда кексалар эҳтиёжини инобатга олган ҳолда лойиҳалаштириш» шаҳарсозлик нормалари ва қоидаларини тасдиқлаш тўғрисида</a></div></div></div><div class="docNavbar__item"><div class="docNavbar__item-link search-toggle" data-toggle="collapse" href="#collapse6311478" role="button" aria-expanded="false" aria-controls="collapse6311478"><div class="docNavbar__item-link-title"><a class="stopProp search-text" href="javascript:scrollText('6311478');">ИЛОВА<br />ШНҚ 2.07.02-22 «Қурилиш объектларини ногиронлиги бўлган шахслар ҳамда кексалар эҳтиёжини инобатга олган ҳолда лойиҳалаштириш» шаҳарсозлик нормалари ва қоидалари</a></div></div></div><div class="docNavbar__item"><div class="docNavbar__item-link search-toggle" data-toggle="collapse" href="#collapse6311482" role="button" aria-expanded="false" aria-controls="collapse6311482"><div class="docNavbar__item-link-title"><a class="stopProp search-text" href="javascript:scrollText('6311482');">1-боб. Техник жиҳатдан тартибга солиш соҳасидаги норматив ҳужжатларга ҳаволалар</a></div></div></div><div class="docNavbar__item"><div class="docNavbar__item-link search-toggle" data-toggle="collapse" href="#collapse6311494" role="button" aria-expanded="false" aria-controls="collapse6311494"><div class="docNavbar__item-link-title"><a class="stopProp search-text" href="javascript:scrollText('6311494');">2-боб. Атамалар ва таърифлар</a></div></div></div><div class="docNavbar__item"><div class="docNavbar__item-link search-toggle" data-toggle="collapse" href="#collapse6311515" role="button" aria-expanded="false" aria-controls="collapse6311515"><div class="docNavbar__item-link-title"><a class="stopProp search-text" href="javascript:scrollText('6311515');">3-боб. Умумий қоидалар</a></div></div></div><div class="docNavbar__item"><div class="docNavbar__item-link search-toggle" data-toggle="collapse" href="#collapse6311519" role="button" aria-expanded="false" aria-controls="collapse6311519"><div class="docNavbar__item-link-title"><a class="stopProp search-text" href="javascript:scrollText('6311519');">4-боб. Шаҳарсозлик талаблари</a></div></div></div><div class="docNavbar__item"><div class="docNavbar__item-link search-toggle" data-toggle="collapse" href="#collapse6311520" role="button" aria-expanded="false" aria-controls="collapse6311520"><div class="docNavbar__item-link-title"><a class="stopProp search-text" href="javascript:scrollText('6311520');">1-§. Ногиронлиги бўлган шахслар ҳамда кексалар эҳтиёжини инобатга олган ҳолда турар жойлар ва жамоат ҳудудлари, ҳаракат йўллари ва дам олиш зоналарини лойиҳалашга қўйиладиган талаблар</a></div></div></div><div class="docNavbar__item"><div class="docNavbar__item-link search-toggle" data-toggle="collapse" href="#collapse6311574" role="button" aria-expanded="false" aria-controls="collapse6311574"><div class="docNavbar__item-link-title"><a class="stopProp search-text" href="javascript:scrollText('6311574');">2-§. Жамоат транспорти бекатлари ва автотураргоҳларга қўйиладиган талаблар</a></div></div></div><div class="docNavbar__item"><div class="docNavbar__item-link search-toggle" data-toggle="collapse" href="#collapse6311584" role="button" aria-expanded="false" aria-controls="collapse6311584"><div class="docNavbar__item-link-title"><a class="stopProp search-text" href="javascript:scrollText('6311584');">3-§. Ногиронлиги бўлган шахслар ҳамда кексаларга хизмат кўрсатувчи тиббий-ижтимоий муассасаларнинг ҳудудларига қўйиладиган талаблар</a></div></div></div><div class="docNavbar__item"><div class="docNavbar__item-link search-toggle" data-toggle="collapse" href="#collapse6311603" role="button" aria-expanded="false" aria-controls="collapse6311603"><div class="docNavbar__item-link-title"><a class="stopProp search-text" href="javascript:scrollText('6311603');">5-боб. Ногиронлиги бўлган шахслар ҳамда кексалар эҳтиёжини инобатга олган ҳолда бино ва иншоотларни лойиҳалаштиришга қўйиладиган талаблар</a></div></div></div><div class="docNavbar__item"><div class="docNavbar__item-link search-toggle" data-toggle="collapse" href="#collapse6311604" role="button" aria-expanded="false" aria-controls="collapse6311604"><div class="docNavbar__item-link-title"><a class="stopProp search-text" href="javascript:scrollText('6311604');">1-§. Ногиронлиги бўлган шахслар ҳамда кексалар эҳтиёжини инобатга олган ҳолда бино ва иншоотларда ёнғин хавфсизлигини таъминлаш ҳамда эвакуация йўлларига қўйиладиган талаблар</a></div></div></div><div class="docNavbar__item"><div class="docNavbar__item-link search-toggle" data-toggle="collapse" href="#collapse6311652" role="button" aria-expanded="false" aria-controls="collapse6311652"><div class="docNavbar__item-link-title"><a class="stopProp search-text" href="javascript:scrollText('6311652');">2-§. Ногиронлиги бўлган шахслар ҳамда кексалар эҳтиёжини инобатга олган ҳолда зиналар ва пандусларга қўйиладиган талаблар</a></div></div></div><div class="docNavbar__item"><div class="docNavbar__item-link search-toggle" data-toggle="collapse" href="#collapse6311731" role="button" aria-expanded="false" aria-controls="collapse6311731"><div class="docNavbar__item-link-title"><a class="stopProp search-text" href="javascript:scrollText('6311731');">3-§. Лифтлар ва кўтаргичларга қўйиладиган талаблар</a></div></div></div><div class="docNavbar__item"><div class="docNavbar__item-link search-toggle" data-toggle="collapse" href="#collapse6311782" role="button" aria-expanded="false" aria-controls="collapse6311782"><div class="docNavbar__item-link-title"><a class="stopProp search-text" href="javascript:scrollText('6311782');">4-§. Ногиронлиги бўлган шахслар ҳамда кексалар эҳтиёжини инобатга олган ҳолда жамоат биноларидаги хизмат кўрсатиш жойларига қўйиладиган талаблар</a></div></div></div><div class="docNavbar__item"><div class="docNavbar__item-link search-toggle" data-toggle="collapse" href="#collapse6311808" role="button" aria-expanded="false" aria-controls="collapse6311808"><div class="docNavbar__item-link-title"><a class="stopProp search-text" href="javascript:scrollText('6311808');">5-§. Ногиронлиги бўлган шахслар ҳамда кексалар эҳтиёжини инобатга олган ҳолда турар жой хоналарига қўйиладиган талаблар</a></div></div></div><div class="docNavbar__item"><div class="docNavbar__item-link search-toggle" data-toggle="collapse" href="#collapse6311826" role="button" aria-expanded="false" aria-controls="collapse6311826"><div class="docNavbar__item-link-title"><a class="stopProp search-text" href="javascript:scrollText('6311826');">6-§. Ногиронлиги бўлган шахслар эҳтиёжини инобатга олган ҳолда меҳнат қилиш жойларига қўйиладиган талаблар</a></div></div></div><div class="docNavbar__item"><div class="docNavbar__item-link search-toggle" data-toggle="collapse" href="#collapse6311840" role="button" aria-expanded="false" aria-controls="collapse6311840"><div class="docNavbar__item-link-title"><a class="stopProp search-text" href="javascript:scrollText('6311840');">7-§. Ногиронлиги бўлган шахслар эҳтиёжини инобатга олган ҳолда санитария-гигиена хоналарига қўйиладиган талаблар</a></div></div></div><div class="docNavbar__item"><div class="docNavbar__item-link search-toggle" data-toggle="collapse" href="#collapse6311912" role="button" aria-expanded="false" aria-controls="collapse6311912"><div class="docNavbar__item-link-title"><a class="stopProp search-text" href="javascript:scrollText('6311912');">6-боб. Тиббий-ижтимоий муассасалар ҳамда ихтисослаштирилган таълим муассасалари биноларига қўйиладиган талаблар</a></div></div></div><div class="docNavbar__item"><div class="docNavbar__item-link search-toggle" data-toggle="collapse" href="#collapse6311914" role="button" aria-expanded="false" aria-controls="collapse6311914"><div class="docNavbar__item-link-title"><a class="stopProp search-text" href="javascript:scrollText('6311914');">1-§. Ногиронлиги бўлган шахслар ва кексалар учун «Саховат» ва «Мурувват» интернат уйлари, шунингдек ихтисослаштирилган таълим муассасалари биноларига қўйиладиган талаблар</a></div></div></div><div class="docNavbar__item"><div class="docNavbar__item-link search-toggle" data-toggle="collapse" href="#collapse6311997" role="button" aria-expanded="false" aria-controls="collapse6311997"><div class="docNavbar__item-link-title"><a class="stopProp search-text" href="javascript:scrollText('6311997');">2-§. Реабилитация муассасаларининг биноларига қўйиладиган талаблар</a></div></div></div><div class="docNavbar__item"><div class="docNavbar__item-link search-toggle" data-toggle="collapse" href="#collapse6312022" role="button" aria-expanded="false" aria-controls="collapse6312022"><div class="docNavbar__item-link-title"><a class="stopProp search-text" href="javascript:scrollText('6312022');">7-боб. Ногиронлиги бўлган шахслар ҳамда кексалар эҳтиёжини инобатга олган ҳолда ускуна ва жиҳозларга қўйиладиган талаблар</a></div></div></div><div class="docNavbar__item"><div class="docNavbar__item-link search-toggle" data-toggle="collapse" href="#collapse6312079" role="button" aria-expanded="false" aria-controls="collapse6312079"><div class="docNavbar__item-link-title"><a class="stopProp search-text" href="javascript:scrollText('6312079');">1-ИЛОВА<br />Ногиронлиги бўлган шахсларнинг антропометрик параметрлари, ўриндиқли аравачанинг габаритлари</a></div></div></div><div class="docNavbar__item"><div class="docNavbar__item-link search-toggle" data-toggle="collapse" href="#collapse6312099" role="button" aria-expanded="false" aria-controls="collapse6312099"><div class="docNavbar__item-link-title"><a class="stopProp search-text" href="javascript:scrollText('6312099');">2-ИЛОВА<br />Ўриндиқли аравачанинг габаритлари</a></div></div></div><div class="docNavbar__item"><div class="docNavbar__item-link search-toggle" data-toggle="collapse" href="#collapse6312170" role="button" aria-expanded="false" aria-controls="collapse6312170"><div class="docNavbar__item-link-title"><a class="stopProp search-text" href="javascript:scrollText('6312170');">3-ИЛОВА<br />Тактил йўл белгиларининг турлари</a></div></div></div><div class="docNavbar__item"><div class="docNavbar__item-link search-toggle" data-toggle="collapse" href="#collapse6312179" role="button" aria-expanded="false" aria-controls="collapse6312179"><div class="docNavbar__item-link-title"><a class="stopProp search-text" href="javascript:scrollText('6312179');">4-ИЛОВА<br />Тактил йўл белгиларининг турлари ва уларнинг мақсади</a></div></div></div><div class="docNavbar__item"><div class="docNavbar__item-link search-toggle" data-toggle="collapse" href="#collapse6312184" role="button" aria-expanded="false" aria-controls="collapse6312184"><div class="docNavbar__item-link-title"><a class="stopProp search-text" href="javascript:scrollText('6312184');">5-ИЛОВА<br />Бино ички ҳаракатланиш йўлакларининг тавсиявий кенглиги</a></div></div></div><div class="docNavbar__item"><div class="docNavbar__item-link search-toggle" data-toggle="collapse" href="#collapse6312199" role="button" aria-expanded="false" aria-controls="collapse6312199"><div class="docNavbar__item-link-title"><a class="stopProp search-text" href="javascript:scrollText('6312199');">6-ИЛОВА<br />Кўчалардаги тактил қопламаларнинг намуналари</a></div></div></div><div class="docNavbar__item"><div class="docNavbar__item-link search-toggle" data-toggle="collapse" href="#collapse6312212" role="button" aria-expanded="false" aria-controls="collapse6312212"><div class="docNavbar__item-link-title"><a class="stopProp search-text" href="javascript:scrollText('6312212');">7-ИЛОВА<br />Зина остидаги ҳимоя тўсиқлари</a></div></div></div><div class="docNavbar__item"><div class="docNavbar__item-link search-toggle" data-toggle="collapse" href="#collapse6312217" role="button" aria-expanded="false" aria-controls="collapse6312217"><div class="docNavbar__item-link-title"><a class="stopProp search-text" href="javascript:scrollText('6312217');">8-ИЛОВА<br />Кўзи ожизлар учун Брайл алифбоси шрифтлари билан жиҳозланган зина тутқичлари</a></div></div></div><div class="docNavbar__item"><div class="docNavbar__item-link search-toggle" data-toggle="collapse" href="#collapse6312224" role="button" aria-expanded="false" aria-controls="collapse6312224"><div class="docNavbar__item-link-title"><a class="stopProp search-text" href="javascript:scrollText('6312224');">9-ИЛОВА<br />Пиёдалар йўлкасининг пиёдалар ўтиш жойи билан уйғунлашуви</a></div></div></div><div class="docNavbar__item"><div class="docNavbar__item-link search-toggle" data-toggle="collapse" href="#collapse6312240" role="button" aria-expanded="false" aria-controls="collapse6312240"><div class="docNavbar__item-link-title"><a class="stopProp search-text" href="javascript:scrollText('6312240');">10-ИЛОВА<br />Махсус кўтарувчи мосламалар</a></div></div></div><div class="docNavbar__item"><div class="docNavbar__item-link search-toggle" data-toggle="collapse" href="#collapse6312257" role="button" aria-expanded="false" aria-controls="collapse6312257"><div class="docNavbar__item-link-title"><a class="stopProp search-text" href="javascript:scrollText('6312257');">11-ИЛОВА<br />Ногиронлиги бўлган шахслар учун автотураргоҳлар ҳамда махсус белги</a></div></div></div><div class="docNavbar__item"><div class="docNavbar__item-link search-toggle" data-toggle="collapse" href="#collapse6312342" role="button" aria-expanded="false" aria-controls="collapse6312342"><div class="docNavbar__item-link-title"><a class="stopProp search-text" href="javascript:scrollText('6312342');">12-ИЛОВА<br />Ногиронлиги бўлган шахслар ҳамда кексаларга хизмат кўрсатувчи тиббий-ижтимоий муассасалар ҳамда ихтисослаштирилган таълим муассасалари ҳудудлари учун тавсия қилинган майдонлар</a></div></div></div><div class="docNavbar__item"><div class="docNavbar__item-link search-toggle" data-toggle="collapse" href="#collapse6312355" role="button" aria-expanded="false" aria-controls="collapse6312355"><div class="docNavbar__item-link-title"><a class="stopProp search-text" href="javascript:scrollText('6312355');">13-ИЛОВА<br />Столлар, пештахталар ва бошқа хизмат кўрсатиш жойлари, деворга ўрнатиладиган жиҳозлар ва қурилмалар яқинидаги бўш жойнинг ўлчамлари</a></div></div></div><div class="docNavbar__item"><div class="docNavbar__item-link search-toggle" data-toggle="collapse" href="#collapse6312382" role="button" aria-expanded="false" aria-controls="collapse6312382"><div class="docNavbar__item-link-title"><a class="stopProp search-text" href="javascript:scrollText('6312382');">14-ИЛОВА<br />Столлар, пештахталар ва бошқа хизмат кўрсатиш жойлари, деворга ўрнатиладиган жиҳозлар ва қурилмалар яқинидаги бўш жойнинг ўлчамлари</a></div></div></div><div class="docNavbar__item"><div class="docNavbar__item-link search-toggle" data-toggle="collapse" href="#collapse6312515" role="button" aria-expanded="false" aria-controls="collapse6312515"><div class="docNavbar__item-link-title"><a class="stopProp search-text" href="javascript:scrollText('6312515');">15-ИЛОВА<br />Эшиклар олдидаги ҳаракатланиш майдони параметрлари</a></div></div></div><div class="docNavbar__item"><div class="docNavbar__item-link search-toggle" data-toggle="collapse" href="#collapse6312535" role="button" aria-expanded="false" aria-controls="collapse6312535"><div class="docNavbar__item-link-title"><a class="stopProp search-text" href="javascript:scrollText('6312535');">16-ИЛОВА<br />Эшиклар олдидаги ҳаракатланиш майдони параметрлари</a></div></div></div><div class="docNavbar__item"><div class="docNavbar__item-link search-toggle" data-toggle="collapse" href="#collapse6312541" role="button" aria-expanded="false" aria-controls="collapse6312541"><div class="docNavbar__item-link-title"><a class="stopProp search-text" href="javascript:scrollText('6312541');">17-ИЛОВА<br />Пандус ва зиналар олдидаги тактил қопламалар тавсиявий намунаси</a></div></div></div><div class="docNavbar__item"><div class="docNavbar__item-link search-toggle" data-toggle="collapse" href="#collapse6312555" role="button" aria-expanded="false" aria-controls="collapse6312555"><div class="docNavbar__item-link-title"><a class="stopProp search-text" href="javascript:scrollText('6312555');">18-ИЛОВА<br />Пандус ва зиналар олдидаги тактил қопламалар тавсиявий намунаси</a></div></div></div><div class="docNavbar__item"><div class="docNavbar__item-link search-toggle" data-toggle="collapse" href="#collapse6312623" role="button" aria-expanded="false" aria-controls="collapse6312623"><div class="docNavbar__item-link-title"><a class="stopProp search-text" href="javascript:scrollText('6312623');">19-ИЛОВА<br />Пандус ва зиналар олдидаги тактил қопламалар тавсиявий намунаси</a></div></div></div><div class="docNavbar__item"><div class="docNavbar__item-link search-toggle" data-toggle="collapse" href="#collapse6312690" role="button" aria-expanded="false" aria-controls="collapse6312690"><div class="docNavbar__item-link-title"><a class="stopProp search-text" href="javascript:scrollText('6312690');">20-ИЛОВА<br />Лифт параметрларининг тавсиявий намунаси</a></div></div></div><div class="docNavbar__item"><div class="docNavbar__item-link search-toggle" data-toggle="collapse" href="#collapse6312725" role="button" aria-expanded="false" aria-controls="collapse6312725"><div class="docNavbar__item-link-title"><a class="stopProp search-text" href="javascript:scrollText('6312725');">21-ИЛОВА<br />Лифт параметрларининг тавсиявий намунаси</a></div></div></div><div class="docNavbar__item"><div class="docNavbar__item-link search-toggle" data-toggle="collapse" href="#collapse6312756" role="button" aria-expanded="false" aria-controls="collapse6312756"><div class="docNavbar__item-link-title"><a class="stopProp search-text" href="javascript:scrollText('6312756');">22-ИЛОВА<br />Дам олиш зоналарини ташкиллаштириш</a></div></div></div><div class="docNavbar__item"><div class="docNavbar__item-link search-toggle" data-toggle="collapse" href="#collapse6312799" role="button" aria-expanded="false" aria-controls="collapse6312799"><div class="docNavbar__item-link-title"><a class="stopProp search-text" href="javascript:scrollText('6312799');">23-ИЛОВА<br />Ўриндиқли аравачада ҳаракатланадиган ногиронлиги бўлган шахсларнинг антропометрик параметрлари</a></div></div></div><div class="docNavbar__item"><div class="docNavbar__item-link search-toggle" data-toggle="collapse" href="#collapse6312814" role="button" aria-expanded="false" aria-controls="collapse6312814"><div class="docNavbar__item-link-title"><a class="stopProp search-text" href="javascript:scrollText('6312814');">24-ИЛОВА<br />Бир нафар ўриндиқли аравачадаги ногиронлиги бўлган шахс ҳамда кузатувчиси учун мослаштирилган меҳмонхона хоналарининг тавсиявий кўриниши</a></div></div></div></div>
                </div>
            </div>
        </div>
        
        <main class="main" id="doc_main">
            <div class="container">
                <div class="docHeader skiptranslate">
                    <div class="docHeader__col docHeader__col__1">
                        <div class="docHeader__item d-flex">
                            <div class="docHeader__item-label">Ўзбекистон Республикаси қурилиш вазирининг буйруғи, 26.10.2022 йилдаги 185-сон</div>
                        </div>
                    </div>
                    <div class="docHeader__col docHeader__col__2">
                        <div class="docHeader__item d-flex">
                            <div class="docHeader__item-label" style="width: 60%">Дата вступления в силу</div>
                            <div class="docHeader__item-value d-flex" style="width: 40%;">12.12.2022</div>
                        </div>
                    </div>
                    <div class="docHeader__col docHeader__col__3">
                        <div class="docHeader__item d-flex">
                            <div style="width: 60%">
                                <div class="dropdown mr-3">
                                    <a role="button" data-toggle="dropdown" aria-expanded="false">Дополни&shy;тельная информация</a>
                                    <div class="dropdown-menu" style="margin-top: -2px;">
                                        <a class="dropdown-item" onclick="showAddCard(1)">Основные реквизиты</a>
                                        <a class="dropdown-item" onclick="showAddCard(2)">Кодификация</a>
                                        <a class="dropdown-item" onclick="showAddCard(3)">Пересмотренные акты</a>
                                        <a class="dropdown-item" onclick="showAddCard(4)">Акты основания для пересмотра</a>
                                        <a class="dropdown-item" onclick="showAddCard(5)">Корреспонденты</a>
                                        <a class="dropdown-item" onclick="showAddCard(6)">Респонденты</a>
                                    </div>
                                </div>
                            </div>
                            <div style="width: 40%">
                                <div class="dropdown">
                                    <a role="button" data-toggle="dropdown" aria-expanded="false"><i class="fa fa-share-alt mr-2"></i>Поделиться</a>
                                    <div class="dropdown-menu" style="margin-top: -2px;">
                                        <a class="dropdown-item" target="_blank" href="https://telegram.me/share/url?url=http://lex.uz//ru/docs/6311402 ШНҚ 2.07.02-22 «Қурилиш объектларини ногиронлиги бўлган шахслар ҳамда кексалар эҳтиёжини инобатга олган ҳолда лойиҳалаштириш» шаҳарсозлик нормалари ва қоидаларини тасдиқлаш тўғрисида">Telegram</a>
                                        <a class="dropdown-item" target="_blank" href="https://www.facebook.com/sharer/sharer.php?u=http://lex.uz//ru/docs/6311402">Facebook</a>
                                        <a class="dropdown-item" target="_blank" href="">Twitter</a>
                                        <a class="dropdown-item" target="_blank" href="">Instagram</a>
                                    </div>
                                </div>
                            </div>
                        </div>
                    </div>
                </div>
            </div>
            <div class="container docBody-container">
                <div class="docBody d-flex">
                    <div class="docBody__content">
                        <div class="docContentHeader docBody_bottom-nav">
                            <div class="docContentHeader__item docContentHeader__item-mobile-left docContentHeader__item--action">
                                <div class="docContentHeader__item-link lx_border_left" onclick="addToFavorite()" title="Добавить в избранное">
                                    <i class="far fa-star"></i>
                                </div>
                                
                                <div class="dropdown docContentHeader__item-link-dropdown">
                                    <div class="docContentHeader__item-link" id="dropdownMenuButton_b" title="Дополнительные модули" data-toggle="dropdown" aria-haspopup="true" aria-expanded="false">
                                        <i class="fas fa-tags"></i>
                                    </div>
                                    <div class="dropdown-menu" aria-labelledby="dropdownMenuButton_b" id="b_dropdown_check">
                                        <div class="dropdown-menu__item">
                                            <div class="custom-control custom-checkbox">
                                                <input class="custom-control-input" id="b_checkAll" type="checkbox" onclick="clickAllChk('b_checkAll', this,'b','t')">
                                                <label class="custom-control-label" for="b_checkAll"></label>
                                            </div>
                                            Все
                                        </div>
                                        <div class="dropdown-menu__item">
                                            <div class="custom-control custom-checkbox">
                                                <input class="custom-control-input" id="b_3935" type="checkbox" onclick="hideItem(this)" checked="checked">
                                                <label class="custom-control-label" for="b_3935"></label>
                                            </div>
                                            Ссылка на последующую редакцию
                                        </div>
                                        <div class="dropdown-menu__item">
                                            <div class="custom-control custom-checkbox">
                                                <input class="custom-control-input" id="b_3934" type="checkbox" onclick="hideItem(this)" checked="checked">
                                                <label class="custom-control-label" for="b_3934"></label>
                                            </div>
                                            Ссылка на предыдущую редакцию
                                        </div>
                                        <div class="dropdown-menu__item">
                                            <div class="custom-control custom-checkbox">
                                                <input class="custom-control-input" id="b_5987" type="checkbox" onclick="hideItem(this)">
                                                <label class="custom-control-label" for="b_5987"></label>
                                            </div>
                                            Индексация по ОКОЗ
                                        </div>
                                        <div class="dropdown-menu__item">
                                            <div class="custom-control custom-checkbox">
                                                <input class="custom-control-input" id="b_5988" type="checkbox" onclick="hideItem(this)">
                                                <label class="custom-control-label" for="b_5988"></label>
                                            </div>
                                            Индексация по ТСЗ
                                        </div>
                                        <div class="dropdown-menu__item">
                                            <div class="custom-control custom-checkbox">
                                                <input class="custom-control-input" id="b_1104" type="checkbox" onclick="hideItem(this)" checked="checked">
                                                <label class="custom-control-label" for="b_1104"></label>
                                            </div>
                                            Источники изменений
                                        </div>
                                        <div class="dropdown-menu__item">
                                            <div class="custom-control custom-checkbox">
                                                <input class="custom-control-input" id="b_1089" type="checkbox" onclick="hideItem(this)" checked="checked">
                                                <label class="custom-control-label" for="b_1089"></label>
                                            </div>
                                            Источники опубликования
                                        </div>
                                    </div>
                                </div>
                                <div class="docContentHeader__item-link" id="b_btn_lex_comment" onclick="toggleLexComments()">
                                    <i class="fas fa-file-signature"></i>
                                </div>
                                
                                <div class="dropdown docContentHeader__item-link-dropdown" title="Варианты">
                                    <div class="docContentHeader__item-link" id="dd3_" data-toggle="dropdown" aria-haspopup="true" aria-expanded="false">
                                        <i class="fas fa-calendar" style="font-weight: 400;"></i>
                                    </div>
                                    <div class="dropdown-menu lx_date_ddm" aria-labelledby="dd3_" id="lx_var_b" title=""></div>
                                </div>
                                
                                <div class="dropdown docContentHeader__item-link-dropdown" title="Сравнение вариантов">
                                    <div class="docContentHeader__item-link" id="dd4_" data-toggle="dropdown" aria-haspopup="true" aria-expanded="false">
                                        <svg class="icon sm">
                                            <use xlink:href="/assets/img/sprite2.svg#compare"></use></svg>
                                    </div>
                                    <div class="dropdown-menu lx_date_ddm" aria-labelledby="dd4_" title="">
                                        <div class="dropdown-menu__item lx_date_link" onclick="lxOpenUrl('/ru/docs/6311402?ONDATE2=27.01.2025&action=compare')">27.01.2025</div>
<div class="dropdown-menu__item lx_date_link" onclick="lxOpenUrl('/ru/docs/6311402?ONDATE2=12.12.2022&action=compare')">12.12.2022</div>
                                    </div>
                                </div>
                                
                                <div class="docContentHeader__item-link" onclick="downloadDoc()" title="Сохранить в MS Word">
                                    <svg class="icon sm">
                                        <use xlink:href="/assets/img/sprite2.svg#word"></use></svg>
                                </div>
                                
                                <div class="docContentHeader__item-link lx_border_right" onclick="window.print()" title="Версия для печати">
                                    <i class="fas fa-print"></i>
                                </div>
                            </div>
                            <div class="docContentHeader__item docContentHeader__item-mobile-right skiptranslate">
                                <div class="dropdown eye_btn">
                                    <div class="docContentHeader__item-link lx_border_both mr-1" data-toggle="dropdown">
                                        <i class="fas fa-eye"></i>
                                    </div>
                                    <div class="dropdown-menu drop_menu">
                                        <h6 class="show_size">Вид</h6>
                                        <div class="row" style="margin-right: 1.3rem; margin-left: 0rem;">
                                            <div class="col-4">
                                                <button class="btnA btn__left" onclick="toggleTheme('light');">A</button>
                                            </div>
                                            <div class="col-4">
                                                <button class="btnA btn__cebter" onclick="toggleTheme('grey');">A</button>
                                            </div>
                                            <div class="col-4">
                                                <button class="btnA btn__reght" onclick="toggleTheme('dark');">A</button>
                                            </div>
                                        </div>
                                    </div>
                                </div>
                                <div class="docContentHeader__item-link lx_border_left" onclick="openUrl('/ru/docs/6311404')" title="На русском">Рус</div><div class="docContentHeader__item-link active" title="Ўзбекча">Ўзб</div><div class="docContentHeader__item-link" onclick="openUrl('/ru/docs/-6311402')" title="O'zbekcha">O’zb</div><div class="docContentHeader__item-link-language lx_border_right" onclick="openTwoLang(1)" title="На двух языках">Ўзб|Рус</div>
                            </div>
                        </div>
                        <div class="docBody__container">
                            <div class="docBody__content-em" id='main_container1'>
                                
                                    <div style="background-color: #fff; padding: 16px 14px 16px 8px;">
                                        <table style="width: 100%; font-family: Arial; font-size: 14px; font-weight: bold;">
                                            <tr>
                                                <td style="width: 50%; border: 0;">
                                                    
                                                        <div class="act_warning">
                                                            Ҳужжат кучини йўқотган&nbsp;27.01.2025
                                                        </div>
                                                    
                                                </td>
                                                <td style="width: 50%; border: 0;" align="right">
                                                    
                                                    
                                                </td>
                                            </tr>
                                            
                                        </table>
                                        <div id="mD" class="main-column document" style="margin: 0px;">
                                            <div id="divBody">
                                                <div id="divCont" style="background:#ffffff;border:none;margin:auto;"><div class="INDEXES_ON_REF lx_no_select" style="display:none"><label id="s5987"></label><div name="onLBC6311402" id="onLBC6311402">[<b>ОКОЗ:</b><div id="LBC6931"><span class="iorRN">1.</span><span class="iorVal">09.00.00.00 Тадбиркорлик ва хўжалик фаолияти / 09.13.00.00 Шаҳарсозлик ва архитектура / 09.13.05.00 Шаҳарсозлик нормативлари. Шаҳарсозлик ҳужжатлари. Экспертиза]</span></div></div></div><div class="INDEXES_ON_REF lx_no_select" style="display:none"><label id="s5988"></label><div name="onLS6311402" id="onLS6311402">[<b>ТСЗ:</b><div id="LS3741"><span class="iorRN">1.</span><span class="iorVal">Иқтисодиёт / Архитектура ва қурилиш]</span></div></div></div><div class="ACCEPTING_BODY lx_elem" onmousemove="lx_mo(event,6311427)"><div class="lx_elem2"><div class="lx_elem3"><span onclick="lx_sf(6311427)"><img src="/img/cmt.svg" />Предложения по документу</span><span onclick="lx_pa(6311427)"><img src="/img/vlm.svg" />Прослушать аудио</span><span onclick="lx_cl(6311427)"><img src="/img/lnk.svg" />Получить ссылку из элемента документа</span></div></div><div name="6311427" id="6311427">Ўзбекистон Республикаси қурилиш вазирининг</div></div><div class="ACT_FORM lx_elem" onmousemove="lx_mo(event,6311428)"><div class="lx_elem2"><div class="lx_elem3"><span onclick="lx_sf(6311428)"><img src="/img/cmt.svg" />Предложения по документу</span><span onclick="lx_pa(6311428)"><img src="/img/vlm.svg" />Прослушать аудио</span><span onclick="lx_cl(6311428)"><img src="/img/lnk.svg" />Получить ссылку из элемента документа</span></div></div><div name="6311428" id="6311428">буйруғи</div></div><div class="ACT_TITLE lx_elem" onmousemove="lx_mo(event,6311429)"><div class="lx_elem2"><div class="lx_elem3"><span onclick="lx_sf(6311429)"><img src="/img/cmt.svg" />Предложения по документу</span><span onclick="lx_pa(6311429)"><img src="/img/vlm.svg" />Прослушать аудио</span><span onclick="lx_cl(6311429)"><img src="/img/lnk.svg" />Получить ссылку из элемента документа</span></div></div><div name="6311429" id="6311429">ШНҚ 2.07.02-22 «Қурилиш объектларини ногиронлиги бўлган шахслар ҳамда кексалар эҳтиёжини инобатга олган ҳолда лойиҳалаштириш» шаҳарсозлик нормалари ва қоидаларини тасдиқлаш тўғрисида</div></div><div class="DEPARTMENTAL lx_elem" onmousemove="lx_mo(event,6311430)"><div class="lx_elem2"><div class="lx_elem3"><span onclick="lx_sf(6311430)"><img src="/img/cmt.svg" />Предложения по документу</span><span onclick="lx_pa(6311430)"><img src="/img/vlm.svg" />Прослушать аудио</span><span onclick="lx_cl(6311430)"><img src="/img/lnk.svg" />Получить ссылку из элемента документа</span></div></div><div name="6311430" id="6311430">[Ўзбекистон Республикаси Адлия вазирлиги томонидан 2022 йил 12 декабрда ҳисобга олинди, ҳисоб рақами 124]</div></div><div class="BY_DEFAULT lx_elem" onmousemove="lx_mo(event,6311431)"><div class="lx_elem2"><div class="lx_elem3"><span onclick="lx_sf(6311431)"><img src="/img/cmt.svg" />Предложения по документу</span><span onclick="lx_pa(6311431)"><img src="/img/vlm.svg" />Прослушать аудио</span><span onclick="lx_cl(6311431)"><img src="/img/lnk.svg" />Получить ссылку из элемента документа</span></div></div><div name="6311431" id="6311431"></div></div><div class="COMMENT lx_no_select"><label id="s527"></label><div class="COMMENTLEXUZ"><img src="/image/favicon.gif" /> LexUZ шарҳи</div><div name="7354976" id="7354976">Мазкур буйруқ Ўзбекистон Республикаси қурилиш ва уй-жой коммунал хўжалиги вазирининг 2025 йил 8 январдаги 01/2-1-сонли «ШНҚ 2.07.02-24 «Қурилиш объектларини ногиронлиги бўлган ва ҳаёт фаолияти чекланган шахслар ҳамда кексалар эҳтиёжини инобатга олган ҳолда лойиҳалаштириш» шаҳарсозлик нормалари ва қоидаларини тасдиқлаш тўғрисида»ги <a href="/ru/docs/7346244?ONDATE=27.01.2025 00#7346282">буйруғига </a>(рўйхат рақами 331, 27.01.2025 й.) асосан ўз кучини йўқотган.</div></div><div class="ACT_TEXT lx_elem" onmousemove="lx_mo(event,6311433)"><div class="lx_elem2"><div class="lx_elem3"><span onclick="lx_sf(6311433)"><img src="/img/cmt.svg" />Предложения по документу</span><span onclick="lx_pa(6311433)"><img src="/img/vlm.svg" />Прослушать аудио</span><span onclick="lx_cl(6311433)"><img src="/img/lnk.svg" />Получить ссылку из элемента документа</span></div></div><div name="6311433" id="6311433">Ўзбекистон Республикасининг Шаҳарсозлик <a href="/ru/docs/5307951">кодексига </a>мувофиқ буюраман:</div></div><div class="ACT_TEXT lx_elem" onmousemove="lx_mo(event,6311469)"><div class="lx_elem2"><div class="lx_elem3"><span onclick="lx_sf(6311469)"><img src="/img/cmt.svg" />Предложения по документу</span><span onclick="lx_pa(6311469)"><img src="/img/vlm.svg" />Прослушать аудио</span><span onclick="lx_cl(6311469)"><img src="/img/lnk.svg" />Получить ссылку из элемента документа</span></div></div><div name="6311469" id="6311469">1. ШНҚ 2.07.02-22 «Қурилиш объектларини ногиронлиги бўлган шахслар ҳамда кексалар эҳтиёжини инобатга олган ҳолда лойиҳалаштириш» шаҳарсозлик нормалари ва қоидалари <a href="/ru/docs/6311402#6311477">иловага </a>мувофиқ тасдиқлансин.</div></div><div class="ACT_TEXT lx_elem" onmousemove="lx_mo(event,6311470)"><div class="lx_elem2"><div class="lx_elem3"><span onclick="lx_sf(6311470)"><img src="/img/cmt.svg" />Предложения по документу</span><span onclick="lx_pa(6311470)"><img src="/img/vlm.svg" />Прослушать аудио</span><span onclick="lx_cl(6311470)"><img src="/img/lnk.svg" />Получить ссылку из элемента документа</span></div></div><div name="6311470" id="6311470">2. Ўзбекистон Республикаси Давлат архитектура ва қурилиш қўмитаси раисининг 2008 йил 10 январдаги 3-сон «ШНҚ 2.07.02-07 «Инсонларнинг ҳаёти ва фаолияти муҳитини ногиронлар эҳтиёжлари ва аҳолининг кам ҳаракатланувчи гуруҳларини ҳисобга олган ҳолда лойиҳалаш» шаҳарсозлик нормалари ва қоидаларини тасдиқлаш тўғрисида»ги <a href="/ru/docs/4444179">буйруғи </a>ўз кучини йўқотган деб топилсин.</div></div><div class="ACT_TEXT lx_elem" onmousemove="lx_mo(event,6311471)"><div class="lx_elem2"><div class="lx_elem3"><span onclick="lx_sf(6311471)"><img src="/img/cmt.svg" />Предложения по документу</span><span onclick="lx_pa(6311471)"><img src="/img/vlm.svg" />Прослушать аудио</span><span onclick="lx_cl(6311471)"><img src="/img/lnk.svg" />Получить ссылку из элемента документа</span></div></div><div name="6311471" id="6311471">3. Мазкур буйруқ Ўзбекистон Республикаси Уй-жой ва коммунал хизмат кўрсатиш вазирлиги, Халқ таълими вазирлиги, Фавқулодда вазиятлар вазирлиги, Мактабгача таълим вазирлиги, Спортни ривожлантириш вазирлиги, Транспорт вазирлиги, Олий ва ўрта махсус таълим вазирлиги, Тиббий-ижтимоий хизматларни ривожлантириш агентлиги, Санитария-эпидемиологик осойишталик ва жамоат саломатлиги хизмати ва «Тошшаҳартрансхизмат» АЖ билан келишилган.</div></div><div class="ACT_TEXT lx_elem" onmousemove="lx_mo(event,6311472)"><div class="lx_elem2"><div class="lx_elem3"><span onclick="lx_sf(6311472)"><img src="/img/cmt.svg" />Предложения по документу</span><span onclick="lx_pa(6311472)"><img src="/img/vlm.svg" />Прослушать аудио</span><span onclick="lx_cl(6311472)"><img src="/img/lnk.svg" />Получить ссылку из элемента документа</span></div></div><div name="6311472" id="6311472">4. Мазкур буйруқ расмий эълон қилинган кундан эътиборан кучга киради.</div></div><div class="SIGNATURE lx_elem" onmousemove="lx_mo(event,6311473)"><div class="lx_elem2"><div class="lx_elem3"><span onclick="lx_sf(6311473)"><img src="/img/cmt.svg" />Предложения по документу</span><span onclick="lx_pa(6311473)"><img src="/img/vlm.svg" />Прослушать аудио</span><span onclick="lx_cl(6311473)"><img src="/img/lnk.svg" />Получить ссылку из элемента документа</span></div></div><div name="6311473" id="6311473">Вазир Б. ЗАКИРОВ</div></div><div class="ACT_ESSENTIAL_ELEMENTS lx_elem" onmousemove="lx_mo(event,6311474)"><div class="lx_elem2"><div class="lx_elem3"><span onclick="lx_sf(6311474)"><img src="/img/cmt.svg" />Предложения по документу</span><span onclick="lx_pa(6311474)"><img src="/img/vlm.svg" />Прослушать аудио</span><span onclick="lx_cl(6311474)"><img src="/img/lnk.svg" />Получить ссылку из элемента документа</span></div></div><div name="6311474" id="6311474">Тошкент ш.,</div></div><div class="ACT_ESSENTIAL_ELEMENTS lx_elem" onmousemove="lx_mo(event,6311475)"><div class="lx_elem2"><div class="lx_elem3"><span onclick="lx_sf(6311475)"><img src="/img/cmt.svg" />Предложения по документу</span><span onclick="lx_pa(6311475)"><img src="/img/vlm.svg" />Прослушать аудио</span><span onclick="lx_cl(6311475)"><img src="/img/lnk.svg" />Получить ссылку из элемента документа</span></div></div><div name="6311475" id="6311475">2022 йил 26 октябрь,</div></div><div class="ACT_ESSENTIAL_ELEMENTS_NUM lx_elem" onmousemove="lx_mo(event,6311476)"><div class="lx_elem2"><div class="lx_elem3"><span onclick="lx_sf(6311476)"><img src="/img/cmt.svg" />Предложения по документу</span><span onclick="lx_pa(6311476)"><img src="/img/vlm.svg" />Прослушать аудио</span><span onclick="lx_cl(6311476)"><img src="/img/lnk.svg" />Получить ссылку из элемента документа</span></div></div><div name="6311476" id="6311476">185-сон</div></div><div class="TEXT_CENTER lx_elem" onmousemove="lx_mo(event,6312893)"><div class="lx_elem2"><div class="lx_elem3"><span onclick="lx_sf(6312893)"><img src="/img/cmt.svg" />Предложения по документу</span><span onclick="lx_pa(6312893)"><img src="/img/vlm.svg" />Прослушать аудио</span><span onclick="lx_cl(6312893)"><img src="/img/lnk.svg" />Получить ссылку из элемента документа</span></div></div><div name="6312893" id="6312893">Келишилди:</div></div><div class="SIGNATURE lx_elem" onmousemove="lx_mo(event,6312960)"><div class="lx_elem2"><div class="lx_elem3"><span onclick="lx_sf(6312960)"><img src="/img/cmt.svg" />Предложения по документу</span><span onclick="lx_pa(6312960)"><img src="/img/vlm.svg" />Прослушать аудио</span><span onclick="lx_cl(6312960)"><img src="/img/lnk.svg" />Получить ссылку из элемента документа</span></div></div><div name="6312960" id="6312960">«Тошшаҳартрансхизмат» АЖ бошқаруви раиси А. ДЖУРАЕВ</div></div><div class="ACT_ESSENTIAL_ELEMENTS lx_elem" onmousemove="lx_mo(event,6312961)"><div class="lx_elem2"><div class="lx_elem3"><span onclick="lx_sf(6312961)"><img src="/img/cmt.svg" />Предложения по документу</span><span onclick="lx_pa(6312961)"><img src="/img/vlm.svg" />Прослушать аудио</span><span onclick="lx_cl(6312961)"><img src="/img/lnk.svg" />Получить ссылку из элемента документа</span></div></div><div name="6312961" id="6312961"></div></div><div class="ACT_ESSENTIAL_ELEMENTS lx_elem" onmousemove="lx_mo(event,6312962)"><div class="lx_elem2"><div class="lx_elem3"><span onclick="lx_sf(6312962)"><img src="/img/cmt.svg" />Предложения по документу</span><span onclick="lx_pa(6312962)"><img src="/img/vlm.svg" />Прослушать аудио</span><span onclick="lx_cl(6312962)"><img src="/img/lnk.svg" />Получить ссылку из элемента документа</span></div></div><div name="6312962" id="6312962">2022 йил 20 октябрь</div></div><div class="SIGNATURE lx_elem" onmousemove="lx_mo(event,6312963)"><div class="lx_elem2"><div class="lx_elem3"><span onclick="lx_sf(6312963)"><img src="/img/cmt.svg" />Предложения по документу</span><span onclick="lx_pa(6312963)"><img src="/img/vlm.svg" />Прослушать аудио</span><span onclick="lx_cl(6312963)"><img src="/img/lnk.svg" />Получить ссылку из элемента документа</span></div></div><div name="6312963" id="6312963">Транспорт вазири И. МАХКАМОВ</div></div><div class="ACT_ESSENTIAL_ELEMENTS lx_elem" onmousemove="lx_mo(event,6312964)"><div class="lx_elem2"><div class="lx_elem3"><span onclick="lx_sf(6312964)"><img src="/img/cmt.svg" />Предложения по документу</span><span onclick="lx_pa(6312964)"><img src="/img/vlm.svg" />Прослушать аудио</span><span onclick="lx_cl(6312964)"><img src="/img/lnk.svg" />Получить ссылку из элемента документа</span></div></div><div name="6312964" id="6312964"></div></div><div class="ACT_ESSENTIAL_ELEMENTS lx_elem" onmousemove="lx_mo(event,6312965)"><div class="lx_elem2"><div class="lx_elem3"><span onclick="lx_sf(6312965)"><img src="/img/cmt.svg" />Предложения по документу</span><span onclick="lx_pa(6312965)"><img src="/img/vlm.svg" />Прослушать аудио</span><span onclick="lx_cl(6312965)"><img src="/img/lnk.svg" />Получить ссылку из элемента документа</span></div></div><div name="6312965" id="6312965">2022 йил 24 октябрь</div></div><div class="SIGNATURE lx_elem" onmousemove="lx_mo(event,6312966)"><div class="lx_elem2"><div class="lx_elem3"><span onclick="lx_sf(6312966)"><img src="/img/cmt.svg" />Предложения по документу</span><span onclick="lx_pa(6312966)"><img src="/img/vlm.svg" />Прослушать аудио</span><span onclick="lx_cl(6312966)"><img src="/img/lnk.svg" />Получить ссылку из элемента документа</span></div></div><div name="6312966" id="6312966">Фавқулодда вазиятлар вазири А. КУЛДАШЕВ</div></div><div class="ACT_ESSENTIAL_ELEMENTS lx_elem" onmousemove="lx_mo(event,6312967)"><div class="lx_elem2"><div class="lx_elem3"><span onclick="lx_sf(6312967)"><img src="/img/cmt.svg" />Предложения по документу</span><span onclick="lx_pa(6312967)"><img src="/img/vlm.svg" />Прослушать аудио</span><span onclick="lx_cl(6312967)"><img src="/img/lnk.svg" />Получить ссылку из элемента документа</span></div></div><div name="6312967" id="6312967"></div></div><div class="ACT_ESSENTIAL_ELEMENTS lx_elem" onmousemove="lx_mo(event,6312968)"><div class="lx_elem2"><div class="lx_elem3"><span onclick="lx_sf(6312968)"><img src="/img/cmt.svg" />Предложения по документу</span><span onclick="lx_pa(6312968)"><img src="/img/vlm.svg" />Прослушать аудио</span><span onclick="lx_cl(6312968)"><img src="/img/lnk.svg" />Получить ссылку из элемента документа</span></div></div><div name="6312968" id="6312968">2022 йил 25 октябрь</div></div><div class="SIGNATURE lx_elem" onmousemove="lx_mo(event,6312969)"><div class="lx_elem2"><div class="lx_elem3"><span onclick="lx_sf(6312969)"><img src="/img/cmt.svg" />Предложения по документу</span><span onclick="lx_pa(6312969)"><img src="/img/vlm.svg" />Прослушать аудио</span><span onclick="lx_cl(6312969)"><img src="/img/lnk.svg" />Получить ссылку из элемента документа</span></div></div><div name="6312969" id="6312969">Санитария-эпидемиологик осойишталик ва жамоат саломатлиги хизмати бошлиғи Б. ЮСУПАЛИЕВ</div></div><div class="ACT_ESSENTIAL_ELEMENTS lx_elem" onmousemove="lx_mo(event,6312970)"><div class="lx_elem2"><div class="lx_elem3"><span onclick="lx_sf(6312970)"><img src="/img/cmt.svg" />Предложения по документу</span><span onclick="lx_pa(6312970)"><img src="/img/vlm.svg" />Прослушать аудио</span><span onclick="lx_cl(6312970)"><img src="/img/lnk.svg" />Получить ссылку из элемента документа</span></div></div><div name="6312970" id="6312970"></div></div><div class="ACT_ESSENTIAL_ELEMENTS lx_elem" onmousemove="lx_mo(event,6312971)"><div class="lx_elem2"><div class="lx_elem3"><span onclick="lx_sf(6312971)"><img src="/img/cmt.svg" />Предложения по документу</span><span onclick="lx_pa(6312971)"><img src="/img/vlm.svg" />Прослушать аудио</span><span onclick="lx_cl(6312971)"><img src="/img/lnk.svg" />Получить ссылку из элемента документа</span></div></div><div name="6312971" id="6312971">2022 йил 14 сентябрь</div></div><div class="SIGNATURE lx_elem" onmousemove="lx_mo(event,6312972)"><div class="lx_elem2"><div class="lx_elem3"><span onclick="lx_sf(6312972)"><img src="/img/cmt.svg" />Предложения по документу</span><span onclick="lx_pa(6312972)"><img src="/img/vlm.svg" />Прослушать аудио</span><span onclick="lx_cl(6312972)"><img src="/img/lnk.svg" />Получить ссылку из элемента документа</span></div></div><div name="6312972" id="6312972">Тиббий-ижтимоий хизматларни ривожлантириш агентлиги директори А. ИНАКОВ</div></div><div class="ACT_ESSENTIAL_ELEMENTS lx_elem" onmousemove="lx_mo(event,6312973)"><div class="lx_elem2"><div class="lx_elem3"><span onclick="lx_sf(6312973)"><img src="/img/cmt.svg" />Предложения по документу</span><span onclick="lx_pa(6312973)"><img src="/img/vlm.svg" />Прослушать аудио</span><span onclick="lx_cl(6312973)"><img src="/img/lnk.svg" />Получить ссылку из элемента документа</span></div></div><div name="6312973" id="6312973"></div></div><div class="ACT_ESSENTIAL_ELEMENTS lx_elem" onmousemove="lx_mo(event,6312974)"><div class="lx_elem2"><div class="lx_elem3"><span onclick="lx_sf(6312974)"><img src="/img/cmt.svg" />Предложения по документу</span><span onclick="lx_pa(6312974)"><img src="/img/vlm.svg" />Прослушать аудио</span><span onclick="lx_cl(6312974)"><img src="/img/lnk.svg" />Получить ссылку из элемента документа</span></div></div><div name="6312974" id="6312974">2022 йил 15 сентябрь</div></div><div class="SIGNATURE lx_elem" onmousemove="lx_mo(event,6312975)"><div class="lx_elem2"><div class="lx_elem3"><span onclick="lx_sf(6312975)"><img src="/img/cmt.svg" />Предложения по документу</span><span onclick="lx_pa(6312975)"><img src="/img/vlm.svg" />Прослушать аудио</span><span onclick="lx_cl(6312975)"><img src="/img/lnk.svg" />Получить ссылку из элемента документа</span></div></div><div name="6312975" id="6312975">Олий ва ўрта махсус таълим вазири А. ТОШКУЛОВ</div></div><div class="ACT_ESSENTIAL_ELEMENTS lx_elem" onmousemove="lx_mo(event,6312976)"><div class="lx_elem2"><div class="lx_elem3"><span onclick="lx_sf(6312976)"><img src="/img/cmt.svg" />Предложения по документу</span><span onclick="lx_pa(6312976)"><img src="/img/vlm.svg" />Прослушать аудио</span><span onclick="lx_cl(6312976)"><img src="/img/lnk.svg" />Получить ссылку из элемента документа</span></div></div><div name="6312976" id="6312976"></div></div><div class="ACT_ESSENTIAL_ELEMENTS lx_elem" onmousemove="lx_mo(event,6312977)"><div class="lx_elem2"><div class="lx_elem3"><span onclick="lx_sf(6312977)"><img src="/img/cmt.svg" />Предложения по документу</span><span onclick="lx_pa(6312977)"><img src="/img/vlm.svg" />Прослушать аудио</span><span onclick="lx_cl(6312977)"><img src="/img/lnk.svg" />Получить ссылку из элемента документа</span></div></div><div name="6312977" id="6312977">2022 йил 20 сентябрь</div></div><div class="SIGNATURE lx_elem" onmousemove="lx_mo(event,6312978)"><div class="lx_elem2"><div class="lx_elem3"><span onclick="lx_sf(6312978)"><img src="/img/cmt.svg" />Предложения по документу</span><span onclick="lx_pa(6312978)"><img src="/img/vlm.svg" />Прослушать аудио</span><span onclick="lx_cl(6312978)"><img src="/img/lnk.svg" />Получить ссылку из элемента документа</span></div></div><div name="6312978" id="6312978">Уй-жой ва коммунал хизмат кўрсатиш вазири Ш. ХИДОЯТОВ</div></div><div class="ACT_ESSENTIAL_ELEMENTS lx_elem" onmousemove="lx_mo(event,6312979)"><div class="lx_elem2"><div class="lx_elem3"><span onclick="lx_sf(6312979)"><img src="/img/cmt.svg" />Предложения по документу</span><span onclick="lx_pa(6312979)"><img src="/img/vlm.svg" />Прослушать аудио</span><span onclick="lx_cl(6312979)"><img src="/img/lnk.svg" />Получить ссылку из элемента документа</span></div></div><div name="6312979" id="6312979"></div></div><div class="ACT_ESSENTIAL_ELEMENTS lx_elem" onmousemove="lx_mo(event,6312980)"><div class="lx_elem2"><div class="lx_elem3"><span onclick="lx_sf(6312980)"><img src="/img/cmt.svg" />Предложения по документу</span><span onclick="lx_pa(6312980)"><img src="/img/vlm.svg" />Прослушать аудио</span><span onclick="lx_cl(6312980)"><img src="/img/lnk.svg" />Получить ссылку из элемента документа</span></div></div><div name="6312980" id="6312980">2022 йил 21 сентябрь</div></div><div class="SIGNATURE lx_elem" onmousemove="lx_mo(event,6312981)"><div class="lx_elem2"><div class="lx_elem3"><span onclick="lx_sf(6312981)"><img src="/img/cmt.svg" />Предложения по документу</span><span onclick="lx_pa(6312981)"><img src="/img/vlm.svg" />Прослушать аудио</span><span onclick="lx_cl(6312981)"><img src="/img/lnk.svg" />Получить ссылку из элемента документа</span></div></div><div name="6312981" id="6312981">Спортни ривожлантириш вазири А. ИКРАМОВ</div></div><div class="ACT_ESSENTIAL_ELEMENTS lx_elem" onmousemove="lx_mo(event,6312982)"><div class="lx_elem2"><div class="lx_elem3"><span onclick="lx_sf(6312982)"><img src="/img/cmt.svg" />Предложения по документу</span><span onclick="lx_pa(6312982)"><img src="/img/vlm.svg" />Прослушать аудио</span><span onclick="lx_cl(6312982)"><img src="/img/lnk.svg" />Получить ссылку из элемента документа</span></div></div><div name="6312982" id="6312982"></div></div><div class="ACT_ESSENTIAL_ELEMENTS lx_elem" onmousemove="lx_mo(event,6312983)"><div class="lx_elem2"><div class="lx_elem3"><span onclick="lx_sf(6312983)"><img src="/img/cmt.svg" />Предложения по документу</span><span onclick="lx_pa(6312983)"><img src="/img/vlm.svg" />Прослушать аудио</span><span onclick="lx_cl(6312983)"><img src="/img/lnk.svg" />Получить ссылку из элемента документа</span></div></div><div name="6312983" id="6312983">2022 йил 16 сентябрь</div></div><div class="SIGNATURE lx_elem" onmousemove="lx_mo(event,6312984)"><div class="lx_elem2"><div class="lx_elem3"><span onclick="lx_sf(6312984)"><img src="/img/cmt.svg" />Предложения по документу</span><span onclick="lx_pa(6312984)"><img src="/img/vlm.svg" />Прослушать аудио</span><span onclick="lx_cl(6312984)"><img src="/img/lnk.svg" />Получить ссылку из элемента документа</span></div></div><div name="6312984" id="6312984">Мактабгача таълим вазири А. ШИН</div></div><div class="ACT_ESSENTIAL_ELEMENTS lx_elem" onmousemove="lx_mo(event,6312985)"><div class="lx_elem2"><div class="lx_elem3"><span onclick="lx_sf(6312985)"><img src="/img/cmt.svg" />Предложения по документу</span><span onclick="lx_pa(6312985)"><img src="/img/vlm.svg" />Прослушать аудио</span><span onclick="lx_cl(6312985)"><img src="/img/lnk.svg" />Получить ссылку из элемента документа</span></div></div><div name="6312985" id="6312985"></div></div><div class="ACT_ESSENTIAL_ELEMENTS lx_elem" onmousemove="lx_mo(event,6312986)"><div class="lx_elem2"><div class="lx_elem3"><span onclick="lx_sf(6312986)"><img src="/img/cmt.svg" />Предложения по документу</span><span onclick="lx_pa(6312986)"><img src="/img/vlm.svg" />Прослушать аудио</span><span onclick="lx_cl(6312986)"><img src="/img/lnk.svg" />Получить ссылку из элемента документа</span></div></div><div name="6312986" id="6312986">2022 йил 14 октябрь</div></div><div class="SIGNATURE lx_elem" onmousemove="lx_mo(event,6312987)"><div class="lx_elem2"><div class="lx_elem3"><span onclick="lx_sf(6312987)"><img src="/img/cmt.svg" />Предложения по документу</span><span onclick="lx_pa(6312987)"><img src="/img/vlm.svg" />Прослушать аудио</span><span onclick="lx_cl(6312987)"><img src="/img/lnk.svg" />Получить ссылку из элемента документа</span></div></div><div name="6312987" id="6312987">Халқ таълим вазири Б. САИДОВ</div></div><div class="ACT_ESSENTIAL_ELEMENTS lx_elem" onmousemove="lx_mo(event,6312988)"><div class="lx_elem2"><div class="lx_elem3"><span onclick="lx_sf(6312988)"><img src="/img/cmt.svg" />Предложения по документу</span><span onclick="lx_pa(6312988)"><img src="/img/vlm.svg" />Прослушать аудио</span><span onclick="lx_cl(6312988)"><img src="/img/lnk.svg" />Получить ссылку из элемента документа</span></div></div><div name="6312988" id="6312988"></div></div><div class="ACT_ESSENTIAL_ELEMENTS lx_elem" onmousemove="lx_mo(event,6312989)"><div class="lx_elem2"><div class="lx_elem3"><span onclick="lx_sf(6312989)"><img src="/img/cmt.svg" />Предложения по документу</span><span onclick="lx_pa(6312989)"><img src="/img/vlm.svg" />Прослушать аудио</span><span onclick="lx_cl(6312989)"><img src="/img/lnk.svg" />Получить ссылку из элемента документа</span></div></div><div name="6312989" id="6312989">2022 йил 23 сентябрь</div></div><div class="BY_DEFAULT lx_elem" onmousemove="lx_mo(event,6311477)"><div class="lx_elem2"><div class="lx_elem3"><span onclick="lx_sf(6311477)"><img src="/img/cmt.svg" />Предложения по документу</span><span onclick="lx_pa(6311477)"><img src="/img/vlm.svg" />Прослушать аудио</span><span onclick="lx_cl(6311477)"><img src="/img/lnk.svg" />Получить ссылку из элемента документа</span></div></div><div name="6311477" id="6311477"></div></div><div class="APPL_BANNER_LANDSCAPE_TITLE lx_elem" onmousemove="lx_mo(event,6311478)"><div class="lx_elem2"><div class="lx_elem3"><span onclick="lx_sf(6311478)"><img src="/img/cmt.svg" />Предложения по документу</span><span onclick="lx_pa(6311478)"><img src="/img/vlm.svg" />Прослушать аудио</span><span onclick="lx_cl(6311478)"><img src="/img/lnk.svg" />Получить ссылку из элемента документа</span></div></div><div name="6311478" id="6311478">Ўзбекистон Республикаси қурилиш вазирининг 2022 йил 26 октябрдаги 185-сон <a href="/ru/docs/6311402">буйруғига</a><br />ИЛОВА</div></div><div class="ACT_TITLE_APPL lx_elem" onmousemove="lx_mo(event,6311479)"><div class="lx_elem2"><div class="lx_elem3"><span onclick="lx_sf(6311479)"><img src="/img/cmt.svg" />Предложения по документу</span><span onclick="lx_pa(6311479)"><img src="/img/vlm.svg" />Прослушать аудио</span><span onclick="lx_cl(6311479)"><img src="/img/lnk.svg" />Получить ссылку из элемента документа</span></div></div><div name="6311479" id="6311479">ШНҚ 2.07.02-22 «Қурилиш объектларини ногиронлиги бўлган шахслар ҳамда кексалар эҳтиёжини инобатга олган ҳолда лойиҳалаштириш» шаҳарсозлик нормалари ва қоидалари</div></div><div class="BY_DEFAULT lx_elem" onmousemove="lx_mo(event,6311480)"><div class="lx_elem2"><div class="lx_elem3"><span onclick="lx_sf(6311480)"><img src="/img/cmt.svg" />Предложения по документу</span><span onclick="lx_pa(6311480)"><img src="/img/vlm.svg" />Прослушать аудио</span><span onclick="lx_cl(6311480)"><img src="/img/lnk.svg" />Получить ссылку из элемента документа</span></div></div><div name="6311480" id="6311480"></div></div><div class="ACT_TEXT lx_elem" onmousemove="lx_mo(event,6311481)"><div class="lx_elem2"><div class="lx_elem3"><span onclick="lx_sf(6311481)"><img src="/img/cmt.svg" />Предложения по документу</span><span onclick="lx_pa(6311481)"><img src="/img/vlm.svg" />Прослушать аудио</span><span onclick="lx_cl(6311481)"><img src="/img/lnk.svg" />Получить ссылку из элемента документа</span></div></div><div name="6311481" id="6311481">Мазкур шаҳарсозлик нормалари ва қоидалари (бундан буён матнда ШНҚ деб юритилади) қурилиш объектларини ногиронлиги бўлган шахслар ҳамда кексалар эҳтиёжини инобатга олган ҳолда лойиҳалаш тартибини белгилайди.</div></div><div class="TEXT_HEADER_DEFAULT lx_elem" onmousemove="lx_mo(event,6311482)"><div class="lx_elem2"><div class="lx_elem3"><span onclick="lx_sf(6311482)"><img src="/img/cmt.svg" />Предложения по документу</span><span onclick="lx_pa(6311482)"><img src="/img/vlm.svg" />Прослушать аудио</span><span onclick="lx_cl(6311482)"><img src="/img/lnk.svg" />Получить ссылку из элемента документа</span></div></div><div name="6311482" id="6311482">1-боб. Техник жиҳатдан тартибга солиш соҳасидаги норматив ҳужжатларга ҳаволалар</div></div><div class="ACT_TEXT lx_elem" onmousemove="lx_mo(event,6311483)"><div class="lx_elem2"><div class="lx_elem3"><span onclick="lx_sf(6311483)"><img src="/img/cmt.svg" />Предложения по документу</span><span onclick="lx_pa(6311483)"><img src="/img/vlm.svg" />Прослушать аудио</span><span onclick="lx_cl(6311483)"><img src="/img/lnk.svg" />Получить ссылку из элемента документа</span></div></div><div name="6311483" id="6311483">1. Ушбу ШНҚда қуйидаги техник жиҳатдан тартибга солиш соҳасидаги норматив ҳужжатларга ҳаволалар келтирилган:</div></div><div class="ACT_TEXT lx_elem" onmousemove="lx_mo(event,6311484)"><div class="lx_elem2"><div class="lx_elem3"><span onclick="lx_sf(6311484)"><img src="/img/cmt.svg" />Предложения по документу</span><span onclick="lx_pa(6311484)"><img src="/img/vlm.svg" />Прослушать аудио</span><span onclick="lx_cl(6311484)"><img src="/img/lnk.svg" />Получить ссылку из элемента документа</span></div></div><div name="6311484" id="6311484">ШНҚ 1.03.01 «Корхона, бино ва иншоотларни капитал қурилиши лойиҳа-смета ҳужжатларининг таркиби, ишлаб чиқилиши, маъқулланиши ва тасдиқланиши тартиби»;</div></div><div class="ACT_TEXT lx_elem" onmousemove="lx_mo(event,6311485)"><div class="lx_elem2"><div class="lx_elem3"><span onclick="lx_sf(6311485)"><img src="/img/cmt.svg" />Предложения по документу</span><span onclick="lx_pa(6311485)"><img src="/img/vlm.svg" />Прослушать аудио</span><span onclick="lx_cl(6311485)"><img src="/img/lnk.svg" />Получить ссылку из элемента документа</span></div></div><div name="6311485" id="6311485">ШНҚ 2.01.02 «Бинолар ва иншоотларнинг ёнғин хавфсизлиги»;</div></div><div class="ACT_TEXT lx_elem" onmousemove="lx_mo(event,6311486)"><div class="lx_elem2"><div class="lx_elem3"><span onclick="lx_sf(6311486)"><img src="/img/cmt.svg" />Предложения по документу</span><span onclick="lx_pa(6311486)"><img src="/img/vlm.svg" />Прослушать аудио</span><span onclick="lx_cl(6311486)"><img src="/img/lnk.svg" />Получить ссылку из элемента документа</span></div></div><div name="6311486" id="6311486">ҚМҚ 2.01.08 «<a href="/ru/docs/4439714">Шовқиндан ҳимоя</a>»;</div></div><div class="ACT_TEXT lx_elem" onmousemove="lx_mo(event,6311487)"><div class="lx_elem2"><div class="lx_elem3"><span onclick="lx_sf(6311487)"><img src="/img/cmt.svg" />Предложения по документу</span><span onclick="lx_pa(6311487)"><img src="/img/vlm.svg" />Прослушать аудио</span><span onclick="lx_cl(6311487)"><img src="/img/lnk.svg" />Получить ссылку из элемента документа</span></div></div><div name="6311487" id="6311487">ШНҚ 2.04.09 «Бино ва иншоотларнинг ёнғин автоматикаси»;</div></div><div class="ACT_TEXT lx_elem" onmousemove="lx_mo(event,6311488)"><div class="lx_elem2"><div class="lx_elem3"><span onclick="lx_sf(6311488)"><img src="/img/cmt.svg" />Предложения по документу</span><span onclick="lx_pa(6311488)"><img src="/img/vlm.svg" />Прослушать аудио</span><span onclick="lx_cl(6311488)"><img src="/img/lnk.svg" />Получить ссылку из элемента документа</span></div></div><div name="6311488" id="6311488">ШНҚ 2.07.01 «<a href="/ru/docs/4444163">Шаҳарсозлик. Шаҳар ва қишлоқ аҳоли пунктлари ҳудудларини ривожлантириш ва қурилишини режалаштириш</a>»;</div></div><div class="ACT_TEXT lx_elem" onmousemove="lx_mo(event,6311489)"><div class="lx_elem2"><div class="lx_elem3"><span onclick="lx_sf(6311489)"><img src="/img/cmt.svg" />Предложения по документу</span><span onclick="lx_pa(6311489)"><img src="/img/vlm.svg" />Прослушать аудио</span><span onclick="lx_cl(6311489)"><img src="/img/lnk.svg" />Получить ссылку из элемента документа</span></div></div><div name="6311489" id="6311489">ШНҚ 2.08.01 «Турар жой бинолари»;</div></div><div class="ACT_TEXT lx_elem" onmousemove="lx_mo(event,6311490)"><div class="lx_elem2"><div class="lx_elem3"><span onclick="lx_sf(6311490)"><img src="/img/cmt.svg" />Предложения по документу</span><span onclick="lx_pa(6311490)"><img src="/img/vlm.svg" />Прослушать аудио</span><span onclick="lx_cl(6311490)"><img src="/img/lnk.svg" />Получить ссылку из элемента документа</span></div></div><div name="6311490" id="6311490">ШНҚ 2.08.02 «<a href="/ru/docs/4444291">Жамоат бинолари ва иншоотлари</a>»;</div></div><div class="ACT_TEXT lx_elem" onmousemove="lx_mo(event,6311492)"><div class="lx_elem2"><div class="lx_elem3"><span onclick="lx_sf(6311492)"><img src="/img/cmt.svg" />Предложения по документу</span><span onclick="lx_pa(6311492)"><img src="/img/vlm.svg" />Прослушать аудио</span><span onclick="lx_cl(6311492)"><img src="/img/lnk.svg" />Получить ссылку из элемента документа</span></div></div><div name="6311492" id="6311492">ШНҚ 2.08.04 «<a href="/ru/docs/4444211">Маъмурий бинолар</a>»;</div></div><div class="ACT_TEXT lx_elem" onmousemove="lx_mo(event,6311493)"><div class="lx_elem2"><div class="lx_elem3"><span onclick="lx_sf(6311493)"><img src="/img/cmt.svg" />Предложения по документу</span><span onclick="lx_pa(6311493)"><img src="/img/vlm.svg" />Прослушать аудио</span><span onclick="lx_cl(6311493)"><img src="/img/lnk.svg" />Получить ссылку из элемента документа</span></div></div><div name="6311493" id="6311493">Oʻz DSt 950 — Ичимлик суви: гигиеник талаблар ва сифатини назорат қилиш.</div></div><div class="TEXT_HEADER_DEFAULT lx_elem" onmousemove="lx_mo(event,6311494)"><div class="lx_elem2"><div class="lx_elem3"><span onclick="lx_sf(6311494)"><img src="/img/cmt.svg" />Предложения по документу</span><span onclick="lx_pa(6311494)"><img src="/img/vlm.svg" />Прослушать аудио</span><span onclick="lx_cl(6311494)"><img src="/img/lnk.svg" />Получить ссылку из элемента документа</span></div></div><div name="6311494" id="6311494">2-боб. Атамалар ва таърифлар</div></div><div class="ACT_TEXT lx_elem" onmousemove="lx_mo(event,6311495)"><div class="lx_elem2"><div class="lx_elem3"><span onclick="lx_sf(6311495)"><img src="/img/cmt.svg" />Предложения по документу</span><span onclick="lx_pa(6311495)"><img src="/img/vlm.svg" />Прослушать аудио</span><span onclick="lx_cl(6311495)"><img src="/img/lnk.svg" />Получить ссылку из элемента документа</span></div></div><div name="6311495" id="6311495">2. Ушбу ШНҚда қуйидаги атамалар ва уларнинг таърифлари қўлланилган:</div></div><div class="ACT_TEXT lx_elem" onmousemove="lx_mo(event,6311496)"><div class="lx_elem2"><div class="lx_elem3"><span onclick="lx_sf(6311496)"><img src="/img/cmt.svg" />Предложения по документу</span><span onclick="lx_pa(6311496)"><img src="/img/vlm.svg" />Прослушать аудио</span><span onclick="lx_cl(6311496)"><img src="/img/lnk.svg" />Получить ссылку из элемента документа</span></div></div><div name="6311496" id="6311496"><strong>антропометрик параметрлар</strong> — инсонларнинг ҳаёти ва фаолияти муҳитини лойиҳалаш учун асос бўладиган инсон танаси ва унинг қисмларининг параметрлари;</div></div><div class="ACT_TEXT lx_elem" onmousemove="lx_mo(event,6311497)"><div class="lx_elem2"><div class="lx_elem3"><span onclick="lx_sf(6311497)"><img src="/img/cmt.svg" />Предложения по документу</span><span onclick="lx_pa(6311497)"><img src="/img/vlm.svg" />Прослушать аудио</span><span onclick="lx_cl(6311497)"><img src="/img/lnk.svg" />Получить ссылку из элемента документа</span></div></div><div name="6311497" id="6311497"><strong>ахборот воситалари</strong> — ногиронлиги бўлган шахслар ҳамда кексаларга мўлжал олишни таъминлайдиган, уларнинг ҳаракатланиш хавфсизлиги ва қулайлигига ёрдам берадиган, огоҳлантирувчи хусусиятга эга бўлган ахборот ташувчи воситалар;</div></div><div class="ACT_TEXT lx_elem" onmousemove="lx_mo(event,6311498)"><div class="lx_elem2"><div class="lx_elem3"><span onclick="lx_sf(6311498)"><img src="/img/cmt.svg" />Предложения по документу</span><span onclick="lx_pa(6311498)"><img src="/img/vlm.svg" />Прослушать аудио</span><span onclick="lx_cl(6311498)"><img src="/img/lnk.svg" />Получить ссылку из элемента документа</span></div></div><div name="6311498" id="6311498"><strong>борт</strong> — пандус ёки зина юриш қисмининг чети бўйлаб жойлаштириладиган, шунингдек одам оёғи ёки техник восита (масалан, ўриндиқли аравача, роллатор, болалар аравачаси) ғилдиракларининг пандус ёки зина юриш қисми габаритларидан ташқарига чиқиб кетишига тўсқинлик қиладиган пандус ёки зина конструкциясининг элементи;</div></div><div class="ACT_TEXT lx_elem" onmousemove="lx_mo(event,6311499)"><div class="lx_elem2"><div class="lx_elem3"><span onclick="lx_sf(6311499)"><img src="/img/cmt.svg" />Предложения по документу</span><span onclick="lx_pa(6311499)"><img src="/img/vlm.svg" />Прослушать аудио</span><span onclick="lx_cl(6311499)"><img src="/img/lnk.svg" />Получить ссылку из элемента документа</span></div></div><div name="6311499" id="6311499"><strong>ногиронлиги бўлган шахс</strong> — ижтимоий ёрдам ва ҳимояга, жамият ва давлатнинг сиёсий, иқтисодий, ижтимоий ҳаётида бошқалар билан бирга тенг тўлиқ ва самарали иштирок этиш учун шарт-шароитлар яратилишига муҳтож барқарор жисмоний, ақлий, сенсор (сезги) ёки руҳий нуқсонлари бўлган шахс;</div></div><div class="ACT_TEXT lx_elem" onmousemove="lx_mo(event,6311500)"><div class="lx_elem2"><div class="lx_elem3"><span onclick="lx_sf(6311500)"><img src="/img/cmt.svg" />Предложения по документу</span><span onclick="lx_pa(6311500)"><img src="/img/vlm.svg" />Прослушать аудио</span><span onclick="lx_cl(6311500)"><img src="/img/lnk.svg" />Получить ссылку из элемента документа</span></div></div><div name="6311500" id="6311500"><strong>текстофон</strong> — матнли режимда эшитишда нуқсони бўлган шахс билан телефон орқали мулоқотни олиб бориш учун мўлжалланган ҳамда клавиатура ва дисплей билан таъминланган аппарат;</div></div><div class="ACT_TEXT lx_elem" onmousemove="lx_mo(event,6311501)"><div class="lx_elem2"><div class="lx_elem3"><span onclick="lx_sf(6311501)"><img src="/img/cmt.svg" />Предложения по документу</span><span onclick="lx_pa(6311501)"><img src="/img/vlm.svg" />Прослушать аудио</span><span onclick="lx_cl(6311501)"><img src="/img/lnk.svg" />Получить ссылку из элемента документа</span></div></div><div name="6311501" id="6311501"><strong>пандус</strong> — бино ва иншоотларнинг ички ва ташқи қисмида жойлашган ва вертикал ҳаракатланиш учун мослаштирилган қия текислик;</div></div><div class="ACT_TEXT lx_elem" onmousemove="lx_mo(event,6311502)"><div class="lx_elem2"><div class="lx_elem3"><span onclick="lx_sf(6311502)"><img src="/img/cmt.svg" />Предложения по документу</span><span onclick="lx_pa(6311502)"><img src="/img/vlm.svg" />Прослушать аудио</span><span onclick="lx_cl(6311502)"><img src="/img/lnk.svg" />Получить ссылку из элемента документа</span></div></div><div name="6311502" id="6311502"><strong>хавфсизлик оролчаси</strong> — ҳаракатланиш тасмаларини (шу жумладан велосипедчилар тасмаларини) ажратувчи, конструкциясига кўра қатнов қисми устига бордюр тошлари билан кўтарилган ёки ҳаракатни ташкил этиш техник воситалари билан белгиланган қатнов қисмидан ўтаётган пиёдалар, талаб қилинган ҳолда тўхтаб ўтишлари учун мўлжалланган йўл қурилмаси;</div></div><div class="ACT_TEXT lx_elem" onmousemove="lx_mo(event,6311503)"><div class="lx_elem2"><div class="lx_elem3"><span onclick="lx_sf(6311503)"><img src="/img/cmt.svg" />Предложения по документу</span><span onclick="lx_pa(6311503)"><img src="/img/vlm.svg" />Прослушать аудио</span><span onclick="lx_cl(6311503)"><img src="/img/lnk.svg" />Получить ссылку из элемента документа</span></div></div><div name="6311503" id="6311503"><strong>тамбур</strong> — ташқаридан хона ичига совуқ ҳаво оқимининг киришига тўсқинлик қилувчи ташқи ва ички эшикларга эга бўлган ҳамда бинога кириш учун мўлжалланган ўтиш жойи (хонаси).</div></div><div class="TEXT_HEADER_DEFAULT lx_elem" onmousemove="lx_mo(event,6311515)"><div class="lx_elem2"><div class="lx_elem3"><span onclick="lx_sf(6311515)"><img src="/img/cmt.svg" />Предложения по документу</span><span onclick="lx_pa(6311515)"><img src="/img/vlm.svg" />Прослушать аудио</span><span onclick="lx_cl(6311515)"><img src="/img/lnk.svg" />Получить ссылку из элемента документа</span></div></div><div name="6311515" id="6311515">3-боб. Умумий қоидалар</div></div><div class="ACT_TEXT lx_elem" onmousemove="lx_mo(event,6311516)"><div class="lx_elem2"><div class="lx_elem3"><span onclick="lx_sf(6311516)"><img src="/img/cmt.svg" />Предложения по документу</span><span onclick="lx_pa(6311516)"><img src="/img/vlm.svg" />Прослушать аудио</span><span onclick="lx_cl(6311516)"><img src="/img/lnk.svg" />Получить ссылку из элемента документа</span></div></div><div name="6311516" id="6311516">3. Ногиронлиги бўлган шахслар ҳамда кексалар учун қурилиш объектлари ушбу ШНҚ билан бир вақтда ШНҚ 1.03.01, ШНҚ 2.01.02, <a href="/ru/docs/4439714">ҚМҚ 2.01.08</a>, ШНҚ 2.04.09, ШНҚ 2.07.01, ШНҚ 2.08.01, <a href="/ru/docs/4444291">ШНҚ 2.08.02</a> ҳамда <a href="/ru/docs/4444211">ШНҚ 2.08.04</a> талабларини ҳисобга олган ҳолда, лойиҳалаштириш топшириғига асосан лойиҳаланиши лозим.</div></div><div class="ACT_TEXT lx_elem" onmousemove="lx_mo(event,6311517)"><div class="lx_elem2"><div class="lx_elem3"><span onclick="lx_sf(6311517)"><img src="/img/cmt.svg" />Предложения по документу</span><span onclick="lx_pa(6311517)"><img src="/img/vlm.svg" />Прослушать аудио</span><span onclick="lx_cl(6311517)"><img src="/img/lnk.svg" />Получить ссылку из элемента документа</span></div></div><div name="6311517" id="6311517">4. Қурилиш объектларини лойиҳалаштиришда ногиронлиги бўлган шахсларнинг антропометрик параметрлари ҳамда ўриндиқли аравачанинг габаритлари мазкур ШНҚнинг <a href="/ru/docs/6311402#6312078">1 </a>ва <a href="/ru/docs/6311402#6312098">2-иловаларига </a>мувофиқ инобатга олиниши лозим.</div></div><div class="TEXT_HEADER_DEFAULT lx_elem" onmousemove="lx_mo(event,6311519)"><div class="lx_elem2"><div class="lx_elem3"><span onclick="lx_sf(6311519)"><img src="/img/cmt.svg" />Предложения по документу</span><span onclick="lx_pa(6311519)"><img src="/img/vlm.svg" />Прослушать аудио</span><span onclick="lx_cl(6311519)"><img src="/img/lnk.svg" />Получить ссылку из элемента документа</span></div></div><div name="6311519" id="6311519">4-боб. Шаҳарсозлик талаблари</div></div><div class="TEXT_HEADER_DEFAULT lx_elem" onmousemove="lx_mo(event,6311520)"><div class="lx_elem2"><div class="lx_elem3"><span onclick="lx_sf(6311520)"><img src="/img/cmt.svg" />Предложения по документу</span><span onclick="lx_pa(6311520)"><img src="/img/vlm.svg" />Прослушать аудио</span><span onclick="lx_cl(6311520)"><img src="/img/lnk.svg" />Получить ссылку из элемента документа</span></div></div><div name="6311520" id="6311520">1-§. Ногиронлиги бўлган шахслар ҳамда кексалар эҳтиёжини инобатга олган ҳолда турар жойлар ва жамоат ҳудудлари, ҳаракат йўллари ва дам олиш зоналарини лойиҳалашга қўйиладиган талаблар</div></div><div class="ACT_TEXT lx_elem" onmousemove="lx_mo(event,6311521)"><div class="lx_elem2"><div class="lx_elem3"><span onclick="lx_sf(6311521)"><img src="/img/cmt.svg" />Предложения по документу</span><span onclick="lx_pa(6311521)"><img src="/img/vlm.svg" />Прослушать аудио</span><span onclick="lx_cl(6311521)"><img src="/img/lnk.svg" />Получить ссылку из элемента документа</span></div></div><div name="6311521" id="6311521">5. Ногиронлиги бўлган шахслар ҳамда кексалар учун шаҳар ва қишлоқ ҳудудларида транспорт ва пиёдалар йўлкаларининг параметрлари ва қурилишига оид талаблар мазкур ШНҚ ҳамда <a href="/ru/docs/4444163">ШНҚ 2.07.01 </a>талабларига мувофиқ лойиҳалаштирилади.</div></div><div class="ACT_TEXT lx_elem" onmousemove="lx_mo(event,6311522)"><div class="lx_elem2"><div class="lx_elem3"><span onclick="lx_sf(6311522)"><img src="/img/cmt.svg" />Предложения по документу</span><span onclick="lx_pa(6311522)"><img src="/img/vlm.svg" />Прослушать аудио</span><span onclick="lx_cl(6311522)"><img src="/img/lnk.svg" />Получить ссылку из элемента документа</span></div></div><div name="6311522" id="6311522">Ногиронлиги бўлган шахслар ҳамда кексалар эҳтиёжини инобатга олган ҳолда турар жойлар ва жамоат ҳудудларини лойиҳалашда ортиқча қуёш радиацияси ва чанг-тўзонли шамоллардан ҳимояланиш талабларига комплекс риоя қилишни, шунингдек транспорт бекатлари, хизмат кўрсатиш объектлари ва автомобиль тўхташ жойларига қулай етиб бориш учун пиёдалар йўлкаларининг энг қисқа йўналишларини рационал ташкил этишни назарда тутиш керак.</div></div><div class="ACT_TEXT lx_elem" onmousemove="lx_mo(event,6311523)"><div class="lx_elem2"><div class="lx_elem3"><span onclick="lx_sf(6311523)"><img src="/img/cmt.svg" />Предложения по документу</span><span onclick="lx_pa(6311523)"><img src="/img/vlm.svg" />Прослушать аудио</span><span onclick="lx_cl(6311523)"><img src="/img/lnk.svg" />Получить ссылку из элемента документа</span></div></div><div name="6311523" id="6311523">6. Пиёдалар йўлкалари қурилиш объекти ҳудудининг ташқи йўлкалари (транспорт йўли ва пиёдалар ўтиш жойи), шунингдек жамоат транспорти бекатлари билан узлуксиз боғланиши лозим.</div></div><div class="ACT_TEXT lx_elem" onmousemove="lx_mo(event,6311524)"><div class="lx_elem2"><div class="lx_elem3"><span onclick="lx_sf(6311524)"><img src="/img/cmt.svg" />Предложения по документу</span><span onclick="lx_pa(6311524)"><img src="/img/vlm.svg" />Прослушать аудио</span><span onclick="lx_cl(6311524)"><img src="/img/lnk.svg" />Получить ссылку из элемента документа</span></div></div><div name="6311524" id="6311524">7. Кўзи ожизларни йўллардаги мавжуд хавфли зоналарга (масалан, алоҳида турувчи устунлар, дарахтлар, зиналар, пиёдалар ўтиш жойларига) яқинлашганлиги тўғрисида огоҳлантириш учун йўл қопламалари тактил ва контраст рангли белгиларга эга бўлиши лозим. Шунингдек, кўчалардаги пиёдалар йўлкаларида, ер ости ва ер усти пиёдалар ўтиш жойларининг ҳаракатланиш йўлакларида, жамоат биноларининг ҳамда кўзи ожизлар учун ихтисослаштирилган таълим муассасаларининг ички ва ташқи ҳаракатланиш йўлакларида, шунингдек зиналар ва пандуслар олдида қулайликлар яратиш мақсадида огоҳлантирувчи ва йўналтирувчи контраст рангли махсус тактил йўл қопламалари ётқизилиши лозим.</div></div><div class="ACT_TEXT lx_elem" onmousemove="lx_mo(event,6311525)"><div class="lx_elem2"><div class="lx_elem3"><span onclick="lx_sf(6311525)"><img src="/img/cmt.svg" />Предложения по документу</span><span onclick="lx_pa(6311525)"><img src="/img/vlm.svg" />Прослушать аудио</span><span onclick="lx_cl(6311525)"><img src="/img/lnk.svg" />Получить ссылку из элемента документа</span></div></div><div name="6311525" id="6311525">Тактил йўл белгиларининг турлари мазкур ШНҚнинг <a href="/ru/docs/6311402#6312169">3 </a>ва <a href="/ru/docs/6311402#6312178">4-иловаларида </a>назарда тутилган.</div></div><div class="ACT_TEXT lx_elem" onmousemove="lx_mo(event,6311526)"><div class="lx_elem2"><div class="lx_elem3"><span onclick="lx_sf(6311526)"><img src="/img/cmt.svg" />Предложения по документу</span><span onclick="lx_pa(6311526)"><img src="/img/vlm.svg" />Прослушать аудио</span><span onclick="lx_cl(6311526)"><img src="/img/lnk.svg" />Получить ссылку из элемента документа</span></div></div><div name="6311526" id="6311526">8. Ногиронлиги бўлган шахслар ҳамда кексаларнинг кўп квартирали уйлари қулай экологик шароитларда (шовқиндан ва табиий муҳит ифлосланишининг зарарли таъсиридан холи) бўлиши, шунингдек жамоат транспорти бекатлари ва ижтимоий инфратузилма шаҳобчаларига (масалан, дам олиш ва жисмоний тарбия машғулотлари учун майдонча, болалар учун ўйин майдончаси) қулай етиб боришни ҳисобга олган ҳолда оралиқ масофа 150 — 200 m дан ошмаслиги лозим.</div></div><div class="ACT_TEXT lx_elem" onmousemove="lx_mo(event,6311527)"><div class="lx_elem2"><div class="lx_elem3"><span onclick="lx_sf(6311527)"><img src="/img/cmt.svg" />Предложения по документу</span><span onclick="lx_pa(6311527)"><img src="/img/vlm.svg" />Прослушать аудио</span><span onclick="lx_cl(6311527)"><img src="/img/lnk.svg" />Получить ссылку из элемента документа</span></div></div><div name="6311527" id="6311527">9. Эшитишда нуқсони бўлган болалар учун ихтисослаштирилган таълим муассасалари бинолари яқинидаги шовқин даражаси 60 dB дан ошмаслиги лозим.</div></div><div class="ACT_TEXT lx_elem" onmousemove="lx_mo(event,6311528)"><div class="lx_elem2"><div class="lx_elem3"><span onclick="lx_sf(6311528)"><img src="/img/cmt.svg" />Предложения по документу</span><span onclick="lx_pa(6311528)"><img src="/img/vlm.svg" />Прослушать аудио</span><span onclick="lx_cl(6311528)"><img src="/img/lnk.svg" />Получить ссылку из элемента документа</span></div></div><div name="6311528" id="6311528">Ногиронлиги бўлган болалар учун бошқа ихтисослаштирилган таълим муассасаларида (бундан буён матнда ихтисослаштирилган таълим муассасалари деб юритилади) шовқин даражаси амалдаги <a href="/ru/docs/4439714">ҚМҚ 2.01.08га </a>мувофиқ қабул қилинади.</div></div><div class="ACT_TEXT lx_elem" onmousemove="lx_mo(event,6311529)"><div class="lx_elem2"><div class="lx_elem3"><span onclick="lx_sf(6311529)"><img src="/img/cmt.svg" />Предложения по документу</span><span onclick="lx_pa(6311529)"><img src="/img/vlm.svg" />Прослушать аудио</span><span onclick="lx_cl(6311529)"><img src="/img/lnk.svg" />Получить ссылку из элемента документа</span></div></div><div name="6311529" id="6311529">10. Қурилиш объектлари атрофидаги тротуарлар кенглиги 1,5 m дан кам бўлмаслиги, бино ва иншоотлар ички йўлаклари, қарама-қарши йўналишли йўлларда ўриндиқли аравачадаги ногиронлиги бўлган шахс ҳаракатланиши учун йўлнинг кенглиги камида 1,5 m бўлиши керак. Бино ички ҳаракатланиш йўлакларининг тавсиявий кенглиги мазкур ШНҚ нинг <a href="/ru/docs/6311402#6312183">5-иловасида </a>келтирилган.</div></div><div class="ACT_TEXT lx_elem" onmousemove="lx_mo(event,6311530)"><div class="lx_elem2"><div class="lx_elem3"><span onclick="lx_sf(6311530)"><img src="/img/cmt.svg" />Предложения по документу</span><span onclick="lx_pa(6311530)"><img src="/img/vlm.svg" />Прослушать аудио</span><span onclick="lx_cl(6311530)"><img src="/img/lnk.svg" />Получить ссылку из элемента документа</span></div></div><div name="6311530" id="6311530">Ногиронлиги бўлган шахслар ҳамда кексалар, ўриндиқли аравачада ҳаракатланадиган ногиронлиги бўлган шахслар ва ёш болалар аравачасини етаклаб ҳаракатланадиган серқатнов жойларда пиёдалар йўлкасининг кенглиги камида 2,4 m бўлиши, шаҳар (туман) марказларида эса камида 3,6 m бўлиши керак.</div></div><div class="ACT_TEXT lx_elem" onmousemove="lx_mo(event,6311531)"><div class="lx_elem2"><div class="lx_elem3"><span onclick="lx_sf(6311531)"><img src="/img/cmt.svg" />Предложения по документу</span><span onclick="lx_pa(6311531)"><img src="/img/vlm.svg" />Прослушать аудио</span><span onclick="lx_cl(6311531)"><img src="/img/lnk.svg" />Получить ссылку из элемента документа</span></div></div><div name="6311531" id="6311531">11. Тротуарларнинг бўйлама нишаблиги 5 фоиздан ошмаслиги керак. Бино ва иншоотлар олдидаги тротуардан тушиш қисми, шунингдек тротуарларнинг ҳар 10 — 12 m оралиғида жойлашадиган (1,5 m дан кам бўлмаган) горизонтал майдони 10 фоиз бўйлама нишабликда бўлиши лозим.</div></div><div class="ACT_TEXT lx_elem" onmousemove="lx_mo(event,6311532)"><div class="lx_elem2"><div class="lx_elem3"><span onclick="lx_sf(6311532)"><img src="/img/cmt.svg" />Предложения по документу</span><span onclick="lx_pa(6311532)"><img src="/img/vlm.svg" />Прослушать аудио</span><span onclick="lx_cl(6311532)"><img src="/img/lnk.svg" />Получить ссылку из элемента документа</span></div></div><div name="6311532" id="6311532">Ҳаракатланиш йўлининг кўндаланг қиялигини 1-2 фоиз атрофида қабул қилиш керак.</div></div><div class="ACT_TEXT lx_elem" onmousemove="lx_mo(event,6311533)"><div class="lx_elem2"><div class="lx_elem3"><span onclick="lx_sf(6311533)"><img src="/img/cmt.svg" />Предложения по документу</span><span onclick="lx_pa(6311533)"><img src="/img/vlm.svg" />Прослушать аудио</span><span onclick="lx_cl(6311533)"><img src="/img/lnk.svg" />Получить ссылку из элемента документа</span></div></div><div name="6311533" id="6311533">12. Кўкаламзорлаштирилган майдончалар атрофидаги пиёдалар йўлкалари ердан 5 — 7 sm баланд бўлиши ҳамда баландлиги 4-5 sm, эни 10 sm бўлган бордюр ёки борт тошлари билан тўсилиши керак. </div></div><div class="ACT_TEXT lx_elem" onmousemove="lx_mo(event,6311534)"><div class="lx_elem2"><div class="lx_elem3"><span onclick="lx_sf(6311534)"><img src="/img/cmt.svg" />Предложения по документу</span><span onclick="lx_pa(6311534)"><img src="/img/vlm.svg" />Прослушать аудио</span><span onclick="lx_cl(6311534)"><img src="/img/lnk.svg" />Получить ссылку из элемента документа</span></div></div><div name="6311534" id="6311534">Пиёдалар йўлкалари транспорт ҳаракати билан тўқнашадиган жойларда бортли тўсиқларнинг баландлиги 2 sm дан катта бўлмаслиги керак.</div></div><div class="ACT_TEXT lx_elem" onmousemove="lx_mo(event,6311535)"><div class="lx_elem2"><div class="lx_elem3"><span onclick="lx_sf(6311535)"><img src="/img/cmt.svg" />Предложения по документу</span><span onclick="lx_pa(6311535)"><img src="/img/vlm.svg" />Прослушать аудио</span><span onclick="lx_cl(6311535)"><img src="/img/lnk.svg" />Получить ссылку из элемента документа</span></div></div><div name="6311535" id="6311535">13. Турар жойлар ва жамоат ҳудудларида пиёдалар йўлкасининг кенглиги 2,0 m дан, транспорт ҳаракатланадиган кўчаларда эса 2,4 — 3,0 m дан кам бўлмаслиги керак.</div></div><div class="ACT_TEXT lx_elem" onmousemove="lx_mo(event,6311536)"><div class="lx_elem2"><div class="lx_elem3"><span onclick="lx_sf(6311536)"><img src="/img/cmt.svg" />Предложения по документу</span><span onclick="lx_pa(6311536)"><img src="/img/vlm.svg" />Прослушать аудио</span><span onclick="lx_cl(6311536)"><img src="/img/lnk.svg" />Получить ссылку из элемента документа</span></div></div><div name="6311536" id="6311536">Кўчанинг ҳаракатланиш қисмидан кесиб ўтиш жойларида хавфсизлик оролчаларининг узунлиги 2 m дан кам бўлмаслиги лозим. Кўчаларда пиёдалар кесиб ўтиш жойларининг бошланиш қисми бўйлаб баландлиги 0,6 m дан кам бўлмаган тўсиқлар қўйилиши керак. </div></div><div class="ACT_TEXT lx_elem" onmousemove="lx_mo(event,6311539)"><div class="lx_elem2"><div class="lx_elem3"><span onclick="lx_sf(6311539)"><img src="/img/cmt.svg" />Предложения по документу</span><span onclick="lx_pa(6311539)"><img src="/img/vlm.svg" />Прослушать аудио</span><span onclick="lx_cl(6311539)"><img src="/img/lnk.svg" />Получить ссылку из элемента документа</span></div></div><div name="6311539" id="6311539">14. Кўчалардаги тактил қопламаларнинг намуналари мазкур ШНҚ нинг <a href="/ru/docs/6311402#6312189">6-иловасида </a>назарда тутилган.</div></div><div class="ACT_TEXT lx_elem" onmousemove="lx_mo(event,6311540)"><div class="lx_elem2"><div class="lx_elem3"><span onclick="lx_sf(6311540)"><img src="/img/cmt.svg" />Предложения по документу</span><span onclick="lx_pa(6311540)"><img src="/img/vlm.svg" />Прослушать аудио</span><span onclick="lx_cl(6311540)"><img src="/img/lnk.svg" />Получить ссылку из элемента документа</span></div></div><div name="6311540" id="6311540">15. Рельеф қияликларида очиқ зиналар кенглиги 1,6 m, ундаги зина поғоналари кенглиги 0,4 m дан кам бўлмаслиги, зина поғоналари баландлиги 0,12 m дан ошмаслиги керак. </div></div><div class="ACT_TEXT lx_elem" onmousemove="lx_mo(event,6311541)"><div class="lx_elem2"><div class="lx_elem3"><span onclick="lx_sf(6311541)"><img src="/img/cmt.svg" />Предложения по документу</span><span onclick="lx_pa(6311541)"><img src="/img/vlm.svg" />Прослушать аудио</span><span onclick="lx_cl(6311541)"><img src="/img/lnk.svg" />Получить ссылку из элемента документа</span></div></div><div name="6311541" id="6311541">Бир зина маршида зина поғоналари сони 3 тадан кам бўлмаслиги лозим. Баландлик бундан паст бўлса, пандуслар қўлланилиши керак.</div></div><div class="ACT_TEXT lx_elem" onmousemove="lx_mo(event,6311542)"><div class="lx_elem2"><div class="lx_elem3"><span onclick="lx_sf(6311542)"><img src="/img/cmt.svg" />Предложения по документу</span><span onclick="lx_pa(6311542)"><img src="/img/vlm.svg" />Прослушать аудио</span><span onclick="lx_cl(6311542)"><img src="/img/lnk.svg" />Получить ссылку из элемента документа</span></div></div><div name="6311542" id="6311542">Бир маршдаги зина поғоналарининг шакли, уларнинг кенглиги ва баландлиги бир хил бўлиши керак. Зиналарнинг кўндаланг қиялиги 1-2 фоиз бўлиши керак.</div></div><div class="ACT_TEXT lx_elem" onmousemove="lx_mo(event,6311543)"><div class="lx_elem2"><div class="lx_elem3"><span onclick="lx_sf(6311543)"><img src="/img/cmt.svg" />Предложения по документу</span><span onclick="lx_pa(6311543)"><img src="/img/vlm.svg" />Прослушать аудио</span><span onclick="lx_cl(6311543)"><img src="/img/lnk.svg" />Получить ссылку из элемента документа</span></div></div><div name="6311543" id="6311543">Ҳаракатланиш хавфсизлигини таъминлаш учун зина қопламаси ғадир-будир бўлиши лозим, шунингдек зина қопламаси текис тарашланган тошдан, сирпанчиқ қилиб ишланишига йўл қўйилмайди. Зиналарга махсус контраст бўёқлар қўлланилиши, шунингдек зина поғоналари кечки вақт ёритилиши мумкин.</div></div><div class="ACT_TEXT lx_elem" onmousemove="lx_mo(event,6311544)"><div class="lx_elem2"><div class="lx_elem3"><span onclick="lx_sf(6311544)"><img src="/img/cmt.svg" />Предложения по документу</span><span onclick="lx_pa(6311544)"><img src="/img/vlm.svg" />Прослушать аудио</span><span onclick="lx_cl(6311544)"><img src="/img/lnk.svg" />Получить ссылку из элемента документа</span></div></div><div name="6311544" id="6311544">Зиналарнинг очиқ томонлари 0,15 — 0,20 m баландликда бортларга ва 0,7 — 0,9 m баландликда тутқичларга (мактабгача ёшдаги болалар учун 0,5 m баландликда) эга бўлиши керак. Тутқичнинг узунлиги зина маршига нисбатан 0,03 m узунроқ бўлиши керак. Тутқичлар тўғри тўртбурчак ёки думалоқ шаклда (0,05-0,04 m диаметрда) ўрнатилади.</div></div><div class="ACT_TEXT lx_elem" onmousemove="lx_mo(event,6311545)"><div class="lx_elem2"><div class="lx_elem3"><span onclick="lx_sf(6311545)"><img src="/img/cmt.svg" />Предложения по документу</span><span onclick="lx_pa(6311545)"><img src="/img/vlm.svg" />Прослушать аудио</span><span onclick="lx_cl(6311545)"><img src="/img/lnk.svg" />Получить ссылку из элемента документа</span></div></div><div name="6311545" id="6311545">Эни 2,5 m дан кенг бўлган зиналар узунасига тутқичлар билан бўлиниши керак.</div></div><div class="ACT_TEXT lx_elem" onmousemove="lx_mo(event,6311546)"><div class="lx_elem2"><div class="lx_elem3"><span onclick="lx_sf(6311546)"><img src="/img/cmt.svg" />Предложения по документу</span><span onclick="lx_pa(6311546)"><img src="/img/vlm.svg" />Прослушать аудио</span><span onclick="lx_cl(6311546)"><img src="/img/lnk.svg" />Получить ссылку из элемента документа</span></div></div><div name="6311546" id="6311546">Зина остидаги бўшлиқ 2 m ва ундан кам бўлганида, 0,7 m баландликдаги тўсиқ билан чегараланиши керак. Мазкур ШНҚнинг <a href="/ru/docs/6311402#6312211">7-иловасида </a>зина остидаги ҳимоя тўсиқлари назарда тутилган.</div></div><div class="ACT_TEXT lx_elem" onmousemove="lx_mo(event,6311547)"><div class="lx_elem2"><div class="lx_elem3"><span onclick="lx_sf(6311547)"><img src="/img/cmt.svg" />Предложения по документу</span><span onclick="lx_pa(6311547)"><img src="/img/vlm.svg" />Прослушать аудио</span><span onclick="lx_cl(6311547)"><img src="/img/lnk.svg" />Получить ссылку из элемента документа</span></div></div><div name="6311547" id="6311547">16. Кўзи ожизлар учун биноларнинг кириш қисмидаги, бинолар ичидаги, кўчалардаги (масалан, ер ости йўлларидаги) зина тутқичларининг бошланиш ва тугаш қисмида манзил жойлашуви, бекат номи ва қават рақами каби маълумотлар келтирилган Брайл алифбосидаги тактил ёзувлар бўлиши керак. </div></div><div class="ACT_TEXT lx_elem" onmousemove="lx_mo(event,6311548)"><div class="lx_elem2"><div class="lx_elem3"><span onclick="lx_sf(6311548)"><img src="/img/cmt.svg" />Предложения по документу</span><span onclick="lx_pa(6311548)"><img src="/img/vlm.svg" />Прослушать аудио</span><span onclick="lx_cl(6311548)"><img src="/img/lnk.svg" />Получить ссылку из элемента документа</span></div></div><div name="6311548" id="6311548">Тутқичлардаги ёзувлар ва кўрсаткичлар 3 сатрдан ошмаслиги лозим. Агар панжара-тутқичлари овал шаклида бўлса, ёзув фақат бир қаторда жойлашган бўлиши керак. Мазкур ШНҚнинг <a href="/ru/docs/6311402#6312216">8-иловасида </a>кўзи ожизлар учун Брайл шрифтлари билан жиҳозланган зина тутқичлари келтирилган.</div></div><div class="ACT_TEXT lx_elem" onmousemove="lx_mo(event,6311549)"><div class="lx_elem2"><div class="lx_elem3"><span onclick="lx_sf(6311549)"><img src="/img/cmt.svg" />Предложения по документу</span><span onclick="lx_pa(6311549)"><img src="/img/vlm.svg" />Прослушать аудио</span><span onclick="lx_cl(6311549)"><img src="/img/lnk.svg" />Получить ссылку из элемента документа</span></div></div><div name="6311549" id="6311549">Ҳаракатланиш йўлларида зиналар билан бир қаторда пандуслар ҳам қўлланилиши керак. Биноларнинг ички ва ташқи қисмида, кўчаларда, ер ости ва ер усти ўтиш жойларида лифт ва пандус бўлмаган ҳолатларда ўриндиқли аравачадаги ногиронлиги бўлган шахсларнинг зиналардан фойдаланиши учун махсус кўтарувчи мосламалар ўрнатилиши лозим.</div></div><div class="ACT_TEXT lx_elem" onmousemove="lx_mo(event,6311550)"><div class="lx_elem2"><div class="lx_elem3"><span onclick="lx_sf(6311550)"><img src="/img/cmt.svg" />Предложения по документу</span><span onclick="lx_pa(6311550)"><img src="/img/vlm.svg" />Прослушать аудио</span><span onclick="lx_cl(6311550)"><img src="/img/lnk.svg" />Получить ссылку из элемента документа</span></div></div><div name="6311550" id="6311550">17. Пиёдалар йўлкасининг горизонтал қияликлари оралиғида пандуслар ўрнатилиши кўзда тутилиши керак. </div></div><div class="ACT_TEXT lx_elem" onmousemove="lx_mo(event,6311551)"><div class="lx_elem2"><div class="lx_elem3"><span onclick="lx_sf(6311551)"><img src="/img/cmt.svg" />Предложения по документу</span><span onclick="lx_pa(6311551)"><img src="/img/vlm.svg" />Прослушать аудио</span><span onclick="lx_cl(6311551)"><img src="/img/lnk.svg" />Получить ссылку из элемента документа</span></div></div><div name="6311551" id="6311551">Пандус ва уларнинг тўсиқлари ёнмайдиган (бундан буён матнда ЁНМ деб юритилади) гуруҳга кирувчи ёнғинга чидамли материаллардан қурилган бўлиши керак. Пиёдалар йўлкасининг пиёдалар ўтиш жойи билан уйғунлашуви мазкур ШНҚнинг <a href="/ru/docs/6311402#6312223">9-иловасида </a>назарда тутилган.</div></div><div class="ACT_TEXT lx_elem" onmousemove="lx_mo(event,6311552)"><div class="lx_elem2"><div class="lx_elem3"><span onclick="lx_sf(6311552)"><img src="/img/cmt.svg" />Предложения по документу</span><span onclick="lx_pa(6311552)"><img src="/img/vlm.svg" />Прослушать аудио</span><span onclick="lx_cl(6311552)"><img src="/img/lnk.svg" />Получить ссылку из элемента документа</span></div></div><div name="6311552" id="6311552">Ўриндиқли аравачадаги ногиронлиги бўлган шахслар ҳаракатланиши учун пандуснинг кенглиги 1,0 m дан кам бўлмаслиги керак.</div></div><div class="ACT_TEXT lx_elem" onmousemove="lx_mo(event,6311553)"><div class="lx_elem2"><div class="lx_elem3"><span onclick="lx_sf(6311553)"><img src="/img/cmt.svg" />Предложения по документу</span><span onclick="lx_pa(6311553)"><img src="/img/vlm.svg" />Прослушать аудио</span><span onclick="lx_cl(6311553)"><img src="/img/lnk.svg" />Получить ссылку из элемента документа</span></div></div><div name="6311553" id="6311553">Пандус ҳар бир маршининг кўтарилиш баландлиги 0,8 m дан ошмаслиги керак. Бунда, пандуснинг бўйлама қиялиги 1:12 нисбатда, кўндаланг қиялиги эса 1:50 нисбатда бўлиши керак.</div></div><div class="ACT_TEXT lx_elem" onmousemove="lx_mo(event,6311554)"><div class="lx_elem2"><div class="lx_elem3"><span onclick="lx_sf(6311554)"><img src="/img/cmt.svg" />Предложения по документу</span><span onclick="lx_pa(6311554)"><img src="/img/vlm.svg" />Прослушать аудио</span><span onclick="lx_cl(6311554)"><img src="/img/lnk.svg" />Получить ссылку из элемента документа</span></div></div><div name="6311554" id="6311554">Пандуслар чети 0,15 — 0,20 m баландликдаги бортларга ва 0,7 — 0,9 m баландликда тутқичлар (мактабгача ёшдаги болалар учун 0,5 m)га эга бўлиши, тутқичларнинг узунлиги пандус узунлигига нисбатан 0,03 m узунроқ бўлиши керак. Тутқичнинг айлана диаметри 0,04-0,05 m ни ташкил этиши лозим.</div></div><div class="ACT_TEXT lx_elem" onmousemove="lx_mo(event,6311555)"><div class="lx_elem2"><div class="lx_elem3"><span onclick="lx_sf(6311555)"><img src="/img/cmt.svg" />Предложения по документу</span><span onclick="lx_pa(6311555)"><img src="/img/vlm.svg" />Прослушать аудио</span><span onclick="lx_cl(6311555)"><img src="/img/lnk.svg" />Получить ссылку из элемента документа</span></div></div><div name="6311555" id="6311555">Ҳар бир пандуснинг боши ва охирида аравачанинг қийинчиликсиз бурилишига имкон берадиган, пандус кенглигидан кам бўлмаган ва узунлиги камида 1,5 m бўлган горизонтал майдонча лойиҳаланиши лозим.</div></div><div class="ACT_TEXT lx_elem" onmousemove="lx_mo(event,6311556)"><div class="lx_elem2"><div class="lx_elem3"><span onclick="lx_sf(6311556)"><img src="/img/cmt.svg" />Предложения по документу</span><span onclick="lx_pa(6311556)"><img src="/img/vlm.svg" />Прослушать аудио</span><span onclick="lx_cl(6311556)"><img src="/img/lnk.svg" />Получить ссылку из элемента документа</span></div></div><div name="6311556" id="6311556">Пандус йўналиши ўзгарса, йўналиш ўзгариши бўйлаб майдончанинг эни 1,5 m дан кам бўлмаслиги, умумий горизонтал майдончанинг бўйи эса иккита марш кенглигига тенг бўлиши керак.</div></div><div class="ACT_TEXT lx_elem" onmousemove="lx_mo(event,6311557)"><div class="lx_elem2"><div class="lx_elem3"><span onclick="lx_sf(6311557)"><img src="/img/cmt.svg" />Предложения по документу</span><span onclick="lx_pa(6311557)"><img src="/img/vlm.svg" />Прослушать аудио</span><span onclick="lx_cl(6311557)"><img src="/img/lnk.svg" />Получить ссылку из элемента документа</span></div></div><div name="6311557" id="6311557">18. Оддий пандус барпо этишнинг имкони бўлмаган фавқулодда вазиятларда «Винтли» пандуслар бунёд этилишига рухсат этилади. «Винтли» пандуслардаги горизонтал майдончаларнинг ички радиуси 2 m дан кам бўлмаслиги керак.</div></div><div class="ACT_TEXT lx_elem" onmousemove="lx_mo(event,6311558)"><div class="lx_elem2"><div class="lx_elem3"><span onclick="lx_sf(6311558)"><img src="/img/cmt.svg" />Предложения по документу</span><span onclick="lx_pa(6311558)"><img src="/img/vlm.svg" />Прослушать аудио</span><span onclick="lx_cl(6311558)"><img src="/img/lnk.svg" />Получить ссылку из элемента документа</span></div></div><div name="6311558" id="6311558">19. Пиёдалар ер ости ўтиш жойларида ногиронлиги бўлган шахсларнинг ўриндиқли аравачаси ҳаракатланиши учун 1,0 m кенгликдаги пандуслар барпо этилиши керак. Ер ости ўтиш жойларидаги зиналар кенглиги 1,8 m дан кам бўлмаслиги керак. Шунингдек, пандуслар нишаблиги ўриндиқли аравачадаги ногиронлиги бўлган шахс ҳаракатланиши учун ноқулайлик туғдирса, зиналардан фойдаланиш учун махсус кўтарувчи мосламалар ўрнатилиши лозим. Мазкур ШНҚнинг <a href="/ru/docs/6311402#6312239">10-иловасида </a>махсус кўтарувчи мосламалар келтирилган.</div></div><div class="ACT_TEXT lx_elem" onmousemove="lx_mo(event,6311559)"><div class="lx_elem2"><div class="lx_elem3"><span onclick="lx_sf(6311559)"><img src="/img/cmt.svg" />Предложения по документу</span><span onclick="lx_pa(6311559)"><img src="/img/vlm.svg" />Прослушать аудио</span><span onclick="lx_cl(6311559)"><img src="/img/lnk.svg" />Получить ссылку из элемента документа</span></div></div><div name="6311559" id="6311559">Йирик транспорт объектларидаги пиёдалар тоннелларида пандуслар 1,5 m дан кам бўлмаган кенгликда (юк араваларининг ҳаракатланишини ҳисобга олган ҳолда) лойиҳалаштирилади, пандуснинг қиялиги 1:10 га тенг бўлиши лозим.</div></div><div class="ACT_TEXT lx_elem" onmousemove="lx_mo(event,6311560)"><div class="lx_elem2"><div class="lx_elem3"><span onclick="lx_sf(6311560)"><img src="/img/cmt.svg" />Предложения по документу</span><span onclick="lx_pa(6311560)"><img src="/img/vlm.svg" />Прослушать аудио</span><span onclick="lx_cl(6311560)"><img src="/img/lnk.svg" />Получить ссылку из элемента документа</span></div></div><div name="6311560" id="6311560">20. Ногиронлиги бўлган шахсларга ҳамда кексаларга ҳаракатланиш йўлларида ноқулайлик туғдирмаслик мақсадида тўсиқлар бўлувчи икки томонга очиладиган осма ошиқ-мошиқларга маҳкамланувчи шаффоф бўлмаган дарчалар, айланувчи турникетлар ва айланма эшиклар каби бошқа қурилмалар қўлланилмайди.</div></div><div class="ACT_TEXT lx_elem" onmousemove="lx_mo(event,6311561)"><div class="lx_elem2"><div class="lx_elem3"><span onclick="lx_sf(6311561)"><img src="/img/cmt.svg" />Предложения по документу</span><span onclick="lx_pa(6311561)"><img src="/img/vlm.svg" />Прослушать аудио</span><span onclick="lx_cl(6311561)"><img src="/img/lnk.svg" />Получить ссылку из элемента документа</span></div></div><div name="6311561" id="6311561">21. Турар жой ва жамоат ҳудудларининг дам олиш майдончалари, пиёдалар йўлкалари бўйлаб ҳар 200 m да ўриндиқлар ва ичиш учун сув фонтанчалари билан таъминланиши лозим.</div></div><div class="ACT_TEXT lx_elem" onmousemove="lx_mo(event,6311562)"><div class="lx_elem2"><div class="lx_elem3"><span onclick="lx_sf(6311562)"><img src="/img/cmt.svg" />Предложения по документу</span><span onclick="lx_pa(6311562)"><img src="/img/vlm.svg" />Прослушать аудио</span><span onclick="lx_cl(6311562)"><img src="/img/lnk.svg" />Получить ссылку из элемента документа</span></div></div><div name="6311562" id="6311562">22. Пиёдалар йўлкаси, тротуарлар ва пандусларни қоплашда қўлтиқтаёқли ва ўриндиқли аравачадаги ногиронлиги бўлган шахслар ҳаракатланишини қийинлаштирадиган сочма ва йирик таркибли материаллардан фойдаланилмайди. Бетон плитали қопламалар текис бўлиши, плиталар орасидаги чокларнинг қалинлиги 1,0 sm дан ошмаслиги керак.</div></div><div class="ACT_TEXT lx_elem" onmousemove="lx_mo(event,6311564)"><div class="lx_elem2"><div class="lx_elem3"><span onclick="lx_sf(6311564)"><img src="/img/cmt.svg" />Предложения по документу</span><span onclick="lx_pa(6311564)"><img src="/img/vlm.svg" />Прослушать аудио</span><span onclick="lx_cl(6311564)"><img src="/img/lnk.svg" />Получить ссылку из элемента документа</span></div></div><div name="6311564" id="6311564">23. Ногиронлиги бўлган шахслар ҳаракатланадиган йўллар, бинолар ва иншоотларнинг кириш қисмлари визуал ва товушли ахборот воситалари билан жиҳозланган бўлиши керак. Визуал маълумот пиёдалар ҳаракатланадиган сатҳдан 0,9 — 1,7 m баландликда жойлаштирилиши керак.</div></div><div class="ACT_TEXT lx_elem" onmousemove="lx_mo(event,6311565)"><div class="lx_elem2"><div class="lx_elem3"><span onclick="lx_sf(6311565)"><img src="/img/cmt.svg" />Предложения по документу</span><span onclick="lx_pa(6311565)"><img src="/img/vlm.svg" />Прослушать аудио</span><span onclick="lx_cl(6311565)"><img src="/img/lnk.svg" />Получить ссылку из элемента документа</span></div></div><div name="6311565" id="6311565">Транспорт йўлларининг кесишмаларида ҳамда жамоат бинолари ва иншоотларининг кириш жойларида товушли сигнализация ўрнатилиши лозим.</div></div><div class="ACT_TEXT lx_elem" onmousemove="lx_mo(event,6311567)"><div class="lx_elem2"><div class="lx_elem3"><span onclick="lx_sf(6311567)"><img src="/img/cmt.svg" />Предложения по документу</span><span onclick="lx_pa(6311567)"><img src="/img/vlm.svg" />Прослушать аудио</span><span onclick="lx_cl(6311567)"><img src="/img/lnk.svg" />Получить ссылку из элемента документа</span></div></div><div name="6311567" id="6311567">Турар жойлар ва жамоат ҳудудларининг олдидаги чорраҳаларга яқин йўлкаларнинг бурилиш қисмида, симёғочлар ва бошқа тўсиқлар олдида, йўлкалар йирик структурали қопламага эга бўлиши (асфальтга шағал қўшилиши) ёки тактил ҳамда контраст рангли йўл қопламалари билан қопланган бўлиши лозим.</div></div><div class="ACT_TEXT lx_elem" onmousemove="lx_mo(event,6311568)"><div class="lx_elem2"><div class="lx_elem3"><span onclick="lx_sf(6311568)"><img src="/img/cmt.svg" />Предложения по документу</span><span onclick="lx_pa(6311568)"><img src="/img/vlm.svg" />Прослушать аудио</span><span onclick="lx_cl(6311568)"><img src="/img/lnk.svg" />Получить ссылку из элемента документа</span></div></div><div name="6311568" id="6311568">24. Ҳаракатланиш йўлида жойлашган таянч конструкциялар ва қурилмалар (маълумот тахталари, почта қутилари, таксофонлар ва бошқа осиб қўйиладиган қурилма ва конструкциялар) ҳаракатланиш кўрсаткичларини ҳамда ўриндиқли аравачанинг ҳаракатланиш майдонини қисқартирмаслиги керак. Шунингдек, мазкур конструкциялар пиёдалар йўлкаси сатҳидан 0,7 — 2,1 m баландликда бўлганда, бу қурилиш объектлари остидаги бўшлиқларни баландлиги 0,05 m бўлган бордюр тошлари билан чегаралаш ёки 0,7 m баландликдаги тўсиқларни қўллаш керак.</div></div><div class="ACT_TEXT lx_elem" onmousemove="lx_mo(event,6311570)"><div class="lx_elem2"><div class="lx_elem3"><span onclick="lx_sf(6311570)"><img src="/img/cmt.svg" />Предложения по документу</span><span onclick="lx_pa(6311570)"><img src="/img/vlm.svg" />Прослушать аудио</span><span onclick="lx_cl(6311570)"><img src="/img/lnk.svg" />Получить ссылку из элемента документа</span></div></div><div name="6311570" id="6311570">Осма ускуналар жароҳатлардан ҳимоялашни таъминлаши учун қиррасиз шаклларга эга бўлиши лозим.</div></div><div class="ACT_TEXT lx_elem" onmousemove="lx_mo(event,6311573)"><div class="lx_elem2"><div class="lx_elem3"><span onclick="lx_sf(6311573)"><img src="/img/cmt.svg" />Предложения по документу</span><span onclick="lx_pa(6311573)"><img src="/img/vlm.svg" />Прослушать аудио</span><span onclick="lx_cl(6311573)"><img src="/img/lnk.svg" />Получить ссылку из элемента документа</span></div></div><div name="6311573" id="6311573">25. Кўришда нуқсони бўлган шахслар учун таксофонлар ва бошқа махсус ускуналарнинг горизонтал юзаси рельефли (Брайл алифбосидаги сон ва рақамлар ёзилган маълумотлар) қопламага эга бўлиши лозим.</div></div><div class="TEXT_HEADER_DEFAULT lx_elem" onmousemove="lx_mo(event,6311574)"><div class="lx_elem2"><div class="lx_elem3"><span onclick="lx_sf(6311574)"><img src="/img/cmt.svg" />Предложения по документу</span><span onclick="lx_pa(6311574)"><img src="/img/vlm.svg" />Прослушать аудио</span><span onclick="lx_cl(6311574)"><img src="/img/lnk.svg" />Получить ссылку из элемента документа</span></div></div><div name="6311574" id="6311574">2-§. Жамоат транспорти бекатлари ва автотураргоҳларга қўйиладиган талаблар</div></div><div class="ACT_TEXT lx_elem" onmousemove="lx_mo(event,6311576)"><div class="lx_elem2"><div class="lx_elem3"><span onclick="lx_sf(6311576)"><img src="/img/cmt.svg" />Предложения по документу</span><span onclick="lx_pa(6311576)"><img src="/img/vlm.svg" />Прослушать аудио</span><span onclick="lx_cl(6311576)"><img src="/img/lnk.svg" />Получить ссылку из элемента документа</span></div></div><div name="6311576" id="6311576">26. Ўриндиқли аравачалар учун жамоат транспорти бекатлари тротуар тарафдан ва кўчанинг қатнов қисмидан кириш йўлкаларини ҳисобга олган ҳолда лойиҳалаштирилиши керак.</div></div><div class="ACT_TEXT lx_elem" onmousemove="lx_mo(event,6311577)"><div class="lx_elem2"><div class="lx_elem3"><span onclick="lx_sf(6311577)"><img src="/img/cmt.svg" />Предложения по документу</span><span onclick="lx_pa(6311577)"><img src="/img/vlm.svg" />Прослушать аудио</span><span onclick="lx_cl(6311577)"><img src="/img/lnk.svg" />Получить ссылку из элемента документа</span></div></div><div name="6311577" id="6311577">Жамоат транспорти бекатларининг майдончаси ҳар хил йўналишда ҳаракатланувчи бир ёки иккита жамоат транспорти тўхтайдиган бўлса, кенглиги 1,8 m, узунлиги 12 m дан кам бўлмаслиги, уч ёки тўртта жамоат транспорти тўхтайдиган бўлса, кенглиги 2,4 m, узунлиги 24 m дан кам бўлмаслиги, шунингдек тўртта ва ундан ортиқ жамоат транспорти тўхтайдиган бўлса, кенглиги 2,4 m, узунлиги 36 m дан кам бўлмаслиги керак. </div></div><div class="ACT_TEXT lx_elem" onmousemove="lx_mo(event,6311578)"><div class="lx_elem2"><div class="lx_elem3"><span onclick="lx_sf(6311578)"><img src="/img/cmt.svg" />Предложения по документу</span><span onclick="lx_pa(6311578)"><img src="/img/vlm.svg" />Прослушать аудио</span><span onclick="lx_cl(6311578)"><img src="/img/lnk.svg" />Получить ссылку из элемента документа</span></div></div><div name="6311578" id="6311578">Жамоат транспорти бекатининг майдончаси кўчанинг қатнов қисмидан 0,20 m дан баланд бўлмаслиги керак. Ногиронлиги бўлган шахсларни ташувчи махсус транспортлар ҳамда уларнинг шахсий автотранспорти учун автотураргоҳлар бино ёки иншоотнинг кириш қисмига яқин, яъни 100 m дан узоқ бўлмаган (25 — 50 m бўлиши тавсия этилади) масофада бўлиши ва махсус белгилар ўрнатилиши лозим. Мазкур ШНҚнинг <a href="/ru/docs/6311402#6312256">11-иловасида </a>ногиронлиги бўлган шахслар учун автотураргоҳлар ҳамда махсус белгилар назарда тутилган.</div></div><div class="ACT_TEXT lx_elem" onmousemove="lx_mo(event,6311579)"><div class="lx_elem2"><div class="lx_elem3"><span onclick="lx_sf(6311579)"><img src="/img/cmt.svg" />Предложения по документу</span><span onclick="lx_pa(6311579)"><img src="/img/vlm.svg" />Прослушать аудио</span><span onclick="lx_cl(6311579)"><img src="/img/lnk.svg" />Получить ссылку из элемента документа</span></div></div><div name="6311579" id="6311579">Турар жойлар ҳудудида лойиҳаланадиган автотураргоҳлардаги автомобил ўринларининг умумий сонидан 2,5 — 3 фоизи ногиронлиги бўлган шахсларнинг автомобиллари учун ажратилиши лозим.</div></div><div class="ACT_TEXT lx_elem" onmousemove="lx_mo(event,6311580)"><div class="lx_elem2"><div class="lx_elem3"><span onclick="lx_sf(6311580)"><img src="/img/cmt.svg" />Предложения по документу</span><span onclick="lx_pa(6311580)"><img src="/img/vlm.svg" />Прослушать аудио</span><span onclick="lx_cl(6311580)"><img src="/img/lnk.svg" />Получить ссылку из элемента документа</span></div></div><div name="6311580" id="6311580">Ўриндиқли аравачадаги ногиронлиги бўлган шахсларнинг автомобилларини сақлаш учун автотураргоҳлар уларнинг яшаш жойидан 200 m масофадан узоқ бўлмаслиги керак.</div></div><div class="ACT_TEXT lx_elem" onmousemove="lx_mo(event,6311581)"><div class="lx_elem2"><div class="lx_elem3"><span onclick="lx_sf(6311581)"><img src="/img/cmt.svg" />Предложения по документу</span><span onclick="lx_pa(6311581)"><img src="/img/vlm.svg" />Прослушать аудио</span><span onclick="lx_cl(6311581)"><img src="/img/lnk.svg" />Получить ссылку из элемента документа</span></div></div><div name="6311581" id="6311581">27. Жамоат бинолари ва иншоотлари олдидаги автомобиль тўхташ жойларидаги ўринларнинг умумий сонидан 10 фоизи ногиронлиги бўлган шахсларнинг автомобиллари учун мўлжалланиши керак.</div></div><div class="ACT_TEXT lx_elem" onmousemove="lx_mo(event,6311582)"><div class="lx_elem2"><div class="lx_elem3"><span onclick="lx_sf(6311582)"><img src="/img/cmt.svg" />Предложения по документу</span><span onclick="lx_pa(6311582)"><img src="/img/vlm.svg" />Прослушать аудио</span><span onclick="lx_cl(6311582)"><img src="/img/lnk.svg" />Получить ссылку из элемента документа</span></div></div><div name="6311582" id="6311582">Ногиронлиги бўлган шахсларга хизмат кўрсатишга мўлжалланган тиббий-ижтимоий муассасалар ҳудудида жойлашган автотураргоҳлардаги автомобиль ўринларининг умумий сонидан 25 фоизи ногиронлиги бўлган шахсларнинг автомобиллари учун ажратилиши лозим.</div></div><div class="TEXT_HEADER_DEFAULT lx_elem" onmousemove="lx_mo(event,6311584)"><div class="lx_elem2"><div class="lx_elem3"><span onclick="lx_sf(6311584)"><img src="/img/cmt.svg" />Предложения по документу</span><span onclick="lx_pa(6311584)"><img src="/img/vlm.svg" />Прослушать аудио</span><span onclick="lx_cl(6311584)"><img src="/img/lnk.svg" />Получить ссылку из элемента документа</span></div></div><div name="6311584" id="6311584">3-§. Ногиронлиги бўлган шахслар ҳамда кексаларга хизмат кўрсатувчи тиббий-ижтимоий муассасаларнинг ҳудудларига қўйиладиган талаблар</div></div><div class="ACT_TEXT lx_elem" onmousemove="lx_mo(event,6311587)"><div class="lx_elem2"><div class="lx_elem3"><span onclick="lx_sf(6311587)"><img src="/img/cmt.svg" />Предложения по документу</span><span onclick="lx_pa(6311587)"><img src="/img/vlm.svg" />Прослушать аудио</span><span onclick="lx_cl(6311587)"><img src="/img/lnk.svg" />Получить ссылку из элемента документа</span></div></div><div name="6311587" id="6311587">28. Ногиронлиги бўлган шахслар ҳамда кексаларга хизмат кўрсатувчи тиббий-ижтимоий муассасалар (бундан буён матнда тиббий-ижтимоий муассасалар деб юритилади) ҳамда ихтисослаштирилган таълим муассасалари ҳудудлари учун тавсия қилинган майдон мазкур ШНҚнинг <a href="/ru/docs/6311402#6312341">12-иловасига </a>мувофиқ бўлиши лозим.</div></div><div class="ACT_TEXT lx_elem" onmousemove="lx_mo(event,6311588)"><div class="lx_elem2"><div class="lx_elem3"><span onclick="lx_sf(6311588)"><img src="/img/cmt.svg" />Предложения по документу</span><span onclick="lx_pa(6311588)"><img src="/img/vlm.svg" />Прослушать аудио</span><span onclick="lx_cl(6311588)"><img src="/img/lnk.svg" />Получить ссылку из элемента документа</span></div></div><div name="6311588" id="6311588">Тиббий-ижтимоий муассасаларнинг ҳудудлари зоналаштирилиши ва қуйидаги зоналарга ажратилиши лозим:</div></div><div class="ACT_TEXT lx_elem" onmousemove="lx_mo(event,6311589)"><div class="lx_elem2"><div class="lx_elem3"><span onclick="lx_sf(6311589)"><img src="/img/cmt.svg" />Предложения по документу</span><span onclick="lx_pa(6311589)"><img src="/img/vlm.svg" />Прослушать аудио</span><span onclick="lx_cl(6311589)"><img src="/img/lnk.svg" />Получить ссылку из элемента документа</span></div></div><div name="6311589" id="6311589">маълумот тахтачалари жойлаштирилган, кўкаламзорлаштирилган ва кириш зонаси;</div></div><div class="ACT_TEXT lx_elem" onmousemove="lx_mo(event,6311591)"><div class="lx_elem2"><div class="lx_elem3"><span onclick="lx_sf(6311591)"><img src="/img/cmt.svg" />Предложения по документу</span><span onclick="lx_pa(6311591)"><img src="/img/vlm.svg" />Прослушать аудио</span><span onclick="lx_cl(6311591)"><img src="/img/lnk.svg" />Получить ссылку из элемента документа</span></div></div><div name="6311591" id="6311591">тинч дам олиш ва сайр қилиш зонаси (ёритиш ва ободонлаштириш элементлари билан);</div></div><div class="ACT_TEXT lx_elem" onmousemove="lx_mo(event,6311592)"><div class="lx_elem2"><div class="lx_elem3"><span onclick="lx_sf(6311592)"><img src="/img/cmt.svg" />Предложения по документу</span><span onclick="lx_pa(6311592)"><img src="/img/vlm.svg" />Прослушать аудио</span><span onclick="lx_cl(6311592)"><img src="/img/lnk.svg" />Получить ссылку из элемента документа</span></div></div><div name="6311592" id="6311592">жисмоний тарбия ва спорт иншоотлари жойлашган рекреация зонаси;</div></div><div class="ACT_TEXT lx_elem" onmousemove="lx_mo(event,6311593)"><div class="lx_elem2"><div class="lx_elem3"><span onclick="lx_sf(6311593)"><img src="/img/cmt.svg" />Предложения по документу</span><span onclick="lx_pa(6311593)"><img src="/img/vlm.svg" />Прослушать аудио</span><span onclick="lx_cl(6311593)"><img src="/img/lnk.svg" />Получить ссылку из элемента документа</span></div></div><div name="6311593" id="6311593">боғ-томорқа зонаси (ҳаваскорлик машғулотлари ва меҳнат терапияси учун);</div></div><div class="ACT_TEXT lx_elem" onmousemove="lx_mo(event,6311594)"><div class="lx_elem2"><div class="lx_elem3"><span onclick="lx_sf(6311594)"><img src="/img/cmt.svg" />Предложения по документу</span><span onclick="lx_pa(6311594)"><img src="/img/vlm.svg" />Прослушать аудио</span><span onclick="lx_cl(6311594)"><img src="/img/lnk.svg" />Получить ссылку из элемента документа</span></div></div><div name="6311594" id="6311594">хўжалик ва техник иншоотлар, ташқи ҳожатхоналар ва чиқинди контейнерлари жойлашган хўжалик зонаси.</div></div><div class="ACT_TEXT lx_elem" onmousemove="lx_mo(event,6311595)"><div class="lx_elem2"><div class="lx_elem3"><span onclick="lx_sf(6311595)"><img src="/img/cmt.svg" />Предложения по документу</span><span onclick="lx_pa(6311595)"><img src="/img/vlm.svg" />Прослушать аудио</span><span onclick="lx_cl(6311595)"><img src="/img/lnk.svg" />Получить ссылку из элемента документа</span></div></div><div name="6311595" id="6311595">Тиббий-ижтимоий муассасалар учун ер майдонларини ташкил этиш лойиҳалаштириш топшириғига асосан амалга оширилади.</div></div><div class="ACT_TEXT lx_elem" onmousemove="lx_mo(event,6311596)"><div class="lx_elem2"><div class="lx_elem3"><span onclick="lx_sf(6311596)"><img src="/img/cmt.svg" />Предложения по документу</span><span onclick="lx_pa(6311596)"><img src="/img/vlm.svg" />Прослушать аудио</span><span onclick="lx_cl(6311596)"><img src="/img/lnk.svg" />Получить ссылку из элемента документа</span></div></div><div name="6311596" id="6311596">Ихтисослаштирилган таълим муассасалари таркибида турли ёшдаги ногиронлиги бўлган болалар учун ўйин майдончалари, шунингдек жисмоний тарбия ва спорт ҳамда ўқув майдончалари назарда тутилиши керак.</div></div><div class="ACT_TEXT lx_elem" onmousemove="lx_mo(event,6311597)"><div class="lx_elem2"><div class="lx_elem3"><span onclick="lx_sf(6311597)"><img src="/img/cmt.svg" />Предложения по документу</span><span onclick="lx_pa(6311597)"><img src="/img/vlm.svg" />Прослушать аудио</span><span onclick="lx_cl(6311597)"><img src="/img/lnk.svg" />Получить ссылку из элемента документа</span></div></div><div name="6311597" id="6311597">29. Тиббий-ижтимоий муассасаларнинг атрофидаги деворлардан 5 m узоқликда, участканинг турли тарафидан ёнғин-қутқарув автомобилларининг кириши учун қаттиқ қопламали йўллар кўзда тутилиши лозим.</div></div><div class="ACT_TEXT lx_elem" onmousemove="lx_mo(event,6311598)"><div class="lx_elem2"><div class="lx_elem3"><span onclick="lx_sf(6311598)"><img src="/img/cmt.svg" />Предложения по документу</span><span onclick="lx_pa(6311598)"><img src="/img/vlm.svg" />Прослушать аудио</span><span onclick="lx_cl(6311598)"><img src="/img/lnk.svg" />Получить ссылку из элемента документа</span></div></div><div name="6311598" id="6311598">30. Тиббий-ижтимоий муассасалар ҳудудлари периметри бўйлаб тўсиқларга эга бўлиши керак. Тўсиқнинг тури ва баландлиги ШНҚ 1.03.01га мувофиқ лойиҳалаштириш топшириғида белгиланади. </div></div><div class="ACT_TEXT lx_elem" onmousemove="lx_mo(event,6311599)"><div class="lx_elem2"><div class="lx_elem3"><span onclick="lx_sf(6311599)"><img src="/img/cmt.svg" />Предложения по документу</span><span onclick="lx_pa(6311599)"><img src="/img/vlm.svg" />Прослушать аудио</span><span onclick="lx_cl(6311599)"><img src="/img/lnk.svg" />Получить ссылку из элемента документа</span></div></div><div name="6311599" id="6311599">Ақлий ривожланиши заиф бўлган болалар учун ихтисослаштирилган таълим муассасалари биноси атрофидаги тўсиқларнинг баландлиги 1,7 — 2,0 m бўлиши керак.</div></div><div class="ACT_TEXT lx_elem" onmousemove="lx_mo(event,6311600)"><div class="lx_elem2"><div class="lx_elem3"><span onclick="lx_sf(6311600)"><img src="/img/cmt.svg" />Предложения по документу</span><span onclick="lx_pa(6311600)"><img src="/img/vlm.svg" />Прослушать аудио</span><span onclick="lx_cl(6311600)"><img src="/img/lnk.svg" />Получить ссылку из элемента документа</span></div></div><div name="6311600" id="6311600">31. Тиббий-ижтимоий муассасаларнинг ҳудудларида ҳаракатланиш йўллари параметрлари, жумладан пиёдалар йўлкалари, зиналар ва пандуслар мазкур ШНҚ талабларига мувофиқ лойиҳалаштирилиши керак.</div></div><div class="ACT_TEXT lx_elem" onmousemove="lx_mo(event,6311601)"><div class="lx_elem2"><div class="lx_elem3"><span onclick="lx_sf(6311601)"><img src="/img/cmt.svg" />Предложения по документу</span><span onclick="lx_pa(6311601)"><img src="/img/vlm.svg" />Прослушать аудио</span><span onclick="lx_cl(6311601)"><img src="/img/lnk.svg" />Получить ссылку из элемента документа</span></div></div><div name="6311601" id="6311601">32. Тиббий-ижтимоий муассасалар <a href="/ru/docs/4444163">ШНҚ 2.07.01</a> талабларига мувофиқ транспорт магистраллари, экологик зарарли ишлаб чиқариш, электромагнит нурланиш нуқталари, аэропорт ва бошқа шунга ўхшаш жойлардан узоқликда жойлаштирилиши керак.</div></div><div class="ACT_TEXT lx_elem" onmousemove="lx_mo(event,6311602)"><div class="lx_elem2"><div class="lx_elem3"><span onclick="lx_sf(6311602)"><img src="/img/cmt.svg" />Предложения по документу</span><span onclick="lx_pa(6311602)"><img src="/img/vlm.svg" />Прослушать аудио</span><span onclick="lx_cl(6311602)"><img src="/img/lnk.svg" />Получить ссылку из элемента документа</span></div></div><div name="6311602" id="6311602">Шунингдек, тиббий-ижтимоий муассасалар шаҳар атрофи ҳамда қишлоқ жойларда жойлаштирилганда ёнғин ўчириш депосигача бўлган масофа умумий фойдаланишдаги йўллар бўйлаб 3 km дан узоқ бўлмаслиги таъминланиши лозим.</div></div><div class="TEXT_HEADER_DEFAULT lx_elem" onmousemove="lx_mo(event,6311603)"><div class="lx_elem2"><div class="lx_elem3"><span onclick="lx_sf(6311603)"><img src="/img/cmt.svg" />Предложения по документу</span><span onclick="lx_pa(6311603)"><img src="/img/vlm.svg" />Прослушать аудио</span><span onclick="lx_cl(6311603)"><img src="/img/lnk.svg" />Получить ссылку из элемента документа</span></div></div><div name="6311603" id="6311603">5-боб. Ногиронлиги бўлган шахслар ҳамда кексалар эҳтиёжини инобатга олган ҳолда бино ва иншоотларни лойиҳалаштиришга қўйиладиган талаблар</div></div><div class="TEXT_HEADER_DEFAULT lx_elem" onmousemove="lx_mo(event,6311604)"><div class="lx_elem2"><div class="lx_elem3"><span onclick="lx_sf(6311604)"><img src="/img/cmt.svg" />Предложения по документу</span><span onclick="lx_pa(6311604)"><img src="/img/vlm.svg" />Прослушать аудио</span><span onclick="lx_cl(6311604)"><img src="/img/lnk.svg" />Получить ссылку из элемента документа</span></div></div><div name="6311604" id="6311604">1-§. Ногиронлиги бўлган шахслар ҳамда кексалар эҳтиёжини инобатга олган ҳолда бино ва иншоотларда ёнғин хавфсизлигини таъминлаш ҳамда эвакуация йўлларига қўйиладиган талаблар</div></div><div class="ACT_TEXT lx_elem" onmousemove="lx_mo(event,6311605)"><div class="lx_elem2"><div class="lx_elem3"><span onclick="lx_sf(6311605)"><img src="/img/cmt.svg" />Предложения по документу</span><span onclick="lx_pa(6311605)"><img src="/img/vlm.svg" />Прослушать аудио</span><span onclick="lx_cl(6311605)"><img src="/img/lnk.svg" />Получить ссылку из элемента документа</span></div></div><div name="6311605" id="6311605">33. Бино ва иншоотларнинг лойиҳалари ШНҚ 2.01.02, <a href="/ru/docs/4444291">ШНҚ 2.08.02</a> ва ШНҚ 2.04.09 талабларига мувофиқ ногиронлиги бўлган шахсларнинг ҳамда кексаларнинг хавфсизлигини таъминлаши керак. </div></div><div class="ACT_TEXT lx_elem" onmousemove="lx_mo(event,6311606)"><div class="lx_elem2"><div class="lx_elem3"><span onclick="lx_sf(6311606)"><img src="/img/cmt.svg" />Предложения по документу</span><span onclick="lx_pa(6311606)"><img src="/img/vlm.svg" />Прослушать аудио</span><span onclick="lx_cl(6311606)"><img src="/img/lnk.svg" />Получить ссылку из элемента документа</span></div></div><div name="6311606" id="6311606">Турар жой корпусларини (блокларини) лойиҳалашда қўшимча тарзда ШНҚ 2.08.01 талабларини ҳам ҳисобга олиш лозим.</div></div><div class="ACT_TEXT lx_elem" onmousemove="lx_mo(event,6311607)"><div class="lx_elem2"><div class="lx_elem3"><span onclick="lx_sf(6311607)"><img src="/img/cmt.svg" />Предложения по документу</span><span onclick="lx_pa(6311607)"><img src="/img/vlm.svg" />Прослушать аудио</span><span onclick="lx_cl(6311607)"><img src="/img/lnk.svg" />Получить ссылку из элемента документа</span></div></div><div name="6311607" id="6311607">Ёнғин хавфсизлиги бўйича ШНҚ 2.01.02 талабларини эътиборга олиш керак.</div></div><div class="ACT_TEXT lx_elem" onmousemove="lx_mo(event,6311608)"><div class="lx_elem2"><div class="lx_elem3"><span onclick="lx_sf(6311608)"><img src="/img/cmt.svg" />Предложения по документу</span><span onclick="lx_pa(6311608)"><img src="/img/vlm.svg" />Прослушать аудио</span><span onclick="lx_cl(6311608)"><img src="/img/lnk.svg" />Получить ссылку из элемента документа</span></div></div><div name="6311608" id="6311608">Ногиронлиги бўлган шахслар ҳамда кексаларга мўлжалланган бино ёки бино блоклари 2 қаватдан баланд бўлмаслиги, оловбардошлиги II даражадан паст бўлмаслиги керак.</div></div><div class="ACT_TEXT lx_elem" onmousemove="lx_mo(event,6311609)"><div class="lx_elem2"><div class="lx_elem3"><span onclick="lx_sf(6311609)"><img src="/img/cmt.svg" />Предложения по документу</span><span onclick="lx_pa(6311609)"><img src="/img/vlm.svg" />Прослушать аудио</span><span onclick="lx_cl(6311609)"><img src="/img/lnk.svg" />Получить ссылку из элемента документа</span></div></div><div name="6311609" id="6311609">34. Ногиронлиги бўлган шахсларнинг хоналаридан бино қаватларининг эвакуация чиқиш жойига етиб бориш масофаси 15 m дан ошмаслиги лозим.</div></div><div class="ACT_TEXT lx_elem" onmousemove="lx_mo(event,6311610)"><div class="lx_elem2"><div class="lx_elem3"><span onclick="lx_sf(6311610)"><img src="/img/cmt.svg" />Предложения по документу</span><span onclick="lx_pa(6311610)"><img src="/img/vlm.svg" />Прослушать аудио</span><span onclick="lx_cl(6311610)"><img src="/img/lnk.svg" />Получить ссылку из элемента документа</span></div></div><div name="6311610" id="6311610">35. Ёнғин пайтида бинони тарк этишнинг имкони бўлмаганда, бинонинг ҳар бир қаватида ногиронлиги бўлган шахслар учун жон сақлаши мумкин бўлган ёнғин хавфсизлиги зоналари лойиҳалаштирилиши керак.</div></div><div class="ACT_TEXT lx_elem" onmousemove="lx_mo(event,6311611)"><div class="lx_elem2"><div class="lx_elem3"><span onclick="lx_sf(6311611)"><img src="/img/cmt.svg" />Предложения по документу</span><span onclick="lx_pa(6311611)"><img src="/img/vlm.svg" />Прослушать аудио</span><span onclick="lx_cl(6311611)"><img src="/img/lnk.svg" />Получить ссылку из элемента документа</span></div></div><div name="6311611" id="6311611">Ёнғин хавфсизлиги зоналарини Н1 турига мансуб тутун кирмайдиган зиналарга ўтиш майдонини ёки ёнғинга қарши КО синфига (ёнғинга хавфли бўлмаган) мансуб тўсувчи конструкцияга эга пандусли хонага чиқиш йўлларини лойиҳалаш лозим.</div></div><div class="ACT_TEXT lx_elem" onmousemove="lx_mo(event,6311612)"><div class="lx_elem2"><div class="lx_elem3"><span onclick="lx_sf(6311612)"><img src="/img/cmt.svg" />Предложения по документу</span><span onclick="lx_pa(6311612)"><img src="/img/vlm.svg" />Прослушать аудио</span><span onclick="lx_cl(6311612)"><img src="/img/lnk.svg" />Получить ссылку из элемента документа</span></div></div><div name="6311612" id="6311612">Ёнғин хавфсизлиги зонаси бошқа хоналар ва туташ йўлаклардан ёнғинга қарши тўсиқлар билан ажратилган бўлиши керак, бунда оловбардошликнинг даражалари (REI, EI) қуйидагича бўлиши лозим:</div></div><div class="ACT_TEXT lx_elem" onmousemove="lx_mo(event,6311613)"><div class="lx_elem2"><div class="lx_elem3"><span onclick="lx_sf(6311613)"><img src="/img/cmt.svg" />Предложения по документу</span><span onclick="lx_pa(6311613)"><img src="/img/vlm.svg" />Прослушать аудио</span><span onclick="lx_cl(6311613)"><img src="/img/lnk.svg" />Получить ссылку из элемента документа</span></div></div><div name="6311613" id="6311613">деворлар — REI 90;</div></div><div class="ACT_TEXT lx_elem" onmousemove="lx_mo(event,6311614)"><div class="lx_elem2"><div class="lx_elem3"><span onclick="lx_sf(6311614)"><img src="/img/cmt.svg" />Предложения по документу</span><span onclick="lx_pa(6311614)"><img src="/img/vlm.svg" />Прослушать аудио</span><span onclick="lx_cl(6311614)"><img src="/img/lnk.svg" />Получить ссылку из элемента документа</span></div></div><div name="6311614" id="6311614">тўсиқлар — REI 60;</div></div><div class="ACT_TEXT lx_elem" onmousemove="lx_mo(event,6311615)"><div class="lx_elem2"><div class="lx_elem3"><span onclick="lx_sf(6311615)"><img src="/img/cmt.svg" />Предложения по документу</span><span onclick="lx_pa(6311615)"><img src="/img/vlm.svg" />Прослушать аудио</span><span onclick="lx_cl(6311615)"><img src="/img/lnk.svg" />Получить ссылку из элемента документа</span></div></div><div name="6311615" id="6311615">дераза ва эшиклар — EI 60 нинг 1-тури.</div></div><div class="ACT_TEXT lx_elem" onmousemove="lx_mo(event,6311616)"><div class="lx_elem2"><div class="lx_elem3"><span onclick="lx_sf(6311616)"><img src="/img/cmt.svg" />Предложения по документу</span><span onclick="lx_pa(6311616)"><img src="/img/vlm.svg" />Прослушать аудио</span><span onclick="lx_cl(6311616)"><img src="/img/lnk.svg" />Получить ссылку из элемента документа</span></div></div><div name="6311616" id="6311616">Ёнғин хавфсизлиги зонаси таркибига лоджия ёки балконга туташ майдонча (кенглиги 1,5 m дан кам бўлмаган) ҳам киритилиши мумкин.</div></div><div class="ACT_TEXT lx_elem" onmousemove="lx_mo(event,6311617)"><div class="lx_elem2"><div class="lx_elem3"><span onclick="lx_sf(6311617)"><img src="/img/cmt.svg" />Предложения по документу</span><span onclick="lx_pa(6311617)"><img src="/img/vlm.svg" />Прослушать аудио</span><span onclick="lx_cl(6311617)"><img src="/img/lnk.svg" />Получить ссылку из элемента документа</span></div></div><div name="6311617" id="6311617">Ёнғин хавфсизлиги зонасининг конструкциялари ёнғин хавфсизлигининг КО синфига мувофиқ бўлиши, пардозлов-оқлаш ва қопловчи материаллари эса ШНҚ 2.01.02 талабларига мос келиши керак.</div></div><div class="ACT_TEXT lx_elem" onmousemove="lx_mo(event,6311618)"><div class="lx_elem2"><div class="lx_elem3"><span onclick="lx_sf(6311618)"><img src="/img/cmt.svg" />Предложения по документу</span><span onclick="lx_pa(6311618)"><img src="/img/vlm.svg" />Прослушать аудио</span><span onclick="lx_cl(6311618)"><img src="/img/lnk.svg" />Получить ссылку из элемента документа</span></div></div><div name="6311618" id="6311618">Ёнғин хавфсизлиги зоналарининг эшиклари ўз-ўзидан зич ёпилувчи ҳамда тутун кирмайдиган бўлиши керак. Ёнғин пайтида битта эвакуация эшиги очиқ бўлганида ортиқча 20 Ра босим бўлиши таъминланиши лозим.</div></div><div class="ACT_TEXT lx_elem" onmousemove="lx_mo(event,6311619)"><div class="lx_elem2"><div class="lx_elem3"><span onclick="lx_sf(6311619)"><img src="/img/cmt.svg" />Предложения по документу</span><span onclick="lx_pa(6311619)"><img src="/img/vlm.svg" />Прослушать аудио</span><span onclick="lx_cl(6311619)"><img src="/img/lnk.svg" />Получить ссылку из элемента документа</span></div></div><div name="6311619" id="6311619">Ёнғин хавфсизлиги зоналарига чиқувчи лифтлар шахталарида ҚМҚ 2.04.05 талабларини ҳисобга олган ҳолда, ҳаво кириш вентилятори ўрнатилиши керак.</div></div><div class="ACT_TEXT lx_elem" onmousemove="lx_mo(event,6311620)"><div class="lx_elem2"><div class="lx_elem3"><span onclick="lx_sf(6311620)"><img src="/img/cmt.svg" />Предложения по документу</span><span onclick="lx_pa(6311620)"><img src="/img/vlm.svg" />Прослушать аудио</span><span onclick="lx_cl(6311620)"><img src="/img/lnk.svg" />Получить ссылку из элемента документа</span></div></div><div name="6311620" id="6311620">36. Ёнғин хавфсизлиги зонасининг майдони қаватдаги ногиронлиги бўлган шахслар сонини ва бир ногиронлиги бўлган шахсга 2,5 — 2,85 m² (ўриндиқли аравачанинг бурила олиши ва уни кузатувчи шахснинг сиғишини ҳам) ҳисобга олган ҳолда қабул қилиниши керак.</div></div><div class="ACT_TEXT lx_elem" onmousemove="lx_mo(event,6311621)"><div class="lx_elem2"><div class="lx_elem3"><span onclick="lx_sf(6311621)"><img src="/img/cmt.svg" />Предложения по документу</span><span onclick="lx_pa(6311621)"><img src="/img/vlm.svg" />Прослушать аудио</span><span onclick="lx_cl(6311621)"><img src="/img/lnk.svg" />Получить ссылку из элемента документа</span></div></div><div name="6311621" id="6311621">Ёнғин хавфсизлиги зонаси одамларни эвакуация қилиш учун зарур бўлган мосламаларни (ёнғин хавфсизлиги зонасидаги ҳар 10 та киши учун 2 та эвакуация ўриндиқли аравачаси ва эвакуация замбилини) ўрнатиш учун етарли жойга эга бўлиши лозим.</div></div><div class="ACT_TEXT lx_elem" onmousemove="lx_mo(event,6311622)"><div class="lx_elem2"><div class="lx_elem3"><span onclick="lx_sf(6311622)"><img src="/img/cmt.svg" />Предложения по документу</span><span onclick="lx_pa(6311622)"><img src="/img/vlm.svg" />Прослушать аудио</span><span onclick="lx_cl(6311622)"><img src="/img/lnk.svg" />Получить ссылку из элемента документа</span></div></div><div name="6311622" id="6311622">37. Тиббий-ижтимоий муассасалардаги девор ва шифтлар (ЁНМ) ёнмас гуруҳига кирувчи пардозлов-оқлаш материалларидан бўлиши керак, суст ёнувчи (Г1) материалларига ҳам рухсат берилади. Суриладиган тўсиқлар икки тарафидан (ЁНМ) ёнмас гуруҳига оид ёнмайдиган материаллар билан ҳимояланган бўлиши керак.</div></div><div class="ACT_TEXT lx_elem" onmousemove="lx_mo(event,6311623)"><div class="lx_elem2"><div class="lx_elem3"><span onclick="lx_sf(6311623)"><img src="/img/cmt.svg" />Предложения по документу</span><span onclick="lx_pa(6311623)"><img src="/img/vlm.svg" />Прослушать аудио</span><span onclick="lx_cl(6311623)"><img src="/img/lnk.svg" />Получить ссылку из элемента документа</span></div></div><div name="6311623" id="6311623">Кучли туташ қобилиятига эга, осон ёнувчан ҳамда хавфли заҳар чиқарувчи пол қопламаларидан фойдаланишга йўл қўйилмайди.</div></div><div class="ACT_TEXT lx_elem" onmousemove="lx_mo(event,6311624)"><div class="lx_elem2"><div class="lx_elem3"><span onclick="lx_sf(6311624)"><img src="/img/cmt.svg" />Предложения по документу</span><span onclick="lx_pa(6311624)"><img src="/img/vlm.svg" />Прослушать аудио</span><span onclick="lx_cl(6311624)"><img src="/img/lnk.svg" />Получить ссылку из элемента документа</span></div></div><div name="6311624" id="6311624">38. Ногиронлиги бўлган шахслар ташриф буюриши учун мўлжалланган хоналар ва уларнинг ҳаракатланиш йўлакларига жойлаштириладиган ёнғинга қарши автоматика ва ёнғин сигнализациясининг техник воситалари кўриш орқали (визуал) қабул қилинадиган, товушли ва тактилли маълумот етказишни таъминлаши лозим.</div></div><div class="ACT_TEXT lx_elem" onmousemove="lx_mo(event,6311649)"><div class="lx_elem2"><div class="lx_elem3"><span onclick="lx_sf(6311649)"><img src="/img/cmt.svg" />Предложения по документу</span><span onclick="lx_pa(6311649)"><img src="/img/vlm.svg" />Прослушать аудио</span><span onclick="lx_cl(6311649)"><img src="/img/lnk.svg" />Получить ссылку из элемента документа</span></div></div><div name="6311649" id="6311649">Бино ёки иншоотларнинг ички йўлакларида кўришда нуқсони бўлган шахсларнинг навигациясини таъминлаш мақсадида овозли ориентир олиш қурилмалари, тактил йўл қопламалари билан жиҳозланган бўлиши керак.</div></div><div class="ACT_TEXT lx_elem" onmousemove="lx_mo(event,6311650)"><div class="lx_elem2"><div class="lx_elem3"><span onclick="lx_sf(6311650)"><img src="/img/cmt.svg" />Предложения по документу</span><span onclick="lx_pa(6311650)"><img src="/img/vlm.svg" />Прослушать аудио</span><span onclick="lx_cl(6311650)"><img src="/img/lnk.svg" />Получить ссылку из элемента документа</span></div></div><div name="6311650" id="6311650">39. Табиий офатлар тўғрисида хабар бериш тизимига уланган ҳаракат йўналишини кўрсатувчи огоҳлантириш чироқлари ҳамда ёнғин хавфсизлиги билан боғлиқ бўлган эвакуация белгилари жамоат биноларига, шунингдек ногиронлиги бўлган шахсларнинг иш жойлари бўлган бино ва иншоотларга ўрнатилиши лозим.</div></div><div class="ACT_TEXT lx_elem" onmousemove="lx_mo(event,6311651)"><div class="lx_elem2"><div class="lx_elem3"><span onclick="lx_sf(6311651)"><img src="/img/cmt.svg" />Предложения по документу</span><span onclick="lx_pa(6311651)"><img src="/img/vlm.svg" />Прослушать аудио</span><span onclick="lx_cl(6311651)"><img src="/img/lnk.svg" />Получить ссылку из элемента документа</span></div></div><div name="6311651" id="6311651">40. Ногиронлиги бўлган шахсларнинг ҳамда кексаларнинг фақат бир ўзи бўлиши мумкин бўлган биноларнинг турли функционал вазифаларга мўлжалланган хоналари (ҳожатхона, ювиниш хоналари ва лифт) ҳамда ёнғин хавфсизлиги зоналари учун мослаштирилган лифт холлари ва ёнғин хавфсизлиги зоналари икки томонлама тутқичлар билан жиҳозланиши керак.</div></div><div class="TEXT_HEADER_DEFAULT lx_elem" onmousemove="lx_mo(event,6311652)"><div class="lx_elem2"><div class="lx_elem3"><span onclick="lx_sf(6311652)"><img src="/img/cmt.svg" />Предложения по документу</span><span onclick="lx_pa(6311652)"><img src="/img/vlm.svg" />Прослушать аудио</span><span onclick="lx_cl(6311652)"><img src="/img/lnk.svg" />Получить ссылку из элемента документа</span></div></div><div name="6311652" id="6311652">2-§. Ногиронлиги бўлган шахслар ҳамда кексалар эҳтиёжини инобатга олган ҳолда зиналар ва пандусларга қўйиладиган талаблар</div></div><div class="ACT_TEXT lx_elem" onmousemove="lx_mo(event,6311653)"><div class="lx_elem2"><div class="lx_elem3"><span onclick="lx_sf(6311653)"><img src="/img/cmt.svg" />Предложения по документу</span><span onclick="lx_pa(6311653)"><img src="/img/vlm.svg" />Прослушать аудио</span><span onclick="lx_cl(6311653)"><img src="/img/lnk.svg" />Получить ссылку из элемента документа</span></div></div><div name="6311653" id="6311653">41. Бино ва иншоотларнинг кириш қисмида ўриндиқли аравачалардаги ногиронлиги бўлган шахсларнинг кириши ва уларни эвакуация қилиниши учун (ер сатҳи ва ер остидан) пандуслар билан жиҳозланган бўлиши керак.</div></div><div class="ACT_TEXT lx_elem" onmousemove="lx_mo(event,6311654)"><div class="lx_elem2"><div class="lx_elem3"><span onclick="lx_sf(6311654)"><img src="/img/cmt.svg" />Предложения по документу</span><span onclick="lx_pa(6311654)"><img src="/img/vlm.svg" />Прослушать аудио</span><span onclick="lx_cl(6311654)"><img src="/img/lnk.svg" />Получить ссылку из элемента документа</span></div></div><div name="6311654" id="6311654">Иккинчи ва ундан юқори қаватлардан эвакуация қилиш йўли сифатида хизмат қилувчи зиналар бинодан унга тегишли ташқи ҳудудга чиқиш имкониятига эга бўлиши лозим.</div></div><div class="ACT_TEXT lx_elem" onmousemove="lx_mo(event,6311655)"><div class="lx_elem2"><div class="lx_elem3"><span onclick="lx_sf(6311655)"><img src="/img/cmt.svg" />Предложения по документу</span><span onclick="lx_pa(6311655)"><img src="/img/vlm.svg" />Прослушать аудио</span><span onclick="lx_cl(6311655)"><img src="/img/lnk.svg" />Получить ссылку из элемента документа</span></div></div><div name="6311655" id="6311655">Зиналар ва пандуслар тутқичлар билан жиҳозланган бўлиши керак.</div></div><div class="ACT_TEXT lx_elem" onmousemove="lx_mo(event,6311656)"><div class="lx_elem2"><div class="lx_elem3"><span onclick="lx_sf(6311656)"><img src="/img/cmt.svg" />Предложения по документу</span><span onclick="lx_pa(6311656)"><img src="/img/vlm.svg" />Прослушать аудио</span><span onclick="lx_cl(6311656)"><img src="/img/lnk.svg" />Получить ссылку из элемента документа</span></div></div><div name="6311656" id="6311656">Бино ва иншоотлар қурилишида пандусларни қуриш имкони бўлмаганда (цоколь қавати баланд бўлган ҳолда) ўриндиқли аравачадаги ногиронлиги бўлган шахсларнинг зиналардан кўтарила олиши учун махсус кўтариш мосламалари ўрнатилиши керак.</div></div><div class="ACT_TEXT lx_elem" onmousemove="lx_mo(event,6311657)"><div class="lx_elem2"><div class="lx_elem3"><span onclick="lx_sf(6311657)"><img src="/img/cmt.svg" />Предложения по документу</span><span onclick="lx_pa(6311657)"><img src="/img/vlm.svg" />Прослушать аудио</span><span onclick="lx_cl(6311657)"><img src="/img/lnk.svg" />Получить ссылку из элемента документа</span></div></div><div name="6311657" id="6311657">Кириш зонасидаги кенглиги 2,5 m ва ундан ортиқ бўлган очиқ зиналарда қўшимча ажратувчи тутқичлар бўлиши керак.</div></div><div class="ACT_TEXT lx_elem" onmousemove="lx_mo(event,6311658)"><div class="lx_elem2"><div class="lx_elem3"><span onclick="lx_sf(6311658)"><img src="/img/cmt.svg" />Предложения по документу</span><span onclick="lx_pa(6311658)"><img src="/img/vlm.svg" />Прослушать аудио</span><span onclick="lx_cl(6311658)"><img src="/img/lnk.svg" />Получить ссылку из элемента документа</span></div></div><div name="6311658" id="6311658">Кириш эшиклари ва ёнғинга қарши эшиклар ўзини ўзи ёпадиган мосламалар билан жиҳозланган ҳамда эшик тирқишлари мустаҳкам беркитиладиган бўлиши керак.</div></div><div class="ACT_TEXT lx_elem" onmousemove="lx_mo(event,6311659)"><div class="lx_elem2"><div class="lx_elem3"><span onclick="lx_sf(6311659)"><img src="/img/cmt.svg" />Предложения по документу</span><span onclick="lx_pa(6311659)"><img src="/img/vlm.svg" />Прослушать аудио</span><span onclick="lx_cl(6311659)"><img src="/img/lnk.svg" />Получить ссылку из элемента документа</span></div></div><div name="6311659" id="6311659">Бинонинг кириш зонаси 1,6 m дан кичик бўлмаган кириш майдончаси ва ёғингарчиликлардан ҳимоя қилувчи тамбурдан иборат бўлиши керак.</div></div><div class="ACT_TEXT lx_elem" onmousemove="lx_mo(event,6311660)"><div class="lx_elem2"><div class="lx_elem3"><span onclick="lx_sf(6311660)"><img src="/img/cmt.svg" />Предложения по документу</span><span onclick="lx_pa(6311660)"><img src="/img/vlm.svg" />Прослушать аудио</span><span onclick="lx_cl(6311660)"><img src="/img/lnk.svg" />Получить ссылку из элемента документа</span></div></div><div name="6311660" id="6311660">Кириш зонаси сигнализация ва ходимларни чақириш мосламалари билан жиҳозланиши керак.</div></div><div class="ACT_TEXT lx_elem" onmousemove="lx_mo(event,6311661)"><div class="lx_elem2"><div class="lx_elem3"><span onclick="lx_sf(6311661)"><img src="/img/cmt.svg" />Предложения по документу</span><span onclick="lx_pa(6311661)"><img src="/img/vlm.svg" />Прослушать аудио</span><span onclick="lx_cl(6311661)"><img src="/img/lnk.svg" />Получить ссылку из элемента документа</span></div></div><div name="6311661" id="6311661">Кириш зоналаридаги қопламалар юзаси қаттиқ, ҳўл бўлмайдиган ва сирпанчиқ бўлмаслиги керак. Уларнинг кўндаланг қиялиги 1-2 фоиз атрофида бўлиши лозим.</div></div><div class="ACT_TEXT lx_elem" onmousemove="lx_mo(event,6311662)"><div class="lx_elem2"><div class="lx_elem3"><span onclick="lx_sf(6311662)"><img src="/img/cmt.svg" />Предложения по документу</span><span onclick="lx_pa(6311662)"><img src="/img/vlm.svg" />Прослушать аудио</span><span onclick="lx_cl(6311662)"><img src="/img/lnk.svg" />Получить ссылку из элемента документа</span></div></div><div name="6311662" id="6311662">42. Тамбурларнинг эни камида 1,8 m ва узунлиги камида 2,2 m бўлиши керак.</div></div><div class="ACT_TEXT lx_elem" onmousemove="lx_mo(event,6311663)"><div class="lx_elem2"><div class="lx_elem3"><span onclick="lx_sf(6311663)"><img src="/img/cmt.svg" />Предложения по документу</span><span onclick="lx_pa(6311663)"><img src="/img/vlm.svg" />Прослушать аудио</span><span onclick="lx_cl(6311663)"><img src="/img/lnk.svg" />Получить ссылку из элемента документа</span></div></div><div name="6311663" id="6311663">43. Нишабликлар, зиналар ва пандуслар олдидаги сув оқизмалари, қор-ёмғир сувларини қабул қилиш мосламалари, сув оқизиш ариқчаларининг дренажли панжаралари, яшил ўсимликларни ҳимоя қилувчи панжарали тўсиқлар, ҳар қандай мақсад учун коммуникацияларнинг люклари ва қопқоқларини пиёдалар йўллари юриш қисми габаритлари чегарасидан ташқарига жойлаштириш лозим.</div></div><div class="ACT_TEXT lx_elem" onmousemove="lx_mo(event,6311666)"><div class="lx_elem2"><div class="lx_elem3"><span onclick="lx_sf(6311666)"><img src="/img/cmt.svg" />Предложения по документу</span><span onclick="lx_pa(6311666)"><img src="/img/vlm.svg" />Прослушать аудио</span><span onclick="lx_cl(6311666)"><img src="/img/lnk.svg" />Получить ссылку из элемента документа</span></div></div><div name="6311666" id="6311666">Пиёдалар йўлкаларини кесиб ўтувчи горизонтал панжараларни (пиёдалар йўлагига перпендикуляр ҳолатда йўналтирилганда) ўрнатишга йўл қўйилади.</div></div><div class="ACT_TEXT lx_elem" onmousemove="lx_mo(event,6311667)"><div class="lx_elem2"><div class="lx_elem3"><span onclick="lx_sf(6311667)"><img src="/img/cmt.svg" />Предложения по документу</span><span onclick="lx_pa(6311667)"><img src="/img/vlm.svg" />Прослушать аудио</span><span onclick="lx_cl(6311667)"><img src="/img/lnk.svg" />Получить ссылку из элемента документа</span></div></div><div name="6311667" id="6311667">Ушбу панжаралар майда ячейкали бўлиб, тешикларининг диаметри 15 mm бўлиши лозим. Люклар қопқоқларининг қовурғаси ва люклар устки қисмидаги бошқа конструктив элементларнинг баландлиги 5 mm дан ошмаслиги керак.</div></div><div class="ACT_TEXT lx_elem" onmousemove="lx_mo(event,6311668)"><div class="lx_elem2"><div class="lx_elem3"><span onclick="lx_sf(6311668)"><img src="/img/cmt.svg" />Предложения по документу</span><span onclick="lx_pa(6311668)"><img src="/img/vlm.svg" />Прослушать аудио</span><span onclick="lx_cl(6311668)"><img src="/img/lnk.svg" />Получить ссылку из элемента документа</span></div></div><div name="6311668" id="6311668">44. Автовокзаллар ва темир йўл вокзалларининг пассажир платформасига (перронга) олиб чиқувчи туннелларида пандусларнинг тўсиқлар орасидаги кенглиги 1,5 m бўлиши ҳамда тутқичлар 0,7 — 0,9 m баландликда бўлиши керак. Пандуснинг қиялиги 1:10, юзаси қаттиқ ва ғадир-будур (сирпанишга йўл қўймайдиган) бўлиши керак.</div></div><div class="ACT_TEXT lx_elem" onmousemove="lx_mo(event,6311669)"><div class="lx_elem2"><div class="lx_elem3"><span onclick="lx_sf(6311669)"><img src="/img/cmt.svg" />Предложения по документу</span><span onclick="lx_pa(6311669)"><img src="/img/vlm.svg" />Прослушать аудио</span><span onclick="lx_cl(6311669)"><img src="/img/lnk.svg" />Получить ссылку из элемента документа</span></div></div><div name="6311669" id="6311669">45. Ҳаракатланиш йўлларида қалинлиги 13 mm дан ортиқ бўлган тукли гиламларнинг қўлланилишига йўл қўйилмайди. Ҳаракатланиш йўлларидаги гилам қопламалари, айниқса чоклари ва турли хил қопламалар уланган жойлари пишиқ мустаҳкамланган бўлиши керак.</div></div><div class="ACT_TEXT lx_elem" onmousemove="lx_mo(event,6311670)"><div class="lx_elem2"><div class="lx_elem3"><span onclick="lx_sf(6311670)"><img src="/img/cmt.svg" />Предложения по документу</span><span onclick="lx_pa(6311670)"><img src="/img/vlm.svg" />Прослушать аудио</span><span onclick="lx_cl(6311670)"><img src="/img/lnk.svg" />Получить ссылку из элемента документа</span></div></div><div name="6311670" id="6311670">46. Ўқув хоналаридаги кўргазма доскаси ва ўқув столларининг олдинги қатори орасидаги масофа 1,8 m дан кам бўлмаслиги керак.</div></div><div class="ACT_TEXT lx_elem" onmousemove="lx_mo(event,6311671)"><div class="lx_elem2"><div class="lx_elem3"><span onclick="lx_sf(6311671)"><img src="/img/cmt.svg" />Предложения по документу</span><span onclick="lx_pa(6311671)"><img src="/img/vlm.svg" />Прослушать аудио</span><span onclick="lx_cl(6311671)"><img src="/img/lnk.svg" />Получить ссылку из элемента документа</span></div></div><div name="6311671" id="6311671">Кўргазма столи мавжуд лаборатория хоналари ва катта аудиторияларда кўргазма доскаси ва ўқув столларининг олдинги қатори орасидаги масофа 2,55 m дан кам бўлмаслиги керак.</div></div><div class="ACT_TEXT lx_elem" onmousemove="lx_mo(event,6311672)"><div class="lx_elem2"><div class="lx_elem3"><span onclick="lx_sf(6311672)"><img src="/img/cmt.svg" />Предложения по документу</span><span onclick="lx_pa(6311672)"><img src="/img/vlm.svg" />Прослушать аудио</span><span onclick="lx_cl(6311672)"><img src="/img/lnk.svg" />Получить ссылку из элемента документа</span></div></div><div name="6311672" id="6311672">Жиҳозлари ва мебеллари мавжуд бўлган ходимлар учун мўлжалланган хонанинг асосий ўтиш жойининг кенглиги 1,5 m дан кам бўлмаслиги, иккинчи даражали ўтиш жойларининг кенглиги 1,2 m дан кам бўлмаслиги керак.</div></div><div class="ACT_TEXT lx_elem" onmousemove="lx_mo(event,6311673)"><div class="lx_elem2"><div class="lx_elem3"><span onclick="lx_sf(6311673)"><img src="/img/cmt.svg" />Предложения по документу</span><span onclick="lx_pa(6311673)"><img src="/img/vlm.svg" />Прослушать аудио</span><span onclick="lx_cl(6311673)"><img src="/img/lnk.svg" />Получить ссылку из элемента документа</span></div></div><div name="6311673" id="6311673">47. Ўриндиқли аравачадаги ногиронлиги бўлган шахсларнинг мустақил равишда 90 — 180° га бурила олиши учун майдоннинг диаметри 1,4 m дан кам бўлмаслиги керак.</div></div><div class="ACT_TEXT lx_elem" onmousemove="lx_mo(event,6311674)"><div class="lx_elem2"><div class="lx_elem3"><span onclick="lx_sf(6311674)"><img src="/img/cmt.svg" />Предложения по документу</span><span onclick="lx_pa(6311674)"><img src="/img/vlm.svg" />Прослушать аудио</span><span onclick="lx_cl(6311674)"><img src="/img/lnk.svg" />Получить ссылку из элемента документа</span></div></div><div name="6311674" id="6311674">Столлар, пештахталар ва бошқа хизмат кўрсатиш жойлари, деворга ўрнатиладиган жиҳозлар ва қурилмалар яқинидаги бўш жойнинг ўлчамлари камида 0,9х1,2 m бўлиши керак. Бунда, мазкур бўш жой ўлчамларининг тавсиявий намунаси ушбу ШНҚнинг <a href="/ru/docs/6311402#6312354">13 </a>ва <a href="/ru/docs/6311402#6312381">14-иловаларда </a>назарда тутилган.</div></div><div class="ACT_TEXT lx_elem" onmousemove="lx_mo(event,6311679)"><div class="lx_elem2"><div class="lx_elem3"><span onclick="lx_sf(6311679)"><img src="/img/cmt.svg" />Предложения по документу</span><span onclick="lx_pa(6311679)"><img src="/img/vlm.svg" />Прослушать аудио</span><span onclick="lx_cl(6311679)"><img src="/img/lnk.svg" />Получить ссылку из элемента документа</span></div></div><div name="6311679" id="6311679">Эшик итарилиб очилганда, аравачани эркин бошқариш учун жойнинг эни камида 1,2 m, эшик тортиб очилганда эса 1,5 m дан кам бўлмаслиги керак. Бунда аравачани эркин бошқариш учун жойнинг узунлиги камида 1,5 m бўлиши лозим. Эшиклар олдидаги ҳаракатланиш майдони параметрлари мазкур ШНҚнинг <a href="/ru/docs/6311402#6312514">15 </a>ва <a href="/ru/docs/6311402#6312534">16-иловаларида </a>келтирилган.</div></div><div class="ACT_TEXT lx_elem" onmousemove="lx_mo(event,6311680)"><div class="lx_elem2"><div class="lx_elem3"><span onclick="lx_sf(6311680)"><img src="/img/cmt.svg" />Предложения по документу</span><span onclick="lx_pa(6311680)"><img src="/img/vlm.svg" />Прослушать аудио</span><span onclick="lx_cl(6311680)"><img src="/img/lnk.svg" />Получить ссылку из элемента документа</span></div></div><div name="6311680" id="6311680">48. Эшиклар, зиналар ва пандусларга чиқиш жойлари олдидан 0,6 m масофада огоҳлантирувчи тактил қопламалар билан қопланган ва контраст рангли юзага эга бўлиши керак. Пандус ва зиналар олидидаги тактил қопламалар тавсиявий намунаси мазкур ШНҚнинг <a href="/ru/docs/6311402#6312540">17</a>, <a href="/ru/docs/6311402#6312553">18 </a>ва <a href="/ru/docs/6311402#6312621">19-иловаларида </a>келтирилган.</div></div><div class="ACT_TEXT lx_elem" onmousemove="lx_mo(event,6311682)"><div class="lx_elem2"><div class="lx_elem3"><span onclick="lx_sf(6311682)"><img src="/img/cmt.svg" />Предложения по документу</span><span onclick="lx_pa(6311682)"><img src="/img/vlm.svg" />Прослушать аудио</span><span onclick="lx_cl(6311682)"><img src="/img/lnk.svg" />Получить ссылку из элемента документа</span></div></div><div name="6311682" id="6311682">Эшик ўринларидаги бўсағалар (кесаки-остоналар) ва поллар баланд-паст бўлмаслиги лозим. Бўсағаларни ўрнатиш зарур бўлган ҳолларда уларнинг баландликлари 0,014 m дан ошмаслиги керак.</div></div><div class="ACT_TEXT lx_elem" onmousemove="lx_mo(event,6311683)"><div class="lx_elem2"><div class="lx_elem3"><span onclick="lx_sf(6311683)"><img src="/img/cmt.svg" />Предложения по документу</span><span onclick="lx_pa(6311683)"><img src="/img/vlm.svg" />Прослушать аудио</span><span onclick="lx_cl(6311683)"><img src="/img/lnk.svg" />Получить ссылку из элемента документа</span></div></div><div name="6311683" id="6311683">49. Бинолар ичидаги зиналар ва пандусларни лойиҳалашда ШНҚ 2.01.02 ва <a href="/ru/docs/4444291">ШНҚ 2.08.02 </a>талабларига риоя қилиш керак.</div></div><div class="ACT_TEXT lx_elem" onmousemove="lx_mo(event,6311684)"><div class="lx_elem2"><div class="lx_elem3"><span onclick="lx_sf(6311684)"><img src="/img/cmt.svg" />Предложения по документу</span><span onclick="lx_pa(6311684)"><img src="/img/vlm.svg" />Прослушать аудио</span><span onclick="lx_cl(6311684)"><img src="/img/lnk.svg" />Получить ссылку из элемента документа</span></div></div><div name="6311684" id="6311684">Зина маршининг кенглигини қуйидагича қабул қилиш лозим:</div></div><div class="ACT_TEXT lx_elem" onmousemove="lx_mo(event,6311686)"><div class="lx_elem2"><div class="lx_elem3"><span onclick="lx_sf(6311686)"><img src="/img/cmt.svg" />Предложения по документу</span><span onclick="lx_pa(6311686)"><img src="/img/vlm.svg" />Прослушать аудио</span><span onclick="lx_cl(6311686)"><img src="/img/lnk.svg" />Получить ссылку из элемента документа</span></div></div><div name="6311686" id="6311686">Ф1.1, Ф2.1, Ф2.2, Ф3.4, Ф4.1 синфларга мансуб биноларда ҳамда биринчи қаватдан ташқари бошқа барча қаватларида 200 кишидан ортиқ одамлар бўладиган биноларда эвакуацияга мўлжалланган зиналар учун — 1,35 m;</div></div><div class="ACT_TEXT lx_elem" onmousemove="lx_mo(event,6311687)"><div class="lx_elem2"><div class="lx_elem3"><span onclick="lx_sf(6311687)"><img src="/img/cmt.svg" />Предложения по документу</span><span onclick="lx_pa(6311687)"><img src="/img/vlm.svg" />Прослушать аудио</span><span onclick="lx_cl(6311687)"><img src="/img/lnk.svg" />Получить ссылку из элемента документа</span></div></div><div name="6311687" id="6311687">биринчи қаватдан ташқари бошқа барча қаватларида 600 кишидан ортиқ одамлар бўладиган биноларда — 1,6 m;</div></div><div class="ACT_TEXT lx_elem" onmousemove="lx_mo(event,6311688)"><div class="lx_elem2"><div class="lx_elem3"><span onclick="lx_sf(6311688)"><img src="/img/cmt.svg" />Предложения по документу</span><span onclick="lx_pa(6311688)"><img src="/img/vlm.svg" />Прослушать аудио</span><span onclick="lx_cl(6311688)"><img src="/img/lnk.svg" />Получить ссылку из элемента документа</span></div></div><div name="6311688" id="6311688">Ф1.3, Ф1.4, Ф5 синфлардаги бинолардан ташқари бошқа бинолар учун — 1,2 m;</div></div><div class="ACT_TEXT lx_elem" onmousemove="lx_mo(event,6311691)"><div class="lx_elem2"><div class="lx_elem3"><span onclick="lx_sf(6311691)"><img src="/img/cmt.svg" />Предложения по документу</span><span onclick="lx_pa(6311691)"><img src="/img/vlm.svg" />Прослушать аудио</span><span onclick="lx_cl(6311691)"><img src="/img/lnk.svg" />Получить ссылку из элемента документа</span></div></div><div name="6311691" id="6311691">Ф1.3 синфдаги бинолар учун — 1,05 m.</div></div><div class="ACT_TEXT lx_elem" onmousemove="lx_mo(event,6311692)"><div class="lx_elem2"><div class="lx_elem3"><span onclick="lx_sf(6311692)"><img src="/img/cmt.svg" />Предложения по документу</span><span onclick="lx_pa(6311692)"><img src="/img/vlm.svg" />Прослушать аудио</span><span onclick="lx_cl(6311692)"><img src="/img/lnk.svg" />Получить ссылку из элемента документа</span></div></div><div name="6311692" id="6311692">Марш кенглиги 2,5 m ва ундан ортиқ бўлган зиналар ажратувчи тутқичларга эга бўлиши керак.</div></div><div class="ACT_TEXT lx_elem" onmousemove="lx_mo(event,6311693)"><div class="lx_elem2"><div class="lx_elem3"><span onclick="lx_sf(6311693)"><img src="/img/cmt.svg" />Предложения по документу</span><span onclick="lx_pa(6311693)"><img src="/img/vlm.svg" />Прослушать аудио</span><span onclick="lx_cl(6311693)"><img src="/img/lnk.svg" />Получить ссылку из элемента документа</span></div></div><div name="6311693" id="6311693">Зина поғоналарининг кенглиги 0,3 m дан кам бўлмаслиги, зина поғоналарининг баландлиги эса 0,15 m дан баланд бўлмаслиги керак. Зинанинг қиялиги 1:2 дан ошмаслиги лозим. Зина поғоналари яхлит, текис, ғадир-будир қопламали бўлиши керак. Зина поғоналарининг қирралари 5 sm радиусдан кўп бўлмаган яссиликда бўлиши керак. Зинанинг деворга туташмаган четки тарафлари 0,15 — 0,20 m баландликдаги бортларга эга бўлиши керак.</div></div><div class="ACT_TEXT lx_elem" onmousemove="lx_mo(event,6311695)"><div class="lx_elem2"><div class="lx_elem3"><span onclick="lx_sf(6311695)"><img src="/img/cmt.svg" />Предложения по документу</span><span onclick="lx_pa(6311695)"><img src="/img/vlm.svg" />Прослушать аудио</span><span onclick="lx_cl(6311695)"><img src="/img/lnk.svg" />Получить ссылку из элемента документа</span></div></div><div name="6311695" id="6311695">50. Баландлиги 0,45 m бўлган зиналар, пандуслар, қияликларда икки тарафдан тутқичли тўсиқлар ўрнатилиши керак. Пандусларнинг тутқичи 0,7 — 0,9 m баландликда, зиналарнинг тутқичи 0,9 m баландликда (мактабгача таълим ташкилотларида 0,5 m баландликда) бўлиши назарда тутилади.</div></div><div class="ACT_TEXT lx_elem" onmousemove="lx_mo(event,6311696)"><div class="lx_elem2"><div class="lx_elem3"><span onclick="lx_sf(6311696)"><img src="/img/cmt.svg" />Предложения по документу</span><span onclick="lx_pa(6311696)"><img src="/img/vlm.svg" />Прослушать аудио</span><span onclick="lx_cl(6311696)"><img src="/img/lnk.svg" />Получить ссылку из элемента документа</span></div></div><div name="6311696" id="6311696">Тутқичлар зинапоянинг ички тарафидан бутун узунлик бўйлаб яхлит бўлиши керак. Тутқичнинг якунловчи қисми марш ёки пандус қиялигидан 0,3 m га узунроқ бўлиши керак.</div></div><div class="ACT_TEXT lx_elem" onmousemove="lx_mo(event,6311697)"><div class="lx_elem2"><div class="lx_elem3"><span onclick="lx_sf(6311697)"><img src="/img/cmt.svg" />Предложения по документу</span><span onclick="lx_pa(6311697)"><img src="/img/vlm.svg" />Прослушать аудио</span><span onclick="lx_cl(6311697)"><img src="/img/lnk.svg" />Получить ссылку из элемента документа</span></div></div><div name="6311697" id="6311697">51. Қиялиги 8 фоиздан ошмаган бир пандус маршининг максимал баландлиги 0,8 m дан ошмаслиги керак. Ҳаракатланиш йўлларидаги поллар баландлиги 0,2 m ва ундан камроққа пасайганда пандуснинг қиялиги 10 фоизга оширилишига йўл қўйилади.</div></div><div class="ACT_TEXT lx_elem" onmousemove="lx_mo(event,6311699)"><div class="lx_elem2"><div class="lx_elem3"><span onclick="lx_sf(6311699)"><img src="/img/cmt.svg" />Предложения по документу</span><span onclick="lx_pa(6311699)"><img src="/img/vlm.svg" />Прослушать аудио</span><span onclick="lx_cl(6311699)"><img src="/img/lnk.svg" />Получить ссылку из элемента документа</span></div></div><div name="6311699" id="6311699">Винтли пандуслардан истисно ҳоллардагина фойдаланишга рухсат берилади. Пандусларнинг кенглиги 1,0 m дан кам бўлмаслиги керак.</div></div><div class="ACT_TEXT lx_elem" onmousemove="lx_mo(event,6311700)"><div class="lx_elem2"><div class="lx_elem3"><span onclick="lx_sf(6311700)"><img src="/img/cmt.svg" />Предложения по документу</span><span onclick="lx_pa(6311700)"><img src="/img/vlm.svg" />Прослушать аудио</span><span onclick="lx_cl(6311700)"><img src="/img/lnk.svg" />Получить ссылку из элемента документа</span></div></div><div name="6311700" id="6311700">Ҳасса ёки оёқ сирпаниб кетишини олдини олиш учун пандус маршларининг четларида, шунингдек 0,45 m дан ортиқ баландлик қиялигида ва горизонтал юзанинг четларида 15 — 20 sm баландликдаги бортларни назарда тутиш керак.</div></div><div class="ACT_TEXT lx_elem" onmousemove="lx_mo(event,6311701)"><div class="lx_elem2"><div class="lx_elem3"><span onclick="lx_sf(6311701)"><img src="/img/cmt.svg" />Предложения по документу</span><span onclick="lx_pa(6311701)"><img src="/img/vlm.svg" />Прослушать аудио</span><span onclick="lx_cl(6311701)"><img src="/img/lnk.svg" />Получить ссылку из элемента документа</span></div></div><div name="6311701" id="6311701">Пандусни кўтариб турувчи конструкцияларнинг оловбардошлиги Р60 дан кам бўлмаган ЁНМ гуруҳига кирувчи материаллардан ишланиши керак, шунингдек пандусларнинг тўсиқ конструкциялари оловбардошлиги Р120 дан кам бўлмаслиги керак.</div></div><div class="ACT_TEXT lx_elem" onmousemove="lx_mo(event,6311702)"><div class="lx_elem2"><div class="lx_elem3"><span onclick="lx_sf(6311702)"><img src="/img/cmt.svg" />Предложения по документу</span><span onclick="lx_pa(6311702)"><img src="/img/vlm.svg" />Прослушать аудио</span><span onclick="lx_cl(6311702)"><img src="/img/lnk.svg" />Получить ссылку из элемента документа</span></div></div><div name="6311702" id="6311702">Зина маршининг ташқи тарафи, тутқичларнинг юқори ёки ён тарафларининг юзасига қаватларнинг рельефли белгилари (Брайл алифбосида) жойлаштирилиши назарда тутилади (бунда рақамлар 1,5х1,0 sm, рельефнинг баландлиги 0,2 sm дан кам бўлмаслиги керак).</div></div><div class="ACT_TEXT lx_elem" onmousemove="lx_mo(event,6311704)"><div class="lx_elem2"><div class="lx_elem3"><span onclick="lx_sf(6311704)"><img src="/img/cmt.svg" />Предложения по документу</span><span onclick="lx_pa(6311704)"><img src="/img/vlm.svg" />Прослушать аудио</span><span onclick="lx_cl(6311704)"><img src="/img/lnk.svg" />Получить ссылку из элемента документа</span></div></div><div name="6311704" id="6311704">52. Шаффоф эшиклар ва тўсиқлар зарбга чидамли материаллардан ишлаб чиқилган бўлиши керак. Эшикларнинг шаффоф табақалари юзасида, ҳаракатланиш йўли сатҳидан 1,2 m дан паст ва 1,5 m дан баланд бўлмаган қисмида бўйи 10 sm дан, кенглиги 20 sm дан кичик бўлмаган контрастли белги жойлаштирилиши назарда тутилган бўлиши лозим.</div></div><div class="ACT_TEXT lx_elem" onmousemove="lx_mo(event,6311705)"><div class="lx_elem2"><div class="lx_elem3"><span onclick="lx_sf(6311705)"><img src="/img/cmt.svg" />Предложения по документу</span><span onclick="lx_pa(6311705)"><img src="/img/vlm.svg" />Прослушать аудио</span><span onclick="lx_cl(6311705)"><img src="/img/lnk.svg" />Получить ссылку из элемента документа</span></div></div><div name="6311705" id="6311705">53. Ногиронлиги бўлган шахслар кирадиган ташқи эшикларнинг юзаси шаффоф, зарбга чидамли материалдан ишланган кўриш панеллари ўрнатилиши назарда тутилиши керак.</div></div><div class="ACT_TEXT lx_elem" onmousemove="lx_mo(event,6311706)"><div class="lx_elem2"><div class="lx_elem3"><span onclick="lx_sf(6311706)"><img src="/img/cmt.svg" />Предложения по документу</span><span onclick="lx_pa(6311706)"><img src="/img/vlm.svg" />Прослушать аудио</span><span onclick="lx_cl(6311706)"><img src="/img/lnk.svg" />Получить ссылку из элемента документа</span></div></div><div name="6311706" id="6311706">Эшик юзасининг пастки қисми полдан 0,3 m баландликкача зарбга чидамли қоплама билан ҳимояланиши керак.</div></div><div class="ACT_TEXT lx_elem" onmousemove="lx_mo(event,6311708)"><div class="lx_elem2"><div class="lx_elem3"><span onclick="lx_sf(6311708)"><img src="/img/cmt.svg" />Предложения по документу</span><span onclick="lx_pa(6311708)"><img src="/img/vlm.svg" />Прослушать аудио</span><span onclick="lx_cl(6311708)"><img src="/img/lnk.svg" />Получить ссылку из элемента документа</span></div></div><div name="6311708" id="6311708">54. Бино ва иншоотларнинг қаватларидаги эвакуация чиқиш жойларининг сони ва зиналарнинг тури ШНҚ 2.01.02, ШНҚ 2.08.01 ва <a href="/ru/docs/4444291">ШНҚ 2.08.02</a> ларда белгиланган талаблар асосида қабул қилиниши керак.</div></div><div class="ACT_TEXT lx_elem" onmousemove="lx_mo(event,6311714)"><div class="lx_elem2"><div class="lx_elem3"><span onclick="lx_sf(6311714)"><img src="/img/cmt.svg" />Предложения по документу</span><span onclick="lx_pa(6311714)"><img src="/img/vlm.svg" />Прослушать аудио</span><span onclick="lx_cl(6311714)"><img src="/img/lnk.svg" />Получить ссылку из элемента документа</span></div></div><div name="6311714" id="6311714">55. Томоша ва спорт залларида ҳамда кўнгилочар комплексларда ногиронлиги бўлган шахслар учун ажратиладиган ўринлар бевосита эвакуация чиқишига олиб борувчи йўлакларга яқин жойлаштирилиши керак.</div></div><div class="ACT_TEXT lx_elem" onmousemove="lx_mo(event,6311715)"><div class="lx_elem2"><div class="lx_elem3"><span onclick="lx_sf(6311715)"><img src="/img/cmt.svg" />Предложения по документу</span><span onclick="lx_pa(6311715)"><img src="/img/vlm.svg" />Прослушать аудио</span><span onclick="lx_cl(6311715)"><img src="/img/lnk.svg" />Получить ссылку из элемента документа</span></div></div><div name="6311715" id="6311715">Ногиронлиги бўлган шахслар ўрнини жойлаштиришда эвакуация пайтида бошқа томошабинларнинг эвакуация қилиш йўллари билан тўқнашмаслигини назарда тутиш тавсия этилади.</div></div><div class="ACT_TEXT lx_elem" onmousemove="lx_mo(event,6311716)"><div class="lx_elem2"><div class="lx_elem3"><span onclick="lx_sf(6311716)"><img src="/img/cmt.svg" />Предложения по документу</span><span onclick="lx_pa(6311716)"><img src="/img/vlm.svg" />Прослушать аудио</span><span onclick="lx_cl(6311716)"><img src="/img/lnk.svg" />Получить ссылку из элемента документа</span></div></div><div name="6311716" id="6311716">Томоша, спорт ва кўнгилочар залларидаги ногиронлиги бўлган шахслар ўрнидан эвакуация чиқишигача масофа 25 m дан ошмаслиги керак, бунда йўлакнинг кенглиги 1,2 m дан кам бўлмаслиги керак. Ўриндиқли аравача йўлининг кенглиги 1,5 m дан кам бўлмаслиги лозим.</div></div><div class="ACT_TEXT lx_elem" onmousemove="lx_mo(event,6311717)"><div class="lx_elem2"><div class="lx_elem3"><span onclick="lx_sf(6311717)"><img src="/img/cmt.svg" />Предложения по документу</span><span onclick="lx_pa(6311717)"><img src="/img/vlm.svg" />Прослушать аудио</span><span onclick="lx_cl(6311717)"><img src="/img/lnk.svg" />Получить ссылку из элемента документа</span></div></div><div name="6311717" id="6311717">Умумовқатланиш муассасалари залларида ногиронлиги бўлган шахслар учун ўринлар чиқиш жойига яқин қилиб жойлаштирилиши керак.</div></div><div class="ACT_TEXT lx_elem" onmousemove="lx_mo(event,6311718)"><div class="lx_elem2"><div class="lx_elem3"><span onclick="lx_sf(6311718)"><img src="/img/cmt.svg" />Предложения по документу</span><span onclick="lx_pa(6311718)"><img src="/img/vlm.svg" />Прослушать аудио</span><span onclick="lx_cl(6311718)"><img src="/img/lnk.svg" />Получить ссылку из элемента документа</span></div></div><div name="6311718" id="6311718">56. Эвакуация йўлларининг кенглиги қуйидагилардан кам бўлмаслиги керак, (m):</div></div><div class="ACT_TEXT lx_elem" onmousemove="lx_mo(event,6311720)"><div class="lx_elem2"><div class="lx_elem3"><span onclick="lx_sf(6311720)"><img src="/img/cmt.svg" />Предложения по документу</span><span onclick="lx_pa(6311720)"><img src="/img/vlm.svg" />Прослушать аудио</span><span onclick="lx_cl(6311720)"><img src="/img/lnk.svg" />Получить ссылку из элемента документа</span></div></div><div name="6311720" id="6311720">15 кишигача бўлган хонанинг эшиклари — 0,9 m дан;</div></div><div class="ACT_TEXT lx_elem" onmousemove="lx_mo(event,6311721)"><div class="lx_elem2"><div class="lx_elem3"><span onclick="lx_sf(6311721)"><img src="/img/cmt.svg" />Предложения по документу</span><span onclick="lx_pa(6311721)"><img src="/img/vlm.svg" />Прослушать аудио</span><span onclick="lx_cl(6311721)"><img src="/img/lnk.svg" />Получить ссылку из элемента документа</span></div></div><div name="6311721" id="6311721">35 кишигача бўлган ўқув хоналари эшиклари — 1,2 m дан;</div></div><div class="ACT_TEXT lx_elem" onmousemove="lx_mo(event,6311723)"><div class="lx_elem2"><div class="lx_elem3"><span onclick="lx_sf(6311723)"><img src="/img/cmt.svg" />Предложения по документу</span><span onclick="lx_pa(6311723)"><img src="/img/vlm.svg" />Прослушать аудио</span><span onclick="lx_cl(6311723)"><img src="/img/lnk.svg" />Получить ссылку из элемента документа</span></div></div><div name="6311723" id="6311723">тирқиш ва эшиклар, хоналардан ўтиш жойи — 1,5 m дан;</div></div><div class="ACT_TEXT lx_elem" onmousemove="lx_mo(event,6311724)"><div class="lx_elem2"><div class="lx_elem3"><span onclick="lx_sf(6311724)"><img src="/img/cmt.svg" />Предложения по документу</span><span onclick="lx_pa(6311724)"><img src="/img/vlm.svg" />Прослушать аудио</span><span onclick="lx_cl(6311724)"><img src="/img/lnk.svg" />Получить ссылку из элемента документа</span></div></div><div name="6311724" id="6311724">жамоат бинолари йўлаклари — 1,5 m дан;</div></div><div class="ACT_TEXT lx_elem" onmousemove="lx_mo(event,6311726)"><div class="lx_elem2"><div class="lx_elem3"><span onclick="lx_sf(6311726)"><img src="/img/cmt.svg" />Предложения по документу</span><span onclick="lx_pa(6311726)"><img src="/img/vlm.svg" />Прослушать аудио</span><span onclick="lx_cl(6311726)"><img src="/img/lnk.svg" />Получить ссылку из элемента документа</span></div></div><div name="6311726" id="6311726">лоджия ёки балкон орқали ўтадиган йўллар — 1,5 m дан.</div></div><div class="ACT_TEXT lx_elem" onmousemove="lx_mo(event,6311727)"><div class="lx_elem2"><div class="lx_elem3"><span onclick="lx_sf(6311727)"><img src="/img/cmt.svg" />Предложения по документу</span><span onclick="lx_pa(6311727)"><img src="/img/vlm.svg" />Прослушать аудио</span><span onclick="lx_cl(6311727)"><img src="/img/lnk.svg" />Получить ссылку из элемента документа</span></div></div><div name="6311727" id="6311727">57. Юқори қаватлардан эвакуация йўли бўлиб хизмат қиладиган зиналар ва пандуслар ташқарига чиқиш эшиклари билан бевосита боғланган бўлиши керак.</div></div><div class="ACT_TEXT lx_elem" onmousemove="lx_mo(event,6311728)"><div class="lx_elem2"><div class="lx_elem3"><span onclick="lx_sf(6311728)"><img src="/img/cmt.svg" />Предложения по документу</span><span onclick="lx_pa(6311728)"><img src="/img/vlm.svg" />Прослушать аудио</span><span onclick="lx_cl(6311728)"><img src="/img/lnk.svg" />Получить ссылку из элемента документа</span></div></div><div name="6311728" id="6311728">Зиналар ва пандусларнинг параметрлари ва қияликлари ШНҚ 2.01.02, ШНҚ 2.08.01 ва <a href="/ru/docs/4444291">ШНҚ 2.08.02</a> талабларига мувофиқ бўлиши керак.</div></div><div class="ACT_TEXT lx_elem" onmousemove="lx_mo(event,6311729)"><div class="lx_elem2"><div class="lx_elem3"><span onclick="lx_sf(6311729)"><img src="/img/cmt.svg" />Предложения по документу</span><span onclick="lx_pa(6311729)"><img src="/img/vlm.svg" />Прослушать аудио</span><span onclick="lx_cl(6311729)"><img src="/img/lnk.svg" />Получить ссылку из элемента документа</span></div></div><div name="6311729" id="6311729">Ногиронлиги бўлган шахсларни очиқ металл зиналар орқали эвакуация қилишга йўл қўйилмайди.</div></div><div class="ACT_TEXT lx_elem" onmousemove="lx_mo(event,6311730)"><div class="lx_elem2"><div class="lx_elem3"><span onclick="lx_sf(6311730)"><img src="/img/cmt.svg" />Предложения по документу</span><span onclick="lx_pa(6311730)"><img src="/img/vlm.svg" />Прослушать аудио</span><span onclick="lx_cl(6311730)"><img src="/img/lnk.svg" />Получить ссылку из элемента документа</span></div></div><div name="6311730" id="6311730">58. Эвакуация йўллари конструкциялари ёнғин хавфсизлигининг КО синфига оид бўлиши керак. Уларнинг оловбардошлик чегараси ва пардозлов-оқлаш материаллари ШНҚ 2.01.02 ва амалдаги шаҳарсозлик нормалари ва қоидалари талабларига мос бўлиши керак.</div></div><div class="TEXT_HEADER_DEFAULT lx_elem" onmousemove="lx_mo(event,6311731)"><div class="lx_elem2"><div class="lx_elem3"><span onclick="lx_sf(6311731)"><img src="/img/cmt.svg" />Предложения по документу</span><span onclick="lx_pa(6311731)"><img src="/img/vlm.svg" />Прослушать аудио</span><span onclick="lx_cl(6311731)"><img src="/img/lnk.svg" />Получить ссылку из элемента документа</span></div></div><div name="6311731" id="6311731">3-§. Лифтлар ва кўтаргичларга қўйиладиган талаблар</div></div><div class="ACT_TEXT lx_elem" onmousemove="lx_mo(event,6311733)"><div class="lx_elem2"><div class="lx_elem3"><span onclick="lx_sf(6311733)"><img src="/img/cmt.svg" />Предложения по документу</span><span onclick="lx_pa(6311733)"><img src="/img/vlm.svg" />Прослушать аудио</span><span onclick="lx_cl(6311733)"><img src="/img/lnk.svg" />Получить ссылку из элемента документа</span></div></div><div name="6311733" id="6311733">59. Бино ва иншоотлардаги лифтлар қурилмаси ШНҚ 2.08.01 ва <a href="/ru/docs/4444291">ШНҚ 2.08.02</a> га, шунингдек мазкур ШНҚда белгиланган лифт холларига қўйиладиган талабларга мос келиши керак.</div></div><div class="ACT_TEXT lx_elem" onmousemove="lx_mo(event,6311736)"><div class="lx_elem2"><div class="lx_elem3"><span onclick="lx_sf(6311736)"><img src="/img/cmt.svg" />Предложения по документу</span><span onclick="lx_pa(6311736)"><img src="/img/vlm.svg" />Прослушать аудио</span><span onclick="lx_cl(6311736)"><img src="/img/lnk.svg" />Получить ссылку из элемента документа</span></div></div><div name="6311736" id="6311736">Ўриндиқли аравачадаги ногиронлиги бўлган шахслар учун уларнинг иккинчи ва ундан юқори қаватларга, зал ҳамда ташриф хоналарига, шунингдек меҳнат фаолияти билан боғлиқ бўлган иш жойларига етиб олишларини таъминлаш учун лифтлар ва кўтариш мосламалари лойиҳаланиши керак.</div></div><div class="ACT_TEXT lx_elem" onmousemove="lx_mo(event,6311737)"><div class="lx_elem2"><div class="lx_elem3"><span onclick="lx_sf(6311737)"><img src="/img/cmt.svg" />Предложения по документу</span><span onclick="lx_pa(6311737)"><img src="/img/vlm.svg" />Прослушать аудио</span><span onclick="lx_cl(6311737)"><img src="/img/lnk.svg" />Получить ссылку из элемента документа</span></div></div><div name="6311737" id="6311737">Ўриндиқли аравача ёрдамида бинонинг юқори қаватларига кўтариш усулларини танлаш лойиҳалаштириш топшириғига мувофиқ белгиланади.</div></div><div class="ACT_TEXT lx_elem" onmousemove="lx_mo(event,6311739)"><div class="lx_elem2"><div class="lx_elem3"><span onclick="lx_sf(6311739)"><img src="/img/cmt.svg" />Предложения по документу</span><span onclick="lx_pa(6311739)"><img src="/img/vlm.svg" />Прослушать аудио</span><span onclick="lx_cl(6311739)"><img src="/img/lnk.svg" />Получить ссылку из элемента документа</span></div></div><div name="6311739" id="6311739">Лифт ёки кўтариш мосламаларидан ногиронлиги бўлган шахслар жойлашган хоналаргача бўлган масофа 50 m дан ошмаслиги керак.</div></div><div class="ACT_TEXT lx_elem" onmousemove="lx_mo(event,6311740)"><div class="lx_elem2"><div class="lx_elem3"><span onclick="lx_sf(6311740)"><img src="/img/cmt.svg" />Предложения по документу</span><span onclick="lx_pa(6311740)"><img src="/img/vlm.svg" />Прослушать аудио</span><span onclick="lx_cl(6311740)"><img src="/img/lnk.svg" />Получить ссылку из элемента документа</span></div></div><div name="6311740" id="6311740">Бинода лифт бўлмаса, унда ўриндиқли аравачадаги ногиронлиги бўлган шахслар учун кўтариш мосламалари (платформалар) ўрнатилиши керак. Кўтариш мосламаларининг чиқиш жойи ногиронлиги бўлган шахслар ташриф буюрадиган ва улар яшайдиган хоналар жойлашган қаватлар билан бир сатҳда бўлиши керак.</div></div><div class="ACT_TEXT lx_elem" onmousemove="lx_mo(event,6311742)"><div class="lx_elem2"><div class="lx_elem3"><span onclick="lx_sf(6311742)"><img src="/img/cmt.svg" />Предложения по документу</span><span onclick="lx_pa(6311742)"><img src="/img/vlm.svg" />Прослушать аудио</span><span onclick="lx_cl(6311742)"><img src="/img/lnk.svg" />Получить ссылку из элемента документа</span></div></div><div name="6311742" id="6311742">60. Ўриндиқли аравачадаги ногиронлиги бўлган шахслар учун лифтлар кабинасининг ички ўлчамлари:</div></div><div class="ACT_TEXT lx_elem" onmousemove="lx_mo(event,6311743)"><div class="lx_elem2"><div class="lx_elem3"><span onclick="lx_sf(6311743)"><img src="/img/cmt.svg" />Предложения по документу</span><span onclick="lx_pa(6311743)"><img src="/img/vlm.svg" />Прослушать аудио</span><span onclick="lx_cl(6311743)"><img src="/img/lnk.svg" />Получить ссылку из элемента документа</span></div></div><div name="6311743" id="6311743">эни 1,2 m;</div></div><div class="ACT_TEXT lx_elem" onmousemove="lx_mo(event,6311745)"><div class="lx_elem2"><div class="lx_elem3"><span onclick="lx_sf(6311745)"><img src="/img/cmt.svg" />Предложения по документу</span><span onclick="lx_pa(6311745)"><img src="/img/vlm.svg" />Прослушать аудио</span><span onclick="lx_cl(6311745)"><img src="/img/lnk.svg" />Получить ссылку из элемента документа</span></div></div><div name="6311745" id="6311745">узунлиги 1,4 m;</div></div><div class="ACT_TEXT lx_elem" onmousemove="lx_mo(event,6311747)"><div class="lx_elem2"><div class="lx_elem3"><span onclick="lx_sf(6311747)"><img src="/img/cmt.svg" />Предложения по документу</span><span onclick="lx_pa(6311747)"><img src="/img/vlm.svg" />Прослушать аудио</span><span onclick="lx_cl(6311747)"><img src="/img/lnk.svg" />Получить ссылку из элемента документа</span></div></div><div name="6311747" id="6311747">эшик кенглиги 0,9 m дан кам бўлмаслиги лозим.</div></div><div class="ACT_TEXT lx_elem" onmousemove="lx_mo(event,6311750)"><div class="lx_elem2"><div class="lx_elem3"><span onclick="lx_sf(6311750)"><img src="/img/cmt.svg" />Предложения по документу</span><span onclick="lx_pa(6311750)"><img src="/img/vlm.svg" />Прослушать аудио</span><span onclick="lx_cl(6311750)"><img src="/img/lnk.svg" />Получить ссылку из элемента документа</span></div></div><div name="6311750" id="6311750">Лифт параметрларининг тавсиявий чизмаси мазкур ШНҚнинг <a href="/ru/docs/6311402#6312688">20 </a>ва <a href="/ru/docs/6311402#6312712">21-иловаларида </a>назарда тутилган.</div></div><div class="ACT_TEXT lx_elem" onmousemove="lx_mo(event,6311752)"><div class="lx_elem2"><div class="lx_elem3"><span onclick="lx_sf(6311752)"><img src="/img/cmt.svg" />Предложения по документу</span><span onclick="lx_pa(6311752)"><img src="/img/vlm.svg" />Прослушать аудио</span><span onclick="lx_cl(6311752)"><img src="/img/lnk.svg" />Получить ссылку из элемента документа</span></div></div><div name="6311752" id="6311752">61. Лифтларнинг кириш йўлаги кўрсатмали тактил қопламага эга бўлиши лозим. Ҳар бир лифт қурилмаси ичкари ва ташқари томонидан визуал-товуш сигналлари комбинацияларига эга бўлиши ва лифтнинг ҳаракат йўналишини билиш учун ташқи тарафдан лифт эшигининг ёнида визуал сигнал қурилмалари бўлиши керак. </div></div><div class="ACT_TEXT lx_elem" onmousemove="lx_mo(event,6311754)"><div class="lx_elem2"><div class="lx_elem3"><span onclick="lx_sf(6311754)"><img src="/img/cmt.svg" />Предложения по документу</span><span onclick="lx_pa(6311754)"><img src="/img/vlm.svg" />Прослушать аудио</span><span onclick="lx_cl(6311754)"><img src="/img/lnk.svg" />Получить ссылку из элемента документа</span></div></div><div name="6311754" id="6311754">Визуал сигнал қурилмалари ердан камида 1,2 m баландликда, визуал сигнал қурилмаларидаги элементларнинг шакли камида 6,4 sm баландликда бўлиши керак.</div></div><div class="ACT_TEXT lx_elem" onmousemove="lx_mo(event,6311756)"><div class="lx_elem2"><div class="lx_elem3"><span onclick="lx_sf(6311756)"><img src="/img/cmt.svg" />Предложения по документу</span><span onclick="lx_pa(6311756)"><img src="/img/vlm.svg" />Прослушать аудио</span><span onclick="lx_cl(6311756)"><img src="/img/lnk.svg" />Получить ссылку из элемента документа</span></div></div><div name="6311756" id="6311756">Лифтнинг ички ва ташқи тарафида мавжуд ўрнатилган тугмачалардаги белгилар босма ва Брайл алифбосида ёзилган бўлиши, шунингдек Брайл алифбоси белгилари босма белгиларни мазмунан такрорлаши керак.</div></div><div class="TEXT_HEADER_DEFAULT lx_elem" onmousemove="lx_mo(event,6311782)"><div class="lx_elem2"><div class="lx_elem3"><span onclick="lx_sf(6311782)"><img src="/img/cmt.svg" />Предложения по документу</span><span onclick="lx_pa(6311782)"><img src="/img/vlm.svg" />Прослушать аудио</span><span onclick="lx_cl(6311782)"><img src="/img/lnk.svg" />Получить ссылку из элемента документа</span></div></div><div name="6311782" id="6311782">4-§. Ногиронлиги бўлган шахслар ҳамда кексалар эҳтиёжини инобатга олган ҳолда жамоат биноларидаги хизмат кўрсатиш жойларига қўйиладиган талаблар</div></div><div class="ACT_TEXT lx_elem" onmousemove="lx_mo(event,6311783)"><div class="lx_elem2"><div class="lx_elem3"><span onclick="lx_sf(6311783)"><img src="/img/cmt.svg" />Предложения по документу</span><span onclick="lx_pa(6311783)"><img src="/img/vlm.svg" />Прослушать аудио</span><span onclick="lx_cl(6311783)"><img src="/img/lnk.svg" />Получить ссылку из элемента документа</span></div></div><div name="6311783" id="6311783">62. Жамоат биноларининг ўриндиқли аравачадаги ногиронлиги бўлган шахсларга хизмат кўрсатиш махсус зоналари мазкур бинолар умумий сиғимининг 5 фоизи ёки ташриф буюрувчилар умумий сонининг 5 фоизи миқдорида олинади, бу кўрсаткичлар лойиҳа топшириғида белгиланади.</div></div><div class="ACT_TEXT lx_elem" onmousemove="lx_mo(event,6311784)"><div class="lx_elem2"><div class="lx_elem3"><span onclick="lx_sf(6311784)"><img src="/img/cmt.svg" />Предложения по документу</span><span onclick="lx_pa(6311784)"><img src="/img/vlm.svg" />Прослушать аудио</span><span onclick="lx_cl(6311784)"><img src="/img/lnk.svg" />Получить ссылку из элемента документа</span></div></div><div name="6311784" id="6311784">63. Ногиронлиги бўлган шахслар бино ва иншоотларда қулай ҳаракатланиши учун ушбу бино ва иншоотларнинг ҳар бир қаватида маълумотлар зонаси бўлиши, шунингдек 2-3 кишилик дам олиш зонаси ҳамда бир ёки икки ўриндиқли аравача туриши учун махсус жой ажратилишини назарда тутиш керак. Бино ва иншоотларнинг ички йўлаклари оралиғидаги дам олиш зоналарини ташкиллаштиришнинг тавсиявий чизмаси мазкур ШНҚнинг <a href="/ru/docs/6311402#6312754">22-иловасида </a>назарда тутилган.</div></div><div class="ACT_TEXT lx_elem" onmousemove="lx_mo(event,6311785)"><div class="lx_elem2"><div class="lx_elem3"><span onclick="lx_sf(6311785)"><img src="/img/cmt.svg" />Предложения по документу</span><span onclick="lx_pa(6311785)"><img src="/img/vlm.svg" />Прослушать аудио</span><span onclick="lx_cl(6311785)"><img src="/img/lnk.svg" />Получить ссылку из элемента документа</span></div></div><div name="6311785" id="6311785">64. Ўриндиқли аравачадаги ногиронлиги бўлган шахсларнинг аудиториялар, ўқув хоналари, томошабинлар зали, кутубхоналар, ошхона ва ресторанлар, кафе залларидаги ўринлари тез ва қулай эвакуация қилишни ҳисобга олиб жойлаштирилиши ҳамда бу орқали камида иккита эвакуация чиқиш йўлларига етиб бориши таъминланиши лозим.</div></div><div class="ACT_TEXT lx_elem" onmousemove="lx_mo(event,6311786)"><div class="lx_elem2"><div class="lx_elem3"><span onclick="lx_sf(6311786)"><img src="/img/cmt.svg" />Предложения по документу</span><span onclick="lx_pa(6311786)"><img src="/img/vlm.svg" />Прослушать аудио</span><span onclick="lx_cl(6311786)"><img src="/img/lnk.svg" />Получить ссылку из элемента документа</span></div></div><div name="6311786" id="6311786">Сиғими кўпи билан 35 кишига мўлжалланган ўқув хоналарида ва кутубхона залларида ногиронлиги бўлган шахсларнинг ўринлари чиқиш жойига яқин бўлган биринчи қаторда жойлаштирилиши керак.</div></div><div class="ACT_TEXT lx_elem" onmousemove="lx_mo(event,6311787)"><div class="lx_elem2"><div class="lx_elem3"><span onclick="lx_sf(6311787)"><img src="/img/cmt.svg" />Предложения по документу</span><span onclick="lx_pa(6311787)"><img src="/img/vlm.svg" />Прослушать аудио</span><span onclick="lx_cl(6311787)"><img src="/img/lnk.svg" />Получить ссылку из элемента документа</span></div></div><div name="6311787" id="6311787">Сиғими 50 ва ундан ортиқ кишига мўлжалланган аудиториялар ва томоша залларида ўриндиқли аравачадаги ногиронлиги бўлган шахслар учун ўринлар залдан иккита чиқиш жойига яқинроқ бўлиши керак.</div></div><div class="ACT_TEXT lx_elem" onmousemove="lx_mo(event,6311788)"><div class="lx_elem2"><div class="lx_elem3"><span onclick="lx_sf(6311788)"><img src="/img/cmt.svg" />Предложения по документу</span><span onclick="lx_pa(6311788)"><img src="/img/vlm.svg" />Прослушать аудио</span><span onclick="lx_cl(6311788)"><img src="/img/lnk.svg" />Получить ссылку из элемента документа</span></div></div><div name="6311788" id="6311788">Сиғими 800 ва ундан ортиқ кишига мўлжалланган ўриндиқли залларда ўриндиқли аравачадаги ногиронлиги бўлган шахслар тарқоқ ҳолда залнинг ҳар бир эвакуация чиқиш жойи яқинида уч нафардан ортиқ жойлаштирилмаслиги керак.</div></div><div class="ACT_TEXT lx_elem" onmousemove="lx_mo(event,6311789)"><div class="lx_elem2"><div class="lx_elem3"><span onclick="lx_sf(6311789)"><img src="/img/cmt.svg" />Предложения по документу</span><span onclick="lx_pa(6311789)"><img src="/img/vlm.svg" />Прослушать аудио</span><span onclick="lx_cl(6311789)"><img src="/img/lnk.svg" />Получить ссылку из элемента документа</span></div></div><div name="6311789" id="6311789">Ҳар бир аудитория ёки ўқув хонасида ўриндиқли аравачадаги ногиронлиги бўлган шахслар учун ўринлар миқдори 3 тадан кам бўлмаслиги керак.</div></div><div class="ACT_TEXT lx_elem" onmousemove="lx_mo(event,6311790)"><div class="lx_elem2"><div class="lx_elem3"><span onclick="lx_sf(6311790)"><img src="/img/cmt.svg" />Предложения по документу</span><span onclick="lx_pa(6311790)"><img src="/img/vlm.svg" />Прослушать аудио</span><span onclick="lx_cl(6311790)"><img src="/img/lnk.svg" />Получить ссылку из элемента документа</span></div></div><div name="6311790" id="6311790">65. Саҳна олдида, шунингдек залнинг охиридаги эвакуация чиқиш жойларида ўриндиқли аравачадаги ногиронлиги бўлган шахсларни тўсиқсиз эвакуация қилиш учун кенглиги 1,5 m дан кам бўлмаган эркин ўтиш зоналари ёки майдончалари кўзда тутилиши керак.</div></div><div class="ACT_TEXT lx_elem" onmousemove="lx_mo(event,6311791)"><div class="lx_elem2"><div class="lx_elem3"><span onclick="lx_sf(6311791)"><img src="/img/cmt.svg" />Предложения по документу</span><span onclick="lx_pa(6311791)"><img src="/img/vlm.svg" />Прослушать аудио</span><span onclick="lx_cl(6311791)"><img src="/img/lnk.svg" />Получить ссылку из элемента документа</span></div></div><div name="6311791" id="6311791">Аудиториялар, амфитеатрлар ва томоша залларида ногиронлиги бўлган шахслар учун мўлжалланган ўринлар ёки зоналарда ҳимоя тўсиқларининг ўрнатилиши тавсия қилинади.</div></div><div class="ACT_TEXT lx_elem" onmousemove="lx_mo(event,6311792)"><div class="lx_elem2"><div class="lx_elem3"><span onclick="lx_sf(6311792)"><img src="/img/cmt.svg" />Предложения по документу</span><span onclick="lx_pa(6311792)"><img src="/img/vlm.svg" />Прослушать аудио</span><span onclick="lx_cl(6311792)"><img src="/img/lnk.svg" />Получить ссылку из элемента документа</span></div></div><div name="6311792" id="6311792">66. Сиғими 50 кишидан ортиқ бўлган, қўзғалмас ўриндиқлар билан жиҳозланган аудиториялар, маъруза ва томоша залларида эшитишда нуқсони бўлган шахслар учун махсус ўриндиқлар (умумий сиғимнинг 4 фоизи) товуш манбаидан 10 m дан узоқ бўлмаган масофада жойлаштирилиши ҳамда индивидуал эшитиш тизимлари (воситалари) билан жиҳозланиши керак.</div></div><div class="ACT_TEXT lx_elem" onmousemove="lx_mo(event,6311793)"><div class="lx_elem2"><div class="lx_elem3"><span onclick="lx_sf(6311793)"><img src="/img/cmt.svg" />Предложения по документу</span><span onclick="lx_pa(6311793)"><img src="/img/vlm.svg" />Прослушать аудио</span><span onclick="lx_cl(6311793)"><img src="/img/lnk.svg" />Получить ссылку из элемента документа</span></div></div><div name="6311793" id="6311793">Ушбу ўринлар эстрада, саҳна, «имо-ишора» тилига ўгирувчи сурдотаржимонларга кўриниб турадиган зонада жойлаштирилиши керак.</div></div><div class="ACT_TEXT lx_elem" onmousemove="lx_mo(event,6311794)"><div class="lx_elem2"><div class="lx_elem3"><span onclick="lx_sf(6311794)"><img src="/img/cmt.svg" />Предложения по документу</span><span onclick="lx_pa(6311794)"><img src="/img/vlm.svg" />Прослушать аудио</span><span onclick="lx_cl(6311794)"><img src="/img/lnk.svg" />Получить ссылку из элемента документа</span></div></div><div name="6311794" id="6311794">67. Музей ва кўргазма залларида ўриндиқли аравачадаги ногиронлиги бўлган шахслар экспозициялар бўйлаб тўсиқсиз ҳаракатланиши учун қулай шароит яратилиши керак. Асосий йўлнинг кенглиги 2,0 m дан кам бўлмаслиги, ташриф буюрувчиларнинг оқими кўп бўлган залларда эса 2,4 m дан кам бўлмаслиги керак.</div></div><div class="ACT_TEXT lx_elem" onmousemove="lx_mo(event,6311795)"><div class="lx_elem2"><div class="lx_elem3"><span onclick="lx_sf(6311795)"><img src="/img/cmt.svg" />Предложения по документу</span><span onclick="lx_pa(6311795)"><img src="/img/vlm.svg" />Прослушать аудио</span><span onclick="lx_cl(6311795)"><img src="/img/lnk.svg" />Получить ссылку из элемента документа</span></div></div><div name="6311795" id="6311795">Эвакуация чиқиш жойларининг яқинида ногиронлиги бўлган шахслар дам олиши учун махсус зоналарни назарда тутиш зарур (бунда, махсус зоналарнинг майдони 1,5х1,5 m дан кам бўлмаслиги керак).</div></div><div class="ACT_TEXT lx_elem" onmousemove="lx_mo(event,6311796)"><div class="lx_elem2"><div class="lx_elem3"><span onclick="lx_sf(6311796)"><img src="/img/cmt.svg" />Предложения по документу</span><span onclick="lx_pa(6311796)"><img src="/img/vlm.svg" />Прослушать аудио</span><span onclick="lx_cl(6311796)"><img src="/img/lnk.svg" />Получить ссылку из элемента документа</span></div></div><div name="6311796" id="6311796">68. Банклар, меҳмонхоналар, чипталар сотувчи ва хизматлар тўловини амалга оширувчи кассалар, маъмурий муассасалар, савдо-маиший корхоналарида барьерлар, пештахталар, столлар ва бошқа хизмат кўрсатувчи бинолардаги жиҳозлар баландлиги ўриндиқли аравачадаги ташриф буюрувчилар учун пол сатҳидан 0,8 m дан ортиқ бўлмаслиги лозим.</div></div><div class="ACT_TEXT lx_elem" onmousemove="lx_mo(event,6311797)"><div class="lx_elem2"><div class="lx_elem3"><span onclick="lx_sf(6311797)"><img src="/img/cmt.svg" />Предложения по документу</span><span onclick="lx_pa(6311797)"><img src="/img/vlm.svg" />Прослушать аудио</span><span onclick="lx_cl(6311797)"><img src="/img/lnk.svg" />Получить ссылку из элемента документа</span></div></div><div name="6311797" id="6311797">Шунингдек, хоналардаги жиҳозлар пол сатҳидан 1,2 m дан баланд ва 0,4 m дан паст бўлмаслиги, ташриф буюрувчининг ён томонидаги жиҳозлар жойлашган майдон эса пол сатҳидан 1,4 m дан баланд ва 0,3 m дан паст бўлмаслиги керак. </div></div><div class="ACT_TEXT lx_elem" onmousemove="lx_mo(event,6311798)"><div class="lx_elem2"><div class="lx_elem3"><span onclick="lx_sf(6311798)"><img src="/img/cmt.svg" />Предложения по документу</span><span onclick="lx_pa(6311798)"><img src="/img/vlm.svg" />Прослушать аудио</span><span onclick="lx_cl(6311798)"><img src="/img/lnk.svg" />Получить ссылку из элемента документа</span></div></div><div name="6311798" id="6311798">Ўриндиқли аравачада ҳаракатланадиган ногиронлиги бўлган шахсларнинг антропометрик параметрлари мазкур ШНҚнинг <a href="/ru/docs/6311402#6312797">23-иловасида </a>назарда тутилган.</div></div><div class="ACT_TEXT lx_elem" onmousemove="lx_mo(event,6311799)"><div class="lx_elem2"><div class="lx_elem3"><span onclick="lx_sf(6311799)"><img src="/img/cmt.svg" />Предложения по документу</span><span onclick="lx_pa(6311799)"><img src="/img/vlm.svg" />Прослушать аудио</span><span onclick="lx_cl(6311799)"><img src="/img/lnk.svg" />Получить ссылку из элемента документа</span></div></div><div name="6311799" id="6311799">69. Спорт иншоотлари, спорт ва тренажёр заллари ҳамда бассейнлар ногиронлиги бўлган шахсларнинг жисмоний имкониятларини ҳисобга олган ҳолда машғулотлар ўташ учун технологик жиҳозлар билан таъминланиши керак.</div></div><div class="ACT_TEXT lx_elem" onmousemove="lx_mo(event,6311800)"><div class="lx_elem2"><div class="lx_elem3"><span onclick="lx_sf(6311800)"><img src="/img/cmt.svg" />Предложения по документу</span><span onclick="lx_pa(6311800)"><img src="/img/vlm.svg" />Прослушать аудио</span><span onclick="lx_cl(6311800)"><img src="/img/lnk.svg" />Получить ссылку из элемента документа</span></div></div><div name="6311800" id="6311800">Бассейнларни лойиҳалашда мазкур ШНҚ талаблари ҳисобга олиниши керак.</div></div><div class="ACT_TEXT lx_elem" onmousemove="lx_mo(event,6311801)"><div class="lx_elem2"><div class="lx_elem3"><span onclick="lx_sf(6311801)"><img src="/img/cmt.svg" />Предложения по документу</span><span onclick="lx_pa(6311801)"><img src="/img/vlm.svg" />Прослушать аудио</span><span onclick="lx_cl(6311801)"><img src="/img/lnk.svg" />Получить ссылку из элемента документа</span></div></div><div name="6311801" id="6311801">Спорт заллари ва бошқа спорт иншоотларининг ечиниш хоналарида қуйидагиларни назарда тутиш лозим:</div></div><div class="ACT_TEXT lx_elem" onmousemove="lx_mo(event,6311802)"><div class="lx_elem2"><div class="lx_elem3"><span onclick="lx_sf(6311802)"><img src="/img/cmt.svg" />Предложения по документу</span><span onclick="lx_pa(6311802)"><img src="/img/vlm.svg" />Прослушать аудио</span><span onclick="lx_cl(6311802)"><img src="/img/lnk.svg" />Получить ссылку из элемента документа</span></div></div><div name="6311802" id="6311802">қўлтиқтаёқ ёки протезлар учун токчаларининг баландлиги 1,2 m дан ошмайдиган кийим-кечакка мўлжалланган шахсий шкафлар;</div></div><div class="ACT_TEXT lx_elem" onmousemove="lx_mo(event,6311803)"><div class="lx_elem2"><div class="lx_elem3"><span onclick="lx_sf(6311803)"><img src="/img/cmt.svg" />Предложения по документу</span><span onclick="lx_pa(6311803)"><img src="/img/vlm.svg" />Прослушать аудио</span><span onclick="lx_cl(6311803)"><img src="/img/lnk.svg" />Получить ссылку из элемента документа</span></div></div><div name="6311803" id="6311803">кенглиги камида 0,7 m, узунлиги 3 m ва баландлиги 0,5 m бўлган ечиниш шкафи олдида ўриндиқлар;</div></div><div class="ACT_TEXT lx_elem" onmousemove="lx_mo(event,6311804)"><div class="lx_elem2"><div class="lx_elem3"><span onclick="lx_sf(6311804)"><img src="/img/cmt.svg" />Предложения по документу</span><span onclick="lx_pa(6311804)"><img src="/img/vlm.svg" />Прослушать аудио</span><span onclick="lx_cl(6311804)"><img src="/img/lnk.svg" />Получить ссылку из элемента документа</span></div></div><div name="6311804" id="6311804">ўлчамлари камида 1,8х1,8 m бўлган кийим алмаштириш хоналари;</div></div><div class="ACT_TEXT lx_elem" onmousemove="lx_mo(event,6311805)"><div class="lx_elem2"><div class="lx_elem3"><span onclick="lx_sf(6311805)"><img src="/img/cmt.svg" />Предложения по документу</span><span onclick="lx_pa(6311805)"><img src="/img/vlm.svg" />Прослушать аудио</span><span onclick="lx_cl(6311805)"><img src="/img/lnk.svg" />Получить ссылку из элемента документа</span></div></div><div name="6311805" id="6311805">ўлчамлари 1,5х1,5 m бўлган ўриндиқли аравачаларни вақтинча сақлаш жойлари.</div></div><div class="ACT_TEXT lx_elem" onmousemove="lx_mo(event,6311806)"><div class="lx_elem2"><div class="lx_elem3"><span onclick="lx_sf(6311806)"><img src="/img/cmt.svg" />Предложения по документу</span><span onclick="lx_pa(6311806)"><img src="/img/vlm.svg" />Прослушать аудио</span><span onclick="lx_cl(6311806)"><img src="/img/lnk.svg" />Получить ссылку из элемента документа</span></div></div><div name="6311806" id="6311806">Спорт иншоотлари, спорт ва тренажёр заллари ҳамда бассейнлардаги кабиналар ва очиқ кийим алмаштириш жойларига (ўриндиқларга) қулай етиб боришни таъминлаш мақсадида кенглиги камида 1,6 m бўлган ўтиш жойлари лойиҳаланиши лозим.</div></div><div class="ACT_TEXT lx_elem" onmousemove="lx_mo(event,6311807)"><div class="lx_elem2"><div class="lx_elem3"><span onclick="lx_sf(6311807)"><img src="/img/cmt.svg" />Предложения по документу</span><span onclick="lx_pa(6311807)"><img src="/img/vlm.svg" />Прослушать аудио</span><span onclick="lx_cl(6311807)"><img src="/img/lnk.svg" />Получить ссылку из элемента документа</span></div></div><div name="6311807" id="6311807">Бир сменада шуғулланувчи иккита ногиронлиги бўлган шахслар учун камида битта кабина ҳисобида берилади.</div></div><div class="TEXT_HEADER_DEFAULT lx_elem" onmousemove="lx_mo(event,6311808)"><div class="lx_elem2"><div class="lx_elem3"><span onclick="lx_sf(6311808)"><img src="/img/cmt.svg" />Предложения по документу</span><span onclick="lx_pa(6311808)"><img src="/img/vlm.svg" />Прослушать аудио</span><span onclick="lx_cl(6311808)"><img src="/img/lnk.svg" />Получить ссылку из элемента документа</span></div></div><div name="6311808" id="6311808">5-§. Ногиронлиги бўлган шахслар ҳамда кексалар эҳтиёжини инобатга олган ҳолда турар жой хоналарига қўйиладиган талаблар</div></div><div class="ACT_TEXT lx_elem" onmousemove="lx_mo(event,6311809)"><div class="lx_elem2"><div class="lx_elem3"><span onclick="lx_sf(6311809)"><img src="/img/cmt.svg" />Предложения по документу</span><span onclick="lx_pa(6311809)"><img src="/img/vlm.svg" />Прослушать аудио</span><span onclick="lx_cl(6311809)"><img src="/img/lnk.svg" />Получить ссылку из элемента документа</span></div></div><div name="6311809" id="6311809">70. Ногиронлиги бўлган шахслар ва кексалар учун турар жой лойиҳалари ШНҚ 2.08.01 га мувофиқ ишлаб чиқилиши лозим.</div></div><div class="ACT_TEXT lx_elem" onmousemove="lx_mo(event,6311811)"><div class="lx_elem2"><div class="lx_elem3"><span onclick="lx_sf(6311811)"><img src="/img/cmt.svg" />Предложения по документу</span><span onclick="lx_pa(6311811)"><img src="/img/vlm.svg" />Прослушать аудио</span><span onclick="lx_cl(6311811)"><img src="/img/lnk.svg" />Получить ссылку из элемента документа</span></div></div><div name="6311811" id="6311811">Жамоат бинолари, шунингдек меҳмонхоналар, дам олиш муассасалари ва тиббий-ижтимоий муассасалар қуйидаги талабларни ҳисобга олиб лойиҳалаштирилиши керак:</div></div><div class="ACT_TEXT lx_elem" onmousemove="lx_mo(event,6311813)"><div class="lx_elem2"><div class="lx_elem3"><span onclick="lx_sf(6311813)"><img src="/img/cmt.svg" />Предложения по документу</span><span onclick="lx_pa(6311813)"><img src="/img/vlm.svg" />Прослушать аудио</span><span onclick="lx_cl(6311813)"><img src="/img/lnk.svg" />Получить ссылку из элемента документа</span></div></div><div name="6311813" id="6311813">устувор равишда биринчи қаватда бўлиши;</div></div><div class="ACT_TEXT lx_elem" onmousemove="lx_mo(event,6311814)"><div class="lx_elem2"><div class="lx_elem3"><span onclick="lx_sf(6311814)"><img src="/img/cmt.svg" />Предложения по документу</span><span onclick="lx_pa(6311814)"><img src="/img/vlm.svg" />Прослушать аудио</span><span onclick="lx_cl(6311814)"><img src="/img/lnk.svg" />Получить ссылку из элемента документа</span></div></div><div name="6311814" id="6311814">ногиронлиги бўлган шахсларни турар жойидан эвакуация чиқиш жойигача бўлган масофа 50 m дан ошмаслиги;</div></div><div class="ACT_TEXT lx_elem" onmousemove="lx_mo(event,6311816)"><div class="lx_elem2"><div class="lx_elem3"><span onclick="lx_sf(6311816)"><img src="/img/cmt.svg" />Предложения по документу</span><span onclick="lx_pa(6311816)"><img src="/img/vlm.svg" />Прослушать аудио</span><span onclick="lx_cl(6311816)"><img src="/img/lnk.svg" />Получить ссылку из элемента документа</span></div></div><div name="6311816" id="6311816">ташриф буюрувчиларнинг хоналарга қулай етиб боришини таъминлаш керак.</div></div><div class="ACT_TEXT lx_elem" onmousemove="lx_mo(event,6311817)"><div class="lx_elem2"><div class="lx_elem3"><span onclick="lx_sf(6311817)"><img src="/img/cmt.svg" />Предложения по документу</span><span onclick="lx_pa(6311817)"><img src="/img/vlm.svg" />Прослушать аудио</span><span onclick="lx_cl(6311817)"><img src="/img/lnk.svg" />Получить ссылку из элемента документа</span></div></div><div name="6311817" id="6311817">Турар жойларни лойиҳалашда ўриндиқли аравачадаги ногиронлиги бўлган шахсларнинг талаблари билан бир қаторда, кўришда ва эшитишда нуқсони бўлган шахсларнинг ҳам талаблари ҳисобга олиниб, маълумот сигнализацияларининг турли (товушли ёки чироқли) мосламаларининг ўрнатилиши ҳисобга олиниши керак.</div></div><div class="ACT_TEXT lx_elem" onmousemove="lx_mo(event,6311818)"><div class="lx_elem2"><div class="lx_elem3"><span onclick="lx_sf(6311818)"><img src="/img/cmt.svg" />Предложения по документу</span><span onclick="lx_pa(6311818)"><img src="/img/vlm.svg" />Прослушать аудио</span><span onclick="lx_cl(6311818)"><img src="/img/lnk.svg" />Получить ссылку из элемента документа</span></div></div><div name="6311818" id="6311818">Меҳмонхоналар, тиббий-ижтимоий муассасаларда ўринларнинг умумий сонидан 5 — 8 фоизи ўриндиқли аравачадаги ногиронлиги бўлган шахсларни жойлаштириш учун мўлжалланиши лозим.</div></div><div class="ACT_TEXT lx_elem" onmousemove="lx_mo(event,6311820)"><div class="lx_elem2"><div class="lx_elem3"><span onclick="lx_sf(6311820)"><img src="/img/cmt.svg" />Предложения по документу</span><span onclick="lx_pa(6311820)"><img src="/img/vlm.svg" />Прослушать аудио</span><span onclick="lx_cl(6311820)"><img src="/img/lnk.svg" />Получить ссылку из элемента документа</span></div></div><div name="6311820" id="6311820">Бир нафар ўриндиқли аравачадаги ногиронлиги бўлган шахс ҳамда кузатувчиси учун мослаштирилган меҳмонхона хоналарининг тавсиявий чизмаси мазкур ШНҚнинг <a href="/ru/docs/6311402#6312812">24-иловасида </a>назарда тутилган.</div></div><div class="ACT_TEXT lx_elem" onmousemove="lx_mo(event,6311821)"><div class="lx_elem2"><div class="lx_elem3"><span onclick="lx_sf(6311821)"><img src="/img/cmt.svg" />Предложения по документу</span><span onclick="lx_pa(6311821)"><img src="/img/vlm.svg" />Прослушать аудио</span><span onclick="lx_cl(6311821)"><img src="/img/lnk.svg" />Получить ссылку из элемента документа</span></div></div><div name="6311821" id="6311821">71. Ўриндиқли аравачадаги ногиронлиги бўлган шахснинг яшаши учун турар жой майдони 23 m² дан кам бўлмаслиги керак.</div></div><div class="ACT_TEXT lx_elem" onmousemove="lx_mo(event,6311823)"><div class="lx_elem2"><div class="lx_elem3"><span onclick="lx_sf(6311823)"><img src="/img/cmt.svg" />Предложения по документу</span><span onclick="lx_pa(6311823)"><img src="/img/vlm.svg" />Прослушать аудио</span><span onclick="lx_cl(6311823)"><img src="/img/lnk.svg" />Получить ссылку из элемента документа</span></div></div><div name="6311823" id="6311823">Ўриндиқли аравача қулай кириши ва уни жойлаш (сақлаш) учун турар жойнинг кириш қисми кенглиги 1,6 m дан кам бўлмаслиги, кириш қисмининг майдончаси эса 4 m² дан кам бўлмаслиги керак.</div></div><div class="ACT_TEXT lx_elem" onmousemove="lx_mo(event,6311824)"><div class="lx_elem2"><div class="lx_elem3"><span onclick="lx_sf(6311824)"><img src="/img/cmt.svg" />Предложения по документу</span><span onclick="lx_pa(6311824)"><img src="/img/vlm.svg" />Прослушать аудио</span><span onclick="lx_cl(6311824)"><img src="/img/lnk.svg" />Получить ссылку из элемента документа</span></div></div><div name="6311824" id="6311824">Ўриндиқли аравачадаги ногиронлиги бўлган шахс яшайдиган турар жойдаги санузел хонаси майдони камида 2,2 х2,2 m бўлиши керак.</div></div><div class="ACT_TEXT lx_elem" onmousemove="lx_mo(event,6311825)"><div class="lx_elem2"><div class="lx_elem3"><span onclick="lx_sf(6311825)"><img src="/img/cmt.svg" />Предложения по документу</span><span onclick="lx_pa(6311825)"><img src="/img/vlm.svg" />Прослушать аудио</span><span onclick="lx_cl(6311825)"><img src="/img/lnk.svg" />Получить ссылку из элемента документа</span></div></div><div name="6311825" id="6311825">72. Тиббий-ижтимоий муассасаларнинг турар жой ва ёрдамчи хоналари ШНҚ 2.08.01 га мувофиқ лойиҳалаштирилиши керак.</div></div><div class="TEXT_HEADER_DEFAULT lx_elem" onmousemove="lx_mo(event,6311826)"><div class="lx_elem2"><div class="lx_elem3"><span onclick="lx_sf(6311826)"><img src="/img/cmt.svg" />Предложения по документу</span><span onclick="lx_pa(6311826)"><img src="/img/vlm.svg" />Прослушать аудио</span><span onclick="lx_cl(6311826)"><img src="/img/lnk.svg" />Получить ссылку из элемента документа</span></div></div><div name="6311826" id="6311826">6-§. Ногиронлиги бўлган шахслар эҳтиёжини инобатга олган ҳолда меҳнат қилиш жойларига қўйиладиган талаблар</div></div><div class="ACT_TEXT lx_elem" onmousemove="lx_mo(event,6311828)"><div class="lx_elem2"><div class="lx_elem3"><span onclick="lx_sf(6311828)"><img src="/img/cmt.svg" />Предложения по документу</span><span onclick="lx_pa(6311828)"><img src="/img/vlm.svg" />Прослушать аудио</span><span onclick="lx_cl(6311828)"><img src="/img/lnk.svg" />Получить ссылку из элемента документа</span></div></div><div name="6311828" id="6311828">73. Ўриндиқли аравачадаги ногиронлиги бўлган шахслар иш фаолиятини олиб борадиган хонанинг майдони камида 12 m² бўлиши керак.</div></div><div class="ACT_TEXT lx_elem" onmousemove="lx_mo(event,6311829)"><div class="lx_elem2"><div class="lx_elem3"><span onclick="lx_sf(6311829)"><img src="/img/cmt.svg" />Предложения по документу</span><span onclick="lx_pa(6311829)"><img src="/img/vlm.svg" />Прослушать аудио</span><span onclick="lx_cl(6311829)"><img src="/img/lnk.svg" />Получить ссылку из элемента документа</span></div></div><div name="6311829" id="6311829">74. Эшитишда, кўришда ва таянч-ҳаракат аппаратида нуқсони бўлган шахсларнинг, шунингдек ўриндиқли аравачадаги ногиронлиги бўлган шахсларнинг ишлаши учун жиҳозлар технологик топшириқни ҳисобга олган ҳолда тақдим этилади.</div></div><div class="ACT_TEXT lx_elem" onmousemove="lx_mo(event,6311830)"><div class="lx_elem2"><div class="lx_elem3"><span onclick="lx_sf(6311830)"><img src="/img/cmt.svg" />Предложения по документу</span><span onclick="lx_pa(6311830)"><img src="/img/vlm.svg" />Прослушать аудио</span><span onclick="lx_cl(6311830)"><img src="/img/lnk.svg" />Получить ссылку из элемента документа</span></div></div><div name="6311830" id="6311830">75. Ногиронлиги бўлган шахсларнинг иш жойидан ҳожатхона, ювиниш хонаси, душ хонаси, ичимлик суви билан таъминлаш мосламалари ва қисқа муддатли дам олиш хоналаригача бўлган масофа 50 m дан ошмаслиги керак. </div></div><div class="ACT_TEXT lx_elem" onmousemove="lx_mo(event,6311834)"><div class="lx_elem2"><div class="lx_elem3"><span onclick="lx_sf(6311834)"><img src="/img/cmt.svg" />Предложения по документу</span><span onclick="lx_pa(6311834)"><img src="/img/vlm.svg" />Прослушать аудио</span><span onclick="lx_cl(6311834)"><img src="/img/lnk.svg" />Получить ссылку из элемента документа</span></div></div><div name="6311834" id="6311834">Бунда, мазкур хоналар тарқоқ ҳолда жойлашганда масофа 75 — 100 m бўлиши мумкин.</div></div><div class="ACT_TEXT lx_elem" onmousemove="lx_mo(event,6311835)"><div class="lx_elem2"><div class="lx_elem3"><span onclick="lx_sf(6311835)"><img src="/img/cmt.svg" />Предложения по документу</span><span onclick="lx_pa(6311835)"><img src="/img/vlm.svg" />Прослушать аудио</span><span onclick="lx_cl(6311835)"><img src="/img/lnk.svg" />Получить ссылку из элемента документа</span></div></div><div name="6311835" id="6311835">Қўл ювиш мосламалари бевосита ишлаб чиқариш хоналарида жойлаштирилиши тавсия қилинади.</div></div><div class="ACT_TEXT lx_elem" onmousemove="lx_mo(event,6311837)"><div class="lx_elem2"><div class="lx_elem3"><span onclick="lx_sf(6311837)"><img src="/img/cmt.svg" />Предложения по документу</span><span onclick="lx_pa(6311837)"><img src="/img/vlm.svg" />Прослушать аудио</span><span onclick="lx_cl(6311837)"><img src="/img/lnk.svg" />Получить ссылку из элемента документа</span></div></div><div name="6311837" id="6311837">76. Ногиронлиги бўлган шахсларга санитар-маиший хизмат кўрсатиш мазкур ШНҚ, шунингдек <a href="/ru/docs/4444291">ШНҚ 2.08.02</a>, ҚМҚ 2.08.04 ва ҚМҚ 2.09.04 нинг талабларини ҳисобга олган ҳолда таъминланиши керак.</div></div><div class="ACT_TEXT lx_elem" onmousemove="lx_mo(event,6311838)"><div class="lx_elem2"><div class="lx_elem3"><span onclick="lx_sf(6311838)"><img src="/img/cmt.svg" />Предложения по документу</span><span onclick="lx_pa(6311838)"><img src="/img/vlm.svg" />Прослушать аудио</span><span onclick="lx_cl(6311838)"><img src="/img/lnk.svg" />Получить ссылку из элемента документа</span></div></div><div name="6311838" id="6311838">Дам олиш жойлари ва ошхона залларига ўриндиқли аравачадаги ногиронлиги бўлган шахсларнинг етиб боришида қийинчиликлар мавжуд бўлганда, уларнинг иш жойлари яқинида ҳар бир ногиронлиги бўлган шахс учун 2,5 m² (умумий майдони 14 m² дан кам бўлмаган) дам олиш ва овқатланиш хонаси назарда тутилиши керак.</div></div><div class="TEXT_HEADER_DEFAULT lx_elem" onmousemove="lx_mo(event,6311840)"><div class="lx_elem2"><div class="lx_elem3"><span onclick="lx_sf(6311840)"><img src="/img/cmt.svg" />Предложения по документу</span><span onclick="lx_pa(6311840)"><img src="/img/vlm.svg" />Прослушать аудио</span><span onclick="lx_cl(6311840)"><img src="/img/lnk.svg" />Получить ссылку из элемента документа</span></div></div><div name="6311840" id="6311840">7-§. Ногиронлиги бўлган шахслар эҳтиёжини инобатга олган ҳолда санитария-гигиена хоналарига қўйиладиган талаблар</div></div><div class="ACT_TEXT lx_elem" onmousemove="lx_mo(event,6311842)"><div class="lx_elem2"><div class="lx_elem3"><span onclick="lx_sf(6311842)"><img src="/img/cmt.svg" />Предложения по документу</span><span onclick="lx_pa(6311842)"><img src="/img/vlm.svg" />Прослушать аудио</span><span onclick="lx_cl(6311842)"><img src="/img/lnk.svg" />Получить ссылку из элемента документа</span></div></div><div name="6311842" id="6311842">77. Жамоат ҳожатхоналарида, шу жумладан жамоат бинолари ва иншоотлари ичида жойлашган ҳожатхоналарда ўриндиқли аравачадаги ногиронлиги бўлган шахслар учун махсус жиҳозланган кабиналар (бинонинг ҳар бир қавати учун камида 1 дона махсус кабина) назарда тутилиши керак. </div></div><div class="ACT_TEXT lx_elem" onmousemove="lx_mo(event,6311843)"><div class="lx_elem2"><div class="lx_elem3"><span onclick="lx_sf(6311843)"><img src="/img/cmt.svg" />Предложения по документу</span><span onclick="lx_pa(6311843)"><img src="/img/vlm.svg" />Прослушать аудио</span><span onclick="lx_cl(6311843)"><img src="/img/lnk.svg" />Получить ссылку из элемента документа</span></div></div><div name="6311843" id="6311843">Бунда, кабинага кириш эшиги камида 0,9 m бўлиб, кабина олдида ўриндиқли аравача бурилиши учун диаметри камида 1,4 m бўлган бўш жой бўлиши ва ҳожатхоналарнинг пол қопламаси тактил бўлиши лозим.</div></div><div class="ACT_TEXT lx_elem" onmousemove="lx_mo(event,6311845)"><div class="lx_elem2"><div class="lx_elem3"><span onclick="lx_sf(6311845)"><img src="/img/cmt.svg" />Предложения по документу</span><span onclick="lx_pa(6311845)"><img src="/img/vlm.svg" />Прослушать аудио</span><span onclick="lx_cl(6311845)"><img src="/img/lnk.svg" />Получить ссылку из элемента документа</span></div></div><div name="6311845" id="6311845">Ўриндиқли аравачадаги ногиронлиги бўлган шахслар ва кўришда нуқсони бўлган шахслар ишлайдиган биноларда ҳожатхона кабиналари ҳар бир қаватда бўлиши ҳамда иш жойидан камида 50 m узоқликда жойлашиши керак.</div></div><div class="ACT_TEXT lx_elem" onmousemove="lx_mo(event,6311846)"><div class="lx_elem2"><div class="lx_elem3"><span onclick="lx_sf(6311846)"><img src="/img/cmt.svg" />Предложения по документу</span><span onclick="lx_pa(6311846)"><img src="/img/vlm.svg" />Прослушать аудио</span><span onclick="lx_cl(6311846)"><img src="/img/lnk.svg" />Получить ссылку из элемента документа</span></div></div><div name="6311846" id="6311846">Кўзи ожиз ва кўришда нуқсони бўлган эркак ва аёллар учун махсус санитар-гигиеник хоналар ёнма-ён жойлашиши мумкин эмас.</div></div><div class="ACT_TEXT lx_elem" onmousemove="lx_mo(event,6311848)"><div class="lx_elem2"><div class="lx_elem3"><span onclick="lx_sf(6311848)"><img src="/img/cmt.svg" />Предложения по документу</span><span onclick="lx_pa(6311848)"><img src="/img/vlm.svg" />Прослушать аудио</span><span onclick="lx_cl(6311848)"><img src="/img/lnk.svg" />Получить ссылку из элемента документа</span></div></div><div name="6311848" id="6311848">Ногиронлиги бўлган шахснинг эвакуация йўлига тўсиқларсиз чиқишини таъминлаш мақсадида ҳожатхона ёки кабина эшигининг кенглиги камида 0,9 m бўлиши ва ташқарига очилиши керак.</div></div><div class="ACT_TEXT lx_elem" onmousemove="lx_mo(event,6311849)"><div class="lx_elem2"><div class="lx_elem3"><span onclick="lx_sf(6311849)"><img src="/img/cmt.svg" />Предложения по документу</span><span onclick="lx_pa(6311849)"><img src="/img/vlm.svg" />Прослушать аудио</span><span onclick="lx_cl(6311849)"><img src="/img/lnk.svg" />Получить ссылку из элемента документа</span></div></div><div name="6311849" id="6311849">78. Ўриндиқли аравачадаги ногиронлиги бўлган шахслар учун ҳожатхона кабинасининг ички ўлчами (раковинасиз) — эни камида 1,65 m ҳамда узунлиги 1,8 m дан кам бўлмаслиги керак.</div></div><div class="ACT_TEXT lx_elem" onmousemove="lx_mo(event,6311850)"><div class="lx_elem2"><div class="lx_elem3"><span onclick="lx_sf(6311850)"><img src="/img/cmt.svg" />Предложения по документу</span><span onclick="lx_pa(6311850)"><img src="/img/vlm.svg" />Прослушать аудио</span><span onclick="lx_cl(6311850)"><img src="/img/lnk.svg" />Получить ссылку из элемента документа</span></div></div><div name="6311850" id="6311850">Раковинаси мавжуд бўлган ҳожатхонанинг ўлчами камида 1,65х2,2 m бўлиши керак.</div></div><div class="ACT_TEXT lx_elem" onmousemove="lx_mo(event,6311852)"><div class="lx_elem2"><div class="lx_elem3"><span onclick="lx_sf(6311852)"><img src="/img/cmt.svg" />Предложения по документу</span><span onclick="lx_pa(6311852)"><img src="/img/vlm.svg" />Прослушать аудио</span><span onclick="lx_cl(6311852)"><img src="/img/lnk.svg" />Получить ссылку из элемента документа</span></div></div><div name="6311852" id="6311852">Ҳожатхона кабинаси унитаз билан ёнма-ён ўриндиқли аравача учун алоҳида жой, металл штанга, горизонтал ва вертикал таянч тутқичлар ҳамда махсус товуш мосламасига эга бўлиши лозим.</div></div><div class="ACT_TEXT lx_elem" onmousemove="lx_mo(event,6311853)"><div class="lx_elem2"><div class="lx_elem3"><span onclick="lx_sf(6311853)"><img src="/img/cmt.svg" />Предложения по документу</span><span onclick="lx_pa(6311853)"><img src="/img/vlm.svg" />Прослушать аудио</span><span onclick="lx_cl(6311853)"><img src="/img/lnk.svg" />Получить ссылку из элемента документа</span></div></div><div name="6311853" id="6311853">79. Жамоат биноларининг санитария-гигиена хоналарида ногиронлиги бўлган шахслар учун шу жумладан, ўриндиқли аравачадаги ногиронлиги бўлган шахслар учун махсус жиҳозланган кабиналар ва санитар мосламалар, шунингдек 1 дона махсус унитаз, 0,4 m дан ортиқ бўлмаган баландликда ҳар икки томонида вертикал таянч тутқичларга эга бўлган 1 дона махсус писсуар, 0,8 m дан ортиқ бўлмаган баландликда бўлган 1 дона махсус раковина билан жиҳозланган бўлиши керак.</div></div><div class="ACT_TEXT lx_elem" onmousemove="lx_mo(event,6311855)"><div class="lx_elem2"><div class="lx_elem3"><span onclick="lx_sf(6311855)"><img src="/img/cmt.svg" />Предложения по документу</span><span onclick="lx_pa(6311855)"><img src="/img/vlm.svg" />Прослушать аудио</span><span onclick="lx_cl(6311855)"><img src="/img/lnk.svg" />Получить ссылку из элемента документа</span></div></div><div name="6311855" id="6311855">Ўриндиқли аравачадаги ногиронлиги бўлган шахслар фойдаланишлари учун душ хоналарида камида битта махсус кабина назарда тутилиши лозим. Бунда кабина олдида ўриндиқли аравача кириши ва бурилиши учун бурилиш диаметри 1,4 m бўлган зона назарда тутилиши керак.</div></div><div class="ACT_TEXT lx_elem" onmousemove="lx_mo(event,6311856)"><div class="lx_elem2"><div class="lx_elem3"><span onclick="lx_sf(6311856)"><img src="/img/cmt.svg" />Предложения по документу</span><span onclick="lx_pa(6311856)"><img src="/img/vlm.svg" />Прослушать аудио</span><span onclick="lx_cl(6311856)"><img src="/img/lnk.svg" />Получить ссылку из элемента документа</span></div></div><div name="6311856" id="6311856">Душ кабинасига бевосита ечиниб кийиниш хонасидан кириш имконияти мавжуд бўлиши керак (бунда эшик ташқарига — ечиниб кийиниш хонаси тарафига очилиши керак).</div></div><div class="ACT_TEXT lx_elem" onmousemove="lx_mo(event,6311857)"><div class="lx_elem2"><div class="lx_elem3"><span onclick="lx_sf(6311857)"><img src="/img/cmt.svg" />Предложения по документу</span><span onclick="lx_pa(6311857)"><img src="/img/vlm.svg" />Прослушать аудио</span><span onclick="lx_cl(6311857)"><img src="/img/lnk.svg" />Получить ссылку из элемента документа</span></div></div><div name="6311857" id="6311857">80. Санитария-гигиена хоналарида ногиронлиги бўлган шахслар фойдаланадиган кабиналарнинг геометрик кўрсаткичлари камида қуйидагича бўлиши керак:</div></div><div class="ACT_TEXT lx_elem" onmousemove="lx_mo(event,6311859)"><div class="lx_elem2"><div class="lx_elem3"><span onclick="lx_sf(6311859)"><img src="/img/cmt.svg" />Предложения по документу</span><span onclick="lx_pa(6311859)"><img src="/img/vlm.svg" />Прослушать аудио</span><span onclick="lx_cl(6311859)"><img src="/img/lnk.svg" />Получить ссылку из элемента документа</span></div></div><div name="6311859" id="6311859">ёпиқ душ кабиналари, ечиниш кабиналари учун — 1,8х1,8 m;</div></div><div class="ACT_TEXT lx_elem" onmousemove="lx_mo(event,6311860)"><div class="lx_elem2"><div class="lx_elem3"><span onclick="lx_sf(6311860)"><img src="/img/cmt.svg" />Предложения по документу</span><span onclick="lx_pa(6311860)"><img src="/img/vlm.svg" />Прослушать аудио</span><span onclick="lx_cl(6311860)"><img src="/img/lnk.svg" />Получить ссылку из элемента документа</span></div></div><div name="6311860" id="6311860">ўзаро очиқ ўтиш жойли душ кабиналари учун — 1,2х0,9 m;</div></div><div class="ACT_TEXT lx_elem" onmousemove="lx_mo(event,6311862)"><div class="lx_elem2"><div class="lx_elem3"><span onclick="lx_sf(6311862)"><img src="/img/cmt.svg" />Предложения по документу</span><span onclick="lx_pa(6311862)"><img src="/img/vlm.svg" />Прослушать аудио</span><span onclick="lx_cl(6311862)"><img src="/img/lnk.svg" />Получить ссылку из элемента документа</span></div></div><div name="6311862" id="6311862">ҳожатхона кабиналари учун — 1,65х1,8 m;</div></div><div class="ACT_TEXT lx_elem" onmousemove="lx_mo(event,6311863)"><div class="lx_elem2"><div class="lx_elem3"><span onclick="lx_sf(6311863)"><img src="/img/cmt.svg" />Предложения по документу</span><span onclick="lx_pa(6311863)"><img src="/img/vlm.svg" />Прослушать аудио</span><span onclick="lx_cl(6311863)"><img src="/img/lnk.svg" />Получить ссылку из элемента документа</span></div></div><div name="6311863" id="6311863">аёлларнинг шахсий гигиена хонаси учун — 1,8х2,6 m;</div></div><div class="ACT_TEXT lx_elem" onmousemove="lx_mo(event,6311865)"><div class="lx_elem2"><div class="lx_elem3"><span onclick="lx_sf(6311865)"><img src="/img/cmt.svg" />Предложения по документу</span><span onclick="lx_pa(6311865)"><img src="/img/vlm.svg" />Прослушать аудио</span><span onclick="lx_cl(6311865)"><img src="/img/lnk.svg" />Получить ссылку из элемента документа</span></div></div><div name="6311865" id="6311865">ечиниб кийиниш хонасидаги ечиниш жойи учун (ўриндиқ) — 0,6х1,5 m.</div></div><div class="ACT_TEXT lx_elem" onmousemove="lx_mo(event,6311866)"><div class="lx_elem2"><div class="lx_elem3"><span onclick="lx_sf(6311866)"><img src="/img/cmt.svg" />Предложения по документу</span><span onclick="lx_pa(6311866)"><img src="/img/vlm.svg" />Прослушать аудио</span><span onclick="lx_cl(6311866)"><img src="/img/lnk.svg" />Получить ссылку из элемента документа</span></div></div><div name="6311866" id="6311866">Кабиналар қаторлари орасидаги масофа 1,8 m бўлиши керак.</div></div><div class="ACT_TEXT lx_elem" onmousemove="lx_mo(event,6311868)"><div class="lx_elem2"><div class="lx_elem3"><span onclick="lx_sf(6311868)"><img src="/img/cmt.svg" />Предложения по документу</span><span onclick="lx_pa(6311868)"><img src="/img/vlm.svg" />Прослушать аудио</span><span onclick="lx_cl(6311868)"><img src="/img/lnk.svg" />Получить ссылку из элемента документа</span></div></div><div name="6311868" id="6311868">81. Душ хонаси билан бирлаштирилган санитария бўлинмасининг ўлчамлари камида 2,2х2,2 m бўлиши керак. Санитария бўлинмасида ўриндиқли аравачадаги ногиронлиги бўлган шахсларга қулайлик яратиш учун махсус жиҳозлар (тутқичлар, металл штангалар, букланадиган ўриндиқлар) ўрнатилиши лозим.</div></div><div class="ACT_TEXT lx_elem" onmousemove="lx_mo(event,6311870)"><div class="lx_elem2"><div class="lx_elem3"><span onclick="lx_sf(6311870)"><img src="/img/cmt.svg" />Предложения по документу</span><span onclick="lx_pa(6311870)"><img src="/img/vlm.svg" />Прослушать аудио</span><span onclick="lx_cl(6311870)"><img src="/img/lnk.svg" />Получить ссылку из элемента документа</span></div></div><div name="6311870" id="6311870">Ечиниб кийиниш хоналарининг майдони камида 12 m² бўлиши керак.</div></div><div class="ACT_TEXT lx_elem" onmousemove="lx_mo(event,6311871)"><div class="lx_elem2"><div class="lx_elem3"><span onclick="lx_sf(6311871)"><img src="/img/cmt.svg" />Предложения по документу</span><span onclick="lx_pa(6311871)"><img src="/img/vlm.svg" />Прослушать аудио</span><span onclick="lx_cl(6311871)"><img src="/img/lnk.svg" />Получить ссылку из элемента документа</span></div></div><div name="6311871" id="6311871">Полдан 1,2 m дан ортиқ бўлмаган баландликдаги жавонли индивидуал шкафлар ногиронлиги бўлган шахслар учун қулай жойлашган бўлиши ва шкаф олдида ўриндиқли аравача бемалол ҳаракатланиши учун 1,5х1,5m ўлчамдаги зона назарда тутилиши керак.</div></div><div class="ACT_TEXT lx_elem" onmousemove="lx_mo(event,6311873)"><div class="lx_elem2"><div class="lx_elem3"><span onclick="lx_sf(6311873)"><img src="/img/cmt.svg" />Предложения по документу</span><span onclick="lx_pa(6311873)"><img src="/img/vlm.svg" />Прослушать аудио</span><span onclick="lx_cl(6311873)"><img src="/img/lnk.svg" />Получить ссылку из элемента документа</span></div></div><div name="6311873" id="6311873">Шкафлар ўлчамлари камида 0,4х0,5 m бўлиши керак.</div></div><div class="ACT_TEXT lx_elem" onmousemove="lx_mo(event,6311874)"><div class="lx_elem2"><div class="lx_elem3"><span onclick="lx_sf(6311874)"><img src="/img/cmt.svg" />Предложения по документу</span><span onclick="lx_pa(6311874)"><img src="/img/vlm.svg" />Прослушать аудио</span><span onclick="lx_cl(6311874)"><img src="/img/lnk.svg" />Получить ссылку из элемента документа</span></div></div><div name="6311874" id="6311874">Очиқ ҳолда сақланадиган кийимлар учун илмоқларнинг баландлиги пол сатҳидан 1,2 m юқорида бўлиши керак.</div></div><div class="ACT_TEXT lx_elem" onmousemove="lx_mo(event,6311876)"><div class="lx_elem2"><div class="lx_elem3"><span onclick="lx_sf(6311876)"><img src="/img/cmt.svg" />Предложения по документу</span><span onclick="lx_pa(6311876)"><img src="/img/vlm.svg" />Прослушать аудио</span><span onclick="lx_cl(6311876)"><img src="/img/lnk.svg" />Получить ссылку из элемента документа</span></div></div><div name="6311876" id="6311876">82. Санитария-гигиена хоналари орасидаги ўтиш жойи масофаси камида қуйидагича бўлиши лозим:</div></div><div class="ACT_TEXT lx_elem" onmousemove="lx_mo(event,6311877)"><div class="lx_elem2"><div class="lx_elem3"><span onclick="lx_sf(6311877)"><img src="/img/cmt.svg" />Предложения по документу</span><span onclick="lx_pa(6311877)"><img src="/img/vlm.svg" />Прослушать аудио</span><span onclick="lx_cl(6311877)"><img src="/img/lnk.svg" />Получить ссылку из элемента документа</span></div></div><div name="6311877" id="6311877">ҳожатхоналар билан очиқ ёки ёпиқ душхона кабиналари оралиғи — 1,8 m;</div></div><div class="ACT_TEXT lx_elem" onmousemove="lx_mo(event,6311879)"><div class="lx_elem2"><div class="lx_elem3"><span onclick="lx_sf(6311879)"><img src="/img/cmt.svg" />Предложения по документу</span><span onclick="lx_pa(6311879)"><img src="/img/vlm.svg" />Прослушать аудио</span><span onclick="lx_cl(6311879)"><img src="/img/lnk.svg" />Получить ссылку из элемента документа</span></div></div><div name="6311879" id="6311879">писсуар ва раковина оралиғи — 2,4 m;</div></div><div class="ACT_TEXT lx_elem" onmousemove="lx_mo(event,6311880)"><div class="lx_elem2"><div class="lx_elem3"><span onclick="lx_sf(6311880)"><img src="/img/cmt.svg" />Предложения по документу</span><span onclick="lx_pa(6311880)"><img src="/img/vlm.svg" />Прослушать аудио</span><span onclick="lx_cl(6311880)"><img src="/img/lnk.svg" />Получить ссылку из элемента документа</span></div></div><div name="6311880" id="6311880">ўриндиқли ечиниб кийиниш хоналари шкафлари оралиғи — 1,8 m.</div></div><div class="TEXT_HEADER_DEFAULT lx_elem" onmousemove="lx_mo(event,6311912)"><div class="lx_elem2"><div class="lx_elem3"><span onclick="lx_sf(6311912)"><img src="/img/cmt.svg" />Предложения по документу</span><span onclick="lx_pa(6311912)"><img src="/img/vlm.svg" />Прослушать аудио</span><span onclick="lx_cl(6311912)"><img src="/img/lnk.svg" />Получить ссылку из элемента документа</span></div></div><div name="6311912" id="6311912">6-боб. Тиббий-ижтимоий муассасалар ҳамда ихтисослаштирилган таълим муассасалари биноларига қўйиладиган талаблар</div></div><div class="TEXT_HEADER_DEFAULT lx_elem" onmousemove="lx_mo(event,6311914)"><div class="lx_elem2"><div class="lx_elem3"><span onclick="lx_sf(6311914)"><img src="/img/cmt.svg" />Предложения по документу</span><span onclick="lx_pa(6311914)"><img src="/img/vlm.svg" />Прослушать аудио</span><span onclick="lx_cl(6311914)"><img src="/img/lnk.svg" />Получить ссылку из элемента документа</span></div></div><div name="6311914" id="6311914">1-§. Ногиронлиги бўлган шахслар ва кексалар учун «Саховат» ва «Мурувват» интернат уйлари, шунингдек ихтисослаштирилган таълим муассасалари биноларига қўйиладиган талаблар</div></div><div class="ACT_TEXT lx_elem" onmousemove="lx_mo(event,6311916)"><div class="lx_elem2"><div class="lx_elem3"><span onclick="lx_sf(6311916)"><img src="/img/cmt.svg" />Предложения по документу</span><span onclick="lx_pa(6311916)"><img src="/img/vlm.svg" />Прослушать аудио</span><span onclick="lx_cl(6311916)"><img src="/img/lnk.svg" />Получить ссылку из элемента документа</span></div></div><div name="6311916" id="6311916">83. Ногиронлиги бўлган шахслар ва кексалар учун «Саховат» ва «Мурувват» интернат уйлари (бундан буён матнда интернат уйлари деб юритилади) биноларининг киши сиғими 50 дан 350 ўрингача (ижтимоий, иқтисодий ва технологик асосларни ҳисобга олган ҳолда) белгиланади.</div></div><div class="ACT_TEXT lx_elem" onmousemove="lx_mo(event,6311919)"><div class="lx_elem2"><div class="lx_elem3"><span onclick="lx_sf(6311919)"><img src="/img/cmt.svg" />Предложения по документу</span><span onclick="lx_pa(6311919)"><img src="/img/vlm.svg" />Прослушать аудио</span><span onclick="lx_cl(6311919)"><img src="/img/lnk.svg" />Получить ссылку из элемента документа</span></div></div><div name="6311919" id="6311919">Интернат уйлари биноларини лойиҳалашда мазкур ШНҚ билан бир қаторда ШНҚ 2.08.01 ва бошқа амалдаги шаҳарсозлик нормалари ва қоидаларидан фойдаланиш зарур.</div></div><div class="ACT_TEXT lx_elem" onmousemove="lx_mo(event,6311920)"><div class="lx_elem2"><div class="lx_elem3"><span onclick="lx_sf(6311920)"><img src="/img/cmt.svg" />Предложения по документу</span><span onclick="lx_pa(6311920)"><img src="/img/vlm.svg" />Прослушать аудио</span><span onclick="lx_cl(6311920)"><img src="/img/lnk.svg" />Получить ссылку из элемента документа</span></div></div><div name="6311920" id="6311920">Интернат уйларини лойиҳалашда қуйидаги хоналар назарда тутилади:</div></div><div class="ACT_TEXT lx_elem" onmousemove="lx_mo(event,6311922)"><div class="lx_elem2"><div class="lx_elem3"><span onclick="lx_sf(6311922)"><img src="/img/cmt.svg" />Предложения по документу</span><span onclick="lx_pa(6311922)"><img src="/img/vlm.svg" />Прослушать аудио</span><span onclick="lx_cl(6311922)"><img src="/img/lnk.svg" />Получить ссылку из элемента документа</span></div></div><div name="6311922" id="6311922">истиқомат қилиш учун (шу жумладан, доимий назорат ва парваришга муҳтож бўлмаган шахслар учун, доимий парвариш ва тиббий назоратга муҳтож шахслар учун, доимий парвариш ва тиббий назорат остида ётоқда ётган шахслар учун);</div></div><div class="ACT_TEXT lx_elem" onmousemove="lx_mo(event,6311924)"><div class="lx_elem2"><div class="lx_elem3"><span onclick="lx_sf(6311924)"><img src="/img/cmt.svg" />Предложения по документу</span><span onclick="lx_pa(6311924)"><img src="/img/vlm.svg" />Прослушать аудио</span><span onclick="lx_cl(6311924)"><img src="/img/lnk.svg" />Получить ссылку из элемента документа</span></div></div><div name="6311924" id="6311924">тиббий-ижтимоий хизмат кўрсатиш, даволаш ва тиклаш, реабилитация ва соғломлаштириш ҳамда маънавий-маърифий тадбирларни ўтказиш мақсадлари учун.</div></div><div class="ACT_TEXT lx_elem" onmousemove="lx_mo(event,6311925)"><div class="lx_elem2"><div class="lx_elem3"><span onclick="lx_sf(6311925)"><img src="/img/cmt.svg" />Предложения по документу</span><span onclick="lx_pa(6311925)"><img src="/img/vlm.svg" />Прослушать аудио</span><span onclick="lx_cl(6311925)"><img src="/img/lnk.svg" />Получить ссылку из элемента документа</span></div></div><div name="6311925" id="6311925">84. Яшаш хоналари, санитария-гигиена хоналари, маиший хоналар ва бошқа ёрдамчи хоналарни ўз ичига олган турар жой гуруҳларининг таркиби ва майдонлари ШНҚ 2.08.01 га мувофиқ бўлиши керак.</div></div><div class="ACT_TEXT lx_elem" onmousemove="lx_mo(event,6311926)"><div class="lx_elem2"><div class="lx_elem3"><span onclick="lx_sf(6311926)"><img src="/img/cmt.svg" />Предложения по документу</span><span onclick="lx_pa(6311926)"><img src="/img/vlm.svg" />Прослушать аудио</span><span onclick="lx_cl(6311926)"><img src="/img/lnk.svg" />Получить ссылку из элемента документа</span></div></div><div name="6311926" id="6311926">Турли мақсадларга мўлжалланган жамоат хоналарининг (тиббиёт, маданий-маиший, маъмурий) майдони, тавсия этилаётган 50 — 300 ўринли интернат уйларининг таркиби ШНҚ 2.08.01 да келтирилган кўрсаткичларни ҳисобга олган ҳолда лойиҳа топшириғида кўрсатилади. Бунда, маданий-маиший хизмат кўрсатиш ва меҳнат фаолиятини ўз ичига олган ҳаёт фаолияти зоналарида мазкур ШНҚда келтирилган талаблар ҳисобга олиниши керак.</div></div><div class="ACT_TEXT lx_elem" onmousemove="lx_mo(event,6311950)"><div class="lx_elem2"><div class="lx_elem3"><span onclick="lx_sf(6311950)"><img src="/img/cmt.svg" />Предложения по документу</span><span onclick="lx_pa(6311950)"><img src="/img/vlm.svg" />Прослушать аудио</span><span onclick="lx_cl(6311950)"><img src="/img/lnk.svg" />Получить ссылку из элемента документа</span></div></div><div name="6311950" id="6311950">Ногиронлиги бўлган шахслар ва кексаларни назорат қилиш ва ётоқ ҳолда даволаш хоналари, тиббий-ижтимоий ва маиший хизмат кўрсатиш хоналари, озиқ-овқат блокларига эга ошхоналар биринчи қаватда жойлаштирилиши керак.</div></div><div class="ACT_TEXT lx_elem" onmousemove="lx_mo(event,6311951)"><div class="lx_elem2"><div class="lx_elem3"><span onclick="lx_sf(6311951)"><img src="/img/cmt.svg" />Предложения по документу</span><span onclick="lx_pa(6311951)"><img src="/img/vlm.svg" />Прослушать аудио</span><span onclick="lx_cl(6311951)"><img src="/img/lnk.svg" />Получить ссылку из элемента документа</span></div></div><div name="6311951" id="6311951">Ошхона блокларини асосий бинодан алоҳида жойлаштирилишига рухсат этилади. Бундай ҳолларда уларга ёпиқ (жумладан, иситиладиган) ўтиш жойларини барпо этиш зарурати лойиҳа топшириғида белгиланиши керак.</div></div><div class="ACT_TEXT lx_elem" onmousemove="lx_mo(event,6311952)"><div class="lx_elem2"><div class="lx_elem3"><span onclick="lx_sf(6311952)"><img src="/img/cmt.svg" />Предложения по документу</span><span onclick="lx_pa(6311952)"><img src="/img/vlm.svg" />Прослушать аудио</span><span onclick="lx_cl(6311952)"><img src="/img/lnk.svg" />Получить ссылку из элемента документа</span></div></div><div name="6311952" id="6311952">85. Ихтисослаштирилган таълим муассасалари жисмоний ва ақлий ривожланишида нуқсони бўлган болаларни ўқитиш ва тарбиялашнинг ўзига хослигини ҳисобга олиб лойиҳалаштирилади. </div></div><div class="ACT_TEXT lx_elem" onmousemove="lx_mo(event,6311953)"><div class="lx_elem2"><div class="lx_elem3"><span onclick="lx_sf(6311953)"><img src="/img/cmt.svg" />Предложения по документу</span><span onclick="lx_pa(6311953)"><img src="/img/vlm.svg" />Прослушать аудио</span><span onclick="lx_cl(6311953)"><img src="/img/lnk.svg" />Получить ссылку из элемента документа</span></div></div><div name="6311953" id="6311953">Ихтисослаштирилган таълим муассасалари турли ёшдаги болалар учун ўқув-турар жой секциялари ва мактаб хоналари, табиий фанлар лабораториялари, фан хоналари, спорт ва тренажёр заллари, меҳнат таълими устахоналари, кўзи ожиз болалар учун махсус деворлар ва полларда бўртиб чиққан қопламалар билан жиҳозланган сенсорика хоналари, фаоллар заллари, ахборот ресурс марказлари, ошхоналар, маъмурий-хўжалик, тиббиёт ва реабилитация хоналари асосида шаклланади.</div></div><div class="ACT_TEXT lx_elem" onmousemove="lx_mo(event,6311974)"><div class="lx_elem2"><div class="lx_elem3"><span onclick="lx_sf(6311974)"><img src="/img/cmt.svg" />Предложения по документу</span><span onclick="lx_pa(6311974)"><img src="/img/vlm.svg" />Прослушать аудио</span><span onclick="lx_cl(6311974)"><img src="/img/lnk.svg" />Получить ссылку из элемента документа</span></div></div><div name="6311974" id="6311974">86. Бошланғич ва таянч ўрта таълим синфлари учун ўқув ва турар жой секциялари (блоклар) 24 — 32 кишига мўлжалланган бўлиб, яшаш, синфларда ўқитиш, рекреация хоналари ва маиший хоналарни ўз ичига олади. Қайд этилган секциялар алоҳида вестибюлли кириш жойига эга бўлиши керак.</div></div><div class="ACT_TEXT lx_elem" onmousemove="lx_mo(event,6311975)"><div class="lx_elem2"><div class="lx_elem3"><span onclick="lx_sf(6311975)"><img src="/img/cmt.svg" />Предложения по документу</span><span onclick="lx_pa(6311975)"><img src="/img/vlm.svg" />Прослушать аудио</span><span onclick="lx_cl(6311975)"><img src="/img/lnk.svg" />Получить ссылку из элемента документа</span></div></div><div name="6311975" id="6311975">Яшаш ёки ухлаш хоналарининг майдонлари камида 12 m² бўлиши ва 18 m² дан ошмаслиги керак, яъни 3-4 нафар тарбияланувчини жойлаштириш учун ҳар бир тарбияланувчига 4 — 6 m² ажратилиши назарда тутилади.</div></div><div class="ACT_TEXT lx_elem" onmousemove="lx_mo(event,6311976)"><div class="lx_elem2"><div class="lx_elem3"><span onclick="lx_sf(6311976)"><img src="/img/cmt.svg" />Предложения по документу</span><span onclick="lx_pa(6311976)"><img src="/img/vlm.svg" />Прослушать аудио</span><span onclick="lx_cl(6311976)"><img src="/img/lnk.svg" />Получить ссылку из элемента документа</span></div></div><div name="6311976" id="6311976">Ухлаш хоналари ёрдамчи ва санитар-маиший хоналарни ўз ичига олувчи турар жой гуруҳлари таркибида жойлаштирилади.</div></div><div class="ACT_TEXT lx_elem" onmousemove="lx_mo(event,6311977)"><div class="lx_elem2"><div class="lx_elem3"><span onclick="lx_sf(6311977)"><img src="/img/cmt.svg" />Предложения по документу</span><span onclick="lx_pa(6311977)"><img src="/img/vlm.svg" />Прослушать аудио</span><span onclick="lx_cl(6311977)"><img src="/img/lnk.svg" />Получить ссылку из элемента документа</span></div></div><div name="6311977" id="6311977">Ҳар бир ўқув-турар жой секциясида меҳмонхона, телехолл ва ўйин хонаси, тарбиячи хонаси, вестибюл-кийим ечиш жойи, маиший хизмат хонаси, кийим-кечак ва хўжалик омборлари бўлиши назарда тутилади.</div></div><div class="ACT_TEXT lx_elem" onmousemove="lx_mo(event,6311978)"><div class="lx_elem2"><div class="lx_elem3"><span onclick="lx_sf(6311978)"><img src="/img/cmt.svg" />Предложения по документу</span><span onclick="lx_pa(6311978)"><img src="/img/vlm.svg" />Прослушать аудио</span><span onclick="lx_cl(6311978)"><img src="/img/lnk.svg" />Получить ссылку из элемента документа</span></div></div><div name="6311978" id="6311978">87. Бир нафар ўқувчига 2,6 дан — 3,5 m² гача майдон тўғри келишини ҳисобга олиб, турли йўналишдаги ихтисослаштирилган таълим муассасаларидаги ўқув хоналарининг майдони 12 — 16 нафар ўқувчи учун қуйидагича бўлиши керак:</div></div><div class="ACT_TEXT lx_elem" onmousemove="lx_mo(event,6311980)"><div class="lx_elem2"><div class="lx_elem3"><span onclick="lx_sf(6311980)"><img src="/img/cmt.svg" />Предложения по документу</span><span onclick="lx_pa(6311980)"><img src="/img/vlm.svg" />Прослушать аудио</span><span onclick="lx_cl(6311980)"><img src="/img/lnk.svg" />Получить ссылку из элемента документа</span></div></div><div name="6311980" id="6311980">ақли заиф ва психик ривожланиши суст болалар учун уларнинг ҳар бирига — 2,2 m²;</div></div><div class="ACT_TEXT lx_elem" onmousemove="lx_mo(event,6311981)"><div class="lx_elem2"><div class="lx_elem3"><span onclick="lx_sf(6311981)"><img src="/img/cmt.svg" />Предложения по документу</span><span onclick="lx_pa(6311981)"><img src="/img/vlm.svg" />Прослушать аудио</span><span onclick="lx_cl(6311981)"><img src="/img/lnk.svg" />Получить ссылку из элемента документа</span></div></div><div name="6311981" id="6311981">кўзи ожиз ҳамда таянч-ҳаракат аппаратида нуқсони бўлган болалар (болалар церебрал фалажи, полиомиелит, миопатия, остеомиелит, ампутация, бўй ўсишининг етишмовчилиги — паканалик) учун уларнинг ҳар бирига — 3,3 — 3,5 m²;</div></div><div class="ACT_TEXT lx_elem" onmousemove="lx_mo(event,6311982)"><div class="lx_elem2"><div class="lx_elem3"><span onclick="lx_sf(6311982)"><img src="/img/cmt.svg" />Предложения по документу</span><span onclick="lx_pa(6311982)"><img src="/img/vlm.svg" />Прослушать аудио</span><span onclick="lx_cl(6311982)"><img src="/img/lnk.svg" />Получить ссылку из элемента документа</span></div></div><div name="6311982" id="6311982">қолган ногиронлиги бўлган болалар учун уларнинг ҳар бирига — 2,6 — 3,0 m² қабул қилинади, бунда ўқув хонасининг майдони 40 m² дан кам бўлмаслиги лозим.</div></div><div class="ACT_TEXT lx_elem" onmousemove="lx_mo(event,6311984)"><div class="lx_elem2"><div class="lx_elem3"><span onclick="lx_sf(6311984)"><img src="/img/cmt.svg" />Предложения по документу</span><span onclick="lx_pa(6311984)"><img src="/img/vlm.svg" />Прослушать аудио</span><span onclick="lx_cl(6311984)"><img src="/img/lnk.svg" />Получить ссылку из элемента документа</span></div></div><div name="6311984" id="6311984">Табиий фанлар, лаборатория ва фан хоналари 50 m² майдонга, кўзи ожиз болалар учун ихтисослаштирилган таълим муассасаларида эса 60 m² майдонга эга бўлиши керак.</div></div><div class="ACT_TEXT lx_elem" onmousemove="lx_mo(event,6311985)"><div class="lx_elem2"><div class="lx_elem3"><span onclick="lx_sf(6311985)"><img src="/img/cmt.svg" />Предложения по документу</span><span onclick="lx_pa(6311985)"><img src="/img/vlm.svg" />Прослушать аудио</span><span onclick="lx_cl(6311985)"><img src="/img/lnk.svg" />Получить ссылку из элемента документа</span></div></div><div name="6311985" id="6311985">Спорт заллари 12х24 m, қўшимча тарзда теренажёр заллари 36 — 60 m² бўлиши назарда тутилади.</div></div><div class="ACT_TEXT lx_elem" onmousemove="lx_mo(event,6311987)"><div class="lx_elem2"><div class="lx_elem3"><span onclick="lx_sf(6311987)"><img src="/img/cmt.svg" />Предложения по документу</span><span onclick="lx_pa(6311987)"><img src="/img/vlm.svg" />Прослушать аудио</span><span onclick="lx_cl(6311987)"><img src="/img/lnk.svg" />Получить ссылку из элемента документа</span></div></div><div name="6311987" id="6311987">Фаоллар залларига бир пайтнинг ўзида ногиронлиги бўлган болаларнинг 60 — 70 фоизи сиғиши назарда тутилиши, уларнинг майдони эса камида 100 m² бўлиши керак. Кўзи ожиз ва таянч-ҳаракат аппаратида нуқсони бўлган болалар учун ихтисослаштирилган таълим муассасалари залида бир ўриндиқ учун 1,6 m² жой мўлжалланиши керак.</div></div><div class="ACT_TEXT lx_elem" onmousemove="lx_mo(event,6311988)"><div class="lx_elem2"><div class="lx_elem3"><span onclick="lx_sf(6311988)"><img src="/img/cmt.svg" />Предложения по документу</span><span onclick="lx_pa(6311988)"><img src="/img/vlm.svg" />Прослушать аудио</span><span onclick="lx_cl(6311988)"><img src="/img/lnk.svg" />Получить ссылку из элемента документа</span></div></div><div name="6311988" id="6311988">Ахборот ресурс марказлари ўқув залларининг майдони камида 40 m² бўлиши керак.</div></div><div class="ACT_TEXT lx_elem" onmousemove="lx_mo(event,6311989)"><div class="lx_elem2"><div class="lx_elem3"><span onclick="lx_sf(6311989)"><img src="/img/cmt.svg" />Предложения по документу</span><span onclick="lx_pa(6311989)"><img src="/img/vlm.svg" />Прослушать аудио</span><span onclick="lx_cl(6311989)"><img src="/img/lnk.svg" />Получить ссылку из элемента документа</span></div></div><div name="6311989" id="6311989">Ошхона залида бир ўринга 1,0 — 1,2 m², кўзи ожиз ва таянч-ҳаракат аппаратида нуқсони бўлган болалар учун ихтисослаштирилган таълим муассасаларининг ошхона залида эса камида 1,6 m² майдон ажратилади. </div></div><div class="ACT_TEXT lx_elem" onmousemove="lx_mo(event,6311990)"><div class="lx_elem2"><div class="lx_elem3"><span onclick="lx_sf(6311990)"><img src="/img/cmt.svg" />Предложения по документу</span><span onclick="lx_pa(6311990)"><img src="/img/vlm.svg" />Прослушать аудио</span><span onclick="lx_cl(6311990)"><img src="/img/lnk.svg" />Получить ссылку из элемента документа</span></div></div><div name="6311990" id="6311990">Озиқ-овқат блоки технологик ҳисоб-китоб қилиниб, тайёрланадиган таомлар ҳажмига қараб лойиҳаланиши керак.</div></div><div class="ACT_TEXT lx_elem" onmousemove="lx_mo(event,6311991)"><div class="lx_elem2"><div class="lx_elem3"><span onclick="lx_sf(6311991)"><img src="/img/cmt.svg" />Предложения по документу</span><span onclick="lx_pa(6311991)"><img src="/img/vlm.svg" />Прослушать аудио</span><span onclick="lx_cl(6311991)"><img src="/img/lnk.svg" />Получить ссылку из элемента документа</span></div></div><div name="6311991" id="6311991">88. Ихтисослаштирилган таълим муассасаларида йўналишидан келиб чиққан ҳолда қуйидаги қўшимча хоналар кўзда тутилиши лозим:</div></div><div class="ACT_TEXT lx_elem" onmousemove="lx_mo(event,6311993)"><div class="lx_elem2"><div class="lx_elem3"><span onclick="lx_sf(6311993)"><img src="/img/cmt.svg" />Предложения по документу</span><span onclick="lx_pa(6311993)"><img src="/img/vlm.svg" />Прослушать аудио</span><span onclick="lx_cl(6311993)"><img src="/img/lnk.svg" />Получить ссылку из элемента документа</span></div></div><div name="6311993" id="6311993">кар-соқов, шунингдек эшитишда ва нутқида нуқсони бўлган болаларга мўлжалланган фронтал машғулотлар учун эшитиш хонаси ва эшитиш қобилиятини ривожлантириш ва талаффузни ўргатиш бўйича ўқитувчининг ўқувчи билан индивидуал ишлаши учун хоналар, логопед ва лингафон хоналари, мусиқий-ритмик машғулотлар учун ойнали девор ва хореография дастгоҳлари билан жиҳозланган хоналар;</div></div><div class="ACT_TEXT lx_elem" onmousemove="lx_mo(event,6311994)"><div class="lx_elem2"><div class="lx_elem3"><span onclick="lx_sf(6311994)"><img src="/img/cmt.svg" />Предложения по документу</span><span onclick="lx_pa(6311994)"><img src="/img/vlm.svg" />Прослушать аудио</span><span onclick="lx_cl(6311994)"><img src="/img/lnk.svg" />Получить ссылку из элемента документа</span></div></div><div name="6311994" id="6311994">ақли заиф ва ақлий ривожланиши паст бўлган болаларга мўлжалланган логопед хоналари;</div></div><div class="ACT_TEXT lx_elem" onmousemove="lx_mo(event,6311995)"><div class="lx_elem2"><div class="lx_elem3"><span onclick="lx_sf(6311995)"><img src="/img/cmt.svg" />Предложения по документу</span><span onclick="lx_pa(6311995)"><img src="/img/vlm.svg" />Прослушать аудио</span><span onclick="lx_cl(6311995)"><img src="/img/lnk.svg" />Получить ссылку из элемента документа</span></div></div><div name="6311995" id="6311995">кўзи ожиз болаларга мўлжалланган логопед ва лингафон хоналари;</div></div><div class="ACT_TEXT lx_elem" onmousemove="lx_mo(event,6311996)"><div class="lx_elem2"><div class="lx_elem3"><span onclick="lx_sf(6311996)"><img src="/img/cmt.svg" />Предложения по документу</span><span onclick="lx_pa(6311996)"><img src="/img/vlm.svg" />Прослушать аудио</span><span onclick="lx_cl(6311996)"><img src="/img/lnk.svg" />Получить ссылку из элемента документа</span></div></div><div name="6311996" id="6311996">таянч-ҳаракат аппаратида нуқсони бўлган болалар учун мўлжалланган даволаш гимнастика зали, оёқ-қўллар ҳаракатланишининг мувофиқлигини ривожлантирувчи ва мустаҳкамловчи махсус тренажёрларга эга бўлган хоналар, шунингдек массаж, сув муолажалари, электр даволаш, озокерит ва бошқа хоналар.</div></div><div class="TEXT_HEADER_DEFAULT lx_elem" onmousemove="lx_mo(event,6311997)"><div class="lx_elem2"><div class="lx_elem3"><span onclick="lx_sf(6311997)"><img src="/img/cmt.svg" />Предложения по документу</span><span onclick="lx_pa(6311997)"><img src="/img/vlm.svg" />Прослушать аудио</span><span onclick="lx_cl(6311997)"><img src="/img/lnk.svg" />Получить ссылку из элемента документа</span></div></div><div name="6311997" id="6311997">2-§. Реабилитация муассасаларининг биноларига қўйиладиган талаблар</div></div><div class="ACT_TEXT lx_elem" onmousemove="lx_mo(event,6311998)"><div class="lx_elem2"><div class="lx_elem3"><span onclick="lx_sf(6311998)"><img src="/img/cmt.svg" />Предложения по документу</span><span onclick="lx_pa(6311998)"><img src="/img/vlm.svg" />Прослушать аудио</span><span onclick="lx_cl(6311998)"><img src="/img/lnk.svg" />Получить ссылку из элемента документа</span></div></div><div name="6311998" id="6311998">89. Ногиронлиги бўлган шахсларни реабилитация қилиш хоналарининг таркиби ва майдони лойиҳа топшириғида белгиланади.</div></div><div class="ACT_TEXT lx_elem" onmousemove="lx_mo(event,6311999)"><div class="lx_elem2"><div class="lx_elem3"><span onclick="lx_sf(6311999)"><img src="/img/cmt.svg" />Предложения по документу</span><span onclick="lx_pa(6311999)"><img src="/img/vlm.svg" />Прослушать аудио</span><span onclick="lx_cl(6311999)"><img src="/img/lnk.svg" />Получить ссылку из элемента документа</span></div></div><div name="6311999" id="6311999">Реабилитация муассасалари таркибида турар жой хоналари (йўлланма муддати давомида) ва даволаш-соғломлаштириш хоналари, ижтимоий-психологик ва касбий-меҳнат реабилитация учун хоналарни ўз ичига олиши керак. Реабилитация маркази хоналари, шу жумладан кундузги ташриф учун яшаш, маданий-маиший, даволаш-соғломлаштириш хоналарини лойиҳалаш мазкур ШНҚ, ШНҚ 2.08.01 ва <a href="/ru/docs/4444291">ШНҚ 2.08.02</a> талабларига мувофиқ амалга оширилади.</div></div><div class="ACT_TEXT lx_elem" onmousemove="lx_mo(event,6312000)"><div class="lx_elem2"><div class="lx_elem3"><span onclick="lx_sf(6312000)"><img src="/img/cmt.svg" />Предложения по документу</span><span onclick="lx_pa(6312000)"><img src="/img/vlm.svg" />Прослушать аудио</span><span onclick="lx_cl(6312000)"><img src="/img/lnk.svg" />Получить ссылку из элемента документа</span></div></div><div name="6312000" id="6312000">Реабилитация муассасаси маркази физиотерапия, даволаш физкультураси, сув ва балчиқли даволаш бўлимлари бўлган санаторий-курорт муассасаси сифатида шакллантирилганда қўшимча тарзда ҚМҚ 2.08.03 талабларини ҳам назарда тутиш керак.</div></div><div class="ACT_TEXT lx_elem" onmousemove="lx_mo(event,6312001)"><div class="lx_elem2"><div class="lx_elem3"><span onclick="lx_sf(6312001)"><img src="/img/cmt.svg" />Предложения по документу</span><span onclick="lx_pa(6312001)"><img src="/img/vlm.svg" />Прослушать аудио</span><span onclick="lx_cl(6312001)"><img src="/img/lnk.svg" />Получить ссылку из элемента документа</span></div></div><div name="6312001" id="6312001">Реабилитация муассасаларида ҳаммом-сауналар, спорт заллари ва сузиш бассейнларини лойиҳалашда ўриндиқли аравачадаги ногиронлиги бўлган шахслар ва кўзи ожизлар учун махсус жиҳозларни назарда тутиш керак. Ечиниш, душ хоналарига кириш имконияти мазкур ШНҚ талаблари асосида лойиҳаланиши лозим.</div></div><div class="ACT_TEXT lx_elem" onmousemove="lx_mo(event,6312002)"><div class="lx_elem2"><div class="lx_elem3"><span onclick="lx_sf(6312002)"><img src="/img/cmt.svg" />Предложения по документу</span><span onclick="lx_pa(6312002)"><img src="/img/vlm.svg" />Прослушать аудио</span><span onclick="lx_cl(6312002)"><img src="/img/lnk.svg" />Получить ссылку из элемента документа</span></div></div><div name="6312002" id="6312002">90. Сузиш ҳавзаси периметри бўйлаб ёпиқ бассейнлар учун камида 2 m, очиқ бассейнлар учун камида 2,4 m кенглигида айланма йўлкалар бўлиши керак. Старт тумбочкалари томонидан йўлканинг кенглиги камида 3,6 m бўлиши керак. Соғломлаштириш машғулотлари учун бассейннинг чуқурлиги саёз қисмида 0,6 — 0,8 m дан, чуқур қисмида 1,4 — 1,6 m гача ўзгарувчан бўлиши керак.</div></div><div class="ACT_TEXT lx_elem" onmousemove="lx_mo(event,6312003)"><div class="lx_elem2"><div class="lx_elem3"><span onclick="lx_sf(6312003)"><img src="/img/cmt.svg" />Предложения по документу</span><span onclick="lx_pa(6312003)"><img src="/img/vlm.svg" />Прослушать аудио</span><span onclick="lx_cl(6312003)"><img src="/img/lnk.svg" />Получить ссылку из элемента документа</span></div></div><div name="6312003" id="6312003">Тушириш ва кўтариш (механик) мосламалари лойиҳалаш топшириғида назарда тутилиши керак.</div></div><div class="ACT_TEXT lx_elem" onmousemove="lx_mo(event,6312004)"><div class="lx_elem2"><div class="lx_elem3"><span onclick="lx_sf(6312004)"><img src="/img/cmt.svg" />Предложения по документу</span><span onclick="lx_pa(6312004)"><img src="/img/vlm.svg" />Прослушать аудио</span><span onclick="lx_cl(6312004)"><img src="/img/lnk.svg" />Получить ссылку из элемента документа</span></div></div><div name="6312004" id="6312004">91. Сузиш ҳавзасининг деворлари бўйлаб сув сатҳидан 0,1 m баландликда ва сув сатҳидан 0,3 m чуқурликда тутқичлар ўрнатилиши назарда тутилиши керак.</div></div><div class="ACT_TEXT lx_elem" onmousemove="lx_mo(event,6312015)"><div class="lx_elem2"><div class="lx_elem3"><span onclick="lx_sf(6312015)"><img src="/img/cmt.svg" />Предложения по документу</span><span onclick="lx_pa(6312015)"><img src="/img/vlm.svg" />Прослушать аудио</span><span onclick="lx_cl(6312015)"><img src="/img/lnk.svg" />Получить ссылку из элемента документа</span></div></div><div name="6312015" id="6312015">Бассейн залининг ички деворлари бўйлаб 0,9 m баландликда, ногиронлиги бўлган болалар учун бассейнларда эса 0,6 m баландликда тутқичлар ўрнатилган бўлиши керак.</div></div><div class="ACT_TEXT lx_elem" onmousemove="lx_mo(event,6312016)"><div class="lx_elem2"><div class="lx_elem3"><span onclick="lx_sf(6312016)"><img src="/img/cmt.svg" />Предложения по документу</span><span onclick="lx_pa(6312016)"><img src="/img/vlm.svg" />Прослушать аудио</span><span onclick="lx_cl(6312016)"><img src="/img/lnk.svg" />Получить ссылку из элемента документа</span></div></div><div name="6312016" id="6312016">Очиқ бассейнлар сузиш ҳавзалари бўйлаб айланма йўлка полидан 0,4 m баландликда бортларга эга бўлиши, зарурият бўлганида эса айланма йўлка полидан 0,6 m баландликда қўшимча тўсиқ бўлиши керак.</div></div><div class="ACT_TEXT lx_elem" onmousemove="lx_mo(event,6312019)"><div class="lx_elem2"><div class="lx_elem3"><span onclick="lx_sf(6312019)"><img src="/img/cmt.svg" />Предложения по документу</span><span onclick="lx_pa(6312019)"><img src="/img/vlm.svg" />Прослушать аудио</span><span onclick="lx_cl(6312019)"><img src="/img/lnk.svg" />Получить ссылку из элемента документа</span></div></div><div name="6312019" id="6312019">92. Ўқув хонасининг майдони камида 36 m² ва устахона майдони бир иш ўрни учун камида 6 m² бўлиши керак.</div></div><div class="ACT_TEXT lx_elem" onmousemove="lx_mo(event,6312020)"><div class="lx_elem2"><div class="lx_elem3"><span onclick="lx_sf(6312020)"><img src="/img/cmt.svg" />Предложения по документу</span><span onclick="lx_pa(6312020)"><img src="/img/vlm.svg" />Прослушать аудио</span><span onclick="lx_cl(6312020)"><img src="/img/lnk.svg" />Получить ссылку из элемента документа</span></div></div><div name="6312020" id="6312020">Устахоналарда қўшимча ёрдамчи хоналар (устанинг хонаси, асбоб-ускуналарни сақлаш хонаси, қазноқ, санузеллар) назарда тутилиши керак.</div></div><div class="TEXT_HEADER_DEFAULT lx_elem" onmousemove="lx_mo(event,6312022)"><div class="lx_elem2"><div class="lx_elem3"><span onclick="lx_sf(6312022)"><img src="/img/cmt.svg" />Предложения по документу</span><span onclick="lx_pa(6312022)"><img src="/img/vlm.svg" />Прослушать аудио</span><span onclick="lx_cl(6312022)"><img src="/img/lnk.svg" />Получить ссылку из элемента документа</span></div></div><div name="6312022" id="6312022">7-боб. Ногиронлиги бўлган шахслар ҳамда кексалар эҳтиёжини инобатга олган ҳолда ускуна ва жиҳозларга қўйиладиган талаблар</div></div><div class="ACT_TEXT lx_elem" onmousemove="lx_mo(event,6312024)"><div class="lx_elem2"><div class="lx_elem3"><span onclick="lx_sf(6312024)"><img src="/img/cmt.svg" />Предложения по документу</span><span onclick="lx_pa(6312024)"><img src="/img/vlm.svg" />Прослушать аудио</span><span onclick="lx_cl(6312024)"><img src="/img/lnk.svg" />Получить ссылку из элемента документа</span></div></div><div name="6312024" id="6312024">93. Сурилиб очилувчи эшиклар юзасининг икки тарафидан очиш учун қулай бўлган тутқичлар ўрнатилиши керак.</div></div><div class="ACT_TEXT lx_elem" onmousemove="lx_mo(event,6312025)"><div class="lx_elem2"><div class="lx_elem3"><span onclick="lx_sf(6312025)"><img src="/img/cmt.svg" />Предложения по документу</span><span onclick="lx_pa(6312025)"><img src="/img/vlm.svg" />Прослушать аудио</span><span onclick="lx_cl(6312025)"><img src="/img/lnk.svg" />Получить ссылку из элемента документа</span></div></div><div name="6312025" id="6312025">Хонанинг бурчагида ёки коридорнинг бурчагида жойлашган эшикларнинг тутқичлари ён девордан камида 0,6 m масофада жойлашган бўлиши керак.</div></div><div class="ACT_TEXT lx_elem" onmousemove="lx_mo(event,6312027)"><div class="lx_elem2"><div class="lx_elem3"><span onclick="lx_sf(6312027)"><img src="/img/cmt.svg" />Предложения по документу</span><span onclick="lx_pa(6312027)"><img src="/img/vlm.svg" />Прослушать аудио</span><span onclick="lx_cl(6312027)"><img src="/img/lnk.svg" />Получить ссылку из элемента документа</span></div></div><div name="6312027" id="6312027">94. Ташриф буюрувчиларнинг кириши ман этилган техник хоналарнинг (шу жумладан, бойлер, венткамера, трансформатор узели ва бошқалар) эшикларига эркин равишда ёки тасодифан кириб қолишни истисно қилувчи тамбалар қўйилиши керак.</div></div><div class="ACT_TEXT lx_elem" onmousemove="lx_mo(event,6312029)"><div class="lx_elem2"><div class="lx_elem3"><span onclick="lx_sf(6312029)"><img src="/img/cmt.svg" />Предложения по документу</span><span onclick="lx_pa(6312029)"><img src="/img/vlm.svg" />Прослушать аудио</span><span onclick="lx_cl(6312029)"><img src="/img/lnk.svg" />Получить ссылку из элемента документа</span></div></div><div name="6312029" id="6312029">Бундай хоналар эшикларининг тамбалари сигнализация билан, кўришда ва эшитишда нуқсони бўлган шахслар учун эшик тутқичлари Брайл алифбоси шрифти асосидаги ёзувлар кўринишида тактил маълумотлар билан жиҳозланиши керак.</div></div><div class="ACT_TEXT lx_elem" onmousemove="lx_mo(event,6312030)"><div class="lx_elem2"><div class="lx_elem3"><span onclick="lx_sf(6312030)"><img src="/img/cmt.svg" />Предложения по документу</span><span onclick="lx_pa(6312030)"><img src="/img/vlm.svg" />Прослушать аудио</span><span onclick="lx_cl(6312030)"><img src="/img/lnk.svg" />Получить ссылку из элемента документа</span></div></div><div name="6312030" id="6312030">95. Ногиронлиги бўлган шахслар бино ичида фойдаланадиган эшикларни очиб-ёпиши учун мослама ва ускуналар, горизонтал тутқичлар, автоматларнинг ричаглари, кранлари ва ёқиш тугмалари, савдо ва чипта сотувчи автоматларнинг тирқишлари ва бошқа ускуналар полдан 1,1 m дан кўп бўлмаган ва 0,85 m дан кам бўлмаган баландликда ва хона ён деворларидан ёки бошқа вертикал юзадан камида 0,4 m масофада ўрнатилиши керак.</div></div><div class="ACT_TEXT lx_elem" onmousemove="lx_mo(event,6312032)"><div class="lx_elem2"><div class="lx_elem3"><span onclick="lx_sf(6312032)"><img src="/img/cmt.svg" />Предложения по документу</span><span onclick="lx_pa(6312032)"><img src="/img/vlm.svg" />Прослушать аудио</span><span onclick="lx_cl(6312032)"><img src="/img/lnk.svg" />Получить ссылку из элемента документа</span></div></div><div name="6312032" id="6312032">96. Ўриндиқли аравачадаги ногиронлиги бўлган шахслар ташриф буюрадиган жамоат биноларидаги ўчириш-ёқиш тугмачалари ва розеткалар полдан 0,8 m баландликда бўлиши керак. </div></div><div class="ACT_TEXT lx_elem" onmousemove="lx_mo(event,6312034)"><div class="lx_elem2"><div class="lx_elem3"><span onclick="lx_sf(6312034)"><img src="/img/cmt.svg" />Предложения по документу</span><span onclick="lx_pa(6312034)"><img src="/img/vlm.svg" />Прослушать аудио</span><span onclick="lx_cl(6312034)"><img src="/img/lnk.svg" />Получить ссылку из элемента документа</span></div></div><div name="6312034" id="6312034">Ихтисослаштирилган таълим муассасаларида розеткалар 1,8 m баландликда жойлаштирилиб, ҳимоя ускуналари билан жиҳозланиши керак.</div></div><div class="ACT_TEXT lx_elem" onmousemove="lx_mo(event,6312036)"><div class="lx_elem2"><div class="lx_elem3"><span onclick="lx_sf(6312036)"><img src="/img/cmt.svg" />Предложения по документу</span><span onclick="lx_pa(6312036)"><img src="/img/vlm.svg" />Прослушать аудио</span><span onclick="lx_cl(6312036)"><img src="/img/lnk.svg" />Получить ссылку из элемента документа</span></div></div><div name="6312036" id="6312036">97. Ногиронлиги бўлган шахслар ташриф буюрадиган жамоат бинолари, ногиронлиги бўлган шахслар учун иш жойлари бўлган ишлаб чиқариш хоналари ёнғин ҳақида хабар берувчи тизимга уланган синхрон товуш ва чироқ сигнализация ускуналари билан жиҳозланиши керак.</div></div><div class="ACT_TEXT lx_elem" onmousemove="lx_mo(event,6312037)"><div class="lx_elem2"><div class="lx_elem3"><span onclick="lx_sf(6312037)"><img src="/img/cmt.svg" />Предложения по документу</span><span onclick="lx_pa(6312037)"><img src="/img/vlm.svg" />Прослушать аудио</span><span onclick="lx_cl(6312037)"><img src="/img/lnk.svg" />Получить ссылку из элемента документа</span></div></div><div name="6312037" id="6312037">Ёнғин ҳақида хабар берувчи товуш сигнализацияси учун товуш кўтарилиши максимал 5 dB бўлган хоналарда 30 секунд давомида 20 dB дан кам бўлмаган товуш даражасини таъминлайдиган мосламалар қўлланилиши лозим.</div></div><div class="ACT_TEXT lx_elem" onmousemove="lx_mo(event,6312039)"><div class="lx_elem2"><div class="lx_elem3"><span onclick="lx_sf(6312039)"><img src="/img/cmt.svg" />Предложения по документу</span><span onclick="lx_pa(6312039)"><img src="/img/vlm.svg" />Прослушать аудио</span><span onclick="lx_cl(6312039)"><img src="/img/lnk.svg" />Получить ссылку из элемента документа</span></div></div><div name="6312039" id="6312039">98. Жамоат биноларининг вестибюллари, холлар, фойе ва йўлакларида кўришда нуқсони бўлган ташриф буюрувчилар учун телефон автоматлари ва эшитишда нуқсони бўлган ташриф буюрувчилар учун текстофон каби товушли информаторлар назарда тутилиши керак.</div></div><div class="ACT_TEXT lx_elem" onmousemove="lx_mo(event,6312040)"><div class="lx_elem2"><div class="lx_elem3"><span onclick="lx_sf(6312040)"><img src="/img/cmt.svg" />Предложения по документу</span><span onclick="lx_pa(6312040)"><img src="/img/vlm.svg" />Прослушать аудио</span><span onclick="lx_cl(6312040)"><img src="/img/lnk.svg" />Получить ссылку из элемента документа</span></div></div><div name="6312040" id="6312040">Эшитишда нуқсони бўлган шахслар учун таблони, кўриниб турувчи кўрсаткичларни, ёритиш сигнализацияларида маълумотлар такрорланишини назарда тутиш керак.</div></div><div class="ACT_TEXT lx_elem" onmousemove="lx_mo(event,6312042)"><div class="lx_elem2"><div class="lx_elem3"><span onclick="lx_sf(6312042)"><img src="/img/cmt.svg" />Предложения по документу</span><span onclick="lx_pa(6312042)"><img src="/img/vlm.svg" />Прослушать аудио</span><span onclick="lx_cl(6312042)"><img src="/img/lnk.svg" />Получить ссылку из элемента документа</span></div></div><div name="6312042" id="6312042">99. Ногиронлиги бўлган шахсларнинг турли тоифаси ташриф буюрадиган хоналарда визуал, товуш, тактил маълумотлар назарда тутилиши керак.</div></div><div class="ACT_TEXT lx_elem" onmousemove="lx_mo(event,6312043)"><div class="lx_elem2"><div class="lx_elem3"><span onclick="lx_sf(6312043)"><img src="/img/cmt.svg" />Предложения по документу</span><span onclick="lx_pa(6312043)"><img src="/img/vlm.svg" />Прослушать аудио</span><span onclick="lx_cl(6312043)"><img src="/img/lnk.svg" />Получить ссылку из элемента документа</span></div></div><div name="6312043" id="6312043">100. Ногиронлиги бўлган шахслар кириши мумкин бўлган зона ва хоналар, шунингдек кириш зоналари ва ҳаракатланиш йўлларида ахборотнинг узлуксизлиги, тўғри йўналиш олиш, ташриф объекти ёки жойни аниқ идентификациялаш таъминланиши лозим.</div></div><div class="ACT_TEXT lx_elem" onmousemove="lx_mo(event,6312044)"><div class="lx_elem2"><div class="lx_elem3"><span onclick="lx_sf(6312044)"><img src="/img/cmt.svg" />Предложения по документу</span><span onclick="lx_pa(6312044)"><img src="/img/vlm.svg" />Прослушать аудио</span><span onclick="lx_cl(6312044)"><img src="/img/lnk.svg" />Получить ссылку из элемента документа</span></div></div><div name="6312044" id="6312044">Ахборот воситалари фавқулодда вазиятларда хавф-хатар ҳақида хабар бериши, хизматлар ва уларнинг турларига эга бўлиш жойларига йўналтириши керак.</div></div><div class="ACT_TEXT lx_elem" onmousemove="lx_mo(event,6312045)"><div class="lx_elem2"><div class="lx_elem3"><span onclick="lx_sf(6312045)"><img src="/img/cmt.svg" />Предложения по документу</span><span onclick="lx_pa(6312045)"><img src="/img/vlm.svg" />Прослушать аудио</span><span onclick="lx_cl(6312045)"><img src="/img/lnk.svg" />Получить ссылку из элемента документа</span></div></div><div name="6312045" id="6312045">101. Визуал ахборот контрастли фонда 1,5 — 1,7 m баландликда жойлаштирилиши керак.</div></div><div class="ACT_TEXT lx_elem" onmousemove="lx_mo(event,6312047)"><div class="lx_elem2"><div class="lx_elem3"><span onclick="lx_sf(6312047)"><img src="/img/cmt.svg" />Предложения по документу</span><span onclick="lx_pa(6312047)"><img src="/img/vlm.svg" />Прослушать аудио</span><span onclick="lx_cl(6312047)"><img src="/img/lnk.svg" />Получить ссылку из элемента документа</span></div></div><div name="6312047" id="6312047">102. Ногиронлиги бўлган шахс ёлғиз қолиши мумкин бўлган бинонинг ёпиқ жойларида (лифтлар ва лифт холлари, турли мақсаддаги хоналар, тамбурлар, ҳожатхона хоналарида ва бошқаларда) навбатчини чақириш учун «хавф-хатар» тугмачаси ёки диспетчер (навбатчи) билан гаплашиш мосламасини назарда тутиш керак.</div></div><div class="ACT_TEXT lx_elem" onmousemove="lx_mo(event,6312048)"><div class="lx_elem2"><div class="lx_elem3"><span onclick="lx_sf(6312048)"><img src="/img/cmt.svg" />Предложения по документу</span><span onclick="lx_pa(6312048)"><img src="/img/vlm.svg" />Прослушать аудио</span><span onclick="lx_cl(6312048)"><img src="/img/lnk.svg" />Получить ссылку из элемента документа</span></div></div><div name="6312048" id="6312048">103. Ногиронлиги бўлган шахслар кириши мумкин бўлган хона ва коммуникацияларнинг ёритилиши учун белгиланган кўрсаткичлардан бир даражага ошириш керак.</div></div><div class="ACT_TEXT lx_elem" onmousemove="lx_mo(event,6312065)"><div class="lx_elem2"><div class="lx_elem3"><span onclick="lx_sf(6312065)"><img src="/img/cmt.svg" />Предложения по документу</span><span onclick="lx_pa(6312065)"><img src="/img/vlm.svg" />Прослушать аудио</span><span onclick="lx_cl(6312065)"><img src="/img/lnk.svg" />Получить ссылку из элемента документа</span></div></div><div name="6312065" id="6312065">Қўшни зоналар ёки хоналар ёритилишидаги фарқ 1:4 дан ошмаслиги керак.</div></div><div class="ACT_TEXT lx_elem" onmousemove="lx_mo(event,6312066)"><div class="lx_elem2"><div class="lx_elem3"><span onclick="lx_sf(6312066)"><img src="/img/cmt.svg" />Предложения по документу</span><span onclick="lx_pa(6312066)"><img src="/img/vlm.svg" />Прослушать аудио</span><span onclick="lx_cl(6312066)"><img src="/img/lnk.svg" />Получить ссылку из элемента документа</span></div></div><div name="6312066" id="6312066">Жамоат ҳожатхоналарида, шу жумладан кабинали ҳожатхоналарда фавқулодда ёритиш таъминланиши керак.</div></div><div class="ACT_TEXT lx_elem" onmousemove="lx_mo(event,6312067)"><div class="lx_elem2"><div class="lx_elem3"><span onclick="lx_sf(6312067)"><img src="/img/cmt.svg" />Предложения по документу</span><span onclick="lx_pa(6312067)"><img src="/img/vlm.svg" />Прослушать аудио</span><span onclick="lx_cl(6312067)"><img src="/img/lnk.svg" />Получить ссылку из элемента документа</span></div></div><div name="6312067" id="6312067">Ёзувлар, белгилар, символлар ва пиктограммалар юзасининг ёритилганлиги ахборотни акс эттирувчи воситаларнинг бутун сирти юзасида бир хил бўлиши лозим. Бундай ёритилганликнинг қиймати 100 дан 300 гача lk ни ташкил этиши лозим.</div></div><div class="ACT_TEXT lx_elem" onmousemove="lx_mo(event,6312068)"><div class="lx_elem2"><div class="lx_elem3"><span onclick="lx_sf(6312068)"><img src="/img/cmt.svg" />Предложения по документу</span><span onclick="lx_pa(6312068)"><img src="/img/vlm.svg" />Прослушать аудио</span><span onclick="lx_cl(6312068)"><img src="/img/lnk.svg" />Получить ссылку из элемента документа</span></div></div><div name="6312068" id="6312068">Йўлакларда ҳаракатланиш йўллари сатҳидаги ёритиш люминесцент лампалар учун 40 lk бўлиши керак. Ёруғлик маёқчалари катта бўлмаган лампалар ёки ёруғлик импульсларини катта бўлмаган ёрқинликда тарқатувчи ва рангли фильтрларга эга бўлган сигналли ёритгичлар кўринишида бажариш тавсия этилади. Ўзгармас ёруғлик тарқатувчи маёқчалардан фойдаланиш мумкин.</div></div><div class="ACT_TEXT lx_elem" onmousemove="lx_mo(event,6312069)"><div class="lx_elem2"><div class="lx_elem3"><span onclick="lx_sf(6312069)"><img src="/img/cmt.svg" />Предложения по документу</span><span onclick="lx_pa(6312069)"><img src="/img/vlm.svg" />Прослушать аудио</span><span onclick="lx_cl(6312069)"><img src="/img/lnk.svg" />Получить ссылку из элемента документа</span></div></div><div name="6312069" id="6312069">104. Кўришда нуқсони бўлган шахслар учун иш жойларида 500 — 1500 lk гача маҳаллий ва умумий ёритишнинг комбинациялашган тизимини қўллаш керак.</div></div><div class="ACT_TEXT lx_elem" onmousemove="lx_mo(event,6312070)"><div class="lx_elem2"><div class="lx_elem3"><span onclick="lx_sf(6312070)"><img src="/img/cmt.svg" />Предложения по документу</span><span onclick="lx_pa(6312070)"><img src="/img/vlm.svg" />Прослушать аудио</span><span onclick="lx_cl(6312070)"><img src="/img/lnk.svg" />Получить ссылку из элемента документа</span></div></div><div name="6312070" id="6312070">105. Хоналарда шамоллатиш ва вентиляция ёрдамида қулай микроиқлим шароитларини яратиш имкони бўлмаганда кондиционерлар қўлланилиши мумкин.</div></div><div class="ACT_TEXT lx_elem" onmousemove="lx_mo(event,6312071)"><div class="lx_elem2"><div class="lx_elem3"><span onclick="lx_sf(6312071)"><img src="/img/cmt.svg" />Предложения по документу</span><span onclick="lx_pa(6312071)"><img src="/img/vlm.svg" />Прослушать аудио</span><span onclick="lx_cl(6312071)"><img src="/img/lnk.svg" />Получить ссылку из элемента документа</span></div></div><div name="6312071" id="6312071">106. Хўжалик-истеъмол эҳтиёжлари учун бериладиган совуқ ва иссиқ сувнинг сифати Oʻz DSt 950 давлат стандартига мувофиқ бўлиши керак.</div></div><div class="ACT_TEXT lx_elem" onmousemove="lx_mo(event,6312072)"><div class="lx_elem2"><div class="lx_elem3"><span onclick="lx_sf(6312072)"><img src="/img/cmt.svg" />Предложения по документу</span><span onclick="lx_pa(6312072)"><img src="/img/vlm.svg" />Прослушать аудио</span><span onclick="lx_cl(6312072)"><img src="/img/lnk.svg" />Получить ссылку из элемента документа</span></div></div><div name="6312072" id="6312072">Ногиронлиги бўлган шахслар, кексалар ҳамда ногиронлиги бўлган болалар учун санитария бўлмаларининг смесителлари (сув олиш мосламаси) термостатик бошқарувли бўлиши керак.</div></div><div class="ACT_TEXT lx_elem" onmousemove="lx_mo(event,6312073)"><div class="lx_elem2"><div class="lx_elem3"><span onclick="lx_sf(6312073)"><img src="/img/cmt.svg" />Предложения по документу</span><span onclick="lx_pa(6312073)"><img src="/img/vlm.svg" />Прослушать аудио</span><span onclick="lx_cl(6312073)"><img src="/img/lnk.svg" />Получить ссылку из элемента документа</span></div></div><div name="6312073" id="6312073">Ногиронлиги бўлган болалар учун мўлжалланган ихтисослаштирилган таълим муассасаларида душ ва раковиналарининг сув олиш арматураларига етказиб бериладиган иссиқ сувнинг ҳарорати 37°С дан ошмаслиги лозим. </div></div><div class="ACT_TEXT lx_elem" onmousemove="lx_mo(event,6312074)"><div class="lx_elem2"><div class="lx_elem3"><span onclick="lx_sf(6312074)"><img src="/img/cmt.svg" />Предложения по документу</span><span onclick="lx_pa(6312074)"><img src="/img/vlm.svg" />Прослушать аудио</span><span onclick="lx_cl(6312074)"><img src="/img/lnk.svg" />Получить ссылку из элемента документа</span></div></div><div name="6312074" id="6312074">Сув олиш арматураси сифатида ричаг ва босимли водопровод кранлари, шунингдек автоматик мосламалардан фойдаланиш тавсия этилади.</div></div><div class="ACT_TEXT lx_elem" onmousemove="lx_mo(event,6312075)"><div class="lx_elem2"><div class="lx_elem3"><span onclick="lx_sf(6312075)"><img src="/img/cmt.svg" />Предложения по документу</span><span onclick="lx_pa(6312075)"><img src="/img/vlm.svg" />Прослушать аудио</span><span onclick="lx_cl(6312075)"><img src="/img/lnk.svg" />Получить ссылку из элемента документа</span></div></div><div name="6312075" id="6312075">107. Жамоат ва турар жой биноларида ёнғин сигнализацияси товуш сигналлари, шунингдек эшитишда нуқсони бўлган шахслар учун чироқли сигналларни қабул қилишни ҳисобга олган ҳолда лойиҳаланиши керак.</div></div><div class="ACT_TEXT lx_elem" onmousemove="lx_mo(event,6312076)"><div class="lx_elem2"><div class="lx_elem3"><span onclick="lx_sf(6312076)"><img src="/img/cmt.svg" />Предложения по документу</span><span onclick="lx_pa(6312076)"><img src="/img/vlm.svg" />Прослушать аудио</span><span onclick="lx_cl(6312076)"><img src="/img/lnk.svg" />Получить ссылку из элемента документа</span></div></div><div name="6312076" id="6312076">Ногиронлиги бўлган шахслар учун турар жойлар ёнғин ҳақида автоном хабар берувчи мосламалар билан жиҳозланиши лозим.</div></div><div class="ACT_TEXT lx_elem" onmousemove="lx_mo(event,6312077)"><div class="lx_elem2"><div class="lx_elem3"><span onclick="lx_sf(6312077)"><img src="/img/cmt.svg" />Предложения по документу</span><span onclick="lx_pa(6312077)"><img src="/img/vlm.svg" />Прослушать аудио</span><span onclick="lx_cl(6312077)"><img src="/img/lnk.svg" />Получить ссылку из элемента документа</span></div></div><div name="6312077" id="6312077">108. Сигнализация мосламаларининг сони ва жойлашуви лойиҳа топшириғида белгиланади. Домофонлар ва кириб-чиқишни назорат қилувчи мосламалар товушли ҳамда чироқли сигнализацияли бўлиши керак.</div></div><div class="BY_DEFAULT lx_elem" onmousemove="lx_mo(event,6312078)"><div class="lx_elem2"><div class="lx_elem3"><span onclick="lx_sf(6312078)"><img src="/img/cmt.svg" />Предложения по документу</span><span onclick="lx_pa(6312078)"><img src="/img/vlm.svg" />Прослушать аудио</span><span onclick="lx_cl(6312078)"><img src="/img/lnk.svg" />Получить ссылку из элемента документа</span></div></div><div name="6312078" id="6312078"></div></div><div class="APPL_BANNER_LANDSCAPE_TITLE lx_elem" onmousemove="lx_mo(event,6312079)"><div class="lx_elem2"><div class="lx_elem3"><span onclick="lx_sf(6312079)"><img src="/img/cmt.svg" />Предложения по документу</span><span onclick="lx_pa(6312079)"><img src="/img/vlm.svg" />Прослушать аудио</span><span onclick="lx_cl(6312079)"><img src="/img/lnk.svg" />Получить ссылку из элемента документа</span></div></div><div name="6312079" id="6312079">ШНҚ 2.07.02-22 «Қурилиш объектларини ногиронлиги бўлган шахслар ҳамда кексалар эҳтиёжини инобатга олган ҳолда лойиҳалаштириш» шаҳарсозлик <a href="/ru/docs/6311402#6311479">нормалари ва қоидаларига<br /></a>1-ИЛОВА</div></div><div class="ACT_TITLE_APPL lx_elem" onmousemove="lx_mo(event,6312080)"><div class="lx_elem2"><div class="lx_elem3"><span onclick="lx_sf(6312080)"><img src="/img/cmt.svg" />Предложения по документу</span><span onclick="lx_pa(6312080)"><img src="/img/vlm.svg" />Прослушать аудио</span><span onclick="lx_cl(6312080)"><img src="/img/lnk.svg" />Получить ссылку из элемента документа</span></div></div><div name="6312080" id="6312080">Ногиронлиги бўлган шахсларнинг антропометрик параметрлари, ўриндиқли аравачанинг габаритлари</div></div><div class="BY_DEFAULT lx_elem" onmousemove="lx_mo(event,6312090)"><div class="lx_elem2"><div class="lx_elem3"><span onclick="lx_sf(6312090)"><img src="/img/cmt.svg" />Предложения по документу</span><span onclick="lx_pa(6312090)"><img src="/img/vlm.svg" />Прослушать аудио</span><span onclick="lx_cl(6312090)"><img src="/img/lnk.svg" />Получить ссылку из элемента документа</span></div></div><div name="6312090" id="6312090"></div></div><div class="TEXT_CENTER lx_elem" onmousemove="lx_mo(event,6312097)"><div class="lx_elem2"><div class="lx_elem3"><span onclick="lx_sf(6312097)"><img src="/img/cmt.svg" />Предложения по документу</span><span onclick="lx_pa(6312097)"><img src="/img/vlm.svg" />Прослушать аудио</span><span onclick="lx_cl(6312097)"><img src="/img/lnk.svg" />Получить ссылку из элемента документа</span></div></div><div name="6312097" id="6312097"><img src="/ru/files/6312154" /></div></div><div class="BY_DEFAULT lx_elem" onmousemove="lx_mo(event,6312098)"><div class="lx_elem2"><div class="lx_elem3"><span onclick="lx_sf(6312098)"><img src="/img/cmt.svg" />Предложения по документу</span><span onclick="lx_pa(6312098)"><img src="/img/vlm.svg" />Прослушать аудио</span><span onclick="lx_cl(6312098)"><img src="/img/lnk.svg" />Получить ссылку из элемента документа</span></div></div><div name="6312098" id="6312098"></div></div><div class="APPL_BANNER_LANDSCAPE_TITLE lx_elem" onmousemove="lx_mo(event,6312099)"><div class="lx_elem2"><div class="lx_elem3"><span onclick="lx_sf(6312099)"><img src="/img/cmt.svg" />Предложения по документу</span><span onclick="lx_pa(6312099)"><img src="/img/vlm.svg" />Прослушать аудио</span><span onclick="lx_cl(6312099)"><img src="/img/lnk.svg" />Получить ссылку из элемента документа</span></div></div><div name="6312099" id="6312099">ШНҚ 2.07.02-22 «Қурилиш объектларини ногиронлиги бўлган шахслар ҳамда кексалар эҳтиёжини инобатга олган ҳолда лойиҳалаштириш» шаҳарсозлик <a href="/ru/docs/6311402#6311479">нормалари ва қоидаларига<br /></a>2-ИЛОВА</div></div><div class="ACT_TITLE_APPL lx_elem" onmousemove="lx_mo(event,6312100)"><div class="lx_elem2"><div class="lx_elem3"><span onclick="lx_sf(6312100)"><img src="/img/cmt.svg" />Предложения по документу</span><span onclick="lx_pa(6312100)"><img src="/img/vlm.svg" />Прослушать аудио</span><span onclick="lx_cl(6312100)"><img src="/img/lnk.svg" />Получить ссылку из элемента документа</span></div></div><div name="6312100" id="6312100">Ўриндиқли аравачанинг габаритлари</div></div><div class="BY_DEFAULT lx_elem" onmousemove="lx_mo(event,6312156)"><div class="lx_elem2"><div class="lx_elem3"><span onclick="lx_sf(6312156)"><img src="/img/cmt.svg" />Предложения по документу</span><span onclick="lx_pa(6312156)"><img src="/img/vlm.svg" />Прослушать аудио</span><span onclick="lx_cl(6312156)"><img src="/img/lnk.svg" />Получить ссылку из элемента документа</span></div></div><div name="6312156" id="6312156"></div></div><div class="TEXT_CENTER lx_elem" onmousemove="lx_mo(event,6312165)"><div class="lx_elem2"><div class="lx_elem3"><span onclick="lx_sf(6312165)"><img src="/img/cmt.svg" />Предложения по документу</span><span onclick="lx_pa(6312165)"><img src="/img/vlm.svg" />Прослушать аудио</span><span onclick="lx_cl(6312165)"><img src="/img/lnk.svg" />Получить ссылку из элемента документа</span></div></div><div name="6312165" id="6312165"><img src="/ru/files/6312163" /></div></div><div class="BY_DEFAULT lx_elem" onmousemove="lx_mo(event,6312169)"><div class="lx_elem2"><div class="lx_elem3"><span onclick="lx_sf(6312169)"><img src="/img/cmt.svg" />Предложения по документу</span><span onclick="lx_pa(6312169)"><img src="/img/vlm.svg" />Прослушать аудио</span><span onclick="lx_cl(6312169)"><img src="/img/lnk.svg" />Получить ссылку из элемента документа</span></div></div><div name="6312169" id="6312169"></div></div><div class="APPL_BANNER_LANDSCAPE_TITLE lx_elem" onmousemove="lx_mo(event,6312170)"><div class="lx_elem2"><div class="lx_elem3"><span onclick="lx_sf(6312170)"><img src="/img/cmt.svg" />Предложения по документу</span><span onclick="lx_pa(6312170)"><img src="/img/vlm.svg" />Прослушать аудио</span><span onclick="lx_cl(6312170)"><img src="/img/lnk.svg" />Получить ссылку из элемента документа</span></div></div><div name="6312170" id="6312170">ШНҚ 2.07.02-22 «Қурилиш объектларини ногиронлиги бўлган шахслар ҳамда кексалар эҳтиёжини инобатга олган ҳолда лойиҳалаштириш» шаҳарсозлик <a href="/ru/docs/6311402#6311479">нормалари ва қоидаларига<br /></a>3-ИЛОВА</div></div><div class="ACT_TITLE_APPL lx_elem" onmousemove="lx_mo(event,6312172)"><div class="lx_elem2"><div class="lx_elem3"><span onclick="lx_sf(6312172)"><img src="/img/cmt.svg" />Предложения по документу</span><span onclick="lx_pa(6312172)"><img src="/img/vlm.svg" />Прослушать аудио</span><span onclick="lx_cl(6312172)"><img src="/img/lnk.svg" />Получить ссылку из элемента документа</span></div></div><div name="6312172" id="6312172">Тактил йўл белгиларининг турлари</div></div><div class="BY_DEFAULT lx_elem" onmousemove="lx_mo(event,6312173)"><div class="lx_elem2"><div class="lx_elem3"><span onclick="lx_sf(6312173)"><img src="/img/cmt.svg" />Предложения по документу</span><span onclick="lx_pa(6312173)"><img src="/img/vlm.svg" />Прослушать аудио</span><span onclick="lx_cl(6312173)"><img src="/img/lnk.svg" />Получить ссылку из элемента документа</span></div></div><div name="6312173" id="6312173"></div></div><div class="TEXT_CENTER lx_elem" onmousemove="lx_mo(event,6312174)"><div class="lx_elem2"><div class="lx_elem3"><span onclick="lx_sf(6312174)"><img src="/img/cmt.svg" />Предложения по документу</span><span onclick="lx_pa(6312174)"><img src="/img/vlm.svg" />Прослушать аудио</span><span onclick="lx_cl(6312174)"><img src="/img/lnk.svg" />Получить ссылку из элемента документа</span></div></div><div name="6312174" id="6312174"><img src="/ru/files/6312176" /></div></div><div class="BY_DEFAULT lx_elem" onmousemove="lx_mo(event,6312178)"><div class="lx_elem2"><div class="lx_elem3"><span onclick="lx_sf(6312178)"><img src="/img/cmt.svg" />Предложения по документу</span><span onclick="lx_pa(6312178)"><img src="/img/vlm.svg" />Прослушать аудио</span><span onclick="lx_cl(6312178)"><img src="/img/lnk.svg" />Получить ссылку из элемента документа</span></div></div><div name="6312178" id="6312178"></div></div><div class="APPL_BANNER_LANDSCAPE_TITLE lx_elem" onmousemove="lx_mo(event,6312179)"><div class="lx_elem2"><div class="lx_elem3"><span onclick="lx_sf(6312179)"><img src="/img/cmt.svg" />Предложения по документу</span><span onclick="lx_pa(6312179)"><img src="/img/vlm.svg" />Прослушать аудио</span><span onclick="lx_cl(6312179)"><img src="/img/lnk.svg" />Получить ссылку из элемента документа</span></div></div><div name="6312179" id="6312179">ШНҚ 2.07.02-22 «Қурилиш объектларини ногиронлиги бўлган шахслар ҳамда кексалар эҳтиёжини инобатга олган ҳолда лойиҳалаштириш» шаҳарсозлик <a href="/ru/docs/6311402#6311479">нормалари ва қоидаларига<br /></a>4-ИЛОВА</div></div><div class="ACT_TITLE_APPL lx_elem" onmousemove="lx_mo(event,6312180)"><div class="lx_elem2"><div class="lx_elem3"><span onclick="lx_sf(6312180)"><img src="/img/cmt.svg" />Предложения по документу</span><span onclick="lx_pa(6312180)"><img src="/img/vlm.svg" />Прослушать аудио</span><span onclick="lx_cl(6312180)"><img src="/img/lnk.svg" />Получить ссылку из элемента документа</span></div></div><div name="6312180" id="6312180">Тактил йўл белгиларининг турлари ва уларнинг мақсади</div></div><div class="BY_DEFAULT lx_elem" onmousemove="lx_mo(event,6312181)"><div class="lx_elem2"><div class="lx_elem3"><span onclick="lx_sf(6312181)"><img src="/img/cmt.svg" />Предложения по документу</span><span onclick="lx_pa(6312181)"><img src="/img/vlm.svg" />Прослушать аудио</span><span onclick="lx_cl(6312181)"><img src="/img/lnk.svg" />Получить ссылку из элемента документа</span></div></div><div name="6312181" id="6312181"></div></div><div class="TEXT_CENTER lx_elem" onmousemove="lx_mo(event,6312182)"><div class="lx_elem2"><div class="lx_elem3"><span onclick="lx_sf(6312182)"><img src="/img/cmt.svg" />Предложения по документу</span><span onclick="lx_pa(6312182)"><img src="/img/vlm.svg" />Прослушать аудио</span><span onclick="lx_cl(6312182)"><img src="/img/lnk.svg" />Получить ссылку из элемента документа</span></div></div><div name="6312182" id="6312182"><img src="/ru/files/6312177" /></div></div><div class="BY_DEFAULT lx_elem" onmousemove="lx_mo(event,6312183)"><div class="lx_elem2"><div class="lx_elem3"><span onclick="lx_sf(6312183)"><img src="/img/cmt.svg" />Предложения по документу</span><span onclick="lx_pa(6312183)"><img src="/img/vlm.svg" />Прослушать аудио</span><span onclick="lx_cl(6312183)"><img src="/img/lnk.svg" />Получить ссылку из элемента документа</span></div></div><div name="6312183" id="6312183"></div></div><div class="APPL_BANNER_LANDSCAPE_TITLE lx_elem" onmousemove="lx_mo(event,6312184)"><div class="lx_elem2"><div class="lx_elem3"><span onclick="lx_sf(6312184)"><img src="/img/cmt.svg" />Предложения по документу</span><span onclick="lx_pa(6312184)"><img src="/img/vlm.svg" />Прослушать аудио</span><span onclick="lx_cl(6312184)"><img src="/img/lnk.svg" />Получить ссылку из элемента документа</span></div></div><div name="6312184" id="6312184">ШНҚ 2.07.02-22 «Қурилиш объектларини ногиронлиги бўлган шахслар ҳамда кексалар эҳтиёжини инобатга олган ҳолда лойиҳалаштириш» шаҳарсозлик <a href="/ru/docs/6311402#6311479">нормалари ва қоидаларига<br /></a>5-ИЛОВА</div></div><div class="ACT_TITLE_APPL lx_elem" onmousemove="lx_mo(event,6312185)"><div class="lx_elem2"><div class="lx_elem3"><span onclick="lx_sf(6312185)"><img src="/img/cmt.svg" />Предложения по документу</span><span onclick="lx_pa(6312185)"><img src="/img/vlm.svg" />Прослушать аудио</span><span onclick="lx_cl(6312185)"><img src="/img/lnk.svg" />Получить ссылку из элемента документа</span></div></div><div name="6312185" id="6312185">Бино ички ҳаракатланиш йўлакларининг тавсиявий кенглиги</div></div><div class="BY_DEFAULT lx_elem" onmousemove="lx_mo(event,6312186)"><div class="lx_elem2"><div class="lx_elem3"><span onclick="lx_sf(6312186)"><img src="/img/cmt.svg" />Предложения по документу</span><span onclick="lx_pa(6312186)"><img src="/img/vlm.svg" />Прослушать аудио</span><span onclick="lx_cl(6312186)"><img src="/img/lnk.svg" />Получить ссылку из элемента документа</span></div></div><div name="6312186" id="6312186"></div></div><div class="TEXT_CENTER lx_elem" onmousemove="lx_mo(event,6312187)"><div class="lx_elem2"><div class="lx_elem3"><span onclick="lx_sf(6312187)"><img src="/img/cmt.svg" />Предложения по документу</span><span onclick="lx_pa(6312187)"><img src="/img/vlm.svg" />Прослушать аудио</span><span onclick="lx_cl(6312187)"><img src="/img/lnk.svg" />Получить ссылку из элемента документа</span></div></div><div name="6312187" id="6312187"><img src="/ru/files/6312188" /></div></div><div class="BY_DEFAULT lx_elem" onmousemove="lx_mo(event,6312189)"><div class="lx_elem2"><div class="lx_elem3"><span onclick="lx_sf(6312189)"><img src="/img/cmt.svg" />Предложения по документу</span><span onclick="lx_pa(6312189)"><img src="/img/vlm.svg" />Прослушать аудио</span><span onclick="lx_cl(6312189)"><img src="/img/lnk.svg" />Получить ссылку из элемента документа</span></div></div><div name="6312189" id="6312189"></div></div><div class="APPL_BANNER_LANDSCAPE_TITLE lx_elem" onmousemove="lx_mo(event,6312199)"><div class="lx_elem2"><div class="lx_elem3"><span onclick="lx_sf(6312199)"><img src="/img/cmt.svg" />Предложения по документу</span><span onclick="lx_pa(6312199)"><img src="/img/vlm.svg" />Прослушать аудио</span><span onclick="lx_cl(6312199)"><img src="/img/lnk.svg" />Получить ссылку из элемента документа</span></div></div><div name="6312199" id="6312199">ШНҚ 2.07.02-22 «Қурилиш объектларини ногиронлиги бўлган шахслар ҳамда кексалар эҳтиёжини инобатга олган ҳолда лойиҳалаштириш» шаҳарсозлик <a href="/ru/docs/6311402#6311479">нормалари ва қоидаларига<br /></a>6-ИЛОВА</div></div><div class="ACT_TITLE_APPL lx_elem" onmousemove="lx_mo(event,6312200)"><div class="lx_elem2"><div class="lx_elem3"><span onclick="lx_sf(6312200)"><img src="/img/cmt.svg" />Предложения по документу</span><span onclick="lx_pa(6312200)"><img src="/img/vlm.svg" />Прослушать аудио</span><span onclick="lx_cl(6312200)"><img src="/img/lnk.svg" />Получить ссылку из элемента документа</span></div></div><div name="6312200" id="6312200">Кўчалардаги тактил қопламаларнинг намуналари</div></div><div class="BY_DEFAULT lx_elem" onmousemove="lx_mo(event,6312201)"><div class="lx_elem2"><div class="lx_elem3"><span onclick="lx_sf(6312201)"><img src="/img/cmt.svg" />Предложения по документу</span><span onclick="lx_pa(6312201)"><img src="/img/vlm.svg" />Прослушать аудио</span><span onclick="lx_cl(6312201)"><img src="/img/lnk.svg" />Получить ссылку из элемента документа</span></div></div><div name="6312201" id="6312201"></div></div><div class="TEXT_CENTER lx_elem" onmousemove="lx_mo(event,6312202)"><div class="lx_elem2"><div class="lx_elem3"><span onclick="lx_sf(6312202)"><img src="/img/cmt.svg" />Предложения по документу</span><span onclick="lx_pa(6312202)"><img src="/img/vlm.svg" />Прослушать аудио</span><span onclick="lx_cl(6312202)"><img src="/img/lnk.svg" />Получить ссылку из элемента документа</span></div></div><div name="6312202" id="6312202"><img src="/ru/files/6312203" /></div></div><div class="BY_DEFAULT lx_elem" onmousemove="lx_mo(event,6312211)"><div class="lx_elem2"><div class="lx_elem3"><span onclick="lx_sf(6312211)"><img src="/img/cmt.svg" />Предложения по документу</span><span onclick="lx_pa(6312211)"><img src="/img/vlm.svg" />Прослушать аудио</span><span onclick="lx_cl(6312211)"><img src="/img/lnk.svg" />Получить ссылку из элемента документа</span></div></div><div name="6312211" id="6312211"></div></div><div class="APPL_BANNER_LANDSCAPE_TITLE lx_elem" onmousemove="lx_mo(event,6312212)"><div class="lx_elem2"><div class="lx_elem3"><span onclick="lx_sf(6312212)"><img src="/img/cmt.svg" />Предложения по документу</span><span onclick="lx_pa(6312212)"><img src="/img/vlm.svg" />Прослушать аудио</span><span onclick="lx_cl(6312212)"><img src="/img/lnk.svg" />Получить ссылку из элемента документа</span></div></div><div name="6312212" id="6312212">ШНҚ 2.07.02-22 «Қурилиш объектларини ногиронлиги бўлган шахслар ҳамда кексалар эҳтиёжини инобатга олган ҳолда лойиҳалаштириш» шаҳарсозлик <a href="/ru/docs/6311402#6311479">нормалари ва қоидаларига<br /></a>7-ИЛОВА</div></div><div class="ACT_TITLE_APPL lx_elem" onmousemove="lx_mo(event,6312213)"><div class="lx_elem2"><div class="lx_elem3"><span onclick="lx_sf(6312213)"><img src="/img/cmt.svg" />Предложения по документу</span><span onclick="lx_pa(6312213)"><img src="/img/vlm.svg" />Прослушать аудио</span><span onclick="lx_cl(6312213)"><img src="/img/lnk.svg" />Получить ссылку из элемента документа</span></div></div><div name="6312213" id="6312213">Зина остидаги ҳимоя тўсиқлари</div></div><div class="BY_DEFAULT lx_elem" onmousemove="lx_mo(event,6312214)"><div class="lx_elem2"><div class="lx_elem3"><span onclick="lx_sf(6312214)"><img src="/img/cmt.svg" />Предложения по документу</span><span onclick="lx_pa(6312214)"><img src="/img/vlm.svg" />Прослушать аудио</span><span onclick="lx_cl(6312214)"><img src="/img/lnk.svg" />Получить ссылку из элемента документа</span></div></div><div name="6312214" id="6312214"></div></div><div class="TEXT_CENTER lx_elem" onmousemove="lx_mo(event,6312215)"><div class="lx_elem2"><div class="lx_elem3"><span onclick="lx_sf(6312215)"><img src="/img/cmt.svg" />Предложения по документу</span><span onclick="lx_pa(6312215)"><img src="/img/vlm.svg" />Прослушать аудио</span><span onclick="lx_cl(6312215)"><img src="/img/lnk.svg" />Получить ссылку из элемента документа</span></div></div><div name="6312215" id="6312215"><img src="/ru/files/6312210" /></div></div><div class="BY_DEFAULT lx_elem" onmousemove="lx_mo(event,6312216)"><div class="lx_elem2"><div class="lx_elem3"><span onclick="lx_sf(6312216)"><img src="/img/cmt.svg" />Предложения по документу</span><span onclick="lx_pa(6312216)"><img src="/img/vlm.svg" />Прослушать аудио</span><span onclick="lx_cl(6312216)"><img src="/img/lnk.svg" />Получить ссылку из элемента документа</span></div></div><div name="6312216" id="6312216"></div></div><div class="APPL_BANNER_LANDSCAPE_TITLE lx_elem" onmousemove="lx_mo(event,6312217)"><div class="lx_elem2"><div class="lx_elem3"><span onclick="lx_sf(6312217)"><img src="/img/cmt.svg" />Предложения по документу</span><span onclick="lx_pa(6312217)"><img src="/img/vlm.svg" />Прослушать аудио</span><span onclick="lx_cl(6312217)"><img src="/img/lnk.svg" />Получить ссылку из элемента документа</span></div></div><div name="6312217" id="6312217">ШНҚ 2.07.02-22 «Қурилиш объектларини ногиронлиги бўлган шахслар ҳамда кексалар эҳтиёжини инобатга олган ҳолда лойиҳалаштириш» шаҳарсозлик <a href="/ru/docs/6311402#6311479">нормалари ва қоидаларига<br /></a>8-ИЛОВА</div></div><div class="ACT_TITLE_APPL lx_elem" onmousemove="lx_mo(event,6312218)"><div class="lx_elem2"><div class="lx_elem3"><span onclick="lx_sf(6312218)"><img src="/img/cmt.svg" />Предложения по документу</span><span onclick="lx_pa(6312218)"><img src="/img/vlm.svg" />Прослушать аудио</span><span onclick="lx_cl(6312218)"><img src="/img/lnk.svg" />Получить ссылку из элемента документа</span></div></div><div name="6312218" id="6312218">Кўзи ожизлар учун Брайл алифбоси шрифтлари билан жиҳозланган зина тутқичлари</div></div><div class="BY_DEFAULT lx_elem" onmousemove="lx_mo(event,6312219)"><div class="lx_elem2"><div class="lx_elem3"><span onclick="lx_sf(6312219)"><img src="/img/cmt.svg" />Предложения по документу</span><span onclick="lx_pa(6312219)"><img src="/img/vlm.svg" />Прослушать аудио</span><span onclick="lx_cl(6312219)"><img src="/img/lnk.svg" />Получить ссылку из элемента документа</span></div></div><div name="6312219" id="6312219"></div></div><div class="TEXT_CENTER lx_elem" onmousemove="lx_mo(event,6312220)"><div class="lx_elem2"><div class="lx_elem3"><span onclick="lx_sf(6312220)"><img src="/img/cmt.svg" />Предложения по документу</span><span onclick="lx_pa(6312220)"><img src="/img/vlm.svg" />Прослушать аудио</span><span onclick="lx_cl(6312220)"><img src="/img/lnk.svg" />Получить ссылку из элемента документа</span></div></div><div name="6312220" id="6312220"><img src="/ru/files/6312221" /></div></div><div class="BY_DEFAULT lx_elem" onmousemove="lx_mo(event,6312223)"><div class="lx_elem2"><div class="lx_elem3"><span onclick="lx_sf(6312223)"><img src="/img/cmt.svg" />Предложения по документу</span><span onclick="lx_pa(6312223)"><img src="/img/vlm.svg" />Прослушать аудио</span><span onclick="lx_cl(6312223)"><img src="/img/lnk.svg" />Получить ссылку из элемента документа</span></div></div><div name="6312223" id="6312223"></div></div><div class="APPL_BANNER_LANDSCAPE_TITLE lx_elem" onmousemove="lx_mo(event,6312224)"><div class="lx_elem2"><div class="lx_elem3"><span onclick="lx_sf(6312224)"><img src="/img/cmt.svg" />Предложения по документу</span><span onclick="lx_pa(6312224)"><img src="/img/vlm.svg" />Прослушать аудио</span><span onclick="lx_cl(6312224)"><img src="/img/lnk.svg" />Получить ссылку из элемента документа</span></div></div><div name="6312224" id="6312224">ШНҚ 2.07.02-22 «Қурилиш объектларини ногиронлиги бўлган шахслар ҳамда кексалар эҳтиёжини инобатга олган ҳолда лойиҳалаштириш» шаҳарсозлик <a href="/ru/docs/6311402#6311479">нормалари ва қоидаларига<br /></a>9-ИЛОВА</div></div><div class="ACT_TITLE_APPL lx_elem" onmousemove="lx_mo(event,6312225)"><div class="lx_elem2"><div class="lx_elem3"><span onclick="lx_sf(6312225)"><img src="/img/cmt.svg" />Предложения по документу</span><span onclick="lx_pa(6312225)"><img src="/img/vlm.svg" />Прослушать аудио</span><span onclick="lx_cl(6312225)"><img src="/img/lnk.svg" />Получить ссылку из элемента документа</span></div></div><div name="6312225" id="6312225">Пиёдалар йўлкасининг пиёдалар ўтиш жойи билан уйғунлашуви</div></div><div class="BY_DEFAULT lx_elem" onmousemove="lx_mo(event,6312226)"><div class="lx_elem2"><div class="lx_elem3"><span onclick="lx_sf(6312226)"><img src="/img/cmt.svg" />Предложения по документу</span><span onclick="lx_pa(6312226)"><img src="/img/vlm.svg" />Прослушать аудио</span><span onclick="lx_cl(6312226)"><img src="/img/lnk.svg" />Получить ссылку из элемента документа</span></div></div><div name="6312226" id="6312226"></div></div><div class="TEXT_CENTER lx_elem" onmousemove="lx_mo(event,6312227)"><div class="lx_elem2"><div class="lx_elem3"><span onclick="lx_sf(6312227)"><img src="/img/cmt.svg" />Предложения по документу</span><span onclick="lx_pa(6312227)"><img src="/img/vlm.svg" />Прослушать аудио</span><span onclick="lx_cl(6312227)"><img src="/img/lnk.svg" />Получить ссылку из элемента документа</span></div></div><div name="6312227" id="6312227"><img src="/ru/files/6312236" /></div></div><div class="BY_DEFAULT lx_elem" onmousemove="lx_mo(event,6312239)"><div class="lx_elem2"><div class="lx_elem3"><span onclick="lx_sf(6312239)"><img src="/img/cmt.svg" />Предложения по документу</span><span onclick="lx_pa(6312239)"><img src="/img/vlm.svg" />Прослушать аудио</span><span onclick="lx_cl(6312239)"><img src="/img/lnk.svg" />Получить ссылку из элемента документа</span></div></div><div name="6312239" id="6312239"></div></div><div class="APPL_BANNER_LANDSCAPE_TITLE lx_elem" onmousemove="lx_mo(event,6312240)"><div class="lx_elem2"><div class="lx_elem3"><span onclick="lx_sf(6312240)"><img src="/img/cmt.svg" />Предложения по документу</span><span onclick="lx_pa(6312240)"><img src="/img/vlm.svg" />Прослушать аудио</span><span onclick="lx_cl(6312240)"><img src="/img/lnk.svg" />Получить ссылку из элемента документа</span></div></div><div name="6312240" id="6312240">ШНҚ 2.07.02-22 «Қурилиш объектларини ногиронлиги бўлган шахслар ҳамда кексалар эҳтиёжини инобатга олган ҳолда лойиҳалаштириш» шаҳарсозлик <a href="/ru/docs/6311402#6311479">нормалари ва қоидаларига<br /></a>10-ИЛОВА</div></div><div class="ACT_TITLE_APPL lx_elem" onmousemove="lx_mo(event,6312242)"><div class="lx_elem2"><div class="lx_elem3"><span onclick="lx_sf(6312242)"><img src="/img/cmt.svg" />Предложения по документу</span><span onclick="lx_pa(6312242)"><img src="/img/vlm.svg" />Прослушать аудио</span><span onclick="lx_cl(6312242)"><img src="/img/lnk.svg" />Получить ссылку из элемента документа</span></div></div><div name="6312242" id="6312242">Махсус кўтарувчи мосламалар</div></div><div class="BY_DEFAULT lx_elem" onmousemove="lx_mo(event,6312243)"><div class="lx_elem2"><div class="lx_elem3"><span onclick="lx_sf(6312243)"><img src="/img/cmt.svg" />Предложения по документу</span><span onclick="lx_pa(6312243)"><img src="/img/vlm.svg" />Прослушать аудио</span><span onclick="lx_cl(6312243)"><img src="/img/lnk.svg" />Получить ссылку из элемента документа</span></div></div><div name="6312243" id="6312243"></div></div><div class="TEXT_CENTER lx_elem" onmousemove="lx_mo(event,6312244)"><div class="lx_elem2"><div class="lx_elem3"><span onclick="lx_sf(6312244)"><img src="/img/cmt.svg" />Предложения по документу</span><span onclick="lx_pa(6312244)"><img src="/img/vlm.svg" />Прослушать аудио</span><span onclick="lx_cl(6312244)"><img src="/img/lnk.svg" />Получить ссылку из элемента документа</span></div></div><div name="6312244" id="6312244"><img src="/ru/files/6312252" /></div></div><div class="BY_DEFAULT lx_elem" onmousemove="lx_mo(event,6312256)"><div class="lx_elem2"><div class="lx_elem3"><span onclick="lx_sf(6312256)"><img src="/img/cmt.svg" />Предложения по документу</span><span onclick="lx_pa(6312256)"><img src="/img/vlm.svg" />Прослушать аудио</span><span onclick="lx_cl(6312256)"><img src="/img/lnk.svg" />Получить ссылку из элемента документа</span></div></div><div name="6312256" id="6312256"></div></div><div class="APPL_BANNER_LANDSCAPE_TITLE lx_elem" onmousemove="lx_mo(event,6312257)"><div class="lx_elem2"><div class="lx_elem3"><span onclick="lx_sf(6312257)"><img src="/img/cmt.svg" />Предложения по документу</span><span onclick="lx_pa(6312257)"><img src="/img/vlm.svg" />Прослушать аудио</span><span onclick="lx_cl(6312257)"><img src="/img/lnk.svg" />Получить ссылку из элемента документа</span></div></div><div name="6312257" id="6312257">ШНҚ 2.07.02-22 «Қурилиш объектларини ногиронлиги бўлган шахслар ҳамда кексалар эҳтиёжини инобатга олган ҳолда лойиҳалаштириш» шаҳарсозлик <a href="/ru/docs/6311402#6311479">нормалари ва қоидаларига<br /></a>11-ИЛОВА</div></div><div class="ACT_TITLE_APPL lx_elem" onmousemove="lx_mo(event,6312259)"><div class="lx_elem2"><div class="lx_elem3"><span onclick="lx_sf(6312259)"><img src="/img/cmt.svg" />Предложения по документу</span><span onclick="lx_pa(6312259)"><img src="/img/vlm.svg" />Прослушать аудио</span><span onclick="lx_cl(6312259)"><img src="/img/lnk.svg" />Получить ссылку из элемента документа</span></div></div><div name="6312259" id="6312259">Ногиронлиги бўлган шахслар учун автотураргоҳлар ҳамда махсус белги</div></div><div class="BY_DEFAULT lx_elem" onmousemove="lx_mo(event,6312260)"><div class="lx_elem2"><div class="lx_elem3"><span onclick="lx_sf(6312260)"><img src="/img/cmt.svg" />Предложения по документу</span><span onclick="lx_pa(6312260)"><img src="/img/vlm.svg" />Прослушать аудио</span><span onclick="lx_cl(6312260)"><img src="/img/lnk.svg" />Получить ссылку из элемента документа</span></div></div><div name="6312260" id="6312260"></div></div><div class="TEXT_CENTER lx_elem" onmousemove="lx_mo(event,6312338)"><div class="lx_elem2"><div class="lx_elem3"><span onclick="lx_sf(6312338)"><img src="/img/cmt.svg" />Предложения по документу</span><span onclick="lx_pa(6312338)"><img src="/img/vlm.svg" />Прослушать аудио</span><span onclick="lx_cl(6312338)"><img src="/img/lnk.svg" />Получить ссылку из элемента документа</span></div></div><div name="6312338" id="6312338"><img src="/ru/files/6312335" /></div></div><div class="BY_DEFAULT lx_elem" onmousemove="lx_mo(event,6312341)"><div class="lx_elem2"><div class="lx_elem3"><span onclick="lx_sf(6312341)"><img src="/img/cmt.svg" />Предложения по документу</span><span onclick="lx_pa(6312341)"><img src="/img/vlm.svg" />Прослушать аудио</span><span onclick="lx_cl(6312341)"><img src="/img/lnk.svg" />Получить ссылку из элемента документа</span></div></div><div name="6312341" id="6312341"></div></div><div class="APPL_BANNER_LANDSCAPE_TITLE lx_elem" onmousemove="lx_mo(event,6312342)"><div class="lx_elem2"><div class="lx_elem3"><span onclick="lx_sf(6312342)"><img src="/img/cmt.svg" />Предложения по документу</span><span onclick="lx_pa(6312342)"><img src="/img/vlm.svg" />Прослушать аудио</span><span onclick="lx_cl(6312342)"><img src="/img/lnk.svg" />Получить ссылку из элемента документа</span></div></div><div name="6312342" id="6312342">ШНҚ 2.07.02-22 «Қурилиш объектларини ногиронлиги бўлган шахслар ҳамда кексалар эҳтиёжини инобатга олган ҳолда лойиҳалаштириш» шаҳарсозлик <a href="/ru/docs/6311402#6311479">нормалари ва қоидаларига<br /></a>12-ИЛОВА</div></div><div class="ACT_TITLE_APPL lx_elem" onmousemove="lx_mo(event,6312343)"><div class="lx_elem2"><div class="lx_elem3"><span onclick="lx_sf(6312343)"><img src="/img/cmt.svg" />Предложения по документу</span><span onclick="lx_pa(6312343)"><img src="/img/vlm.svg" />Прослушать аудио</span><span onclick="lx_cl(6312343)"><img src="/img/lnk.svg" />Получить ссылку из элемента документа</span></div></div><div name="6312343" id="6312343">Ногиронлиги бўлган шахслар ҳамда кексаларга хизмат кўрсатувчи тиббий-ижтимоий муассасалар ҳамда ихтисослаштирилган таълим муассасалари ҳудудлари учун тавсия қилинган майдонлар</div></div><div class="BY_DEFAULT lx_elem" onmousemove="lx_mo(event,6312349)"><div class="lx_elem2"><div class="lx_elem3"><span onclick="lx_sf(6312349)"><img src="/img/cmt.svg" />Предложения по документу</span><span onclick="lx_pa(6312349)"><img src="/img/vlm.svg" />Прослушать аудио</span><span onclick="lx_cl(6312349)"><img src="/img/lnk.svg" />Получить ссылку из элемента документа</span></div></div><div name="6312349" id="6312349"></div></div><div class="BY_DEFAULT lx_elem" onmousemove="lx_mo(event,6312351)"><div class="lx_elem2"><div class="lx_elem3"><span onclick="lx_sf(6312351)"><img src="/img/cmt.svg" />Предложения по документу</span><span onclick="lx_pa(6312351)"><img src="/img/vlm.svg" />Прослушать аудио</span><span onclick="lx_cl(6312351)"><img src="/img/lnk.svg" />Получить ссылку из элемента документа</span></div></div><div name="6312351" id="6312351"><table style="BORDER-COLLAPSE: collapse" cellspacing="0" cellpadding="0" width="100%" border="0">
<tbody>
<tr>
<td style="BORDER-RIGHT: windowtext 1pt solid; PADDING-RIGHT: 2.85pt; BORDER-TOP: windowtext 1pt solid; PADDING-LEFT: 2.85pt; BACKGROUND: white; PADDING-BOTTOM: 0cm; BORDER-LEFT: windowtext 1pt solid; PADDING-TOP: 0cm; BORDER-BOTTOM: windowtext 1pt solid" width="55%">
<p align="center"><b><span style="FONT-SIZE: 12pt">Муассаса турлари</span></b></p></td>
<td style="BORDER-RIGHT: windowtext 1pt solid; PADDING-RIGHT: 2.85pt; BORDER-TOP: windowtext 1pt solid; PADDING-LEFT: 2.85pt; BACKGROUND: white; PADDING-BOTTOM: 0cm; BORDER-LEFT: #ece9d8; PADDING-TOP: 0cm; BORDER-BOTTOM: windowtext 1pt solid" width="21%">
<p align="center"><b><span style="FONT-SIZE: 12pt">Жойларнинг сиғими</span></b></p></td>
<td style="BORDER-RIGHT: windowtext 1pt solid; PADDING-RIGHT: 2.85pt; BORDER-TOP: windowtext 1pt solid; PADDING-LEFT: 2.85pt; BACKGROUND: white; PADDING-BOTTOM: 0cm; BORDER-LEFT: #ece9d8; PADDING-TOP: 0cm; BORDER-BOTTOM: windowtext 1pt solid" width="23%">
<p align="center"><b><span style="FONT-SIZE: 12pt">1 та жойга ҳудуд бўлаги майдони, м²</span></b></p></td></tr>
<tr>
<td style="BORDER-RIGHT: windowtext 1pt solid; PADDING-RIGHT: 2.85pt; BORDER-TOP: #ece9d8; PADDING-LEFT: 2.85pt; BACKGROUND: white; PADDING-BOTTOM: 0cm; BORDER-LEFT: windowtext 1pt solid; PADDING-TOP: 0cm; BORDER-BOTTOM: windowtext 1pt solid" valign="top" width="55%">
<p align="center"><b><span style="FONT-SIZE: 12pt">1</span></b></p></td>
<td style="BORDER-RIGHT: windowtext 1pt solid; PADDING-RIGHT: 2.85pt; BORDER-TOP: #ece9d8; PADDING-LEFT: 2.85pt; BACKGROUND: white; PADDING-BOTTOM: 0cm; BORDER-LEFT: #ece9d8; PADDING-TOP: 0cm; BORDER-BOTTOM: windowtext 1pt solid" valign="top" width="21%">
<p align="center"><b><span style="FONT-SIZE: 12pt">2</span></b></p></td>
<td style="BORDER-RIGHT: windowtext 1pt solid; PADDING-RIGHT: 2.85pt; BORDER-TOP: #ece9d8; PADDING-LEFT: 2.85pt; BACKGROUND: white; PADDING-BOTTOM: 0cm; BORDER-LEFT: #ece9d8; PADDING-TOP: 0cm; BORDER-BOTTOM: windowtext 1pt solid" valign="top" width="23%">
<p align="center"><b><span style="FONT-SIZE: 12pt">3</span></b></p></td></tr>
<tr>
<td style="BORDER-RIGHT: windowtext 1pt solid; PADDING-RIGHT: 2.85pt; BORDER-TOP: #ece9d8; PADDING-LEFT: 2.85pt; BACKGROUND: white; PADDING-BOTTOM: 0cm; BORDER-LEFT: windowtext 1pt solid; PADDING-TOP: 0cm; BORDER-BOTTOM: windowtext 1pt solid" width="55%">
<p align="center"><span style="FONT-SIZE: 12pt">Ногирон бўлган шахслар ва кексалар учун интернат уйлар</span></p></td>
<td style="BORDER-RIGHT: windowtext 1pt solid; PADDING-RIGHT: 2.85pt; BORDER-TOP: #ece9d8; PADDING-LEFT: 2.85pt; BACKGROUND: white; PADDING-BOTTOM: 0cm; BORDER-LEFT: #ece9d8; PADDING-TOP: 0cm; BORDER-BOTTOM: windowtext 1pt solid" valign="top" width="21%">
<p align="center"><span style="FONT-SIZE: 12pt">50 — 100</span></p>
<p align="center"><span style="FONT-SIZE: 12pt">150 — 200</span></p>
<p align="center"><span style="FONT-SIZE: 12pt">250 — 300</span></p></td>
<td style="BORDER-RIGHT: windowtext 1pt solid; PADDING-RIGHT: 2.85pt; BORDER-TOP: #ece9d8; PADDING-LEFT: 2.85pt; BACKGROUND: white; PADDING-BOTTOM: 0cm; BORDER-LEFT: #ece9d8; PADDING-TOP: 0cm; BORDER-BOTTOM: windowtext 1pt solid" valign="top" width="23%">
<p align="center"><span style="FONT-SIZE: 12pt">150 — 130</span></p>
<p align="center"><span style="FONT-SIZE: 12pt">120 — 115</span></p>
<p align="center"><span style="FONT-SIZE: 12pt">75</span></p></td></tr>
<tr>
<td style="BORDER-RIGHT: windowtext 1pt solid; PADDING-RIGHT: 2.85pt; BORDER-TOP: #ece9d8; PADDING-LEFT: 2.85pt; BACKGROUND: white; PADDING-BOTTOM: 0cm; BORDER-LEFT: windowtext 1pt solid; PADDING-TOP: 0cm; BORDER-BOTTOM: windowtext 1pt solid" width="55%">
<p align="center"><span style="FONT-SIZE: 12pt">Неврологик интернатлар</span></p></td>
<td style="BORDER-RIGHT: windowtext 1pt solid; PADDING-RIGHT: 2.85pt; BORDER-TOP: #ece9d8; PADDING-LEFT: 2.85pt; BACKGROUND: white; PADDING-BOTTOM: 0cm; BORDER-LEFT: #ece9d8; PADDING-TOP: 0cm; BORDER-BOTTOM: windowtext 1pt solid" valign="top" width="21%">
<p align="center"><span style="FONT-SIZE: 12pt">150 — 200</span></p>
<p align="center"><span style="FONT-SIZE: 12pt">250 — 300</span></p></td>
<td style="BORDER-RIGHT: windowtext 1pt solid; PADDING-RIGHT: 2.85pt; BORDER-TOP: #ece9d8; PADDING-LEFT: 2.85pt; BACKGROUND: white; PADDING-BOTTOM: 0cm; BORDER-LEFT: #ece9d8; PADDING-TOP: 0cm; BORDER-BOTTOM: windowtext 1pt solid" valign="top" width="23%">
<p align="center"><span style="FONT-SIZE: 12pt">80 — 100</span></p>
<p align="center"><span style="FONT-SIZE: 12pt">75</span></p></td></tr>
<tr>
<td style="BORDER-RIGHT: windowtext 1pt solid; PADDING-RIGHT: 2.85pt; BORDER-TOP: #ece9d8; PADDING-LEFT: 2.85pt; BACKGROUND: white; PADDING-BOTTOM: 0cm; BORDER-LEFT: windowtext 1pt solid; PADDING-TOP: 0cm; BORDER-BOTTOM: windowtext 1pt solid" width="55%">
<p align="center"><span style="FONT-SIZE: 12pt">Ногирон бўлган шахслар ва кексаларга яшаш жойлари бўйича хизмат кўрсатиш ҳудудий марказлари (маъмурий ҳудудларда)</span></p></td>
<td style="BORDER-RIGHT: windowtext 1pt solid; PADDING-RIGHT: 2.85pt; BORDER-TOP: #ece9d8; PADDING-LEFT: 2.85pt; BACKGROUND: white; PADDING-BOTTOM: 0cm; BORDER-LEFT: #ece9d8; PADDING-TOP: 0cm; BORDER-BOTTOM: windowtext 1pt solid" width="21%">
<p align="center"><span style="FONT-SIZE: 12pt">35 — 50</span></p>
<p align="center"><span style="FONT-SIZE: 12pt">75 — 100</span></p>
<p align="center"><span style="FONT-SIZE: 12pt">150 — 200</span></p>
<p align="center"><span style="FONT-SIZE: 12pt">250 — 300</span></p></td>
<td style="BORDER-RIGHT: windowtext 1pt solid; PADDING-RIGHT: 2.85pt; BORDER-TOP: #ece9d8; PADDING-LEFT: 2.85pt; BACKGROUND: white; PADDING-BOTTOM: 0cm; BORDER-LEFT: #ece9d8; PADDING-TOP: 0cm; BORDER-BOTTOM: windowtext 1pt solid" width="23%">
<p align="center"><span style="FONT-SIZE: 12pt">100 — 120</span></p>
<p align="center"><span style="FONT-SIZE: 12pt">120 — 100</span></p>
<p align="center"><span style="FONT-SIZE: 12pt">100 — 80</span></p>
<p align="center"><span style="FONT-SIZE: 12pt">75</span></p></td></tr>
<tr>
<td style="BORDER-RIGHT: windowtext 1pt solid; PADDING-RIGHT: 2.85pt; BORDER-TOP: #ece9d8; PADDING-LEFT: 2.85pt; BACKGROUND: white; PADDING-BOTTOM: 0cm; BORDER-LEFT: windowtext 1pt solid; PADDING-TOP: 0cm; BORDER-BOTTOM: #ece9d8" width="55%">
<p align="center"><span style="FONT-SIZE: 12pt">Жисмоний ва ақлий ривожланишида нуқсони бўлган болалар учун мактабгача таълим ташкилотлари</span></p></td>
<td style="BORDER-RIGHT: windowtext 1pt solid; PADDING-RIGHT: 2.85pt; BORDER-TOP: #ece9d8; PADDING-LEFT: 2.85pt; BACKGROUND: white; PADDING-BOTTOM: 0cm; BORDER-LEFT: #ece9d8; PADDING-TOP: 0cm; BORDER-BOTTOM: #ece9d8" width="21%">
<p align="center"><span style="FONT-SIZE: 12pt">60 — 100</span></p>
<p align="center"><span style="FONT-SIZE: 12pt">120 — 160</span></p></td>
<td style="BORDER-RIGHT: windowtext 1pt solid; PADDING-RIGHT: 2.85pt; BORDER-TOP: #ece9d8; PADDING-LEFT: 2.85pt; BACKGROUND: white; PADDING-BOTTOM: 0cm; BORDER-LEFT: #ece9d8; PADDING-TOP: 0cm; BORDER-BOTTOM: #ece9d8" width="23%">
<p align="center"><span style="FONT-SIZE: 12pt">60 — 80</span></p>
<p align="center"><span style="FONT-SIZE: 12pt">40 — 35</span></p></td></tr>
<tr>
<td style="BORDER-RIGHT: windowtext 1pt solid; PADDING-RIGHT: 2.85pt; BORDER-TOP: windowtext 1pt solid; PADDING-LEFT: 2.85pt; BACKGROUND: white; PADDING-BOTTOM: 0cm; BORDER-LEFT: windowtext 1pt solid; PADDING-TOP: 0cm; BORDER-BOTTOM: windowtext 1pt solid" width="55%">
<p align="center"><span style="FONT-SIZE: 12pt">Жисмоний ва ақлий ривожланишида нуқсони бўлган болалар учун мактаб</span><span style="FONT-SIZE: 12pt">-</span><span style="FONT-SIZE: 12pt">интернатлар</span></p></td>
<td style="BORDER-RIGHT: windowtext 1pt solid; PADDING-RIGHT: 2.85pt; BORDER-TOP: windowtext 1pt solid; PADDING-LEFT: 2.85pt; BACKGROUND: white; PADDING-BOTTOM: 0cm; BORDER-LEFT: #ece9d8; PADDING-TOP: 0cm; BORDER-BOTTOM: windowtext 1pt solid" width="21%">
<p align="center"><span style="FONT-SIZE: 12pt">160 — 200</span></p>
<p align="center"><span style="FONT-SIZE: 12pt">280 — 300</span></p></td>
<td style="BORDER-RIGHT: windowtext 1pt solid; PADDING-RIGHT: 2.85pt; BORDER-TOP: windowtext 1pt solid; PADDING-LEFT: 2.85pt; BACKGROUND: white; PADDING-BOTTOM: 0cm; BORDER-LEFT: #ece9d8; PADDING-TOP: 0cm; BORDER-BOTTOM: windowtext 1pt solid" width="23%">
<p align="center"><span style="FONT-SIZE: 12pt">100 — 120</span></p>
<p align="center"><span style="FONT-SIZE: 12pt">75</span></p></td></tr></tbody></table>
<p></p></div></div><div class="BY_DEFAULT lx_elem" onmousemove="lx_mo(event,6312354)"><div class="lx_elem2"><div class="lx_elem3"><span onclick="lx_sf(6312354)"><img src="/img/cmt.svg" />Предложения по документу</span><span onclick="lx_pa(6312354)"><img src="/img/vlm.svg" />Прослушать аудио</span><span onclick="lx_cl(6312354)"><img src="/img/lnk.svg" />Получить ссылку из элемента документа</span></div></div><div name="6312354" id="6312354"></div></div><div class="APPL_BANNER_LANDSCAPE_TITLE lx_elem" onmousemove="lx_mo(event,6312355)"><div class="lx_elem2"><div class="lx_elem3"><span onclick="lx_sf(6312355)"><img src="/img/cmt.svg" />Предложения по документу</span><span onclick="lx_pa(6312355)"><img src="/img/vlm.svg" />Прослушать аудио</span><span onclick="lx_cl(6312355)"><img src="/img/lnk.svg" />Получить ссылку из элемента документа</span></div></div><div name="6312355" id="6312355">ШНҚ 2.07.02-22 «Қурилиш объектларини ногиронлиги бўлган шахслар ҳамда кексалар эҳтиёжини инобатга олган ҳолда лойиҳалаштириш» шаҳарсозлик <a href="/ru/docs/6311402#6311479">нормалари ва қоидаларига<br /></a>13-ИЛОВА</div></div><div class="ACT_TITLE_APPL lx_elem" onmousemove="lx_mo(event,6312357)"><div class="lx_elem2"><div class="lx_elem3"><span onclick="lx_sf(6312357)"><img src="/img/cmt.svg" />Предложения по документу</span><span onclick="lx_pa(6312357)"><img src="/img/vlm.svg" />Прослушать аудио</span><span onclick="lx_cl(6312357)"><img src="/img/lnk.svg" />Получить ссылку из элемента документа</span></div></div><div name="6312357" id="6312357">Столлар, пештахталар ва бошқа хизмат кўрсатиш жойлари, деворга ўрнатиладиган жиҳозлар ва қурилмалар яқинидаги бўш жойнинг ўлчамлари</div></div><div class="BY_DEFAULT lx_elem" onmousemove="lx_mo(event,6312359)"><div class="lx_elem2"><div class="lx_elem3"><span onclick="lx_sf(6312359)"><img src="/img/cmt.svg" />Предложения по документу</span><span onclick="lx_pa(6312359)"><img src="/img/vlm.svg" />Прослушать аудио</span><span onclick="lx_cl(6312359)"><img src="/img/lnk.svg" />Получить ссылку из элемента документа</span></div></div><div name="6312359" id="6312359"></div></div><div class="TEXT_CENTER lx_elem" onmousemove="lx_mo(event,6312362)"><div class="lx_elem2"><div class="lx_elem3"><span onclick="lx_sf(6312362)"><img src="/img/cmt.svg" />Предложения по документу</span><span onclick="lx_pa(6312362)"><img src="/img/vlm.svg" />Прослушать аудио</span><span onclick="lx_cl(6312362)"><img src="/img/lnk.svg" />Получить ссылку из элемента документа</span></div></div><div name="6312362" id="6312362"><img src="/ru/files/6313969" /></div></div><div class="BY_DEFAULT lx_elem" onmousemove="lx_mo(event,6312381)"><div class="lx_elem2"><div class="lx_elem3"><span onclick="lx_sf(6312381)"><img src="/img/cmt.svg" />Предложения по документу</span><span onclick="lx_pa(6312381)"><img src="/img/vlm.svg" />Прослушать аудио</span><span onclick="lx_cl(6312381)"><img src="/img/lnk.svg" />Получить ссылку из элемента документа</span></div></div><div name="6312381" id="6312381"></div></div><div class="APPL_BANNER_LANDSCAPE_TITLE lx_elem" onmousemove="lx_mo(event,6312382)"><div class="lx_elem2"><div class="lx_elem3"><span onclick="lx_sf(6312382)"><img src="/img/cmt.svg" />Предложения по документу</span><span onclick="lx_pa(6312382)"><img src="/img/vlm.svg" />Прослушать аудио</span><span onclick="lx_cl(6312382)"><img src="/img/lnk.svg" />Получить ссылку из элемента документа</span></div></div><div name="6312382" id="6312382">ШНҚ 2.07.02-22 «Қурилиш объектларини ногиронлиги бўлган шахслар ҳамда кексалар эҳтиёжини инобатга олган ҳолда лойиҳалаштириш» шаҳарсозлик <a href="/ru/docs/6311402#6311479">нормалари ва қоидаларига<br /></a>14-ИЛОВА</div></div><div class="ACT_TITLE_APPL lx_elem" onmousemove="lx_mo(event,6312384)"><div class="lx_elem2"><div class="lx_elem3"><span onclick="lx_sf(6312384)"><img src="/img/cmt.svg" />Предложения по документу</span><span onclick="lx_pa(6312384)"><img src="/img/vlm.svg" />Прослушать аудио</span><span onclick="lx_cl(6312384)"><img src="/img/lnk.svg" />Получить ссылку из элемента документа</span></div></div><div name="6312384" id="6312384">Столлар, пештахталар ва бошқа хизмат кўрсатиш жойлари, деворга ўрнатиладиган жиҳозлар ва қурилмалар яқинидаги бўш жойнинг ўлчамлари</div></div><div class="BY_DEFAULT lx_elem" onmousemove="lx_mo(event,6312385)"><div class="lx_elem2"><div class="lx_elem3"><span onclick="lx_sf(6312385)"><img src="/img/cmt.svg" />Предложения по документу</span><span onclick="lx_pa(6312385)"><img src="/img/vlm.svg" />Прослушать аудио</span><span onclick="lx_cl(6312385)"><img src="/img/lnk.svg" />Получить ссылку из элемента документа</span></div></div><div name="6312385" id="6312385"></div></div><div class="TEXT_CENTER lx_elem" onmousemove="lx_mo(event,6312510)"><div class="lx_elem2"><div class="lx_elem3"><span onclick="lx_sf(6312510)"><img src="/img/cmt.svg" />Предложения по документу</span><span onclick="lx_pa(6312510)"><img src="/img/vlm.svg" />Прослушать аудио</span><span onclick="lx_cl(6312510)"><img src="/img/lnk.svg" />Получить ссылку из элемента документа</span></div></div><div name="6312510" id="6312510"><img src="/ru/files/6312380" /></div></div><div class="BY_DEFAULT lx_elem" onmousemove="lx_mo(event,6312514)"><div class="lx_elem2"><div class="lx_elem3"><span onclick="lx_sf(6312514)"><img src="/img/cmt.svg" />Предложения по документу</span><span onclick="lx_pa(6312514)"><img src="/img/vlm.svg" />Прослушать аудио</span><span onclick="lx_cl(6312514)"><img src="/img/lnk.svg" />Получить ссылку из элемента документа</span></div></div><div name="6312514" id="6312514"></div></div><div class="APPL_BANNER_LANDSCAPE_TITLE lx_elem" onmousemove="lx_mo(event,6312515)"><div class="lx_elem2"><div class="lx_elem3"><span onclick="lx_sf(6312515)"><img src="/img/cmt.svg" />Предложения по документу</span><span onclick="lx_pa(6312515)"><img src="/img/vlm.svg" />Прослушать аудио</span><span onclick="lx_cl(6312515)"><img src="/img/lnk.svg" />Получить ссылку из элемента документа</span></div></div><div name="6312515" id="6312515">ШНҚ 2.07.02-22 «Қурилиш объектларини ногиронлиги бўлган шахслар ҳамда кексалар эҳтиёжини инобатга олган ҳолда лойиҳалаштириш» шаҳарсозлик <a href="/ru/docs/6311402#6311479">нормалари ва қоидаларига<br /></a>15-ИЛОВА</div></div><div class="ACT_TITLE_APPL lx_elem" onmousemove="lx_mo(event,6312516)"><div class="lx_elem2"><div class="lx_elem3"><span onclick="lx_sf(6312516)"><img src="/img/cmt.svg" />Предложения по документу</span><span onclick="lx_pa(6312516)"><img src="/img/vlm.svg" />Прослушать аудио</span><span onclick="lx_cl(6312516)"><img src="/img/lnk.svg" />Получить ссылку из элемента документа</span></div></div><div name="6312516" id="6312516">Эшиклар олдидаги ҳаракатланиш майдони параметрлари</div></div><div class="BY_DEFAULT lx_elem" onmousemove="lx_mo(event,6312517)"><div class="lx_elem2"><div class="lx_elem3"><span onclick="lx_sf(6312517)"><img src="/img/cmt.svg" />Предложения по документу</span><span onclick="lx_pa(6312517)"><img src="/img/vlm.svg" />Прослушать аудио</span><span onclick="lx_cl(6312517)"><img src="/img/lnk.svg" />Получить ссылку из элемента документа</span></div></div><div name="6312517" id="6312517"></div></div><div class="TEXT_CENTER lx_elem" onmousemove="lx_mo(event,6312519)"><div class="lx_elem2"><div class="lx_elem3"><span onclick="lx_sf(6312519)"><img src="/img/cmt.svg" />Предложения по документу</span><span onclick="lx_pa(6312519)"><img src="/img/vlm.svg" />Прослушать аудио</span><span onclick="lx_cl(6312519)"><img src="/img/lnk.svg" />Получить ссылку из элемента документа</span></div></div><div name="6312519" id="6312519"><img src="/ru/files/6312530" /></div></div><div class="BY_DEFAULT lx_elem" onmousemove="lx_mo(event,6312534)"><div class="lx_elem2"><div class="lx_elem3"><span onclick="lx_sf(6312534)"><img src="/img/cmt.svg" />Предложения по документу</span><span onclick="lx_pa(6312534)"><img src="/img/vlm.svg" />Прослушать аудио</span><span onclick="lx_cl(6312534)"><img src="/img/lnk.svg" />Получить ссылку из элемента документа</span></div></div><div name="6312534" id="6312534"></div></div><div class="APPL_BANNER_LANDSCAPE_TITLE lx_elem" onmousemove="lx_mo(event,6312535)"><div class="lx_elem2"><div class="lx_elem3"><span onclick="lx_sf(6312535)"><img src="/img/cmt.svg" />Предложения по документу</span><span onclick="lx_pa(6312535)"><img src="/img/vlm.svg" />Прослушать аудио</span><span onclick="lx_cl(6312535)"><img src="/img/lnk.svg" />Получить ссылку из элемента документа</span></div></div><div name="6312535" id="6312535">ШНҚ 2.07.02-22 «Қурилиш объектларини ногиронлиги бўлган шахслар ҳамда кексалар эҳтиёжини инобатга олган ҳолда лойиҳалаштириш» шаҳарсозлик <a href="/ru/docs/6311402#6311479">нормалари ва қоидаларига<br /></a>16-ИЛОВА</div></div><div class="ACT_TITLE_APPL lx_elem" onmousemove="lx_mo(event,6312536)"><div class="lx_elem2"><div class="lx_elem3"><span onclick="lx_sf(6312536)"><img src="/img/cmt.svg" />Предложения по документу</span><span onclick="lx_pa(6312536)"><img src="/img/vlm.svg" />Прослушать аудио</span><span onclick="lx_cl(6312536)"><img src="/img/lnk.svg" />Получить ссылку из элемента документа</span></div></div><div name="6312536" id="6312536">Эшиклар олдидаги ҳаракатланиш майдони параметрлари</div></div><div class="BY_DEFAULT lx_elem" onmousemove="lx_mo(event,6312537)"><div class="lx_elem2"><div class="lx_elem3"><span onclick="lx_sf(6312537)"><img src="/img/cmt.svg" />Предложения по документу</span><span onclick="lx_pa(6312537)"><img src="/img/vlm.svg" />Прослушать аудио</span><span onclick="lx_cl(6312537)"><img src="/img/lnk.svg" />Получить ссылку из элемента документа</span></div></div><div name="6312537" id="6312537"></div></div><div class="TEXT_CENTER lx_elem" onmousemove="lx_mo(event,6312538)"><div class="lx_elem2"><div class="lx_elem3"><span onclick="lx_sf(6312538)"><img src="/img/cmt.svg" />Предложения по документу</span><span onclick="lx_pa(6312538)"><img src="/img/vlm.svg" />Прослушать аудио</span><span onclick="lx_cl(6312538)"><img src="/img/lnk.svg" />Получить ссылку из элемента документа</span></div></div><div name="6312538" id="6312538"><img src="/ru/files/6312539" /></div></div><div class="BY_DEFAULT lx_elem" onmousemove="lx_mo(event,6312540)"><div class="lx_elem2"><div class="lx_elem3"><span onclick="lx_sf(6312540)"><img src="/img/cmt.svg" />Предложения по документу</span><span onclick="lx_pa(6312540)"><img src="/img/vlm.svg" />Прослушать аудио</span><span onclick="lx_cl(6312540)"><img src="/img/lnk.svg" />Получить ссылку из элемента документа</span></div></div><div name="6312540" id="6312540"></div></div><div class="APPL_BANNER_LANDSCAPE_TITLE lx_elem" onmousemove="lx_mo(event,6312541)"><div class="lx_elem2"><div class="lx_elem3"><span onclick="lx_sf(6312541)"><img src="/img/cmt.svg" />Предложения по документу</span><span onclick="lx_pa(6312541)"><img src="/img/vlm.svg" />Прослушать аудио</span><span onclick="lx_cl(6312541)"><img src="/img/lnk.svg" />Получить ссылку из элемента документа</span></div></div><div name="6312541" id="6312541">ШНҚ 2.07.02-22 «Қурилиш объектларини ногиронлиги бўлган шахслар ҳамда кексалар эҳтиёжини инобатга олган ҳолда лойиҳалаштириш» шаҳарсозлик <a href="/ru/docs/6311402#6311479">нормалари ва қоидаларига<br /></a>17-ИЛОВА</div></div><div class="ACT_TITLE_APPL lx_elem" onmousemove="lx_mo(event,6312542)"><div class="lx_elem2"><div class="lx_elem3"><span onclick="lx_sf(6312542)"><img src="/img/cmt.svg" />Предложения по документу</span><span onclick="lx_pa(6312542)"><img src="/img/vlm.svg" />Прослушать аудио</span><span onclick="lx_cl(6312542)"><img src="/img/lnk.svg" />Получить ссылку из элемента документа</span></div></div><div name="6312542" id="6312542">Пандус ва зиналар олдидаги тактил қопламалар тавсиявий намунаси</div></div><div class="BY_DEFAULT lx_elem" onmousemove="lx_mo(event,6312543)"><div class="lx_elem2"><div class="lx_elem3"><span onclick="lx_sf(6312543)"><img src="/img/cmt.svg" />Предложения по документу</span><span onclick="lx_pa(6312543)"><img src="/img/vlm.svg" />Прослушать аудио</span><span onclick="lx_cl(6312543)"><img src="/img/lnk.svg" />Получить ссылку из элемента документа</span></div></div><div name="6312543" id="6312543"></div></div><div class="TEXT_CENTER lx_elem" onmousemove="lx_mo(event,6312544)"><div class="lx_elem2"><div class="lx_elem3"><span onclick="lx_sf(6312544)"><img src="/img/cmt.svg" />Предложения по документу</span><span onclick="lx_pa(6312544)"><img src="/img/vlm.svg" />Прослушать аудио</span><span onclick="lx_cl(6312544)"><img src="/img/lnk.svg" />Получить ссылку из элемента документа</span></div></div><div name="6312544" id="6312544"><img src="/ru/files/6314682" /></div></div><div class="BY_DEFAULT lx_elem" onmousemove="lx_mo(event,6312553)"><div class="lx_elem2"><div class="lx_elem3"><span onclick="lx_sf(6312553)"><img src="/img/cmt.svg" />Предложения по документу</span><span onclick="lx_pa(6312553)"><img src="/img/vlm.svg" />Прослушать аудио</span><span onclick="lx_cl(6312553)"><img src="/img/lnk.svg" />Получить ссылку из элемента документа</span></div></div><div name="6312553" id="6312553"></div></div><div class="APPL_BANNER_LANDSCAPE_TITLE lx_elem" onmousemove="lx_mo(event,6312555)"><div class="lx_elem2"><div class="lx_elem3"><span onclick="lx_sf(6312555)"><img src="/img/cmt.svg" />Предложения по документу</span><span onclick="lx_pa(6312555)"><img src="/img/vlm.svg" />Прослушать аудио</span><span onclick="lx_cl(6312555)"><img src="/img/lnk.svg" />Получить ссылку из элемента документа</span></div></div><div name="6312555" id="6312555">ШНҚ 2.07.02-22 «Қурилиш объектларини ногиронлиги бўлган шахслар ҳамда кексалар эҳтиёжини инобатга олган ҳолда лойиҳалаштириш» шаҳарсозлик <a href="/ru/docs/6311402#6311479">нормалари ва қоидаларига<br /></a>18-ИЛОВА</div></div><div class="ACT_TITLE_APPL lx_elem" onmousemove="lx_mo(event,6312556)"><div class="lx_elem2"><div class="lx_elem3"><span onclick="lx_sf(6312556)"><img src="/img/cmt.svg" />Предложения по документу</span><span onclick="lx_pa(6312556)"><img src="/img/vlm.svg" />Прослушать аудио</span><span onclick="lx_cl(6312556)"><img src="/img/lnk.svg" />Получить ссылку из элемента документа</span></div></div><div name="6312556" id="6312556">Пандус ва зиналар олдидаги тактил қопламалар тавсиявий намунаси</div></div><div class="BY_DEFAULT lx_elem" onmousemove="lx_mo(event,6312558)"><div class="lx_elem2"><div class="lx_elem3"><span onclick="lx_sf(6312558)"><img src="/img/cmt.svg" />Предложения по документу</span><span onclick="lx_pa(6312558)"><img src="/img/vlm.svg" />Прослушать аудио</span><span onclick="lx_cl(6312558)"><img src="/img/lnk.svg" />Получить ссылку из элемента документа</span></div></div><div name="6312558" id="6312558"></div></div><div class="TEXT_CENTER lx_elem" onmousemove="lx_mo(event,6312560)"><div class="lx_elem2"><div class="lx_elem3"><span onclick="lx_sf(6312560)"><img src="/img/cmt.svg" />Предложения по документу</span><span onclick="lx_pa(6312560)"><img src="/img/vlm.svg" />Прослушать аудио</span><span onclick="lx_cl(6312560)"><img src="/img/lnk.svg" />Получить ссылку из элемента документа</span></div></div><div name="6312560" id="6312560"><img src="/ru/files/6312604" /></div></div><div class="BY_DEFAULT lx_elem" onmousemove="lx_mo(event,6312621)"><div class="lx_elem2"><div class="lx_elem3"><span onclick="lx_sf(6312621)"><img src="/img/cmt.svg" />Предложения по документу</span><span onclick="lx_pa(6312621)"><img src="/img/vlm.svg" />Прослушать аудио</span><span onclick="lx_cl(6312621)"><img src="/img/lnk.svg" />Получить ссылку из элемента документа</span></div></div><div name="6312621" id="6312621"></div></div><div class="APPL_BANNER_LANDSCAPE_TITLE lx_elem" onmousemove="lx_mo(event,6312623)"><div class="lx_elem2"><div class="lx_elem3"><span onclick="lx_sf(6312623)"><img src="/img/cmt.svg" />Предложения по документу</span><span onclick="lx_pa(6312623)"><img src="/img/vlm.svg" />Прослушать аудио</span><span onclick="lx_cl(6312623)"><img src="/img/lnk.svg" />Получить ссылку из элемента документа</span></div></div><div name="6312623" id="6312623">ШНҚ 2.07.02-22 «Қурилиш объектларини ногиронлиги бўлган шахслар ҳамда кексалар эҳтиёжини инобатга олган ҳолда лойиҳалаштириш» шаҳарсозлик <a href="/ru/docs/6311402#6311479">нормалари ва қоидаларига<br /></a>19-ИЛОВА</div></div><div class="ACT_TITLE_APPL lx_elem" onmousemove="lx_mo(event,6312624)"><div class="lx_elem2"><div class="lx_elem3"><span onclick="lx_sf(6312624)"><img src="/img/cmt.svg" />Предложения по документу</span><span onclick="lx_pa(6312624)"><img src="/img/vlm.svg" />Прослушать аудио</span><span onclick="lx_cl(6312624)"><img src="/img/lnk.svg" />Получить ссылку из элемента документа</span></div></div><div name="6312624" id="6312624">Пандус ва зиналар олдидаги тактил қопламалар тавсиявий намунаси</div></div><div class="BY_DEFAULT lx_elem" onmousemove="lx_mo(event,6312668)"><div class="lx_elem2"><div class="lx_elem3"><span onclick="lx_sf(6312668)"><img src="/img/cmt.svg" />Предложения по документу</span><span onclick="lx_pa(6312668)"><img src="/img/vlm.svg" />Прослушать аудио</span><span onclick="lx_cl(6312668)"><img src="/img/lnk.svg" />Получить ссылку из элемента документа</span></div></div><div name="6312668" id="6312668"></div></div><div class="TEXT_CENTER lx_elem" onmousemove="lx_mo(event,6312678)"><div class="lx_elem2"><div class="lx_elem3"><span onclick="lx_sf(6312678)"><img src="/img/cmt.svg" />Предложения по документу</span><span onclick="lx_pa(6312678)"><img src="/img/vlm.svg" />Прослушать аудио</span><span onclick="lx_cl(6312678)"><img src="/img/lnk.svg" />Получить ссылку из элемента документа</span></div></div><div name="6312678" id="6312678"><img src="/ru/files/6314683" /></div></div><div class="BY_DEFAULT lx_elem" onmousemove="lx_mo(event,6312688)"><div class="lx_elem2"><div class="lx_elem3"><span onclick="lx_sf(6312688)"><img src="/img/cmt.svg" />Предложения по документу</span><span onclick="lx_pa(6312688)"><img src="/img/vlm.svg" />Прослушать аудио</span><span onclick="lx_cl(6312688)"><img src="/img/lnk.svg" />Получить ссылку из элемента документа</span></div></div><div name="6312688" id="6312688"></div></div><div class="APPL_BANNER_LANDSCAPE_TITLE lx_elem" onmousemove="lx_mo(event,6312690)"><div class="lx_elem2"><div class="lx_elem3"><span onclick="lx_sf(6312690)"><img src="/img/cmt.svg" />Предложения по документу</span><span onclick="lx_pa(6312690)"><img src="/img/vlm.svg" />Прослушать аудио</span><span onclick="lx_cl(6312690)"><img src="/img/lnk.svg" />Получить ссылку из элемента документа</span></div></div><div name="6312690" id="6312690">ШНҚ 2.07.02-22 «Қурилиш объектларини ногиронлиги бўлган шахслар ҳамда кексалар эҳтиёжини инобатга олган ҳолда лойиҳалаштириш» шаҳарсозлик <a href="/ru/docs/6311402#6311479">нормалари ва қоидаларига<br /></a>20-ИЛОВА</div></div><div class="ACT_TITLE_APPL lx_elem" onmousemove="lx_mo(event,6312693)"><div class="lx_elem2"><div class="lx_elem3"><span onclick="lx_sf(6312693)"><img src="/img/cmt.svg" />Предложения по документу</span><span onclick="lx_pa(6312693)"><img src="/img/vlm.svg" />Прослушать аудио</span><span onclick="lx_cl(6312693)"><img src="/img/lnk.svg" />Получить ссылку из элемента документа</span></div></div><div name="6312693" id="6312693">Лифт параметрларининг тавсиявий намунаси</div></div><div class="BY_DEFAULT lx_elem" onmousemove="lx_mo(event,6312701)"><div class="lx_elem2"><div class="lx_elem3"><span onclick="lx_sf(6312701)"><img src="/img/cmt.svg" />Предложения по документу</span><span onclick="lx_pa(6312701)"><img src="/img/vlm.svg" />Прослушать аудио</span><span onclick="lx_cl(6312701)"><img src="/img/lnk.svg" />Получить ссылку из элемента документа</span></div></div><div name="6312701" id="6312701"></div></div><div class="TEXT_CENTER lx_elem" onmousemove="lx_mo(event,6312704)"><div class="lx_elem2"><div class="lx_elem3"><span onclick="lx_sf(6312704)"><img src="/img/cmt.svg" />Предложения по документу</span><span onclick="lx_pa(6312704)"><img src="/img/vlm.svg" />Прослушать аудио</span><span onclick="lx_cl(6312704)"><img src="/img/lnk.svg" />Получить ссылку из элемента документа</span></div></div><div name="6312704" id="6312704"><img src="/ru/files/6312709" /></div></div><div class="BY_DEFAULT lx_elem" onmousemove="lx_mo(event,6312712)"><div class="lx_elem2"><div class="lx_elem3"><span onclick="lx_sf(6312712)"><img src="/img/cmt.svg" />Предложения по документу</span><span onclick="lx_pa(6312712)"><img src="/img/vlm.svg" />Прослушать аудио</span><span onclick="lx_cl(6312712)"><img src="/img/lnk.svg" />Получить ссылку из элемента документа</span></div></div><div name="6312712" id="6312712"></div></div><div class="APPL_BANNER_LANDSCAPE_TITLE lx_elem" onmousemove="lx_mo(event,6312725)"><div class="lx_elem2"><div class="lx_elem3"><span onclick="lx_sf(6312725)"><img src="/img/cmt.svg" />Предложения по документу</span><span onclick="lx_pa(6312725)"><img src="/img/vlm.svg" />Прослушать аудио</span><span onclick="lx_cl(6312725)"><img src="/img/lnk.svg" />Получить ссылку из элемента документа</span></div></div><div name="6312725" id="6312725">ШНҚ 2.07.02-22 «Қурилиш объектларини ногиронлиги бўлган шахслар ҳамда кексалар эҳтиёжини инобатга олган ҳолда лойиҳалаштириш» шаҳарсозлик <a href="/ru/docs/6311402#6311479">нормалари ва қоидаларига<br /></a>21-ИЛОВА</div></div><div class="ACT_TITLE_APPL lx_elem" onmousemove="lx_mo(event,6312730)"><div class="lx_elem2"><div class="lx_elem3"><span onclick="lx_sf(6312730)"><img src="/img/cmt.svg" />Предложения по документу</span><span onclick="lx_pa(6312730)"><img src="/img/vlm.svg" />Прослушать аудио</span><span onclick="lx_cl(6312730)"><img src="/img/lnk.svg" />Получить ссылку из элемента документа</span></div></div><div name="6312730" id="6312730">Лифт параметрларининг тавсиявий намунаси</div></div><div class="BY_DEFAULT lx_elem" onmousemove="lx_mo(event,6312747)"><div class="lx_elem2"><div class="lx_elem3"><span onclick="lx_sf(6312747)"><img src="/img/cmt.svg" />Предложения по документу</span><span onclick="lx_pa(6312747)"><img src="/img/vlm.svg" />Прослушать аудио</span><span onclick="lx_cl(6312747)"><img src="/img/lnk.svg" />Получить ссылку из элемента документа</span></div></div><div name="6312747" id="6312747"></div></div><div class="TEXT_CENTER lx_elem" onmousemove="lx_mo(event,6312751)"><div class="lx_elem2"><div class="lx_elem3"><span onclick="lx_sf(6312751)"><img src="/img/cmt.svg" />Предложения по документу</span><span onclick="lx_pa(6312751)"><img src="/img/vlm.svg" />Прослушать аудио</span><span onclick="lx_cl(6312751)"><img src="/img/lnk.svg" />Получить ссылку из элемента документа</span></div></div><div name="6312751" id="6312751"><img src="/ru/files/6312743" /></div></div><div class="BY_DEFAULT lx_elem" onmousemove="lx_mo(event,6312754)"><div class="lx_elem2"><div class="lx_elem3"><span onclick="lx_sf(6312754)"><img src="/img/cmt.svg" />Предложения по документу</span><span onclick="lx_pa(6312754)"><img src="/img/vlm.svg" />Прослушать аудио</span><span onclick="lx_cl(6312754)"><img src="/img/lnk.svg" />Получить ссылку из элемента документа</span></div></div><div name="6312754" id="6312754"></div></div><div class="APPL_BANNER_LANDSCAPE_TITLE lx_elem" onmousemove="lx_mo(event,6312756)"><div class="lx_elem2"><div class="lx_elem3"><span onclick="lx_sf(6312756)"><img src="/img/cmt.svg" />Предложения по документу</span><span onclick="lx_pa(6312756)"><img src="/img/vlm.svg" />Прослушать аудио</span><span onclick="lx_cl(6312756)"><img src="/img/lnk.svg" />Получить ссылку из элемента документа</span></div></div><div name="6312756" id="6312756">ШНҚ 2.07.02-22 «Қурилиш объектларини ногиронлиги бўлган шахслар ҳамда кексалар эҳтиёжини инобатга олган ҳолда лойиҳалаштириш» шаҳарсозлик <a href="/ru/docs/6311402#6311479">нормалари ва қоидаларига<br /></a>22-ИЛОВА</div></div><div class="ACT_TITLE_APPL lx_elem" onmousemove="lx_mo(event,6312760)"><div class="lx_elem2"><div class="lx_elem3"><span onclick="lx_sf(6312760)"><img src="/img/cmt.svg" />Предложения по документу</span><span onclick="lx_pa(6312760)"><img src="/img/vlm.svg" />Прослушать аудио</span><span onclick="lx_cl(6312760)"><img src="/img/lnk.svg" />Получить ссылку из элемента документа</span></div></div><div name="6312760" id="6312760">Дам олиш зоналарини ташкиллаштириш</div></div><div class="BY_DEFAULT lx_elem" onmousemove="lx_mo(event,6312761)"><div class="lx_elem2"><div class="lx_elem3"><span onclick="lx_sf(6312761)"><img src="/img/cmt.svg" />Предложения по документу</span><span onclick="lx_pa(6312761)"><img src="/img/vlm.svg" />Прослушать аудио</span><span onclick="lx_cl(6312761)"><img src="/img/lnk.svg" />Получить ссылку из элемента документа</span></div></div><div name="6312761" id="6312761"></div></div><div class="TEXT_CENTER lx_elem" onmousemove="lx_mo(event,6312764)"><div class="lx_elem2"><div class="lx_elem3"><span onclick="lx_sf(6312764)"><img src="/img/cmt.svg" />Предложения по документу</span><span onclick="lx_pa(6312764)"><img src="/img/vlm.svg" />Прослушать аудио</span><span onclick="lx_cl(6312764)"><img src="/img/lnk.svg" />Получить ссылку из элемента документа</span></div></div><div name="6312764" id="6312764"><img src="/ru/files/6312779" /></div></div><div class="BY_DEFAULT lx_elem" onmousemove="lx_mo(event,6312797)"><div class="lx_elem2"><div class="lx_elem3"><span onclick="lx_sf(6312797)"><img src="/img/cmt.svg" />Предложения по документу</span><span onclick="lx_pa(6312797)"><img src="/img/vlm.svg" />Прослушать аудио</span><span onclick="lx_cl(6312797)"><img src="/img/lnk.svg" />Получить ссылку из элемента документа</span></div></div><div name="6312797" id="6312797"></div></div><div class="APPL_BANNER_LANDSCAPE_TITLE lx_elem" onmousemove="lx_mo(event,6312799)"><div class="lx_elem2"><div class="lx_elem3"><span onclick="lx_sf(6312799)"><img src="/img/cmt.svg" />Предложения по документу</span><span onclick="lx_pa(6312799)"><img src="/img/vlm.svg" />Прослушать аудио</span><span onclick="lx_cl(6312799)"><img src="/img/lnk.svg" />Получить ссылку из элемента документа</span></div></div><div name="6312799" id="6312799">ШНҚ 2.07.02-22 «Қурилиш объектларини ногиронлиги бўлган шахслар ҳамда кексалар эҳтиёжини инобатга олган ҳолда лойиҳалаштириш» шаҳарсозлик <a href="/ru/docs/6311402#6311479">нормалари ва қоидаларига<br /></a>23-ИЛОВА</div></div><div class="ACT_TITLE_APPL lx_elem" onmousemove="lx_mo(event,6312802)"><div class="lx_elem2"><div class="lx_elem3"><span onclick="lx_sf(6312802)"><img src="/img/cmt.svg" />Предложения по документу</span><span onclick="lx_pa(6312802)"><img src="/img/vlm.svg" />Прослушать аудио</span><span onclick="lx_cl(6312802)"><img src="/img/lnk.svg" />Получить ссылку из элемента документа</span></div></div><div name="6312802" id="6312802">Ўриндиқли аравачада ҳаракатланадиган ногиронлиги бўлган шахсларнинг антропометрик параметрлари</div></div><div class="BY_DEFAULT lx_elem" onmousemove="lx_mo(event,6312803)"><div class="lx_elem2"><div class="lx_elem3"><span onclick="lx_sf(6312803)"><img src="/img/cmt.svg" />Предложения по документу</span><span onclick="lx_pa(6312803)"><img src="/img/vlm.svg" />Прослушать аудио</span><span onclick="lx_cl(6312803)"><img src="/img/lnk.svg" />Получить ссылку из элемента документа</span></div></div><div name="6312803" id="6312803"></div></div><div class="TEXT_CENTER lx_elem" onmousemove="lx_mo(event,6312806)"><div class="lx_elem2"><div class="lx_elem3"><span onclick="lx_sf(6312806)"><img src="/img/cmt.svg" />Предложения по документу</span><span onclick="lx_pa(6312806)"><img src="/img/vlm.svg" />Прослушать аудио</span><span onclick="lx_cl(6312806)"><img src="/img/lnk.svg" />Получить ссылку из элемента документа</span></div></div><div name="6312806" id="6312806"><img src="/ru/files/6312855" /></div></div><div class="BY_DEFAULT lx_elem" onmousemove="lx_mo(event,6312812)"><div class="lx_elem2"><div class="lx_elem3"><span onclick="lx_sf(6312812)"><img src="/img/cmt.svg" />Предложения по документу</span><span onclick="lx_pa(6312812)"><img src="/img/vlm.svg" />Прослушать аудио</span><span onclick="lx_cl(6312812)"><img src="/img/lnk.svg" />Получить ссылку из элемента документа</span></div></div><div name="6312812" id="6312812"></div></div><div class="APPL_BANNER_LANDSCAPE_TITLE lx_elem" onmousemove="lx_mo(event,6312814)"><div class="lx_elem2"><div class="lx_elem3"><span onclick="lx_sf(6312814)"><img src="/img/cmt.svg" />Предложения по документу</span><span onclick="lx_pa(6312814)"><img src="/img/vlm.svg" />Прослушать аудио</span><span onclick="lx_cl(6312814)"><img src="/img/lnk.svg" />Получить ссылку из элемента документа</span></div></div><div name="6312814" id="6312814">ШНҚ 2.07.02-22 «Қурилиш объектларини ногиронлиги бўлган шахслар ҳамда кексалар эҳтиёжини инобатга олган ҳолда лойиҳалаштириш» шаҳарсозлик <a href="/ru/docs/6311402#6311479">нормалари ва қоидаларига<br /></a>24-ИЛОВА</div></div><div class="ACT_TITLE_APPL lx_elem" onmousemove="lx_mo(event,6312815)"><div class="lx_elem2"><div class="lx_elem3"><span onclick="lx_sf(6312815)"><img src="/img/cmt.svg" />Предложения по документу</span><span onclick="lx_pa(6312815)"><img src="/img/vlm.svg" />Прослушать аудио</span><span onclick="lx_cl(6312815)"><img src="/img/lnk.svg" />Получить ссылку из элемента документа</span></div></div><div name="6312815" id="6312815">Бир нафар ўриндиқли аравачадаги ногиронлиги бўлган шахс ҳамда кузатувчиси учун мослаштирилган меҳмонхона хоналарининг тавсиявий кўриниши</div></div><div class="BY_DEFAULT lx_elem" onmousemove="lx_mo(event,6312816)"><div class="lx_elem2"><div class="lx_elem3"><span onclick="lx_sf(6312816)"><img src="/img/cmt.svg" />Предложения по документу</span><span onclick="lx_pa(6312816)"><img src="/img/vlm.svg" />Прослушать аудио</span><span onclick="lx_cl(6312816)"><img src="/img/lnk.svg" />Получить ссылку из элемента документа</span></div></div><div name="6312816" id="6312816"></div></div><div class="TEXT_CENTER lx_elem" onmousemove="lx_mo(event,6312817)"><div class="lx_elem2"><div class="lx_elem3"><span onclick="lx_sf(6312817)"><img src="/img/cmt.svg" />Предложения по документу</span><span onclick="lx_pa(6312817)"><img src="/img/vlm.svg" />Прослушать аудио</span><span onclick="lx_cl(6312817)"><img src="/img/lnk.svg" />Получить ссылку из элемента документа</span></div></div><div name="6312817" id="6312817"><img src="/ru/files/6314236" /></div></div><div class="TEXT_CENTER lx_elem" onmousemove="lx_mo(event,6312871)"><div class="lx_elem2"><div class="lx_elem3"><span onclick="lx_sf(6312871)"><img src="/img/cmt.svg" />Предложения по документу</span><span onclick="lx_pa(6312871)"><img src="/img/vlm.svg" />Прослушать аудио</span><span onclick="lx_cl(6312871)"><img src="/img/lnk.svg" />Получить ссылку из элемента документа</span></div></div><div name="6312871" id="6312871"><img src="/ru/files/6313972" /></div></div></div>
                                            </div>
                                        </div>
                                    </div>
                                
                                
                                
                            </div>
                        </div>
                    </div>
                </div>
            </div>
            
            <div class="lx_revive_adserver">
                

<script type='text/javascript'><!--//<![CDATA[
    var m3_u = (location.protocol == 'https:' ? 'https://rk.adolatmarkazi.uz/www/delivery/ajs.php' : 'http://rk.adolatmarkazi.uz/www/delivery/ajs.php');
    var m3_r = Math.floor(Math.random() * 99999999999);
    if (!document.MAX_used) document.MAX_used = ',';
    document.write("<scr" + "ipt type='text/javascript' src='" + m3_u);
    document.write("?zoneid=8");
    document.write('&amp;cb=' + m3_r);
    if (document.MAX_used != ',') document.write("&amp;exclude=" + document.MAX_used);
    document.write(document.charset ? '&amp;charset=' + document.charset : (document.characterSet ? '&amp;charset=' + document.characterSet : ''));
    document.write("&amp;loc=" + escape(window.location));
    if (document.referrer) document.write("&amp;referer=" + escape(document.referrer));
    if (document.context) document.write("&context=" + escape(document.context));
    document.write("'><\/scr" + "ipt>");
    //]]>--></script>

            </div>
            
        </main>
        <div class="skiptranslate">
            
<footer class="footer">
    
    <div class="footer__top">
        <div class="container">
            <div class="footer__links">
                <div class="footer__links-ads">
                    <a href="/ru/about">О Центре</a>
                </div>
                <div class="footer__links-ads">
                    <a href="/ru/news">Новости сайта</a>
                </div>
                <div class="footer__links-ads">
                    <a href="/ru/adv">Реклама на сайте</a>
                </div>
                <div class="footer__links-ads">
                    <a href="/ru/rss">RSS</a>
                </div>
            </div>
            
            <div class="footer__app">
                <div class="footer__app-download">
                    <a target="_blank" href="https://play.google.com/store/apps/details?id=uz.lex.mobile">
                        <img src="/assets/img/google_app.svg"></a>
                </div>
                <div class="footer__app-download">
                    <a target="_blank" href="https://apps.apple.com/us/app/lexuz/id1608798574">
                        <img src="/assets/img/app_store.png"></a>
                </div>
            </div>
            <div class="footer__icon">
                <div class="footer__icons">
                    <a target="_blank" href="https://t.me/lexuzofficial"><i class="fab fa-telegram-plane"></i></a>
                </div>
                <div class="footer__icons">
                    <a target="_blank" href="https://www.facebook.com/minjustuz"><i class="fab fa-facebook-f"></i></a>
                </div>
                <div class="footer__icons">
                    <a target="_blank" href="https://www.instagram.com/adliyanews/"><i class="fab fa-instagram-square"></i></a>
                </div>
                <div class="footer__icons">
                    <a target="_blank" href="https://www.youtube.com/c/adliya"><i class="fab fa-youtube"></i></a>
                </div>
            </div>
            <div style="float: right; top: -30px; margin-top: -44px;">
<!-- START WWW.UZ TOP-RATING -->
<SCRIPT language="javascript" type="text/javascript">
		<!--
		top_js = "1.0"; top_r = "id=4079&r=" + escape(document.referrer) + "&pg=" + escape(window.location.href); document.cookie = "smart_top=1; path=/"; top_r += "&c=" + (document.cookie ? "Y" : "N")
		//-->
</SCRIPT>
<SCRIPT language="javascript1.1" type="text/javascript">
<!--
		top_js = "1.1"; top_r += "&j=" + (navigator.javaEnabled() ? "Y" : "N")
//-->
</SCRIPT>
<SCRIPT language="javascript1.2" type="text/javascript">
<!--
		top_js = "1.2"; top_r += "&wh=" + screen.width + 'x' + screen.height + "&px=" + (((navigator.appName.substring(0, 3) == "Mic")) ? screen.colorDepth : screen.pixelDepth)
//-->
</SCRIPT>
<SCRIPT language="javascript1.3" type="text/javascript">
<!--
		top_js = "1.3";
//-->
</SCRIPT>
<SCRIPT language="JavaScript" type="text/javascript">
		<!--
		top_rat = "&col=0C57A6&t=ffffff&p=DD7900"; top_r += "&js=" + top_js + ""; document.write('<a href="https://www.uz/rus/toprating/cmd/stat/id/4079" target="_blank"><img src="https://www.uz/plugins/top_rating/count/cnt.png?' + top_r + top_rat + '" width=88 height=31 border=0 alt="Топ рейтинг www.uz"></a>')//-->
</SCRIPT>
<NOSCRIPT>
		<A href="https://www.uz/rus/toprating/cmd/stat/id/4079" target="_blank">
				<img height="31" src="https://www.uz/plugins/top_rating/count/nojs_cnt.png?id=4079&pg=http%3A//lex.uz&col=0C57A6&t=ffffff&p=DD7900" width="88" border="0" alt="Топ рейтинг www.uz">
		</A>
</NOSCRIPT>
<!-- FINISH WWW.UZ TOP-RATING --></div>
            
        </div>
    </div>
    
    <div class="footer__bottom">
        <div class="container">
            <div class="footer__bottom-desc">&copy; Государственное учреждение «Национальный правовой информационный центр «Адолат» при Министерстве юстиции Республики Узбекистан»</div>
        </div>
    </div>
</footer>
<div id="lx_alert" style="display: none;">
    <div class="lx_alert_content">
        <div class="lx_alert_body">
            <div id="lx_alert_message"></div>
        </div>
        <div class="lx_alert_footer">
            <button id="lx_alert_close" type="button" class="btn btn-primary" onclick="lxCloseAlert();">Закрыть</button>
        </div>
    </div>
</div>
<span id="lx_btn_up" onclick="lx_btn_up_top()" title="">
    <svg viewBox="0 0 512 512">
        <path fill="currentColor" d="M256 504c137 0 248-111 248-248S393 8 256 8 8 119 8 256s111 248 248 248zm0-448c110.5 0 200 89.5 200 200s-89.5 200-200 200S56 366.5 56 256 145.5 56 256 56zm20 328h-40c-6.6 0-12-5.4-12-12V256h-67c-10.7 0-16-12.9-8.5-20.5l99-99c4.7-4.7 12.3-4.7 17 0l99 99c7.6 7.6 2.2 20.5-8.5 20.5h-67v116c0 6.6-5.4 12-12 12z"></path></svg>
</span>

        </div>
        <div id="lx_md_send_feedback" class="modal" tabindex="-1" role="dialog">
            <div class="modal-dialog" role="document" style="max-width: 40rem; max-height: 90vh;">
                <div class="modal-content">
                    <div class="modal-header" style="display: block;">
                        <button type="button" class="close" data-dismiss="modal" aria-label="Close">
                            <span aria-hidden="true">&times;</span>
                        </button>
                        <h3 class="modal-title">Предложения по документу</h3>
                    </div>
                    <div class="modal-body">
                        <div class="form-group">
                            <select class="lx_select2_filter select2 form-control" id="lx_feedback_type" onchange="feedback_type_changed(this)">
                                <option value="" selected>Выберите тип предложения</option>
                                <option value="1">Предложение по документу</option>
                                <option value="2">Техническая ошибка</option>
                            </select>
                        </div>
                        <div class="form-group">
                            <input id="lx_feedback_from" type="text" class="form-control" placeholder="Фамилия, имя, отчество" />
                        </div>
                        <div class="form-group row">
                            <div class="col-6">
                                <input id="lx_feedback_phone" type="text" class="form-control" placeholder="Телефон" />
                            </div>
                            <div class="col-6">
                                <input id="lx_feedback_email" type="text" class="form-control" placeholder="Email" />
                            </div>
                        </div>
                        <div class="form-group">
                            <textarea id="lx_feedback_text" class="form-control" rows="7" maxlength="2000" style="resize: vertical; max-height: 600px;" placeholder="Текст"></textarea>
                        </div>
                        <div class="form-group">
                            <div class="custom-control custom-checkbox mb-2">
                                <input class="custom-control-input" id="lx_feedback_legis" type="checkbox" onchange="lx_feedback_legis_changed(this)">
                                <label class="custom-control-label" for="lx_feedback_legis">Ознакомился с <a href="https://lex.uz/" target="_blank" style="color:#0064a9">правилами</a> внесения предложений в законодательство</label>
                            </div>
                        </div>
                    </div>
                    <div class="modal-footer" id="sendFeedback_group" style="display: none;">
                        <div id="dvCaptcha2"></div>
                        <input type="hidden" id="captcha_res2" />
                        <button type="button" class="btn btn-success" id="btn_sendFeedbackToDb" style="display: none;" onclick="sendFeedbackToDb(6311402, 1);">Отправить</button>
                        <button type="button" class="btn btn-danger" id="btn_sendFeedbackCancel" data-dismiss="modal">Отменить</button>
                    </div>
                </div>
            </div>
        </div>
        <div class="modal fade" id="modalShowCard" tabindex="-1" role="dialog" aria-hidden="true" style="z-index: 9000;">
            <div class="modal-dialog" style="margin: 0;">
                <div class="modal-content" style="background: #eee; width: 90vw; height: 92vh; left: 5vw; top: 4vh;">
                    <div class="modal-header" style="padding: 0 4px 0 0; display: block;">
                        <button type="button" class="close" data-dismiss="modal" style="margin: 0">&times;</button>
                    </div>
                    <div class="modal-body" style="padding: 0 4px; margin: 0;">
                        <iframe id="iframeShowCard" style="width: 100%; height: 100%; border: none;"></iframe>
                    </div>
                </div>
            </div>
        </div>
        <button id="lxPlayButton"></button>
        <button id="lxPlayLang" style="display: none">3</button>
        
        <script type="text/javascript">
            function googleTranslateElementInit() {
                new google.translate.TranslateElement({
                    pageLanguage: 'uz',
                    includedLanguages: 'sq,ar,hy,az,be,bn,bg,zh-CN,zh-TW,hr,cs,da,et,tl,fi,fr,ka,de,el,iw,hi,hu,is,id,it,ja,kk,ko,ky,lv,lt,ms,mn,no,ps,fa,pl,pt,ro,sr,sk,sl,es,sw,sv,tg,tt,th,tr,tk,uk,ur,ug,vi,en,ru',
                    layout: google.translate.TranslateElement.InlineLayout.SIMPLE
                }, 'google_translate_element');
            }
        </script>
        <script type="text/javascript" defer src="//translate.google.com/translate_a/element.js?cb=googleTranslateElementInit"></script>
        
        <script>
            const htmldark = document.getElementsByTagName('html')[0];

            if (localStorage.getItem("themes") === "light") {
                htmldark.dataset.theme = 'light';
            }
            else if (localStorage.getItem("themes") === "grey") {
                htmldark.dataset.theme = 'grey';
            }
            else if (localStorage.getItem("themes") === "dark") {
                htmldark.dataset.theme = 'dark';
            }
            const toggleTheme = (theme) => {
                htmldark.dataset.theme = theme;
                localStorage.setItem("themes", theme);
            }
        </script>
        <script>            
            
            $(document).ready(function () {
                document.getElementById('lx_var_b').innerHTML = document.getElementById('lx_var_t').innerHTML;
            });
            
        </script>
        <script type="text/javascript">
            
            $("#docContent__sideBar-show").click(function () {
                if ($("body").hasClass("sidebar-show")) {
                    $("body").removeClass("sidebar-show")
                }
                else {
                    $("body").addClass("sidebar-show")
                }
            })
            
        </script>
    </div>
    <div style="display: none;"></div>
</body>
</html>

<script>
    function changeScrollType(obj) {
        if ($(obj)["0"].checked) {
            scrollIndependent();
        }
        else {
            scrollCommon();
        }
    }

    function scrollCommon() {
        $('#lang1').css('overflow', 'auto');
        $(".lang1, .lang2").removeAttr('overflow');
        $(".lang1, .lang2").css('overflow', 'hidden');
        $(".lang1, .lang2").css('height', 'auto');
        $(".lang1, .lang2").css('padding-right', '0');
        $("body").css('overflow', 'auto');
    }

    function scrollIndependent() {
        $('#actPage').removeAttr('overflow');
        $(".lang1, .lang2").css('height', ($(window).height() - 38) + "px");
        $(".lang1, .lang2").css('overflow', 'auto');
        $(".lang1, .lang2").css('padding-right', '5px');
        $("body").css('overflow', 'hidden');
    }

    function clickAllChk(item_id, chk, pref1, pref2) {
        $.each($('#' + pref1 + '_dropdown_check').find("INPUT[type='checkbox']"), function () {
            if ($(this).attr('id') != item_id) {
                $(this).prop('checked', chk.checked);
                if (!chk.checked) {
                    $.each($('div').find('#s' + $(this).attr('id').substring(2)), function () { $(this).parent().hide(); });
                }
                else {
                    $.each($('div').find('#s' + $(this).attr('id').substring(2)), function () { $(this).parent().show(); });
                }
            }
        });

        $.each($('#' + pref2 + '_dropdown_check').find("INPUT[type='checkbox']"), function () {
            $(this).attr('checked', chk.checked);
        });
    }

    function hideItem(chk) {
        var chk_id = chk.id.substring(2);
        var $containers = $('[id="s' + chk_id + '"]').parent();
        if (!chk.checked) {
            $containers.hide();
        }
        else {
            if (chk_id === '1104') {
                $containers.removeClass("lx_no_select");
            }
            $containers.show();
        }
    }

    var showLexComments = false;

    function toggleLexComments() {
        var $containers = $('[id="s527"]').parent();
        if (showLexComments) {
            showLexComments = false;
            $("#t_btn_lex_comment").removeClass("active")
            $("#b_btn_lex_comment").removeClass("active")
            $containers.hide();
        }
        else {
            showLexComments = true;
            $("#t_btn_lex_comment").addClass("active")
            $("#b_btn_lex_comment").addClass("active")
            $containers.removeClass("lx_no_select");
            $containers.show();
        }
    }

    function scrollText(hash) {
        if (!hash) {
            window.scrollTo(0, 0);
            return;
        }
        history.pushState(null, '', '#' + hash);
        scrollToHash(hash);
    }

    function scrollToHash(hash, smooth = false) {
        const target = document.getElementById(hash);
        if (!target) return;
        const iframe = document.querySelector('.skiptranslate iframe');
        const iframeHeight = iframe ? iframe.offsetHeight : 0;
        const header = document.getElementById("doc_header");
        const headerHeight = header ? header.offsetHeight : 0;
        const y = target.getBoundingClientRect().top + window.pageYOffset - iframeHeight - headerHeight - 4;
        if (smooth) {
            setTimeout(() => { window.scrollTo(0, y); }, 100);
        } else {
            window.scrollTo(0, y);
        }
    }

    window.onload = function () {
        if (window.location.hash) {
            scrollToHash(window.location.hash.substring(1), true);
        }
    };

    window.addEventListener('hashchange', function () {
        if (window.location.hash) {
            scrollToHash(window.location.hash.substring(1));
        }
    });

    $(document).ready(function () {
        $('#search-criteria').on('input', function (e) {
            var txt = $('#search-criteria').val().toUpperCase();
            if (txt.length > 0) {
                $('.docNabvar__child').each(function () {
                    $(this).addClass('toc_show');
                });
                $('.search-text').each(function () {
                    var elem = $(this).closest('.search-toggle');
                    elem.removeClass('toc_show');
                    elem.removeClass('toc_hide');
                    if ($(this).text().toUpperCase().indexOf(txt) != -1) {
                        elem.addClass('toc_show');
                    } else {
                        elem.addClass('toc_hide');
                    }
                });
            }
            else {
                clearSearch();
            }
        });
    });

    function clearSearch() {
        $('#search-criteria').val('');
        $('.toc_show').each(function () {
            $(this).removeClass('toc_show');
        });
        $('.toc_hide').each(function () {
            $(this).removeClass('toc_hide');
        });
    }
</script>
<script>
    function addToFavorite() {
        $.ajax({
            type: "POST",
            url: "/pages/ajax_methods2.aspx",
            cache: false,
            data: {
                "action": "addToFavorite",
                "lact_id": "6311402",
                "lang": "1"
            },
            success: function (data) {
                var kvp = JSON.parse(data);
                lxAlert(kvp.message);
            },
            error: function () {
                lxAlert("Ошибка при сохранении!");
            }
        });
    }

    function showAddCard(tcard) {
        if (tcard < 1 || tcard > 6) {
            return;
        }

        $('#add_info').val('0').trigger('change');

        if (tcard == "1") {
            showIframeCard('/ru/actinfo/card1/6311402');
        }
        else if (tcard == "2") {
            showIframeCard('/ru/actinfo/card2/6311402');
        }
        else if (tcard == "3") {
            showIframeCard('/ru/actinfo/basrev/6311402');
        }
        else if (tcard == "4") {
            showIframeCard('/ru/actinfo/revhis/6311402');
        }
        else if (tcard == "5") {
            showIframeCard('/ru/actinfo/correspondents/6311402');
        }
        else if (tcard == "6") {
            showIframeCard('/ru/actinfo/respondents/6311402');
        }
    }

    function showIframeCard(_url) {
        $("#iframeShowCard").attr("src", _url);
        $('#modalShowCard').modal('show');
    }

    $('#modalShowCard').on('hidden.bs.modal', function () {
        $("#iframeShowCard").attr("src", "about:blank");  // clear after close
    });

    $(document).ready(function () {
        
    });
</script>
<script type="text/javascript">
    function downloadDoc() {
        const s527 = showLexComments ? '1' : '0';
        const s1089 = $('#t_1089').prop('checked') ? '1' : '0';
        const s1104 = $('#t_1104').prop('checked') ? '1' : '0';
        window.location.href = '/ru/docs/6311402?type=doc' + '&s527=' + s527 + '&s1089=' + s1089 + '&s1104=' + s1104;
    }

    function openTwoLang(lang_id) {
        window.location.href = "/ru/docs/6311402?otherlang=" + lang_id;
    }
</script>
<script>
    function lx_pa(elem_id) { lx_audio.playAudioByElemId(elem_id); }
    function lx_mo(e, elem_id) { lx_audio.moveElement(e, elem_id); }
    function a(event, word) { lx_def.showDef(event, '3', word); }
    function lx_cl(elem_id) {
        const link = window.location.origin + window.location.pathname + window.location.search + '#' + elem_id;
        navigator.clipboard.writeText(link)
            .then(() => {
                Swal.fire({
                    title: 'Ссылка скопирована',
                    text: link,
                    confirmButtonText: "Закрыть"
                });
            })
            .catch(err => {
                Swal.fire({
                    title: 'Error',
                    text: 'Failed to copy',
                    confirmButtonText: "Закрыть"
                });
            });
    }
    async function lx_bm(elem_id) {
        const link = window.location.pathname + window.location.search + '#' + elem_id;
        try {
            const lang_id = 1;
            const response = await fetch('/Pages/GetPage.aspx/SaveBookmark', {
                method: "POST",
                headers: { "Content-Type": "application/json" },
                body: JSON.stringify({ lang_id, link }),
            });
            if (response.ok) {
                const result = (await response.json()).d;
                lxAlert(result);
            } else {
                lxAlert('Техническая ошибка');
            }
        }
        catch (error) {
            lxAlert('Техническая ошибка');
        }
    }
</script>
<script>
    var dvCaptcha2;

    var onloadCallback = function () {
        dvCaptcha2 = grecaptcha.render('dvCaptcha2', {
            'sitekey': '6Lc4eUoUAAAAADW-S-YIn_F1v9K-G6154fgrBmQq',
            'callback': function (response) {
                $("[id*=captcha_res2]").val(response);
                $('#btn_sendFeedbackToDb').show();
                $('#btn_sendFeedbackCancel').hide();
            }
        });
    };

    var _elem_id;

    function lx_sf(elem_id) { // added to xml
        sendFeedback(elem_id);
    }

    function sendFeedback(elem_id) {
        _elem_id = elem_id;
        grecaptcha.reset(dvCaptcha2);
        $('#lx_feedback_from').val('');
        $('#lx_feedback_text').val('');
        $('#lx_feedback_phone').val('');
        $('#lx_feedback_email').val('');
        $('#captcha_res2').val('');
        $('#btn_sendFeedbackToDb').hide();
        $('#lx_md_send_feedback').modal({
            backdrop: 'static',
            keyboard: true
        });
        $('#lx_feedback_type').val('').trigger('change');
        $('#lx_feedback_legis').prop('checked', false).trigger('change');
    }

    function feedback_type_changed(sel) {
        if (sel.value == '1') {
            $('#lx_feedback_phone').show();
            $('#lx_feedback_email').show();
        }
        else {
            $('#lx_feedback_phone').hide();
            $('#lx_feedback_email').hide();
        }
    }

    function lx_feedback_legis_changed(checkbox) {
        if (checkbox.checked) {
            $('#sendFeedback_group').show();
        } else {
            $('#sendFeedback_group').hide();
        }
    }

    function sendFeedbackToDb(lact_id, lang_id) {
        var feedback_from = $('#lx_feedback_from').val().trim();
        var feedback_text = $('#lx_feedback_text').val().trim();
        var feedback_type = $('#lx_feedback_type').val().trim();
        var feedback_phone = $('#lx_feedback_phone').val().trim();
        var feedback_email = $('#lx_feedback_email').val().trim();
        var captcha_result = $('#captcha_res2').val();

        if (feedback_type != '1' && feedback_type != '2') {
            lxAlert('Выберите тип предложения!');
        }
        else if (feedback_from.length < 3 || feedback_from.length > 100) {
            lxAlert('Фамилия, имя, отчество!');
        }
        else if (feedback_text.length < 10) {
            lxAlert('Данные введены не полностью!');
        }
        else if (feedback_text.length > 2000) {
            lxAlert('Матн 2000 ҳарфдан кўп!')
        }
        else if (feedback_phone.length > 20) {
            lxAlert('Телефон!');
        }
        else if (feedback_email.length > 30) {
            lxAlert('Email!');
        }
        else {
            $.ajax({
                type: "POST",
                url: "/pages/ajax_methods2.aspx",
                data: {
                    'action': 'sendfeedback',
                    'lact_id': lact_id,
                    'lang_id': lang_id,
                    'element_id': _elem_id,
                    'feedback_from': encodeHtmlEntities(feedback_from),
                    'feedback_text': encodeHtmlEntities(feedback_text),
                    'feedback_type': encodeHtmlEntities(feedback_type),
                    'feedback_phone': encodeHtmlEntities(feedback_phone),
                    'feedback_email': encodeHtmlEntities(feedback_email),
                    'captcha_result': captcha_result
                },
                success: function (data) {
                    $('#lx_feedback_from').val('');
                    $('#lx_feedback_text').val('');
                    $('#lx_feedback_type').val('');
                    $('#lx_feedback_phone').val('');
                    $('#lx_feedback_email').val('');
                    $('#captcha_res2').val('');
                    $('#btn_sendFeedbackToDb').hide();
                    $('#lx_md_send_feedback').modal('hide');
                    lxAlert(data);
                },
                error: function () {
                    $('#captcha_res2').val('');
                    $('#btn_sendFeedbackToDb').hide();
                    grecaptcha.reset(dvCaptcha2);
                    lxAlert('Ошибка при сохранении!');
                }
            });
        }
    }

    function encodeHtmlEntities(str) {
        return String(str).replace(/&/g, '&amp;')
            .replace(/</g, '&lt;')
            .replace(/>/g, '&gt;')
            .replace(/"/g, '&quot;')
            .replace(/'/g, '&#39;');
    }
</script>
<script>
    $('.stopProp').click(function (e) {
        e.stopPropagation();
    });
    function openUrl(url) {
        location.href = url;
    }
    function openInNew(url) {
        window.open(url, "_blank");
    }
    if ("" == "print") {
        $(document).ready(function () {
            window.print();
        });
    }
</script>
<script>
    let lxCompNotEqualId = 0;
    function lxCompNext() {
        if (lxCompNotEqualId < 0) {
            lxCompNotEqualId++;
            scrollText('d_' + lxCompNotEqualId);
        }
    }
    function lxCompPrev() {
        if (lxCompNotEqualId > 1) {
            lxCompNotEqualId--;
            scrollText('d_' + lxCompNotEqualId);
        }
    }
</script>
